ᐅ Doppelhaushälfte Grundrissüberlegung, Erfahrungen?
Erstellt am: 26.11.19 15:35
J
Joanna198226.11.19 15:35Hallo zusammen,
ich werde eine Doppelhaushälfte 135m2 bauen lassen und bin grade dabei die empfohlenen Grundrisse zu überlegen in wie weit sie Sinn machen und ob man etwas ändern sollte bevor ich den Antrag auf Baugenehmigung abgebe. Habt ihr vielleicht Ideen oder Vorschläge für mich?


Liebe Grüße
Joanna
ich werde eine Doppelhaushälfte 135m2 bauen lassen und bin grade dabei die empfohlenen Grundrisse zu überlegen in wie weit sie Sinn machen und ob man etwas ändern sollte bevor ich den Antrag auf Baugenehmigung abgebe. Habt ihr vielleicht Ideen oder Vorschläge für mich?
Liebe Grüße
Joanna
J
Joanna198226.11.19 15:53Bebauungsplan/Einschränkungen
Größe des Grundstücks - 300m2
Hang - nein
Baufenster, Baulinie und -grenze
Randbebauung - nein
Anzahl Stellplatz - 2
Geschossigkeit - 2
Dachform - Sattel
Stilrichtung - ??
Ausrichtung - Süd/Ost/Nord
Anforderungen der Bauherren
Stilrichtung, Dachform, Gebäudetyp - Satteldach, Doppelhaushälfte
Keller, Geschosse - nein, 2 Geschosse
Anzahl der Personen, Alter - 2, ca.40
Büro: Familiennutzung oder Homeoffice? Familiennutzung
Schlafgäste pro Jahr - ca. 5 Personen
offene oder geschlossene Architektur
konservativ oder moderne Bauweise - eher moderne
offene Küche, Kochinsel - halb offene Küche
Anzahl Essplätze - 6
Kamin - nein
Balkon, Dachterrasse - nein
Garage, Carport - ja
weitere Wünsche/Besonderheiten/Tagesablauf, gern auch Begründungen, warum dieses oder das nicht sein soll - wir haben einen Hund
Hausentwurf
Von wem stammt die Planung:
-Planer eines Bauunternehmens
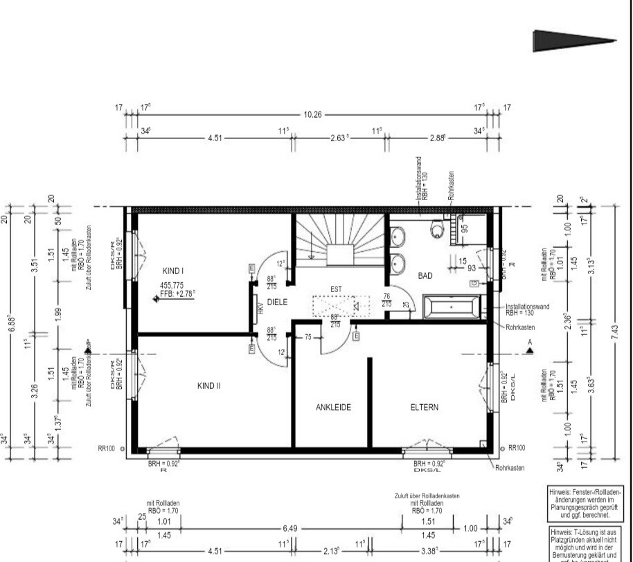
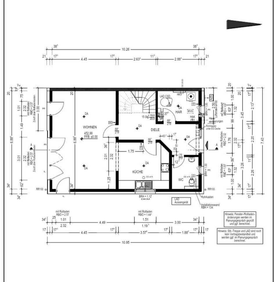
Was gefällt besonders? Warum? Die Verteilung der Räumen im 1. OG
Was gefällt nicht? Warum? Das überlegen wir uns...kleine Küche?
favorisierte Heiztechnik: Luft- Wasser Wärmepumpe
Größe des Grundstücks - 300m2
Hang - nein
Baufenster, Baulinie und -grenze
Randbebauung - nein
Anzahl Stellplatz - 2
Geschossigkeit - 2
Dachform - Sattel
Stilrichtung - ??
Ausrichtung - Süd/Ost/Nord
Anforderungen der Bauherren
Stilrichtung, Dachform, Gebäudetyp - Satteldach, Doppelhaushälfte
Keller, Geschosse - nein, 2 Geschosse
Anzahl der Personen, Alter - 2, ca.40
Büro: Familiennutzung oder Homeoffice? Familiennutzung
Schlafgäste pro Jahr - ca. 5 Personen
offene oder geschlossene Architektur
konservativ oder moderne Bauweise - eher moderne
offene Küche, Kochinsel - halb offene Küche
Anzahl Essplätze - 6
Kamin - nein
Balkon, Dachterrasse - nein
Garage, Carport - ja
weitere Wünsche/Besonderheiten/Tagesablauf, gern auch Begründungen, warum dieses oder das nicht sein soll - wir haben einen Hund
Hausentwurf
Von wem stammt die Planung:
-Planer eines Bauunternehmens
Was gefällt besonders? Warum? Die Verteilung der Räumen im 1. OG
Was gefällt nicht? Warum? Das überlegen wir uns...kleine Küche?
favorisierte Heiztechnik: Luft- Wasser Wärmepumpe
Joanna1982 schrieb:
Habt ihr vielleicht Ideen oder Vorschläge für mich?Ja: Dir meinen Rat zu Herzen zu nehmen, eine Doppelhaushälfte nie allein zu planen - und Dir den Thread von @goalkeeper durchzulesen. Problempunkte bei Doppelhaushälfte liegen sämtlich an der mit der anderen Hälfte gemeinsamen Seite, da schlagen alle Unterschiede als Komplikationen durch. Die volle Dröhnung bekommst Du, wenn Ihr Euch in allen Punkten vom Nachbarn unterscheidet: Bauweise, Unterkellerung, Hausprofil in der Tiefe, ...https://www.instagram.com/11antgmxde/
https://www.linkedin.com/company/bauen-jetzt/
Joanna1982 schrieb:
weitere Wünsche/Besonderheiten/Tagesablauf, gern auch Begründungen, warum dieses oder das nicht sein soll - wir haben einen Hund Ein Hinweis, ein Hinweis... und das mit einer Gefühlsregung
kannst Du mal bitte etwas ausführen: gefällt es Euch, gefällt es Euch nicht? Wolltet Ihr eine Ankleide? Wollt Ihr so eine Küche? Oder doch mit Insel? Warum Kinderzimmer, wenn keine da sind?
Ist es ein Bauträger, der unflexibel und teuer mit Änderungen ist und die zweite Hälfte auch baut oder ist es Euer Bauunternehmen? Ist es ein Neubaugebiet mit vorgesetzten Parkplätzen oder kommt noch irgendwo eine Garage hin? Könnt Ihr mit den Fenstern noch schieben? Wie viel ist im Osten noch an Grundstück? Kann man da einen Küchenausgang machen?
G
goalkeeper26.11.19 21:3311ant schrieb:
Ja: Dir meinen Rat zu Herzen zu nehmen, eine Doppelhaushälfte nie allein zu planen - und Dir den Thread von @goalkeeper durchzulesen.Einfach kann ja jeder.
Ähnliche Themen