K
Klinkerhof8612.12.23 22:36Hallöchen,
wir haben ein Grundstück mit einem Nachbarhaus, an das wir als Doppelhaushälfte anbauen würden.
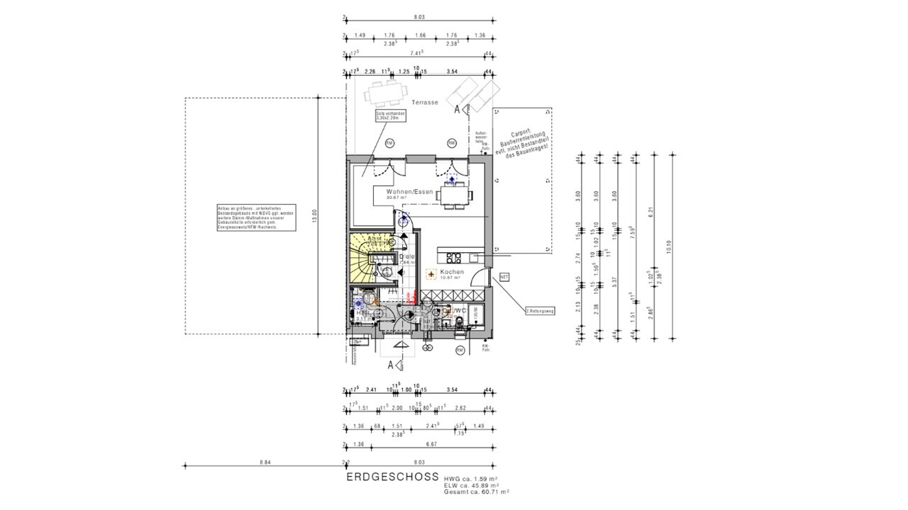
Ich bin gerade spezifisch an den Bädern dran und würde mich über Feedback freuen. Die genauere Fragestellung habe ich weiter unten erläutert. In den Grundrissen anbei wurde die letzte Änderung als Rotzeichnung übernommen, deshalb ist im OG aber an der „alten“ Badewannen-Stelle ein Loch.
Bebauungsplan/Einschränkungen
Größe des Grundstücks: ca. 450qm
Hang: nein
Grundflächenzahl
Geschossflächenzahl
Baufenster, Baulinie und -grenze
Randbebauung: Carport/Garage
Anzahl Stellplatz
Geschossigkeit 2,5
Dachform Satteldach 45 Grad
Stilrichtung
Ausrichtung
Maximale Höhen/Begrenzungen
weitere Vorgaben: Anbau an eine bestehende Doppelhaushälfte; Gesamtbreite Grundstück: 11m; deshalb maximale Hausbreite 8m & Haustiefe 10m
Anforderungen der Bauherren
Stilrichtung, Dachform, Gebäudetyp: Dachform und Größe richtet sich am Nachbarn aus
Keller, Geschosse: kein Keller, 2 Vollgeschosse, 1 DG
Anzahl der Personen, Alter: 4 (37,36,3,0 Jahre)
Raumbedarf im EG: Ess-/Wohnraum/ Küche, Technik, Gäste-Bad, Garderobe
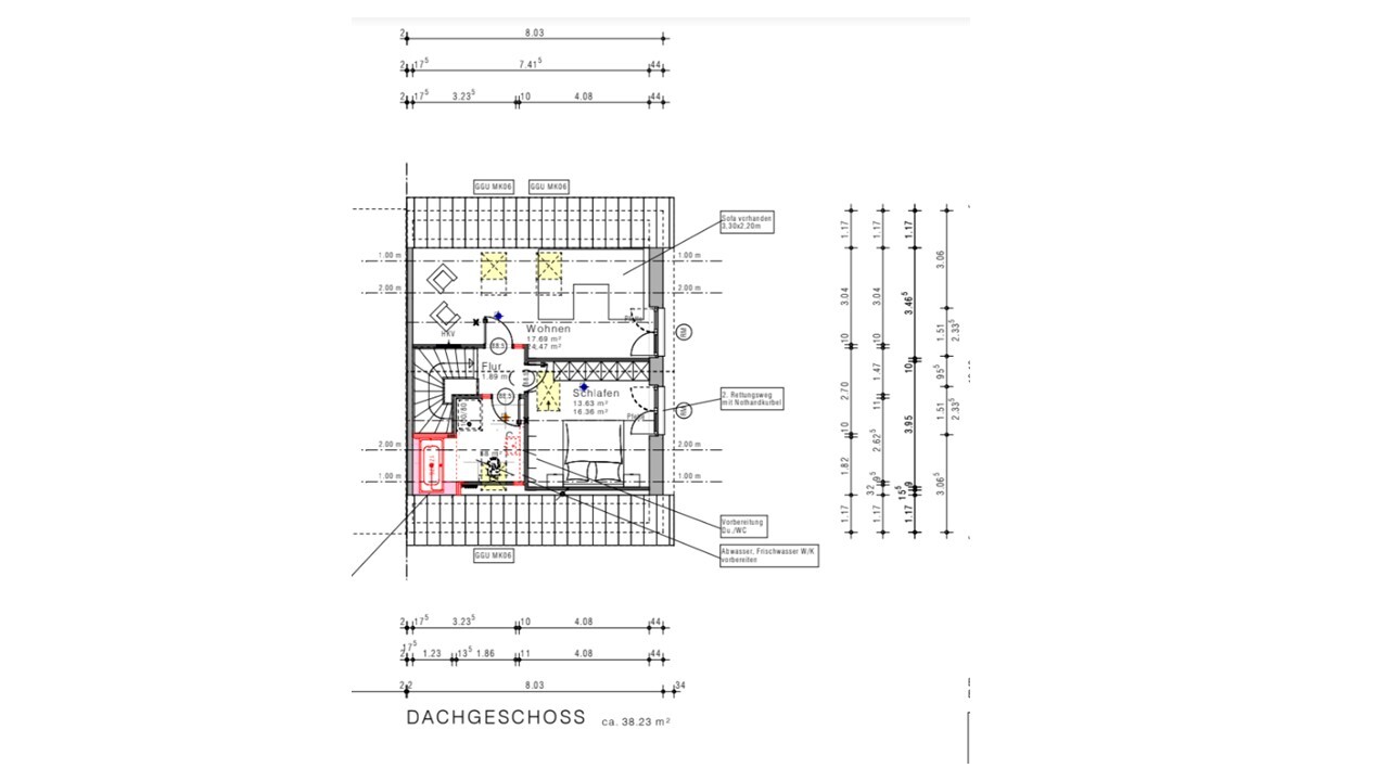
OG: 2x Kinderzimmer, Büro 1, Bad plus Waschraum
DG: Schlafzimmer, Bad, Büro 2/ Gäste/ Wohnen2.
Büro: Familiennutzung oder Homeoffice?: Beides, 2x Homeoffice notwendig
Schlafgäste pro Jahr: diverse, 8-10
offene oder geschlossene Architektur: teils teils
konservativ oder moderne Bauweise
offene Küche, Kochinsel: gerne halbangedockte Insel, auch wenn die Küche etwas knapp bemessen ist
Anzahl Essplätze: 6-8
Kamin nein
Musik/Stereowand
Balkon, Dachterrasse: Terrasse
Garage, Carport: Ja, auch als Kellerersatz
Nutzgarten, Treibhaus: nein
weitere Wünsche/Besonderheiten/Tagesablauf, gern auch Begründungen, warum dieses oder das nicht sein soll
Hausentwurf
Von wem stammt die Planung:
-Planer eines Bauunternehmens: Ja
Was gefällt besonders? Warum?
Umsetzung Erdgeschoss, gleich große Kinderzimmer, das DG ist auch ok. -> Kommentare sind trotzdem willkommen.
Was gefällt nicht? Warum?
Die Bäder im OG und DG sind noch eine Hausaufgabe für uns.
Die Wäsche soll im OG gemacht werden, deshalb der Wunsch nach einem Sicht-geschützten Waschbereich angeschlossen an das Hauptbad. Die Waschmaschine/Trockner sollen erhöht stehen, deshalb am besten nicht unter dem Fenster zu platzieren.
Es gab bereits mehrere Entwürfe mit Durchgang planoben/planunten. Überlegung nun die Badewanne ins DG zu schieben, mit dem Platzgewinn den Waschraum auf 1,6m zu verbreitern, um auch etwas Stauraum zu ermöglichen.
Dazu eine separate diy-Skizze von mir anbei (ohne technische Elemente/ Leitungen etc).
Im DG soll die Badewanne unter die Schräge stehen. Ist sie so vom Raumkonzept her nutzbar? Andere Ideen zur Anordnung der Sanitärobjekte ? Würdet ihr die Dusche als Trockenbau mit Glastür oder komplett als Glaskabine (mehr Licht, aber Putzaufwand) machen?
Weiteres Thema: Was sagt ihr zur Küche und möglicher Ausrichtung der möbel/Halbinsel?
Wenn Ihr verzichten müsst, auf welche Details/Ausbauten
-könnt Ihr verzichten:
-könnt Ihr nicht verzichten: Badewanne komplett weglassen ungern
Warum ist der Entwurf so geworden, wie er jetzt ist?
Unsere Wünsche wurden vom Planer in mehreren Iterationen umgesetzt.
Was macht ihn in Euren Augen besonders gut oder schlecht:
Für das relativ schmale Grundstück und Doppelhaushälfte-Format geben viele fixe Eckpunkte vor, sodass wenig Spiel bleibt, aber ich hoffe immer auf kreative Lösungen.




wir haben ein Grundstück mit einem Nachbarhaus, an das wir als Doppelhaushälfte anbauen würden.
Ich bin gerade spezifisch an den Bädern dran und würde mich über Feedback freuen. Die genauere Fragestellung habe ich weiter unten erläutert. In den Grundrissen anbei wurde die letzte Änderung als Rotzeichnung übernommen, deshalb ist im OG aber an der „alten“ Badewannen-Stelle ein Loch.
Bebauungsplan/Einschränkungen
Größe des Grundstücks: ca. 450qm
Hang: nein
Grundflächenzahl
Geschossflächenzahl
Baufenster, Baulinie und -grenze
Randbebauung: Carport/Garage
Anzahl Stellplatz
Geschossigkeit 2,5
Dachform Satteldach 45 Grad
Stilrichtung
Ausrichtung
Maximale Höhen/Begrenzungen
weitere Vorgaben: Anbau an eine bestehende Doppelhaushälfte; Gesamtbreite Grundstück: 11m; deshalb maximale Hausbreite 8m & Haustiefe 10m
Anforderungen der Bauherren
Stilrichtung, Dachform, Gebäudetyp: Dachform und Größe richtet sich am Nachbarn aus
Keller, Geschosse: kein Keller, 2 Vollgeschosse, 1 DG
Anzahl der Personen, Alter: 4 (37,36,3,0 Jahre)
Raumbedarf im EG: Ess-/Wohnraum/ Küche, Technik, Gäste-Bad, Garderobe
OG: 2x Kinderzimmer, Büro 1, Bad plus Waschraum
DG: Schlafzimmer, Bad, Büro 2/ Gäste/ Wohnen2.
Büro: Familiennutzung oder Homeoffice?: Beides, 2x Homeoffice notwendig
Schlafgäste pro Jahr: diverse, 8-10
offene oder geschlossene Architektur: teils teils
konservativ oder moderne Bauweise
offene Küche, Kochinsel: gerne halbangedockte Insel, auch wenn die Küche etwas knapp bemessen ist
Anzahl Essplätze: 6-8
Kamin nein
Musik/Stereowand
Balkon, Dachterrasse: Terrasse
Garage, Carport: Ja, auch als Kellerersatz
Nutzgarten, Treibhaus: nein
weitere Wünsche/Besonderheiten/Tagesablauf, gern auch Begründungen, warum dieses oder das nicht sein soll
Hausentwurf
Von wem stammt die Planung:
-Planer eines Bauunternehmens: Ja
Was gefällt besonders? Warum?
Umsetzung Erdgeschoss, gleich große Kinderzimmer, das DG ist auch ok. -> Kommentare sind trotzdem willkommen.
Was gefällt nicht? Warum?
Die Bäder im OG und DG sind noch eine Hausaufgabe für uns.
Die Wäsche soll im OG gemacht werden, deshalb der Wunsch nach einem Sicht-geschützten Waschbereich angeschlossen an das Hauptbad. Die Waschmaschine/Trockner sollen erhöht stehen, deshalb am besten nicht unter dem Fenster zu platzieren.
Es gab bereits mehrere Entwürfe mit Durchgang planoben/planunten. Überlegung nun die Badewanne ins DG zu schieben, mit dem Platzgewinn den Waschraum auf 1,6m zu verbreitern, um auch etwas Stauraum zu ermöglichen.
Dazu eine separate diy-Skizze von mir anbei (ohne technische Elemente/ Leitungen etc).
Im DG soll die Badewanne unter die Schräge stehen. Ist sie so vom Raumkonzept her nutzbar? Andere Ideen zur Anordnung der Sanitärobjekte ? Würdet ihr die Dusche als Trockenbau mit Glastür oder komplett als Glaskabine (mehr Licht, aber Putzaufwand) machen?
Weiteres Thema: Was sagt ihr zur Küche und möglicher Ausrichtung der möbel/Halbinsel?
Wenn Ihr verzichten müsst, auf welche Details/Ausbauten
-könnt Ihr verzichten:
-könnt Ihr nicht verzichten: Badewanne komplett weglassen ungern
Warum ist der Entwurf so geworden, wie er jetzt ist?
Unsere Wünsche wurden vom Planer in mehreren Iterationen umgesetzt.
Was macht ihn in Euren Augen besonders gut oder schlecht:
Für das relativ schmale Grundstück und Doppelhaushälfte-Format geben viele fixe Eckpunkte vor, sodass wenig Spiel bleibt, aber ich hoffe immer auf kreative Lösungen.
Klinkerhof86 schrieb:
wir haben ein Grundstück mit einem Nachbarhaus, an das wir als Doppelhaushälfte anbauen würden.
Ich bin gerade spezifisch an den Bädern dran und würde mich über Feedback freuen. Die genauere Fragestellung habe ich weiter unten erläutert.Das geht mir zu schnell bzw. scheint mir gedanklich zu weit gesprungen.Klinkerhof86 schrieb:
weitere Vorgaben: Anbau an eine bestehende Doppelhaushälfte; Gesamtbreite Grundstück: 11m; deshalb maximale Hausbreite 8m & Haustiefe 10m
[...] Stilrichtung, Dachform, Gebäudetyp: Dachform und Größe richtet sich am Nachbarn ausIch hege den Verdacht, da werde auf der Grundlage nicht ausreichend reflektierter Konzeptüberlegungen "verfeinert".Zeige mal das Nachbarhaus im Profil.
Und erläutere mal die Situation Gründung / Unterfangung und dergleichen.
https://www.instagram.com/11antgmxde/
https://www.linkedin.com/company/bauen-jetzt/
K
Klinkerhof8613.12.23 10:58ypg schrieb:
Gefällt Euch denn so der Entwurf? Ich mein, es sind 8 Meter in der Breite. Ich habe das Gefühl, da ist mehr heraus zu holen als einen Grundriss, der an 6 Meter erinnert?!Sind für alle Vorschläge offen, haben noch nicht so oft gebaut (nie...)
Eine Zusatzinfo: Wir arbeiten mit der Auflage, dass das Haus in 2 Wohneinheiten getrennt nutzbar sein kann (auch wenn es aktuell nicht ansteht). Daraus ergibt sich das Technik separat begehbar sein muss; EG als als eine Wohnheit abtrennbar wäre (- Zugang zum Gäste-WC wäre durch Küche und Mini-Vorflur möglich; jeweils vor Treppenhaus und Wohn-Essbereich kann eine Eingangstür eingebaut werden). Diese Maßgaben stehen außer Frage.
H
HeimatBauer13.12.23 11:07Oh. Echte und volle Abtrennbarkeit ändert doch einiges.
Klinkerhof86 schrieb:
haben noch nicht so oft gebaut (nie...)ja nu, deshalb schaut man sich ja Optionen an, was an alles auf 8x10 machen könnte. Musterhäuser, Häuser und Wohnungen von Freunden, virtuelle Begehungen von Hausanbieter … wenn allerdings Bedürfnisse nicht geweckt werden wollen, ist auch ok.Klinkerhof86 schrieb:
Wir arbeiten mit der Auflage, dass das Haus in 2 Wohneinheiten getrennt nutzbar sein kannWer stellt den die Auflage?Klinkerhof86 schrieb:
EG als als eine Wohnheit abtrennbar wäre (- Zugang zum Gäste-WC wäre durch Küche und Mini-Vorflur möglich;Und wer darf sich dann über das Mini-WC freuen? Ne, mal ehrlich, für wen soll denn das EG dann sein?Für mal schnell drauf schauen gehen die Bilder. Sich mit Bad und co zubeschäftigen, da schmerzen ehrlich gesagt meine Augen 🙁
Ähnliche Themen