ᐅ Doppelhaushälfte 144qm Bitte um Verbesserungsvorschläge
Erstellt am: 29.03.20 11:16
A
AlbertKamika29.03.20 11:16Ich habe den Leitfanden ausgefüllt und würde mich sehr freuen, wenn es Verbesserungsvorschläge und Kommentare zu unserem Entwurf gibt.
Bebauungsplan/Einschränkungen
Größe des Grundstücks: 400qm
Hang: leichte Hanglage: abfallend von links nach rechts (0,4m), wenn man von vorne auf das Haus schaut und abfallend vom vorderen Bereich des Grundstücks nach hinten (0,7m)
Grundflächenzahl: Das weiß ich nicht, aber die Außenwände können nicht mehr verändert werden, es geht hier nur noch um die Innenraumplanung. Teilweise sind die Außenwände durch den Bebauungsplan festgelegt, teilweise durch unser Budget.
Geschossflächenzahl: s. Grundflächenzahl
Baufenster, Baulinie und -grenze: 6m Abstand von der vorderen Grundstücksgrenze, da Doppelhaushälfte 0m von der rechten Grundstücksgrenze und 4,5m von der linken Grundstücksgrenze.
Neubaugebiet
Anzahl Stellplatz: 1 bis 2
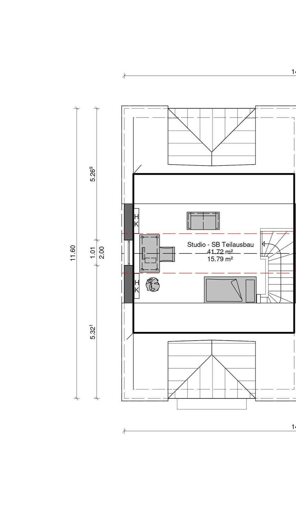
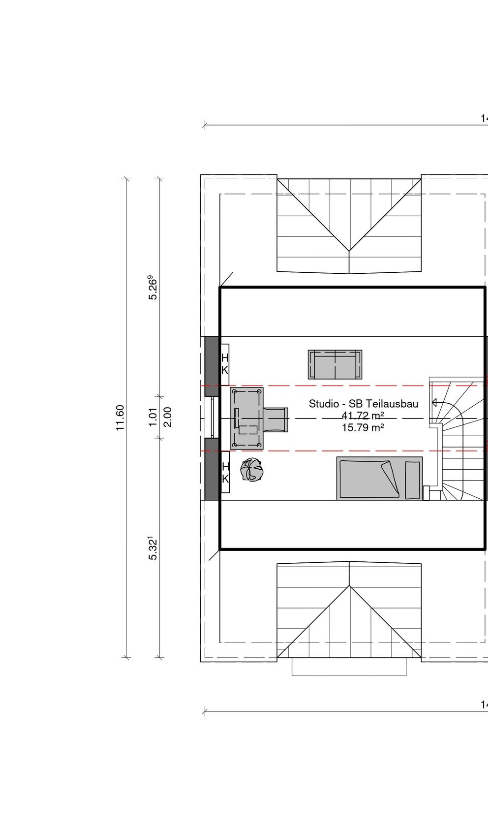
Geschossigkeit: 1 Vollgeschoss (EG), 1 Geschoss mit Schräge (Kniestock auch durch Bebauungsplan festgelegt und eine Änderung daher nicht möglich), 1 Spitzboden (Ausbau als Wohnraum), 1 Keller (Nutzkeller)
Dachform: Satteldach 40 Prozent Dachneigung im Bebauungsplan festgelegt
Stilrichtung: modern
Ausrichtung: Die Terrasse/Garten liegen nach Nordwesten
Maximale Höhen/Begrenzungen: die Außenwände, das Dach und die Höhe des Hauses sind im Bebauungsplan festgelegt
weitere Vorgaben
Anforderungen der Bauherren
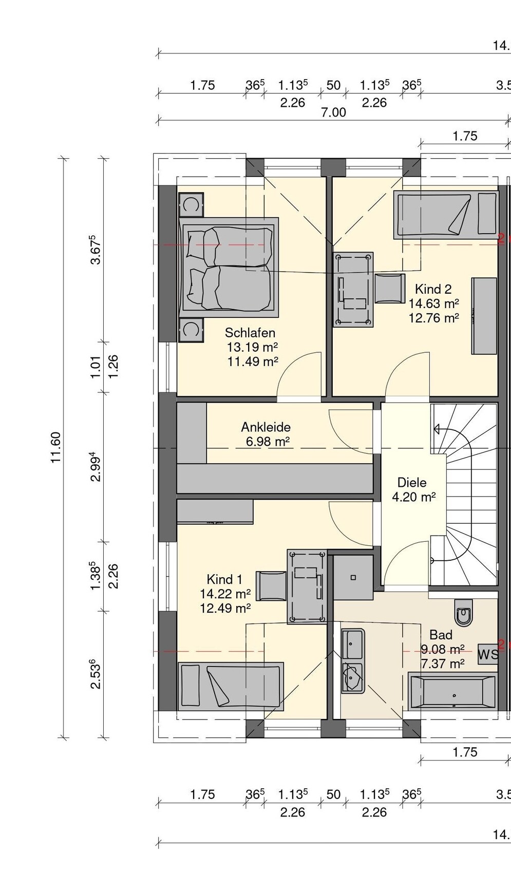
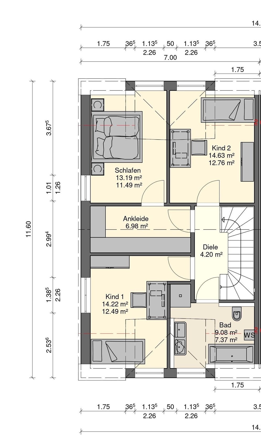
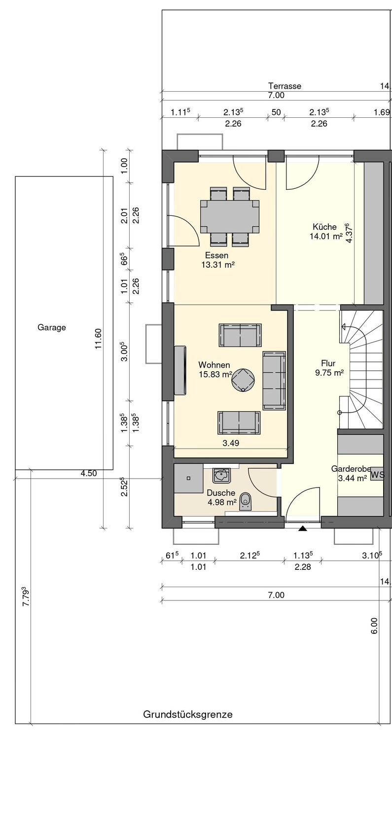
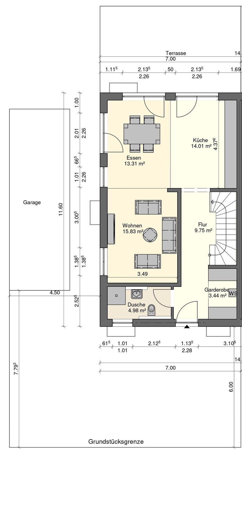
Stilrichtung, Dachform, Gebäudetyp: Doppelhaushälfte, modern und offen, die Küche mit Kochinsel und der Essplatz sollten im Mittelpunkt stehen. Wir benötigen 3 Schlafzimmer und 1 Büro. Das Treppenhaus sollte geschlossen sein.
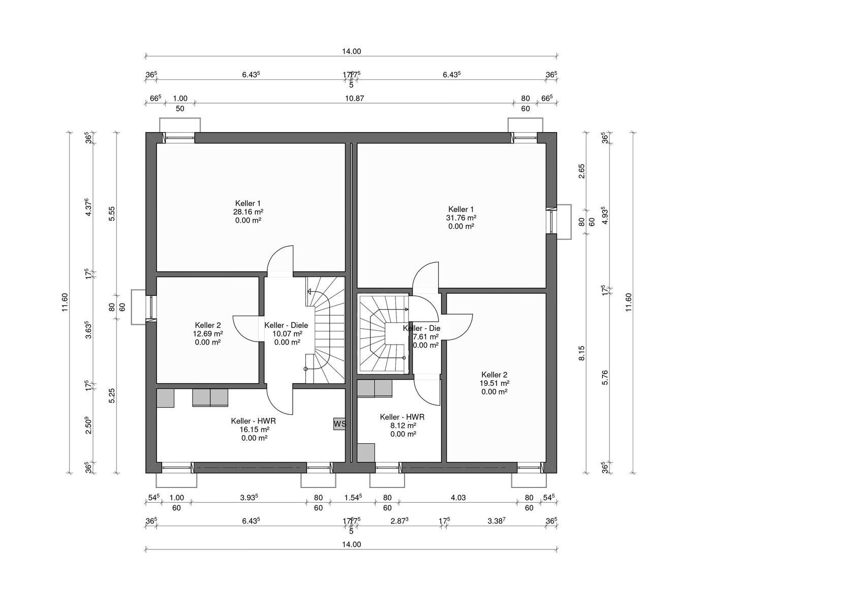
Keller: Ja, Nutzkeller muss sein.
Anzahl der Personen, Alter: 2 Erwachsene, 2 Kinder
Raumbedarf im EG, OG: EG: Großes Wohn-Ess-Zimmer/Küche, 1 Bad mit Dusche, Flurbereich so, dass man Jacken und Schuhe gut unterbekommt ohne das übliche gequetsche. OG: 3 Schlafzimmer, Spitzboden: Büro
Büro: Homeoffice?
Schlafgäste pro Jahr: wenig
offene oder geschlossene Architektur: teils/teils s. Stilrichtung
konservativ oder moderne Bauweise: modern
offene Küche, Kochinsel: ja, Kochinsel
Anzahl Essplätze: 4 für uns plus 2 für Besuch = 6
Kamin: Nein
Musik/Stereowand: Nein
Balkon, Dachterrasse: Nein
Garage, Carport: Garage
Nutzgarten, Treibhaus: Nein
weitere Wünsche/Besonderheiten/Tagesablauf, gern auch Begründungen, warum dieses oder das nicht sein soll: Wir wollten ein Ankleidezimmer, damit das Umziehen von statten gehen kann ohne den Ehepartner zu wecken, da wir zu unterschiedlichen Zeiten aufstehen.
Hausentwurf
Von wem stammt die Planung:
-Planer eines Bauunternehmens: Ja
Was gefällt besonders? Warum?: der offene Wohn-Ess-Bereich mit Kochinsel (die Kochinsel ist nicht eingezeichnet, aber ich denke es ist klar wo sie hin kommt). Im Durchgang Flur-zum-Wohnzimmer wollten wir eine große Glas-Metall-Türe, damit der Flur nicht so dunkel ist.
Was gefällt nicht? Warum?: Ich denke viele Details sind noch unausgegoren.
Preisschätzung lt Architekt/Planer: 310.000
Persönliches Preislimit fürs Haus, inkl Ausstattung: 310.000
favorisierte Heiztechnik: Wärmepumpe und Fußbodenheizung
Wenn Ihr verzichten müsst, auf welche Details/Ausbauten
-könnt Ihr verzichten: Ich denke wir haben es schon recht schlicht gehalten, verzichten können wir auf nichts.
-könnt Ihr nicht verzichten: Kochinsel, Büro im Spitzboden, Dusche im EG und OG, Ankleidezimmer
Warum ist der Entwurf so geworden, wie er jetzt ist? ZB
Standardentwurf vom Planer? Nein, der Entwurf vom EG ist teilweise von uns und teilweise vom Planer. Wir wollten vor allem die Kochinsel und einen gemütliche TV-Bereich, der aber nicht im Mittelpunkt steht, sondern eher als „Nische“, während die Küche im Mittelpunkt stehen sollte. Das ganze ging nur mit einer schmalen Treppe, da die Außenwände ja feststehen. Um die Treppe herum wurde dann das OG vom Planer des BU konzipiert.
Was macht ihn in Euren Augen besonders gut oder schlecht? Das Wohnzimmer wurde nach unseren Wünschen umgesetzt. Allerdings finde ich nun das Elternschlafzimmer etwas klein geraten, was an unserem Wunsch eines Ankleidezimmers liegt.
Was ist die wichtigste/grundlegende Frage zum Grundriss in 130 Zeichen zusammengefasst?
Die Außenwände können wir nicht mehr verändern. Es handelt sich um eine Doppelhaushälfte mit 7 Meter breite und 11,60 Meter Länge. Unsere Wünsche wurden zwar umgesetzt, dennoch finde ich den Entwurf irgendwie unausgegoren. Was kann man besser machen?
Zusätzlich 3 konkrete Fragen: Im EG: waschbecken und Klo tauschen? Geht das? Könnte man den Flur noch etwas schmaler machen zugunsten des Wohnbereichs, oder ist er dann zu schmal?
Im OG: Dusche und Klo tauschen? Geht das?
DANKE!!!
Hier noch ein Hinweis: Urheberrechte an den Planungsergebnissen liegen beim Projektierungsunternehmen.







Bebauungsplan/Einschränkungen
Größe des Grundstücks: 400qm
Hang: leichte Hanglage: abfallend von links nach rechts (0,4m), wenn man von vorne auf das Haus schaut und abfallend vom vorderen Bereich des Grundstücks nach hinten (0,7m)
Grundflächenzahl: Das weiß ich nicht, aber die Außenwände können nicht mehr verändert werden, es geht hier nur noch um die Innenraumplanung. Teilweise sind die Außenwände durch den Bebauungsplan festgelegt, teilweise durch unser Budget.
Geschossflächenzahl: s. Grundflächenzahl
Baufenster, Baulinie und -grenze: 6m Abstand von der vorderen Grundstücksgrenze, da Doppelhaushälfte 0m von der rechten Grundstücksgrenze und 4,5m von der linken Grundstücksgrenze.
Neubaugebiet
Anzahl Stellplatz: 1 bis 2
Geschossigkeit: 1 Vollgeschoss (EG), 1 Geschoss mit Schräge (Kniestock auch durch Bebauungsplan festgelegt und eine Änderung daher nicht möglich), 1 Spitzboden (Ausbau als Wohnraum), 1 Keller (Nutzkeller)
Dachform: Satteldach 40 Prozent Dachneigung im Bebauungsplan festgelegt
Stilrichtung: modern
Ausrichtung: Die Terrasse/Garten liegen nach Nordwesten
Maximale Höhen/Begrenzungen: die Außenwände, das Dach und die Höhe des Hauses sind im Bebauungsplan festgelegt
weitere Vorgaben
Anforderungen der Bauherren
Stilrichtung, Dachform, Gebäudetyp: Doppelhaushälfte, modern und offen, die Küche mit Kochinsel und der Essplatz sollten im Mittelpunkt stehen. Wir benötigen 3 Schlafzimmer und 1 Büro. Das Treppenhaus sollte geschlossen sein.
Keller: Ja, Nutzkeller muss sein.
Anzahl der Personen, Alter: 2 Erwachsene, 2 Kinder
Raumbedarf im EG, OG: EG: Großes Wohn-Ess-Zimmer/Küche, 1 Bad mit Dusche, Flurbereich so, dass man Jacken und Schuhe gut unterbekommt ohne das übliche gequetsche. OG: 3 Schlafzimmer, Spitzboden: Büro
Büro: Homeoffice?
Schlafgäste pro Jahr: wenig
offene oder geschlossene Architektur: teils/teils s. Stilrichtung
konservativ oder moderne Bauweise: modern
offene Küche, Kochinsel: ja, Kochinsel
Anzahl Essplätze: 4 für uns plus 2 für Besuch = 6
Kamin: Nein
Musik/Stereowand: Nein
Balkon, Dachterrasse: Nein
Garage, Carport: Garage
Nutzgarten, Treibhaus: Nein
weitere Wünsche/Besonderheiten/Tagesablauf, gern auch Begründungen, warum dieses oder das nicht sein soll: Wir wollten ein Ankleidezimmer, damit das Umziehen von statten gehen kann ohne den Ehepartner zu wecken, da wir zu unterschiedlichen Zeiten aufstehen.
Hausentwurf
Von wem stammt die Planung:
-Planer eines Bauunternehmens: Ja
Was gefällt besonders? Warum?: der offene Wohn-Ess-Bereich mit Kochinsel (die Kochinsel ist nicht eingezeichnet, aber ich denke es ist klar wo sie hin kommt). Im Durchgang Flur-zum-Wohnzimmer wollten wir eine große Glas-Metall-Türe, damit der Flur nicht so dunkel ist.
Was gefällt nicht? Warum?: Ich denke viele Details sind noch unausgegoren.
Preisschätzung lt Architekt/Planer: 310.000
Persönliches Preislimit fürs Haus, inkl Ausstattung: 310.000
favorisierte Heiztechnik: Wärmepumpe und Fußbodenheizung
Wenn Ihr verzichten müsst, auf welche Details/Ausbauten
-könnt Ihr verzichten: Ich denke wir haben es schon recht schlicht gehalten, verzichten können wir auf nichts.
-könnt Ihr nicht verzichten: Kochinsel, Büro im Spitzboden, Dusche im EG und OG, Ankleidezimmer
Warum ist der Entwurf so geworden, wie er jetzt ist? ZB
Standardentwurf vom Planer? Nein, der Entwurf vom EG ist teilweise von uns und teilweise vom Planer. Wir wollten vor allem die Kochinsel und einen gemütliche TV-Bereich, der aber nicht im Mittelpunkt steht, sondern eher als „Nische“, während die Küche im Mittelpunkt stehen sollte. Das ganze ging nur mit einer schmalen Treppe, da die Außenwände ja feststehen. Um die Treppe herum wurde dann das OG vom Planer des BU konzipiert.
Was macht ihn in Euren Augen besonders gut oder schlecht? Das Wohnzimmer wurde nach unseren Wünschen umgesetzt. Allerdings finde ich nun das Elternschlafzimmer etwas klein geraten, was an unserem Wunsch eines Ankleidezimmers liegt.
Was ist die wichtigste/grundlegende Frage zum Grundriss in 130 Zeichen zusammengefasst?
Die Außenwände können wir nicht mehr verändern. Es handelt sich um eine Doppelhaushälfte mit 7 Meter breite und 11,60 Meter Länge. Unsere Wünsche wurden zwar umgesetzt, dennoch finde ich den Entwurf irgendwie unausgegoren. Was kann man besser machen?
Zusätzlich 3 konkrete Fragen: Im EG: waschbecken und Klo tauschen? Geht das? Könnte man den Flur noch etwas schmaler machen zugunsten des Wohnbereichs, oder ist er dann zu schmal?
Im OG: Dusche und Klo tauschen? Geht das?
DANKE!!!
Hier noch ein Hinweis: Urheberrechte an den Planungsergebnissen liegen beim Projektierungsunternehmen.
A
AlbertKamika29.03.20 13:15haydee schrieb:
Was ist bei dem 310k alles enthalten?
Nur das Haus selber, also nicht Außenanlagen oder Garage. Im Haus drinnen ist alles enthalten (Heizung, Sanitär, Elektronik, Treppen etc.), außer die Bodenbeläge.
Zeichnet bitte die gewünschte bzw. vorhandene Möblierung in den Grundriss ein. Im EG könnte es etwas zwicken.
Die Möblierung stimmt soweit. Nur die Kochinsel fehlt.
Im OG wirkt die Dusche recht schmal.
Ja, das finde ich auch. Reicht die Nische für ein WC?
Ich finde den Grundriss nicht schlecht.A
AlbertKamika29.03.20 13:18hanse987 schrieb:
Ich bin zwar ein Garagenfan, aber hier würde ich nur einen Carport mit kleinem Geräteschuppen machen. Dann verbaut ihr euch nicht die lange Seite des EG total.Die Garage brauchen wir. Aber wir dürfen sie noch ca. 1,50m nach vorne ziehen, so dass sie auf gleicher Höhe wie die Frontseite des Hauses ist.Ähnliche Themen