Hallo zusammen,
mein Verlobter und ich befinden uns derzeit in der Planung für unser zukünftiges Haus und interessieren uns für eine Doppelhaushälfte, die von einer Hausbaufirma als Komplettpaket (Grundstück+ Massivhaus) angeboten wird. Wir haben einige Anpassungen am Grundriss vorgenommen, basierend auf dem Plan der Baufirma, sind uns jedoch unsicher, ob dies sinnvoll ist. Daher würden wir gerne Eure Meinung dazu hören. Wir freuen uns auf Eure Kommentare!
Bebauungsplan/Einschränkungen
Größe des Grundstücks: 290m²
Hang: nein
Dachgauben sind bereits maximal ausgereizt
Anforderungen der Bauherren
Keller, Geschosse: Keller + EG + OG + DG
Anzahl der Personen, Alter: 2, Mitte dreißig
Raumbedarf im EG, OG:
EG: Wohn-Ess-Kochbereich, (Gäste-)WC, Diele;
OG&DG: Wannen-Bad, Dusch-Bad, Schlafzimmer, Ankleide, 2x Kinderzimmer 1x Homeoffice/Gäste;
Büro: Familiennutzung oder Homeoffice? -> Home Office
Schlafgäste pro Jahr: mehrmals pro Jahr, teilweise über zwei drei Wochen
offene oder geschlossene Architektur: offene Architektur
konservativ oder moderne Bauweise: modern/minimalistisch
offene Küche, Kochinsel: offene Küche mit Halbinsel
Anzahl Essplätze: 4-8
Kamin: ja
Musik/Stereowand: nein
Balkon, Dachterrasse: nein
Garage, Carport: Doppel-Carport
Nutzgarten, Treibhaus: nein
weitere Wünsche/Besonderheiten/Tagesablauf, gern auch Begründungen, warum dieses oder das nicht sein soll
Hausentwurf
Von wem stammt die Planung:
Vom Architekten des Projektleiters mit unseren Wünschen
Was gefällt besonders? Warum?
Standardentwurf vom Planer?
Entsprechende/Welche Wünsche wurden vom Architekten umgesetzt?
Ein Gemisch aus vielen Beispielen aus div. Magazinen...
Was macht ihn in Euren Augen besonders gut oder schlecht?
Aufbauend auf einem Vorschlag des Projektleiters haben wir diverse Änderungen vorgenommen:
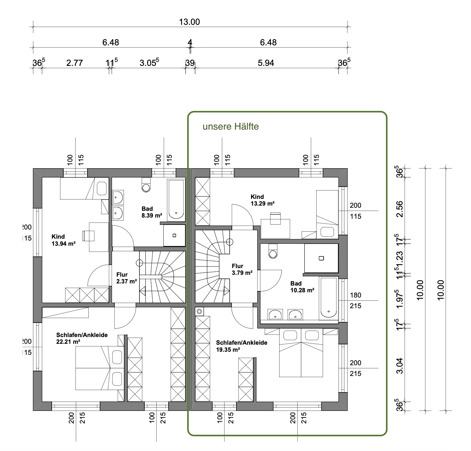
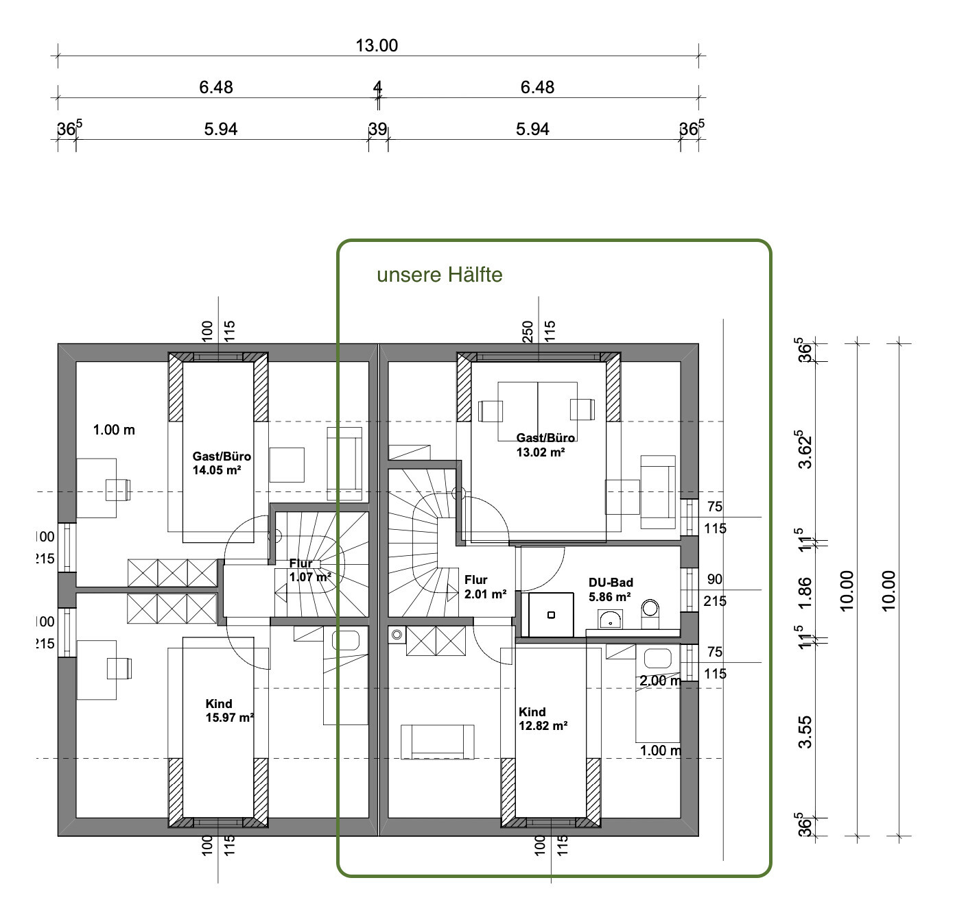
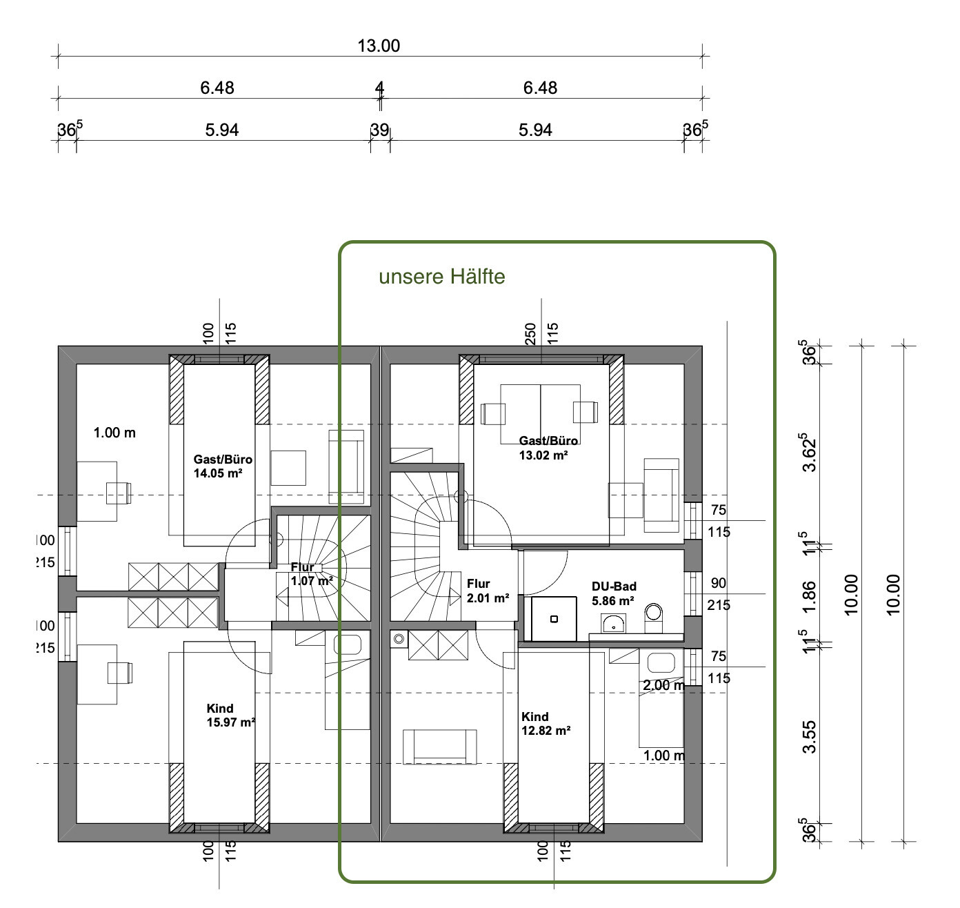
Ist eine sinnvollere Aufteilung des OG und DG möglich? Ist die Dusche im DG notwendig, wenn für das DG zwei Kinderzimmer geplant sind?
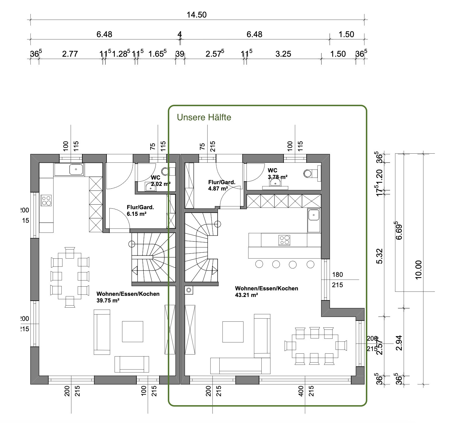
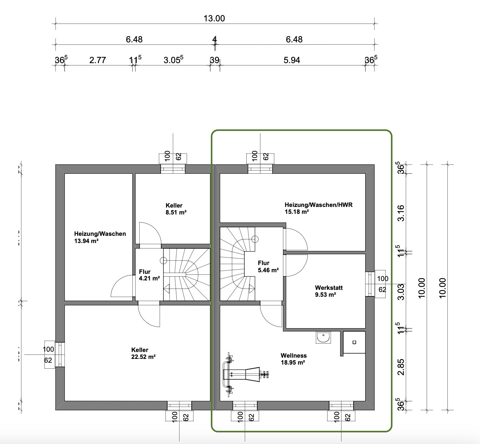
Anhang: Grundrisse (rechts: unsere Hälfte; links: ursprünglicher Plan gespiegelt)







mein Verlobter und ich befinden uns derzeit in der Planung für unser zukünftiges Haus und interessieren uns für eine Doppelhaushälfte, die von einer Hausbaufirma als Komplettpaket (Grundstück+ Massivhaus) angeboten wird. Wir haben einige Anpassungen am Grundriss vorgenommen, basierend auf dem Plan der Baufirma, sind uns jedoch unsicher, ob dies sinnvoll ist. Daher würden wir gerne Eure Meinung dazu hören. Wir freuen uns auf Eure Kommentare!
Bebauungsplan/Einschränkungen
Größe des Grundstücks: 290m²
Hang: nein
Dachgauben sind bereits maximal ausgereizt
Anforderungen der Bauherren
Keller, Geschosse: Keller + EG + OG + DG
Anzahl der Personen, Alter: 2, Mitte dreißig
Raumbedarf im EG, OG:
EG: Wohn-Ess-Kochbereich, (Gäste-)WC, Diele;
OG&DG: Wannen-Bad, Dusch-Bad, Schlafzimmer, Ankleide, 2x Kinderzimmer 1x Homeoffice/Gäste;
Büro: Familiennutzung oder Homeoffice? -> Home Office
Schlafgäste pro Jahr: mehrmals pro Jahr, teilweise über zwei drei Wochen
offene oder geschlossene Architektur: offene Architektur
konservativ oder moderne Bauweise: modern/minimalistisch
offene Küche, Kochinsel: offene Küche mit Halbinsel
Anzahl Essplätze: 4-8
Kamin: ja
Musik/Stereowand: nein
Balkon, Dachterrasse: nein
Garage, Carport: Doppel-Carport
Nutzgarten, Treibhaus: nein
weitere Wünsche/Besonderheiten/Tagesablauf, gern auch Begründungen, warum dieses oder das nicht sein soll
Hausentwurf
Von wem stammt die Planung:
Vom Architekten des Projektleiters mit unseren Wünschen
Was gefällt besonders? Warum?
- Großer Wohn-Ess-Kochbereich mit großer Küche, da wir viel zu Hause sind und oft zwei mal am Tag kochen
- Große Fenster im EG und im Schlafzimmer
- Platz für Home Office (wir arbeiten ca. 60-80% im Home Office)
- Ankleide mit schminktisch, da ein Frühaufsteher und eine Nachteule
- Südausrichtung vom Schlafzimmer vielleicht unnötig
- Nördliches Zimmer im DG sehr klein, außerdem Nische hinter der Treppe in diesem Zimmer eher unbrauchbar
Standardentwurf vom Planer?
Entsprechende/Welche Wünsche wurden vom Architekten umgesetzt?
Ein Gemisch aus vielen Beispielen aus div. Magazinen...
Was macht ihn in Euren Augen besonders gut oder schlecht?
Aufbauend auf einem Vorschlag des Projektleiters haben wir diverse Änderungen vorgenommen:
- den Erker im EG dazu geplant
- eine längere, dafür schmalere Treppe gewählt, damit Platz für die Küchenhalbinsel entsteht
- das Bad im OG vergrößert, damit eine größere Dusche darin Platz findet
- Ein Dusch-Bad im OG dazu geplant
- Die nördliche Dachgaube vergrößert
Ist eine sinnvollere Aufteilung des OG und DG möglich? Ist die Dusche im DG notwendig, wenn für das DG zwei Kinderzimmer geplant sind?
Anhang: Grundrisse (rechts: unsere Hälfte; links: ursprünglicher Plan gespiegelt)
YHB_2024 schrieb:
Grundrisse (rechts: unsere Hälfte; links: ursprünglicher Plan gespiegelt)Wer lesen kann, ist klar im Vorteil.Natürlich kann man das DG insgesamt mit zwei netten Zimmer ausrichten, aber es werden nun mal keine adäquaten schöne Räume, die zum Tanzen einladen, sondern eben recht kleine Räume unter Dach, die eher mit Gemütlichkeit punkten als mit Spielfläche oder Großzügigkeit.
Nun braucht ein Kinderzimmer auch nicht unbedingt großzügig zu sein, aber es sollte doch angenehm geräumig mit einem Schreibplatz, Schlafecke, Schrank und etwas Fußbodenfläche punkten, damit ein Kind in diesem Raum mind. 18 Jahre seine Persönlichkeit entfalten kann. Ohne Drempel und mit den Maßen sehe ich für das Kind gerade mal knappe 9qm Fläche. Bauträger tragen gern die Bodenfläche als Qm ein, in diesem Fall nimmt er wohl zw 1 und 2 Meter Höhe 1/2. Das kann man machen und funktioniert, wenn der Raum Ausgleichsfläche hat oder groß genug ist.
Ich habe schon beim Betrachten des OGs gedacht, dass man merkt, dass Ihr noch keine Kinder habt und fand das Kinderzimmer dort schon nicht prall, wenn man das mal mit dem Elternbereich vergleicht. Ihr schlaft nur in dem Raum, das Kind lebt im Kinderzimmer und macht dort alles.
DG-Kinderzimmer ist natürlich der Supergau…
Ich gebe mal den Tipp,
a) das DG für die nächsten 30 Jahre als Elternbereich zu beziehen. Wie man Schrankfläche unter Dachschrägen generiert, kann Dir @goalkeeper sagen oder zeigen - der ist auch zugunsten der Kinder unter Dach gelandet. Wenn man das Bad weglässt (OG ist ja schnell erreichbar), dann hat man zwei Räume für Arbeiten und Schlafen.
Im OG kommt dann Gast und 2 Kinderzimmer und das Bad - könnte allerdings auch knapp werden bei dem Luxus, Gast und Büro getrennt zu planen.
Oder
b) oder im DG die beiden Kinderzimmer, aber auch ohne Bad (So wie geplant vom BT). Die Fläche reicht ansonsten nicht.
Grundsätzlich gilt: Kinder in die hellsten Räume, Bäder übereinander. Für den Toilettengang kann ein Mensch, ob jung oder alt, Treppen steigen. Kinderbad muss nicht sein. Letztendlich wirst Du es sein, die das putzen muss wie auch in gebückter Haltung unter Dachschrägen Betten machen oder Hausaufgabenhilfe sein.
Da ich in einem 2,50 breiten Erker für ein Essbereich keinen Mehrwert sehe, könnte man darüber nachdenken, den Erker in das OG zu setzen. Ergibt auch gleich eine Terrassenüberdachung. Statisch natürlich etwas aufwändiger.
Eingangsbereich finde ich gut gelöst, könnte aber Schwierigkeiten mit Kinderwagen/-Karre geben. Türen im Flur sind ein Problem, auch wenn der Planer mitgedacht hat.
Terrassentüren sind sicherlich planunten? Die sind verstellt.
Bodentiefes Fenster hinter der Badewanne ist sicherlich ein Versehen.
Terrasse(n) sind mit Lichtschächten - das ist nicht so schön.
G
goalkeeper21.01.24 22:47Wir haben ja zwei Kids und daher im 1. OG zwei Kinderzimmer, das Hauptbad sowie unser Büro und wohnen so mittlerweile fast vier Jahre in unserem REH. Ich hänge mal die Grundrisse vom OG und DG mit an.
Beide Kinderzimmer auf einem Stockwerk ist bei zwei Kids absolut klasse und auch für die Eltern logistisch einfacher. Beide spielen ja auf dem gleichen Geschoss, dann muss der eine auf Toilette und der andere braucht beim anziehen Hilfe, schon rennt ihr bei eurem Grundriss hoch und herunter. Auch was das Thema zu Bett gehen bzw. dafür fertig machen angeht, ist bei unterschiedlichen Stockwerken echt doof. Da die Kids nun ein wenig älter sind, spielen die nun öfters in ihren Zimmern und einer von uns ist im Büro.
Außerdem war es uns wichtig, dass der Schlafbereich vom Kinderbereich getrennt ist. Bei Besuch ist ganz klar, dass die Kids im DG nichts zu suchen haben und daher auch dort keine Unordnung entsteht. Außerdem kann man sich Abends, wenn man natürlich später ins Bett geht, deutlich freier bewegen und muss nicht flüstern oder auf Zehenspitzen gehen, wenn man oben noch etwas verräumt oder wie bei uns, noch die Wäsche macht.
Und noch etwas: eine Ankleide ist vllt. nice to have - aber im kleinen Reihen-/bzw. Doppelhaushälfte verschenkter Platz, den ich sinnvoller nutzen würde.


Beide Kinderzimmer auf einem Stockwerk ist bei zwei Kids absolut klasse und auch für die Eltern logistisch einfacher. Beide spielen ja auf dem gleichen Geschoss, dann muss der eine auf Toilette und der andere braucht beim anziehen Hilfe, schon rennt ihr bei eurem Grundriss hoch und herunter. Auch was das Thema zu Bett gehen bzw. dafür fertig machen angeht, ist bei unterschiedlichen Stockwerken echt doof. Da die Kids nun ein wenig älter sind, spielen die nun öfters in ihren Zimmern und einer von uns ist im Büro.
Außerdem war es uns wichtig, dass der Schlafbereich vom Kinderbereich getrennt ist. Bei Besuch ist ganz klar, dass die Kids im DG nichts zu suchen haben und daher auch dort keine Unordnung entsteht. Außerdem kann man sich Abends, wenn man natürlich später ins Bett geht, deutlich freier bewegen und muss nicht flüstern oder auf Zehenspitzen gehen, wenn man oben noch etwas verräumt oder wie bei uns, noch die Wäsche macht.
Und noch etwas: eine Ankleide ist vllt. nice to have - aber im kleinen Reihen-/bzw. Doppelhaushälfte verschenkter Platz, den ich sinnvoller nutzen würde.
YHB_2024 schrieb:
Wir haben einige Anpassungen am Grundriss vorgenommen, basierend auf dem Plan der Baufirma,Ich denke, das kann man so machen. Das Kinderzimmer finde ich weniger attraktiv geschnitten als im Original.goalkeeper schrieb:
Und noch etwas: eine Ankleide ist vllt. nice to have - aber im kleinen Reihen-/bzw. Doppelhaushälfte verschenkter Platz, den ich sinnvoller nutzen würde.Das sagst Du vermutlich als nichtschminkender Frühaufsteher.https://www.instagram.com/11antgmxde/
https://www.linkedin.com/company/bauen-jetzt/
Das Kinderzimmer oben ist aus meiner Sicht nicht wirklich nutzbar, zumindest wenn man plant, hier ein Kind >10 Jahre alt unterzubringen. Man kann als normal gewachsener Mensch hier nur bis zur Mitte des Raumes stehen.
Elternbereich im DG inkl. Ankleide mit kleinem Elternbad und Schlafen fände ich präferabel und vermutlich platzmäßig auch machbar. Kinderzimmer, Büro/Gast und kleineres Bad ins OG. Wanne ins Bad im DG unter die Schräge.
Ansonsten würde nochmal reflektieren ob der Luxus von "Wellness"+ Werkstatt im Keller in dieser Größe verzichtbar ist, ansonsten könnte man oben etwas entzerren und ggf Büro/Gast hier unterbringen?
Ich sehe hier die Gefahr, zu viele Wünsche auf zu kleine Raum unterzubringen, wobei gewisse Räume dann kaum - oder nur sehr schwer - nutzbar werden.
Elternbereich im DG inkl. Ankleide mit kleinem Elternbad und Schlafen fände ich präferabel und vermutlich platzmäßig auch machbar. Kinderzimmer, Büro/Gast und kleineres Bad ins OG. Wanne ins Bad im DG unter die Schräge.
Ansonsten würde nochmal reflektieren ob der Luxus von "Wellness"+ Werkstatt im Keller in dieser Größe verzichtbar ist, ansonsten könnte man oben etwas entzerren und ggf Büro/Gast hier unterbringen?
Ich sehe hier die Gefahr, zu viele Wünsche auf zu kleine Raum unterzubringen, wobei gewisse Räume dann kaum - oder nur sehr schwer - nutzbar werden.
Ähnliche Themen