ᐅ Grundriss Bungalow ca. 135m² Eure Meinungen?
Erstellt am: 31.01.2022 12:08
Henner77 31.01.2022 12:08
Hallo,
ich würde gern Eure Meinungen zu unserem geplanten Grundriss hören.
Wir haben ihn skizziert und so einem Architekten vorgelegt.
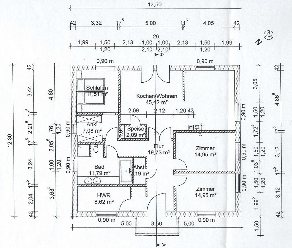
Dieser hat ihn quasi 1:1 übernommen und maßstabsgerecht gezeichnet (siehe unten)
Bebauungsplan/Einschränkungen
Größe des Grundstücks 1200m²
Hang nein
Grundflächenzahl
Geschossflächenzahl 0,3
Baufenster, Baulinie und -grenze
Randbebauung
Anzahl Stellplatz 2
Geschossigkeit 1
Dachform Walmdach
Stilrichtung Bungalow
Ausrichtung
Maximale Höhen/Begrenzungen
weitere Vorgaben
Anforderungen der Bauherren
Stilrichtung, Dachform, Gebäudetyp Bungalow quadratisch, Walmdach, 25 Grad Dachneigung
Keller, Geschosse ohne Keller
Anzahl der Personen, Alter 2 Erwachsene, 2 Kinder
Raumbedarf im EG, OG 3 Schlafzimmer
offener zentraler Tagesbereich (Küche mit Esszimmer), Wohnzimmer daneben
Kochinsel
Kamin
Hausentwurf
Von wem stammt die Planung: uns selber
-Architekt
-Do-it-Yourself
Was gefällt besonders? Sichtachse Eingang --> Terrasse
nur 1 Bad
ggf. werden Anschlüsse in Abst. vorbereitet (zusatz WC mit waschbecken)
Warum ist der Entwurf so geworden, wie er jetzt ist?
Standardentwürfe der Hausbaufirmen gefielen uns nicht.
Das Grundstück besteht aus 3 Flurstücken (grün markiert)


ich würde gern Eure Meinungen zu unserem geplanten Grundriss hören.
Wir haben ihn skizziert und so einem Architekten vorgelegt.
Dieser hat ihn quasi 1:1 übernommen und maßstabsgerecht gezeichnet (siehe unten)
Bebauungsplan/Einschränkungen
Größe des Grundstücks 1200m²
Hang nein
Grundflächenzahl
Geschossflächenzahl 0,3
Baufenster, Baulinie und -grenze
Randbebauung
Anzahl Stellplatz 2
Geschossigkeit 1
Dachform Walmdach
Stilrichtung Bungalow
Ausrichtung
Maximale Höhen/Begrenzungen
weitere Vorgaben
Anforderungen der Bauherren
Stilrichtung, Dachform, Gebäudetyp Bungalow quadratisch, Walmdach, 25 Grad Dachneigung
Keller, Geschosse ohne Keller
Anzahl der Personen, Alter 2 Erwachsene, 2 Kinder
Raumbedarf im EG, OG 3 Schlafzimmer
offener zentraler Tagesbereich (Küche mit Esszimmer), Wohnzimmer daneben
Kochinsel
Kamin
Hausentwurf
Von wem stammt die Planung: uns selber
-Architekt
-Do-it-Yourself
Was gefällt besonders? Sichtachse Eingang --> Terrasse
nur 1 Bad
ggf. werden Anschlüsse in Abst. vorbereitet (zusatz WC mit waschbecken)
Warum ist der Entwurf so geworden, wie er jetzt ist?
Standardentwürfe der Hausbaufirmen gefielen uns nicht.
Das Grundstück besteht aus 3 Flurstücken (grün markiert)
haydee 31.01.2022 12:58
Ein bisschen dunkel der Wohn-Essbereich.
Wo soll die Garderobe hin?
Wie soll Kochen/Essen/Speis möbliert werden?
Bei den Kinderzimmern die Türe verschieben, so dass an die Wand noch ein schrank paßt.
Irgendwie stört mich die Mini Abstellkammer.
Wo soll die Garderobe hin?
Wie soll Kochen/Essen/Speis möbliert werden?
Bei den Kinderzimmern die Türe verschieben, so dass an die Wand noch ein schrank paßt.
Irgendwie stört mich die Mini Abstellkammer.
Mahri23 31.01.2022 14:08
sieht bei uns fast ähnlich aus. Nur das wir das Schlafzimmer,die Ankleide und das Bad nach rechts hinten verlegt haben.
Dafür einen großen Ess/Küchen & Wohnbereich mit Kochinsel. Mit freien Blick in den Garten/Terrasse und die angrenzenden Büsche und späteren Obstbäume.
Wir haben aber noch ein Gäste-WC mit Dusche für die beiden Gästezimmer vorn rechts. Und das auf 130 m² verteilt.
Dafür einen großen Ess/Küchen & Wohnbereich mit Kochinsel. Mit freien Blick in den Garten/Terrasse und die angrenzenden Büsche und späteren Obstbäume.
Wir haben aber noch ein Gäste-WC mit Dusche für die beiden Gästezimmer vorn rechts. Und das auf 130 m² verteilt.
Ibdk14 31.01.2022 14:14
Die Möblierung von Küche/Essen würde mich auch sehr interessieren. Ich kann mir nicht vorstellen, wie das mit den zwei Terrassentüren funktionieren soll. Auch ohne irgendwie nicht. Zeichnest du die geplanten Möbel bitte mal ein. Die Abtrennung zu Wohnen scheint auch eher hinderlich als nützlich. Ein Gäste-WC ist ein MUSS bei vier Personen. Kleine Fenster im Wohnraum. Schade, dass der Architekt nur eure Ideen abgemalt hat. Hatte er keine anderen Vorschläge?
Myrna_Loy 31.01.2022 14:16
Kinderzimmer mit Fenster nach Nordosten, Osten bei der Eingangstür? Schlafzimmer dafür zum Garten und mit Westseite? Würde ich nicht machen.
Ibdk14 31.01.2022 14:19
Kinderzimmer sind lt. Lageplan im Nordwesten, Eingang im Norden oder seh ich das falsch?
Ähnliche Themen