ᐅ REH - Grundrissplanung - Küche zu klein
Erstellt am: 22.04.20 09:46
Hallo Zusammen,
Wir bauen gerade unser Reiheneckhaus und sind im Grunde auch sehr zufrieden.
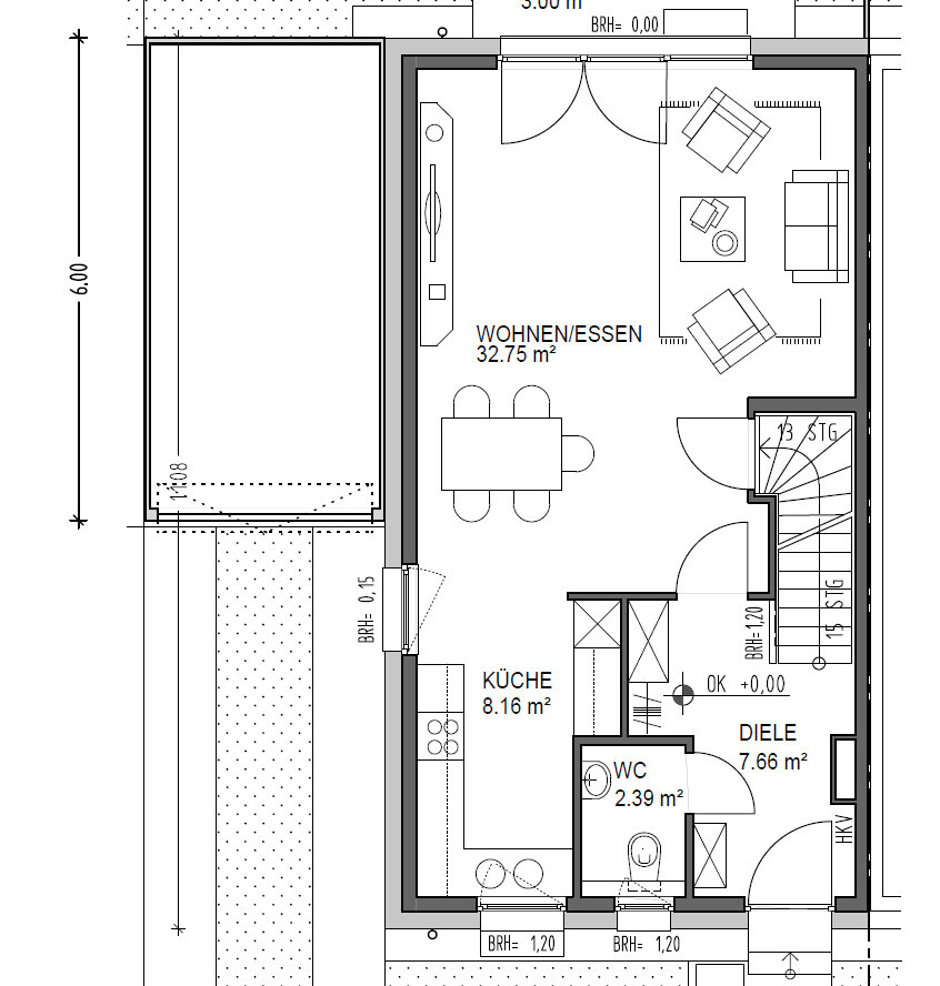
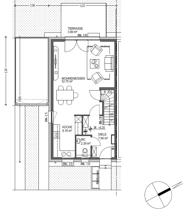
Uns stört nur die ungünstig geschnittene Küche (Siehe Anlage Grundriss). Wir wünschen uns eine große Küche
Wir sind für jede Idee dankbar und auch bereit auf das Gäste-WC zu verzichten, wenn dies überhaupt möglich ist.
Hab ich was vergessen?
Freu mich auf eure Zuschriften
Viele Grüße
Ouissam

Wir bauen gerade unser Reiheneckhaus und sind im Grunde auch sehr zufrieden.
Uns stört nur die ungünstig geschnittene Küche (Siehe Anlage Grundriss). Wir wünschen uns eine große Küche
Wir sind für jede Idee dankbar und auch bereit auf das Gäste-WC zu verzichten, wenn dies überhaupt möglich ist.
Hab ich was vergessen?
Freu mich auf eure Zuschriften
Viele Grüße
Ouissam
N
nordanney22.04.20 09:50djsame1 schrieb:
Wir sind für jede Idee dankbar und auch bereit auf das Gäste-WC zu verzichten, wenn dies überhaupt möglich ist.Dann macht das doch - ist aber total unpraktisch, wenn Ihr UND Eure Gäste immer nach oben ins Hauptbad müssen.Ansonsten seid Ihr zu spät dran. Wirklich etwas ändern könnt Ihr nicht, wenn Ihr nicht den gesamten Grundriss unten und oben (wg/Leitungsführungen) ändern möchtet (sofern das noch möglich wäre, Ihr baut ja schon). Außerdem ist die Küche nicht klein, sie passt zur Hausgröße.
Erstmal vielen Dank für die Antwort @nordanney . Ich muss hinzufügen, dass ich im Keller noch die Möglichkeit hätte ein Gäste-WC zu installieren.
Darüber hinaus ist im im 1.OG und 2.OG jeweils ein Badezimmer bereits miteingeplant.
Das Haus selber steht noch nicht. Es werden gerade erst die Erdarbeiten gemacht. Von daher...
Darüber hinaus ist im im 1.OG und 2.OG jeweils ein Badezimmer bereits miteingeplant.
Das Haus selber steht noch nicht. Es werden gerade erst die Erdarbeiten gemacht. Von daher...
Treppe weiter nach Plan-oben schieben? Damit gewinnt ihr Platz im Eingangsbereich und könnt das Gäste-WC verschieben.
Ungewöhnlich hier für ein REH ist, dass der Treppenaufgang eben nicht im Wohnbereich liegt. das kostet Euch Platz im Eingangsbereich.
EG ohne Gäste-WC ist aus meiner Sicht nicht akzeptabel. Die Zeiten haben wir hinter uns, in denen wir in den Keller oder in den Garten mussten ...
Ungewöhnlich hier für ein REH ist, dass der Treppenaufgang eben nicht im Wohnbereich liegt. das kostet Euch Platz im Eingangsbereich.
EG ohne Gäste-WC ist aus meiner Sicht nicht akzeptabel. Die Zeiten haben wir hinter uns, in denen wir in den Keller oder in den Garten mussten ...
Ähnliche Themen