ᐅ Neubau 200qm + Keller mit Mansarddach
Erstellt am: 06.06.21 22:31
B
Blue_guru06.06.21 22:31Hallo zusammen,
nach langem Mitlesen und einigen Planungsrunden möchten würden gerne einmal eure Meinungen zum aktuellen Planunsgstand hören.
Das Grundstück vor den Toren Hamburgs ist bereits vorhanden, ist aber sehr lang und schmal (breiteste Stelle 20m).
Bebauungsplan gibt es nicht, lediglich ein diagonal über das Grundstück verlaufendes Baufenster von 20m breite.
Aufgrund des recht hohen Grundwasserstandes durch den moorigen Boden wird der Keller nur ca. 1,50 tief in den Boden können, evtl auch nur 1m. das wird sich diese Woche klären wenn das Bodengutachten kommt.
Zu Beginn unserer Planungen planten wir noch mit 1 Büro und 2 Kinderzimmern, zwischenzeitlich hat sich die berufliche und persönliche Situation etwas geändert, so dass wir nun mit 2 Büros und eigentlich mit 4 Kinderzimmern planen müssten...
Bebauungsplan/Einschränkungen
Größe des Grundstücks: ca. 1000m², Breite 16-20m
Hang: leicht abfallend, ca 1m
Grundflächenzahl/GVZ: keine Vorgabe
Baufenster, Baulinie und -grenze: ja, Baufenster schräg übers Grundstück, 20m breite, ansonsten normal 3m Abstand
Anzahl Stellplatz: 2 (1,5 je Wohneinheit)
Geschossigkeit: max 12m
Dachform: keine Vorghabe
Stilrichtung: keine Vorgabe
Anforderungen der Bauherren
Stilrichtung, Gebäudetyp: klassich, Stadtvilla
Dachform: Mansarddach (sehr typisch für die Gegend)
Keller, Geschosse: Keller + EG + OG
Anzahl der Personen, Alter: 6 (zwei Erwachsene, 2 Kinder + Zwillinge coming soon 😀)
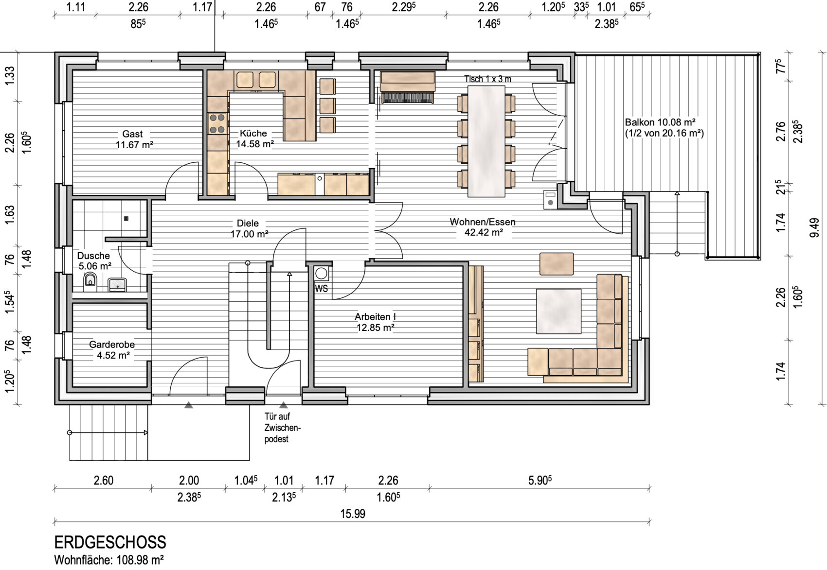
Raumbedarf im EG: Wohnzimmer, getrennte Küche, 2 Büros (da beide im Homeoffice arbeitend, eines als kombiniertes Gäste-Zimmer), Gäste-WC, ordentlich für Garderobe bei 6 Personen ein Muss
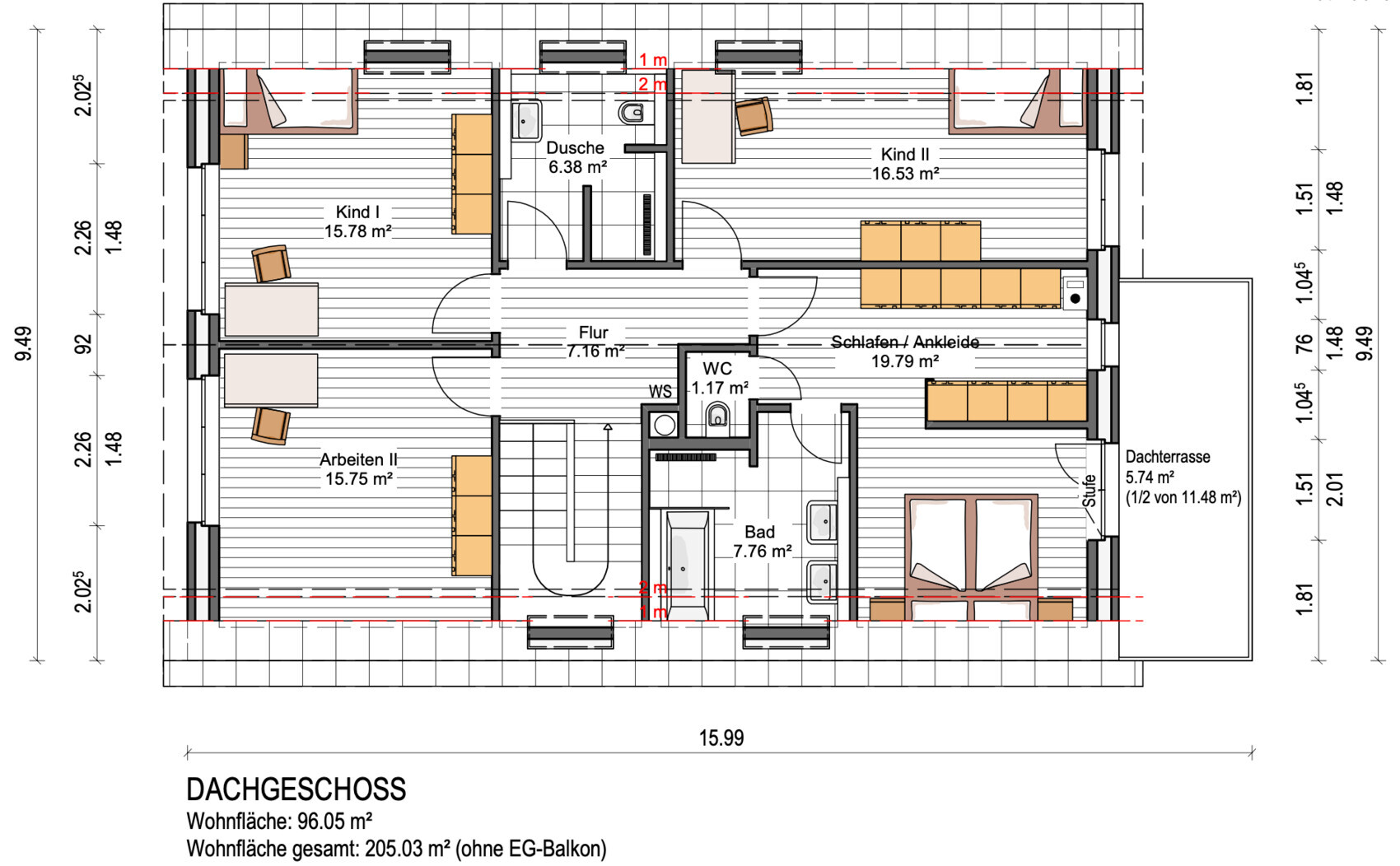
Raumbedarf im OG: Schlafzimmer, Ankleide, Elternbad, Kinderbad, 3 Kinderzimmer min. 15qm
Büro: 2 da parallele Homeoffice Nutzung
Schlafgäste pro Jahr: ca einmal im Monat
offene oder geschlossene Architektur: geschlossen
konservativ oder moderne Bauweise: konservativ / klassisch
offene Küche, Kochinsel: geschlossen ohne Insel, aber freistehender Side-by-Side Kühlschrank wäre toll
Anzahl Essplätze: 8-10
Kamin: ja
Musik/Stereowand: nein
Balkon, Dachterrasse: ja
Garage, Carport: ja, doppel Carport
Nutzgarten, Treibhaus: nein
weitere Wünsche/Besonderheiten:
- Elternschlafzimmer darf nur zum Garten hin
- Möglichkeit im Keller später Einliegwerwohnung einzurichten
Stilrichtung, Dachform, Gebäudetyp: Stadtvilla-Stil mit Mansarddach. Am Mansarddach gefällt uns das es im OG kaum Einschränkungen durch Dachschrägen gibt und es nimmt "optisch" etwas Höhe raus. Aufgrund des aus dem Erdreich rausragenden Kellers wirkt das Haus sonst mit 2,5 Vollgeschossen sehr hoch.
Keller, Geschosse: EG, OG und Keller
Hausentwurf
Von wem stammt die Planung: individuelle Planung durch Architekt des geplanten GU
Angebot für das Haus (inkl. Maler, Böden und Vorabbemusterung): ca. 850 TEUR
Was gefällt besonders? Warum?:
EG gefällt insgesamt gut, Treppe offen zum Flur, Doppelflügeltür zum Wohnzimmer, Küche durch Schiebetür zum Wohnzimmer zu öffnen, das Mansarddach gefällt uns auch sehr
Kinderzimmer alle etwa gleich groß
Wäscheschacht
Was gefällt nicht? Warum?:
- Haus ist schon ziemlich groß und doch wirken einige Räume zu eng, insbesondere im OG
- Elternbad zu klein, gewünscht von uns wären 1,8m Badewanne, Waschtisch mit 2 Waschbecken und Dusche 1,4m*1m. Die extra Toilette ist "nice-tohave", könnte aber auch mit im Bad liegen wenn das das Problem löst...
- Ankleide grenzwertig schmal, aber Schlafzimmer auch nicht weiter zu verkleinern
- Eigentlich fehlt nun noch ein weiteres Kinderzimmer. Idee ist jetzt das die Kleinen sich erstmal ein Zimmer teilen bis irgendwann ein Büro aus dem EG in den Keller wandert... oder ein Kind 😉
- Küche im EG etwas zu schmal, wir bekommen den freistehenden Side-by-Side Kühlschrank nicht unter
- Fenster im Büro/
- Fenster auf der Ostseite (Straßenseite) von außen leider nicht sehr symmetrisch
- Man muss ums Haus gehen um zum Carport zu kommen, kein direkter Ausgang vom Keller zum Carport oder Garten. Aber wenn der Carport auf der Nordseite wäre, würde das Haus zu weit auf die Südseite rutschen. Dort steht nach 3m mindestabstand ein großes/hohes 5-Familienhaus so das mehr Abstand auf der Seite mehr Sonne verspricht.
favorisierte Heiztechnik: Sole-Wasser-Wärmpeumpe
Wenn Ihr verzichten müsst, auf welche Details/Ausbauten
- könnt Ihr verzichten: eigentlich nichts 🙄 Kamin evtl.
- könnt Ihr nicht verzichten: Keller, Wäscheschacht, min. 15qm in den Kinderzimmern, Kinderbad, Dusche im Gäste-WC
Warum ist der Entwurf so geworden, wie er jetzt ist?
2 Jahre Planung stecken mittlerweile drin 😀
Angefangen mit eigenen skizzen, dann letztes Jahr ein erster Anlauf mit Architekt, dessen Entwürfe gefielen uns aber nicht so das wir nicht zueinander fanden.
Der Entwurf des Architekten unseres favorisierten GU hat es im zweiten Anlauf dann deutlich besser getroffen.
Eigentlich sind wir ganz zufrieden, die meisten unserer Vorstellungen konnten wir unterbringen, bis auf die oben genannten Punkte.
Was ist die wichtigste/grundlegende Frage zum Grundriss in 130 Zeichen zusammengefasst?
Wie bekommt man im OG für das Elternbad mehr Platz? Wir finden einfach keine Lösung ohne gleich das ganze Haus nochmal 20cm länger oder breiter zu machen...
Wo seht ihr sonst noch Optimierungsmöglichkeiten?







nach langem Mitlesen und einigen Planungsrunden möchten würden gerne einmal eure Meinungen zum aktuellen Planunsgstand hören.
Das Grundstück vor den Toren Hamburgs ist bereits vorhanden, ist aber sehr lang und schmal (breiteste Stelle 20m).
Bebauungsplan gibt es nicht, lediglich ein diagonal über das Grundstück verlaufendes Baufenster von 20m breite.
Aufgrund des recht hohen Grundwasserstandes durch den moorigen Boden wird der Keller nur ca. 1,50 tief in den Boden können, evtl auch nur 1m. das wird sich diese Woche klären wenn das Bodengutachten kommt.
Zu Beginn unserer Planungen planten wir noch mit 1 Büro und 2 Kinderzimmern, zwischenzeitlich hat sich die berufliche und persönliche Situation etwas geändert, so dass wir nun mit 2 Büros und eigentlich mit 4 Kinderzimmern planen müssten...
Bebauungsplan/Einschränkungen
Größe des Grundstücks: ca. 1000m², Breite 16-20m
Hang: leicht abfallend, ca 1m
Grundflächenzahl/GVZ: keine Vorgabe
Baufenster, Baulinie und -grenze: ja, Baufenster schräg übers Grundstück, 20m breite, ansonsten normal 3m Abstand
Anzahl Stellplatz: 2 (1,5 je Wohneinheit)
Geschossigkeit: max 12m
Dachform: keine Vorghabe
Stilrichtung: keine Vorgabe
Anforderungen der Bauherren
Stilrichtung, Gebäudetyp: klassich, Stadtvilla
Dachform: Mansarddach (sehr typisch für die Gegend)
Keller, Geschosse: Keller + EG + OG
Anzahl der Personen, Alter: 6 (zwei Erwachsene, 2 Kinder + Zwillinge coming soon 😀)
Raumbedarf im EG: Wohnzimmer, getrennte Küche, 2 Büros (da beide im Homeoffice arbeitend, eines als kombiniertes Gäste-Zimmer), Gäste-WC, ordentlich für Garderobe bei 6 Personen ein Muss
Raumbedarf im OG: Schlafzimmer, Ankleide, Elternbad, Kinderbad, 3 Kinderzimmer min. 15qm
Büro: 2 da parallele Homeoffice Nutzung
Schlafgäste pro Jahr: ca einmal im Monat
offene oder geschlossene Architektur: geschlossen
konservativ oder moderne Bauweise: konservativ / klassisch
offene Küche, Kochinsel: geschlossen ohne Insel, aber freistehender Side-by-Side Kühlschrank wäre toll
Anzahl Essplätze: 8-10
Kamin: ja
Musik/Stereowand: nein
Balkon, Dachterrasse: ja
Garage, Carport: ja, doppel Carport
Nutzgarten, Treibhaus: nein
weitere Wünsche/Besonderheiten:
- Elternschlafzimmer darf nur zum Garten hin
- Möglichkeit im Keller später Einliegwerwohnung einzurichten
Stilrichtung, Dachform, Gebäudetyp: Stadtvilla-Stil mit Mansarddach. Am Mansarddach gefällt uns das es im OG kaum Einschränkungen durch Dachschrägen gibt und es nimmt "optisch" etwas Höhe raus. Aufgrund des aus dem Erdreich rausragenden Kellers wirkt das Haus sonst mit 2,5 Vollgeschossen sehr hoch.
Keller, Geschosse: EG, OG und Keller
Hausentwurf
Von wem stammt die Planung: individuelle Planung durch Architekt des geplanten GU
Angebot für das Haus (inkl. Maler, Böden und Vorabbemusterung): ca. 850 TEUR
Was gefällt besonders? Warum?:
EG gefällt insgesamt gut, Treppe offen zum Flur, Doppelflügeltür zum Wohnzimmer, Küche durch Schiebetür zum Wohnzimmer zu öffnen, das Mansarddach gefällt uns auch sehr
Kinderzimmer alle etwa gleich groß
Wäscheschacht
Was gefällt nicht? Warum?:
- Haus ist schon ziemlich groß und doch wirken einige Räume zu eng, insbesondere im OG
- Elternbad zu klein, gewünscht von uns wären 1,8m Badewanne, Waschtisch mit 2 Waschbecken und Dusche 1,4m*1m. Die extra Toilette ist "nice-tohave", könnte aber auch mit im Bad liegen wenn das das Problem löst...
- Ankleide grenzwertig schmal, aber Schlafzimmer auch nicht weiter zu verkleinern
- Eigentlich fehlt nun noch ein weiteres Kinderzimmer. Idee ist jetzt das die Kleinen sich erstmal ein Zimmer teilen bis irgendwann ein Büro aus dem EG in den Keller wandert... oder ein Kind 😉
- Küche im EG etwas zu schmal, wir bekommen den freistehenden Side-by-Side Kühlschrank nicht unter
- Fenster im Büro/
- Fenster auf der Ostseite (Straßenseite) von außen leider nicht sehr symmetrisch
- Man muss ums Haus gehen um zum Carport zu kommen, kein direkter Ausgang vom Keller zum Carport oder Garten. Aber wenn der Carport auf der Nordseite wäre, würde das Haus zu weit auf die Südseite rutschen. Dort steht nach 3m mindestabstand ein großes/hohes 5-Familienhaus so das mehr Abstand auf der Seite mehr Sonne verspricht.
favorisierte Heiztechnik: Sole-Wasser-Wärmpeumpe
Wenn Ihr verzichten müsst, auf welche Details/Ausbauten
- könnt Ihr verzichten: eigentlich nichts 🙄 Kamin evtl.
- könnt Ihr nicht verzichten: Keller, Wäscheschacht, min. 15qm in den Kinderzimmern, Kinderbad, Dusche im Gäste-WC
Warum ist der Entwurf so geworden, wie er jetzt ist?
2 Jahre Planung stecken mittlerweile drin 😀
Angefangen mit eigenen skizzen, dann letztes Jahr ein erster Anlauf mit Architekt, dessen Entwürfe gefielen uns aber nicht so das wir nicht zueinander fanden.
Der Entwurf des Architekten unseres favorisierten GU hat es im zweiten Anlauf dann deutlich besser getroffen.
Eigentlich sind wir ganz zufrieden, die meisten unserer Vorstellungen konnten wir unterbringen, bis auf die oben genannten Punkte.
Was ist die wichtigste/grundlegende Frage zum Grundriss in 130 Zeichen zusammengefasst?
Wie bekommt man im OG für das Elternbad mehr Platz? Wir finden einfach keine Lösung ohne gleich das ganze Haus nochmal 20cm länger oder breiter zu machen...
Wo seht ihr sonst noch Optimierungsmöglichkeiten?
Blue_guru schrieb:
Das Grundstück vor den Toren Hamburgs ist bereits vorhanden, ist aber sehr lang und schmal (breiteste Stelle 20m).Darf ich fragen, welche Tore es sind?B
Blue_guru07.06.21 18:56Südlich der Elbe, Hansestadt Buxtehude
Ich empfinde das Haus hat was von einer Scheune und wollte den Keller streichen.
Bei 6 Köpfen braucht ihr ihn.
Meine Freundin hat 2 Kinderzimmer für 4 Kinder. Der Teenager hat sein eigenes und die 3 kleineren 9/4/1 teilen sich ein Zimmer. Der 9jährige will nicht ausziehen. So kann es auch kommen.
Das Wohnzimmer wird nur von den Kindern zum Spielen benutzt.
ich würde dem Keller mit einbeziehen
Zeichne unbedingt alle vorhanden und gewünschte Möbel ein. Der Essplatz im EG ist zu schmal. bei einen 1x3 m Tisch benötigt ihr mind 2,6 m x 4,8 m
Im OG würde ich auf das separate WC verzichten.
Ich würde im OG noch etwas schieben. Das Schlafzimmer und Kind 3 sehen ungelenk aus.
Im OG 4 fast gleich große Räume planen
gibt dann den Kinderstock. Ein großes Familienbad mit Wc+1 separates WC
Im EG Gast und ein Duschbad
Im KG eine zukünftige Elternsuit mit Schafen, Ankleide, Bad.
Bei 6 Köpfen braucht ihr ihn.
Meine Freundin hat 2 Kinderzimmer für 4 Kinder. Der Teenager hat sein eigenes und die 3 kleineren 9/4/1 teilen sich ein Zimmer. Der 9jährige will nicht ausziehen. So kann es auch kommen.
Das Wohnzimmer wird nur von den Kindern zum Spielen benutzt.
ich würde dem Keller mit einbeziehen
Zeichne unbedingt alle vorhanden und gewünschte Möbel ein. Der Essplatz im EG ist zu schmal. bei einen 1x3 m Tisch benötigt ihr mind 2,6 m x 4,8 m
Im OG würde ich auf das separate WC verzichten.
Ich würde im OG noch etwas schieben. Das Schlafzimmer und Kind 3 sehen ungelenk aus.
Im OG 4 fast gleich große Räume planen
gibt dann den Kinderstock. Ein großes Familienbad mit Wc+1 separates WC
Im EG Gast und ein Duschbad
Im KG eine zukünftige Elternsuit mit Schafen, Ankleide, Bad.
Blue_guru schrieb:
und doch wirken einige Räume zu eng, insbesondere im OGFinde ich nicht. Sie sind alle recht komfortabel.Blue_guru schrieb:
Ankleide grenzwertig schmal, aber Schlafzimmer auch nicht weiter zu verkleinernIch bin ein großer Kritiker von zu schmalen Ankleiden. Diese hier ist nicht zu schmal. Es passt sogar noch Spiegel und Stuhl rein. Schön locker, luftig.Blue_guru schrieb:
Elternbad zu klein, gewünscht von uns wären 1,8m Badewanne, Waschtisch mit 2 Waschbecken und Dusche 1,4m*1m.Auch das finde ich schön gelungen. Wenn ihr eine separate Toi braucht bei 2 Peoples... ok 🙂Blue_guru schrieb:
3 Kinderzimmer min. 15qmPassen ja. Ich suchte das 4. (ich gratuliere zur doppelter Erwartung)Blue_guru schrieb:
Elternschlafzimmer darf nur zum Garten hinWer sagt das?Blue_guru schrieb:
Möglichkeit im Keller später Einliegwerwohnung einzurichtenDie sehe ich allerdings nicht. Wer soll denn da rein? Ohne Austritt, Fenster zu Eurer Gartenseite und immer an Privaträumen vorbei...Blue_guru schrieb:
Eigentlich fehlt nun noch ein weiteres Kinderzimmer. Idee ist jetzt das die Kleinen sich erstmal ein Zimmer teilen bis irgendwann ein Büro aus dem EG in den Keller wandert... oder ein Kind 😉Ah ja, gute Lösung. Kann man nicht gleich oben eine Kinderetage planen und unten im Keller das Schlafzimmer? Oder ist das für Euch zu Souterrain? Man könnte neben der Terrasse unter dem WZ-Fenster eine Terrassentür mit Abböschung machen...Blue_guru schrieb:
Küche im EG etwas zu schmal, wir bekommen den freistehenden Side-by-Side Kühlschrank nicht unterHabt ihr schon versucht, Küche mit Arbeitszimmer zu tauschen? Und den Rest dann passend schieben? Die Doppeltür könnte dann an der Treppe schon angesetzt werden.Den Carport könnte man drehen und dann von der nördlichen Grundstücksecke aus anfahren.
Das Krüppelwalmdach mag ich leiden. Sieht gut aus, das Haus.
haydee schrieb:
Das Wohnzimmer wird nur von den Kindern zum Spielen benutzt.Klar, bei vier Nachwüchsen sind die Eltern am Ende des Tages sofort reif für die Heia ;-)ypg schrieb:
Das Krüppelwalmdach mag ich leiden.Öhm, wo siehst Du eines ?https://www.instagram.com/11antgmxde/
https://www.linkedin.com/company/bauen-jetzt/
Ähnliche Themen