Grundriss Bungalow 125qm konisches Grundstück

5,00 Stern(e) 7 Votes
Zuletzt aktualisiert 22.11.2025
Sie befinden sich auf der Seite 5 der Diskussion zum Thema: Grundriss Bungalow 125qm konisches Grundstück
>> Zum 1. Beitrag <<

RomeoZwo

RomeoZwo

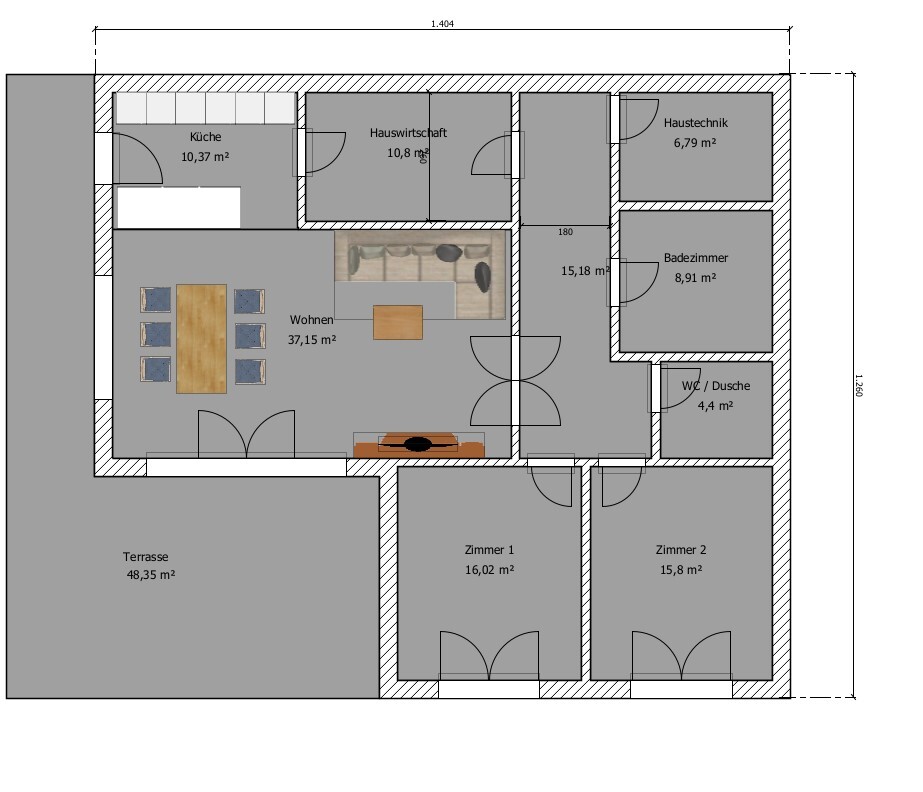
Mal meine erste Idee auf die Schnelle.


Grundriss eines Hauses: Küche, Wohnen, Terrasse, zwei Zimmer, Bad, Technik.


- Die Zimmer haben Blick in den Garten, aber nicht zur Terrasse oder zum Nachbarn
- Das neben dem Esstisch kann das Sitzfenster werden
- Hauswirtschaftsraum auch als "Lager" für die Küche, daher Zugang von beiden Seiten
- Glastür vom Wohnzimmer zum Flur, Flur vor den Zimmer in Bewegungsraum etwas großzügiger
- Wegen Garagenposition kann auch Hauswirtschaftsraum und Bad/Technik getauscht werden, hat aber Nachteile
(nicht vom Hauswirtschaftsraum in die Küche, weite Wege zum Bad)

Ich würde jetzt evtl. den Raum vor den Zimmern noch vergrößern, bzw. Quadratischer machen und ggf. Bad und WC dann etwas anpassen. Da gibt es sicher auch noch gute Konzepte dann die Dusche o.ä. zu integrieren.
Wahrscheinlich müsste auch die Terrasse noch mehr nach W-S-W orientiert werden. Bei der Himmelsrichtung ist so ab circa 17:00 keine Sonne mehr auf der Terrasse.
 
Zuletzt bearbeitet von einem Moderator:
F

forrestde

@RomeoZwo
Anbei der Bebauungsplan als Screenshot.
Ich habe mich ja schon mal mit meinem falschen Verständnis der Grenzbebauung geirrt. Aber mein Verständnis ist jetzt, dass eine Grenzbebauung für die Garage zulässig ist, so lange sie nicht im Bebauungsplan ausgeschlossen wurde. Im Bebauungsplan finde ich keine Regelung dazu.

@hanse987
Zum 2. Parkplatz, könnte ich doch oben rechts verorten. Vor der Garage/Eingangsbereich hätte ich 80qm Platz.

@ypg
Die Küche ist in der Tat nicht perfekt gelöst. Die Küche muss für uns funktional sein, ich will eigentlich sagen, das wir nicht die begnadeten Köche sind und nicht viel Zeit in der Küche verbringen. Problematischer sehe ich dann eher die fehlende Zonierung im Eingangsbereich mit den Schlafzimmern.

Danke an alle für die Anregungen/Hinweise.
Ich hab das hoffentlich schon geschrieben: Wir brauchen zwei Schlafzimmer und ein Arbeitszimmer.
Lageplan eines Bebauungsplans mit Grundstücksgrenzen und farblich markierten Bereichen.
 
Zuletzt bearbeitet von einem Moderator:
RomeoZwo

RomeoZwo

Ach, diese 8,2m2 im letzten Plan sollen ein Büro sein! Und wo ist die Haustechnik und Heizung?
 
RomeoZwo

RomeoZwo

Das wurde doch schon thematisiert - alles in die Garage.
Womit eine Grenzgarage aber nicht mehr in der Diskussion ist. Die Ausnahme gilt nur für "Garagen und Gebäude ohne Aufenthaltsräume und Feuerstätten". Hat man sich mal Gedanken gemacht wie gut sich z.B. Feuchtigkeit (in der Garage im Winter z.B. durch nasse, schneebedeckte Autos normal) für die Technik in der Garage macht? Kann mir nicht vorstellen, dass das funktioniert.
 
F

forrestde

Ich denke eher nur daran dass die Anschlüsse in der Garage sein sollen, also Wasseruhr, Strom/Sicherungskasten und Glasfaserübergabe. Die Technik für die Wärmepumpe würde ich im Hauswirtschaftsraum sehen. Vielleicht habe ich auch etwas nicht bedacht... ich habs mal gelb im Grundriss eingezeichnet.

Im Baugebiet gibt es keine Gasversorgung (würde ich eh nicht wollen), daher wird es auf eine Luft-Wasser WP hinauslaufen. Und wenn die WP mit Außen- und Inneneinheit ausgeführt wird, dann hält sich der Platzbedarf im Hauswirtschaftsraum hoffentlich in Grenzen.
Ganz genau genommen, könnte eine Wärmepumpe in der Garage mit Grenzbebauung vielleicht zu lässig sein, weil es keine "Feuerstätte" ist.

Zusammengefasst:
Die Hausanschlüsse in der Garage zu haben, resultiert aus diesem individuellen Grundriss. Dank Eurer Hinweise stelle ich diesen Grundriss grundsätzlich in Frage und gehe wieder zurück auf Los bzw. ein paar Schritte zurück :)

Unsere Wünsche:
- Garage mit Zugang zum Hauswirtschaftsraum
- 2 Schlafzimmer und 1 Büro (1 Schlafzimmer ist das Hauptschlafzimmer, das andere zum Ausweichen, weil einer der Herren unsäglich schnarcht).
- Hauswirtschaftsraum mindestens 12qm
- Bungalow mit 120-130 qm aus Kostengründen eher weniger als mehr
Grundriss eines Badezimmers mit Badewanne, Toilette und Waschbecken in einem Haus.
 
Zuletzt aktualisiert 22.11.2025
Im Forum Grundrissplanung / Grundstücksplanung gibt es 2535 Themen mit insgesamt 87992 Beiträgen


Ähnliche Themen zu Grundriss Bungalow 125qm konisches Grundstück
Nr.ErgebnisBeiträge
1Bungalow mit 140qm und Garage im Grundriss 13
2Grundriss mit Garage auf Grundstück realisierbar? - Seite 329
3Grundriss Einfamilienhaus 155m², ohne Keller, 3 Kinderzimmer, 1 Büro 38
4Stadtvilla Grundriss - Feedback erwünscht - Seite 397
5Einfamilienhaus Neubau 160qm Grundriss - Bitte um Feedback 22
6 2 Vollgeschosse, Durchgang Garage, Hauswirtschaftsraum unter Treppe 25
7Einfamilienhaus-Grundriss 170 qm für 4 Personen mit Garage 20
8Grundriss Einfamilienhaus mit 240m² mit Einliegerwohnung 75m² und Garage 39
9Grundriss Einfamilienhaus mit Doppelgarage und Terrasse - Seite 219
10Meinungen zu Grundriss "Haus am Hang" erbeten - Seite 231
11Grundriss, Wohnbereich zu eng, Ideen / Vorschläge 17
12Meinungen f. Grundriss Einfamilienhaus ca. 160qm - Seite 429
13Grundriss EG + OG für Doppelhaushälfte - Seite 229
14Grundrissentwurf eines Passivhauses 170m² mit Garage - Seite 318
15Grundriss Einfamilienhaus, ca. 200qm ohne Keller - Einschätzung - Seite 25172
16Meinung zu Grundriss 16
17Grundriss unseres Bungalows 82
18Grundriss - Eure Meinungen, Ideen und Vorschläge 31
19Unser Grundriss steht zur Diskussion 39
20Optimierung Badezimmer - Uns gefällt der Grundriss 21

Oben