Grundriss & Ausrichtung Haus auf Grundstück 420m²

4,50 Stern(e) 4 Votes
Zuletzt aktualisiert 20.11.2025
Sie befinden sich auf der Seite 3 der Diskussion zum Thema: Grundriss & Ausrichtung Haus auf Grundstück 420m²
>> Zum 1. Beitrag <<

J

Julloef

Worauf bezogen?

Das habt ihr mit knapp ü 200qm erreicht. Ohne Baunebenkosten oder Nebenanlagen.

Habt Ihr denn eine zweite Grundflächenzahl für Nebenanlagen? Wenn nicht, dann dürft Ihr 170qm überbauen.
Das Haus hat etwas unter 130qm. Damit verbleiben für Terrasse, Wege und Stellplätze 40qm.

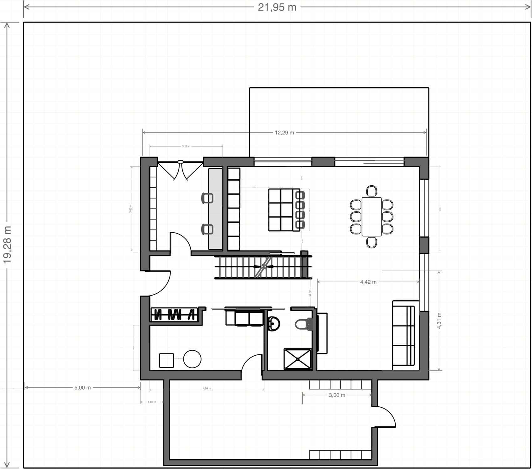
Zum Entwurf selbst: da sind schon einige dicke Patzer drin. Engstelle neben dem Treppenantritt, zu kleines Gäste-WC für diese Möblierung, nicht funktionierende Küche mangels an Arbeitsfläche oder Stauraum. Dafür ist der TV-Abstand zum Sofa ü 5 Meter.
Im OG kommt es dann gar nicht hin, was Ihr da gezeichnet habt. Ihr teilt Euch die lange 13 Meter Wand für Bad und Schlafzimmer mit Ankleide.
Und die Außenansichten erklären sich ehrlich gesagt auch nicht. Bodentiefe Fenster sind nett, Fensterbänder sind nett - aber man muss auch nicht alles zupflastern oder übertreiben. Gerade auch, weil man Giebel auch nutzen sollte. Ein Haus sollte übrigens in der Front lächeln, wenn man mit Fantasie die Fassade anschaut. Was meinst Du, welchen Ausdruck siehst Du im Osten?
Die drei Fensterbänder nebeneinander wirken total negativ… sind halt drei Minus-Zeichen…
Wenn der Nachbar einem auf die Pelle rückt, weil das Grundstück klein ist, dann sollten zumindest im OG Brüstungen für Intimsphäre sorgen.

Was ich aber loben möchte, ist die Old School- Variante, mit der Du gezeichnet hast. Es hat Vorteile, nämlich sich auf den Entwurf zu konzentrieren und nicht auf eine fremde Software. Und man traut sich zu radieren.
Ich hab nochmal versucht die Kritik einzuarbeiten.
Was mir nur immer noch nicht gefällt:
- Wohnzimmerecke zu klein
- Bad im EG ohne Fenster, außer ich mache ein Carport
- Technikraum zu klein
- Gefühlt im EG zu wenig Stauraum
Grundriss: Treppe, zwei Schlafzimmer, Wohnzimmer, Küche, Bad mit Dusche und Sauna.

Grundriss eines Hauses: offener Küchen- und Essbereich mit Insel, Wohnzimmer, Treppe, Bad, Schlafzimmer.
 
Y

ypg

Nee haben wir nicht, deshalb gehe ich wie du von den 170qm aus.
Dann musst Du auch mit 170qm planen. Wie schon gesagt, dazu gehören auch die Wege.
Bevor das nicht geklärt ist, würde ich gar nichts zeichnen, denn dann ist das Grundstück quasi für "alles" zu klein.
Ich kann mir ehrlich gesagt nicht vorstellen, dass die zweite Grundflächenzahl nicht möglich ist.
Insofern nehme Dir einen Fachmann, der den Bebauungsplan lesen und umsetzen kann.

Ja, Ihr habt zu wenig Stauraum. Aber das sollte man ja auch gleich im Entwurf mit einplanen, das ist ein Prozess sowie eine Vorüberlegung und -abwägung und wird nicht erst hinterher zugefügt.
Ein 08/15-Entwurf für 650qm Grund passt nicht auf ein 420er Grundstück.
Wenn Du gartenoptimiert planen willst, dann machst Du die ganze Erschließung von der Nordseite von der Garagenseite aus und beziehst den Osten in die Gartenplanung mit ein sowie ein kleines Dachgeschoss für den (nachträglichen) Ausbau für Büroräume und Abstellfläche.
Da müsst Ihr nach meiner Meinung im ganzen Konzept etwas Abstriche machen. Aber wie gesagt: das gehört in Fachhände, und dann kann der Entwurf hier auch diskutiert werden.
 
J

Julloef

Ich vermute mal das Grundstück ist schon da. Also ist eher Alles darauf zu grosszügig geplant.
Ja ist quasi schon da. Du meinst zu viel überbaut? Das Problem ist wir möchten ohne Keller bauen, die Traufhöhe ist 5,80 die Firsthöhe max. 8,80. In die Höhe kann ich kaum mehr bauen. Auf den Grundriss vom Planer warte ich noch.
 
J

Julloef

Dann musst Du auch mit 170qm planen. Wie schon gesagt, dazu gehören auch die Wege.
Bevor das nicht geklärt ist, würde ich gar nichts zeichnen, denn dann ist das Grundstück quasi für "alles" zu klein.
Ich kann mir ehrlich gesagt nicht vorstellen, dass die zweite Grundflächenzahl nicht möglich ist.
Insofern nehme Dir einen Fachmann, der den Bebauungsplan lesen und umsetzen kann.

Ja, Ihr habt zu wenig Stauraum. Aber das sollte man ja auch gleich im Entwurf mit einplanen, das ist ein Prozess sowie eine Vorüberlegung und -abwägung und wird nicht erst hinterher zugefügt.
Ein 08/15-Entwurf für 650qm Grund passt nicht auf ein 420er Grundstück.
Wenn Du gartenoptimiert planen willst, dann machst Du die ganze Erschließung von der Nordseite von der Garagenseite aus und beziehst den Osten in die Gartenplanung mit ein sowie ein kleines Dachgeschoss für den (nachträglichen) Ausbau für Büroräume und Abstellfläche.
Da müsst Ihr nach meiner Meinung im ganzen Konzept etwas Abstriche machen. Aber wie gesagt: das gehört in Fachhände, und dann kann der Entwurf hier auch diskutiert werden.
Ich glaub die Nebenflächen zählen nicht mit aber das muss der Planer sagen. Im bebauungsplan steht nur Grundflächenzahl 0.4 nach "§ 9 Abs. 1 Nr. 1 Baugesetzbuch; §16, §17, §19 Baunutzungsverordnung".
Ja wir haben halt genaue Vorstellungen wie wir die Räume haben möchten, danke aber für das Feedback. Ich schaue mal was der Planer vorschlägt.
 
H

hanghaus2023

Glauben ist in dem Fall nicht hilfreich.

Ich zitiere mal §19 Baunutzungsverordnung

(4) Bei der Ermittlung der Grundfläche sind die Grundflächen von

1. Garagen und Stellplätzen mit ihren Zufahrten,
2. Nebenanlagen im Sinne des § 14,
3. baulichen Anlagen unterhalb der Geländeoberfläche, durch die das Baugrundstück lediglich unterbaut wird,

mitzurechnen. Die zulässige Grundfläche darf durch die Grundflächen der in Satz 1 bezeichneten Anlagen bis zu 50 vom Hundert überschritten werden, höchstens jedoch bis zu einer Grundflächenzahl von 0,8; weitere Überschreitungen in geringfügigem Ausmaß können zugelassen werden. Im Bebauungsplan können von Satz 2 abweichende Bestimmungen getroffen werden. Soweit der Bebauungsplan nichts anderes festsetzt, kann im Einzelfall von der Einhaltung der sich aus Satz 2 ergebenden Grenzen abgesehen werden
1. bei Überschreitungen mit geringfügigen Auswirkungen auf die natürlichen Funktionen des Bodens oder
2. wenn die Einhaltung der Grenzen zu einer wesentlichen Erschwerung der zweckentsprechenden Grundstücksnutzung führen würde.
 
Zuletzt bearbeitet von einem Moderator:
Zuletzt aktualisiert 20.11.2025
Im Forum Grundrissplanung / Grundstücksplanung gibt es 2535 Themen mit insgesamt 87977 Beiträgen


Ähnliche Themen zu Grundriss & Ausrichtung Haus auf Grundstück 420m²
Nr.ErgebnisBeiträge
1Grundflächenzahl/Geschossflächenzahl bei Grundstück ohne Bebauungsplan: Wie kalkulieren? Erfahrungen? 18
2§19 Baunutzungsverordnung - Grundflächenzahl - zulässige Grundfläche 16
3Grundflächenzahl/Geschossflächenzahl bei Bebauungsplan von 1968 11
4Staffelgeschosshaus 23x30m Grundstück mit Grundflächenzahl 0,25 25
5Position Garage auf Grundstück, Vorgabe im Bebauungsplan 22
6Regelungen bei Bebauungsplan Erfahrungen? 22
7Grundflächenzahl; § 19 Abs.4 Baunutzungsverordnung - Erfahrungen? 26
8Grundstück / Bebauungsplan / Stützmauern / Abgrabungen - Seite 217
9Grundstück 4500 m² (Gärtnerei) - Erstellung Bebauungsplan in Eigenregie 16
10Nettes Grundstück, aber Bebauungsplan zu einschränkend? 21
11Grundriss-Entwurf: Einfamilienhaus mit Keller; 560qm Grundstück - Seite 365
12Fragen/vernachlässigtes Grundstück/Wiese, Baumaßnahmen eruieren - Seite 344
13Bestandshaus Abriss - Neubau: was lässt der Bebauungsplan zu? - Seite 211
14Bungalow mit besonderem Bebauungsplan ... weitere Ideen? 41
15Lage Stadtvilla oder Einfamilienhaus auf 500 m2 Grundstück-Rechteck - Seite 11586
16180qm Nicht-Anstatt-Haus, beste Anpassung ans Grundstück? 79
17Grundstück auf dem Lande - welches Grundstück welche Bauform - BW 12
18Bebauungsplan "ED" mehrere WE möglich? 25
19Grundstück in Marburg gefunden... Worauf achten? 11
20Bebauung Grundstück - Keller ja oder nein? 75

Oben