ᐅ Grundriss 200qm mit integriertem Wintergarten und Galerie
Erstellt am: 24.04.15 23:53
merlin8324.04.15 23:53
Guten Tag,
wir haben folgenden Grundriss derzeit in der Planung und ich bin mir nicht sicher, ob das ganze so Sinn ergibt oder manche Dinge in Echt einfach furchtbar sind bzw. nicht zueinander passen.
Ich bin für alle Ratschläge und Ideen offen und dankbar.
Anmerkung:
Vielen Dank & Gruß


wir haben folgenden Grundriss derzeit in der Planung und ich bin mir nicht sicher, ob das ganze so Sinn ergibt oder manche Dinge in Echt einfach furchtbar sind bzw. nicht zueinander passen.
Ich bin für alle Ratschläge und Ideen offen und dankbar.
Anmerkung:
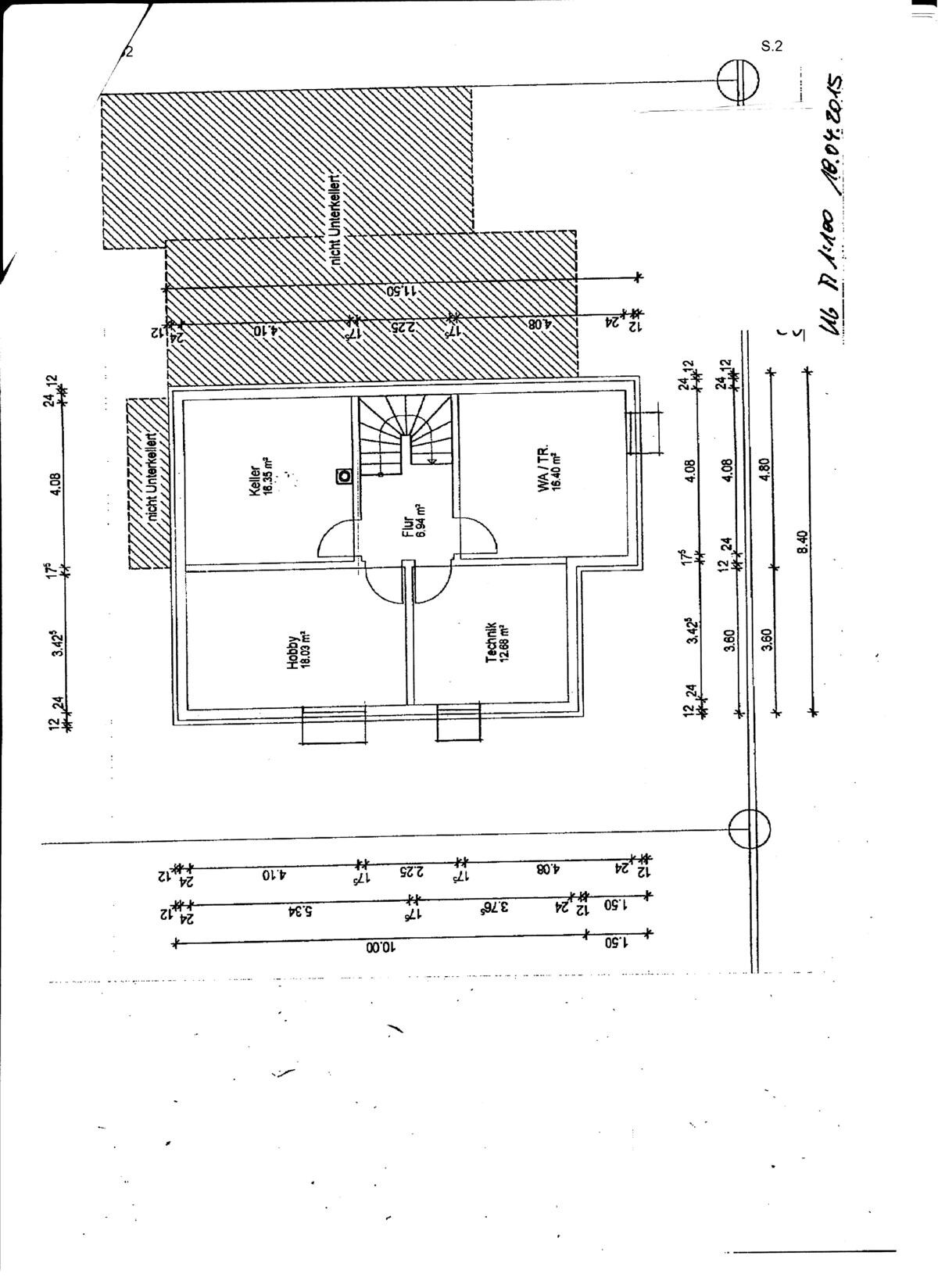
- Toilette wird aus der Dachschräge genommen (Bad muss noch sortiert werden)
- Ankleide muss noch sortiert werden.
- Verglasung wird noch angepasst (größtenteils ergänzt).
Vielen Dank & Gruß
merlin8325.04.15 00:11
Bebauungsplan/Einschränkungen
Größe des Grundstücks (ca. 463 qm 18,5 Meter x 25 Meter)
Hang (Ziemlich eben, maximal 1 Meter Gefälle über das Grundstück)
Baufenster, Baulinie und -grenze (Baufenster ist 13 Meter x 18,50 Meter)
Randbebauung (ja, nur Garage)
Anzahl Stellplatz (1,5 pro Wohneinheit)
Geschossigkeit (1,5 Geschossig)
Dachform (Satteldach, First vorgeschrieben Nord-Süd)
Maximale Höhen/Begrenzungen (Traufhöhe 4,25 Meter, Max Höhe ca. 8,75 Meter)
weitere Vorgaben
Anforderungen der Bauherren
Anzahl der Personen, Alter (3 - 5, je nachdem wie es läuft)
Büro: Familiennutzung oder Homeoffice? (ggf. geringfügig freiberuflich)
Schlafgäste pro Jahr (sehr selten)
konservativ oder moderne Bauweise (modern)
Kamin (ja)
Garage (ja)
Carport (ja, wenn mgl)
Hausentwurf
Von wem stammt die Planung:
-Architekt (nach meinen Angaben)
Preisschätzung lt Architekt/Planer: ca. 440.000 Euro zzgl. Anschlusskosten und Außenanlagen
Persönliches Preislimit fürs Haus, inkl Ausstattung: ca. 480.000 Euro
favorisierte Heiztechnik: Gas (ohne Solarthermieanlage)
Größe des Grundstücks (ca. 463 qm 18,5 Meter x 25 Meter)
Hang (Ziemlich eben, maximal 1 Meter Gefälle über das Grundstück)
Baufenster, Baulinie und -grenze (Baufenster ist 13 Meter x 18,50 Meter)
Randbebauung (ja, nur Garage)
Anzahl Stellplatz (1,5 pro Wohneinheit)
Geschossigkeit (1,5 Geschossig)
Dachform (Satteldach, First vorgeschrieben Nord-Süd)
Maximale Höhen/Begrenzungen (Traufhöhe 4,25 Meter, Max Höhe ca. 8,75 Meter)
weitere Vorgaben
Anforderungen der Bauherren
Anzahl der Personen, Alter (3 - 5, je nachdem wie es läuft)
Büro: Familiennutzung oder Homeoffice? (ggf. geringfügig freiberuflich)
Schlafgäste pro Jahr (sehr selten)
konservativ oder moderne Bauweise (modern)
Kamin (ja)
Garage (ja)
Carport (ja, wenn mgl)
Hausentwurf
Von wem stammt die Planung:
-Architekt (nach meinen Angaben)
Preisschätzung lt Architekt/Planer: ca. 440.000 Euro zzgl. Anschlusskosten und Außenanlagen
Persönliches Preislimit fürs Haus, inkl Ausstattung: ca. 480.000 Euro
favorisierte Heiztechnik: Gas (ohne Solarthermieanlage)
smodon25.04.15 07:45
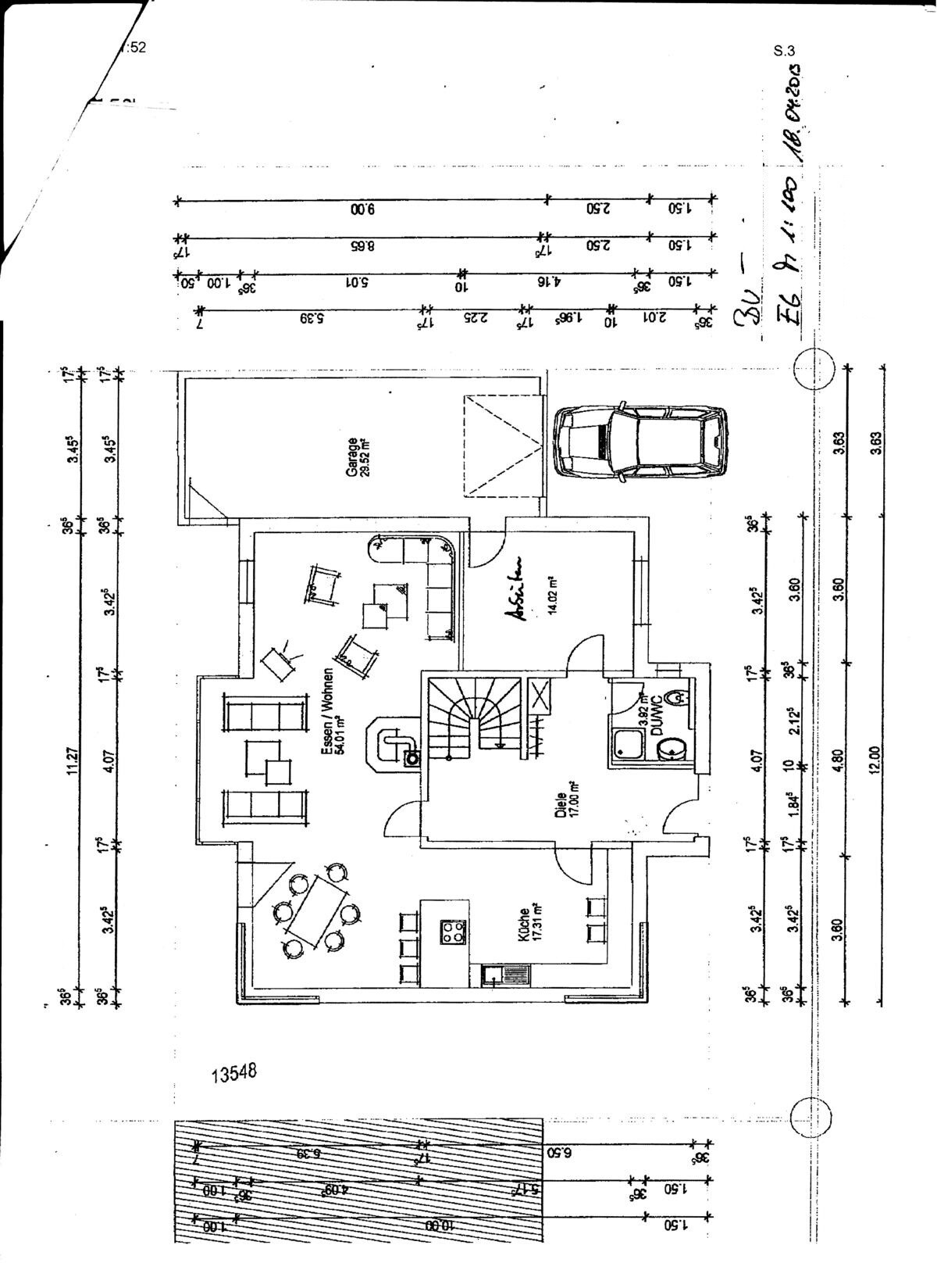
200 qm und nur ein Bad im OG? das Gerangel mit den Kindern würde ich mir nicht antun wollen
milkie25.04.15 09:39
Hallo,
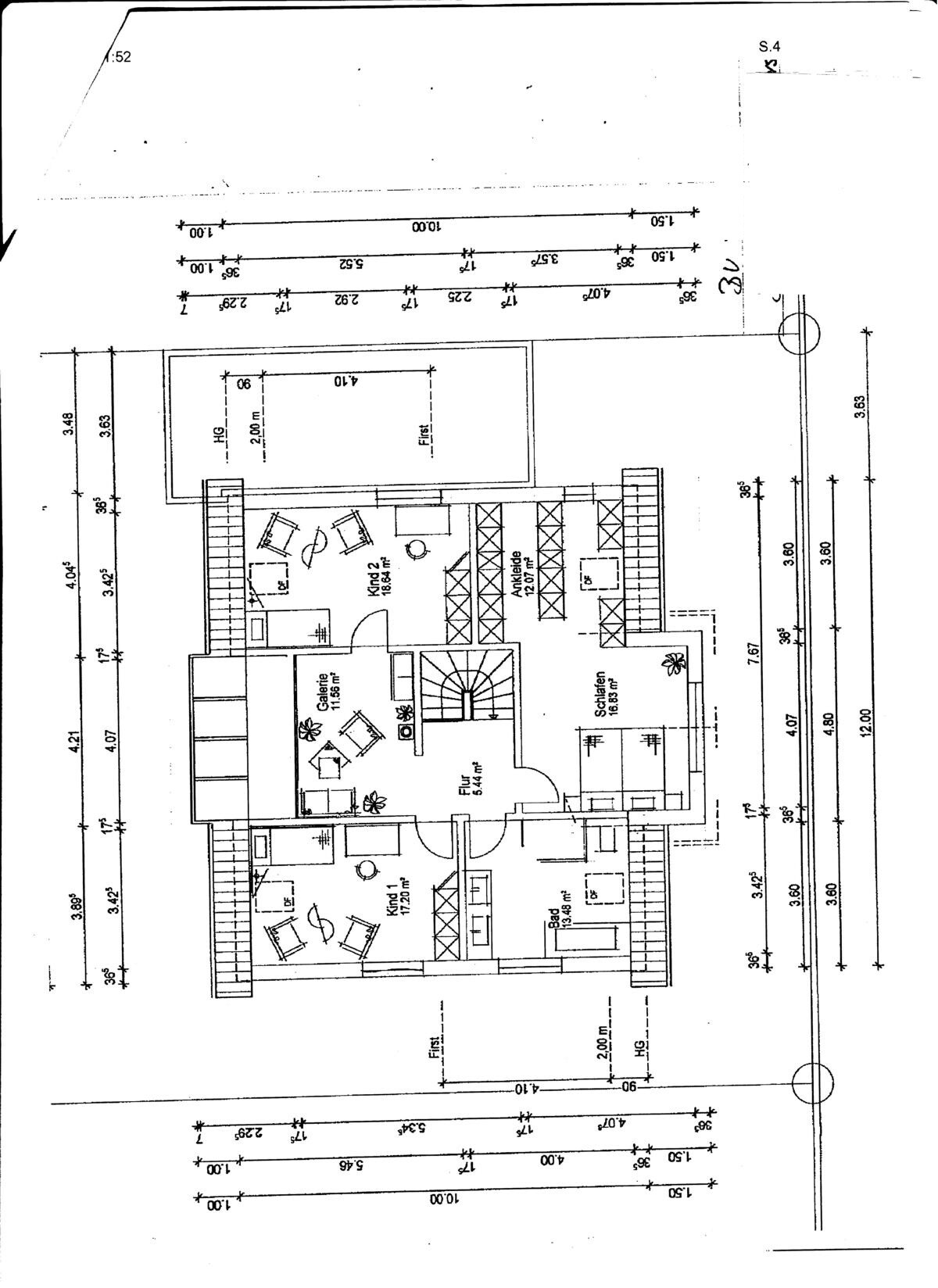
das sieht sehr großzügig aus, benötigt ihr das wirklich alles? Sozusagen zwei Wohnzimmer plus die Galerie und die riesige Ankleide? Ich weiß nicht ob der Wohnbereich inkl Galerie nicht zu großzügig wäre. Wir bauen 220qm Wohnfläche. also die Fläche an sich ist es nicht die mich stört. Ich vermisse eher den Gemütlichkeitsfaktor. Genüsslich ein Buch lesen oder sich mit Besuch unterhalten ist im "Wintergarten" und auf der Galerie nicht unbedingt möglich wenn einer nen Actionfilm guckt
Die Küche wäre mir auch zu weitläufig. Wir haben auch 17qm und 3,63cm in der Breite. Wir haben uns für eine längs stehende Kochinsel mit Hochschränken, also kurze Laufwege. Vielleicht noch mal die Küchenplanung überdenken.
Die Dusche im Gäste-WC würde ich weg lassen. Gemütlich duschen funktioniert da eh nicht und wenn ihr kaum Übernachtungsgäste habt, lohnt sich das nicht. Ansonsten Waschbecken und WC tauschen.
Im OG ist die Ankleide wirklich sehr groß und die Galerie wäre jetzt nicht meins aber ok. Nur ein Bad finde ich nicht schlimm. Das ging bis vor ein paar Jahren auch noch ohne Probleme bevor das Kinderbad Mode wurde.
Wie nah seid ihr an der Südseite dann am Nachbarhaus?
das sieht sehr großzügig aus, benötigt ihr das wirklich alles? Sozusagen zwei Wohnzimmer plus die Galerie und die riesige Ankleide? Ich weiß nicht ob der Wohnbereich inkl Galerie nicht zu großzügig wäre. Wir bauen 220qm Wohnfläche. also die Fläche an sich ist es nicht die mich stört. Ich vermisse eher den Gemütlichkeitsfaktor. Genüsslich ein Buch lesen oder sich mit Besuch unterhalten ist im "Wintergarten" und auf der Galerie nicht unbedingt möglich wenn einer nen Actionfilm guckt
Die Küche wäre mir auch zu weitläufig. Wir haben auch 17qm und 3,63cm in der Breite. Wir haben uns für eine längs stehende Kochinsel mit Hochschränken, also kurze Laufwege. Vielleicht noch mal die Küchenplanung überdenken.
Die Dusche im Gäste-WC würde ich weg lassen. Gemütlich duschen funktioniert da eh nicht und wenn ihr kaum Übernachtungsgäste habt, lohnt sich das nicht. Ansonsten Waschbecken und WC tauschen.
Im OG ist die Ankleide wirklich sehr groß und die Galerie wäre jetzt nicht meins aber ok. Nur ein Bad finde ich nicht schlimm. Das ging bis vor ein paar Jahren auch noch ohne Probleme bevor das Kinderbad Mode wurde.
Wie nah seid ihr an der Südseite dann am Nachbarhaus?
merlin8325.04.15 10:30
smodon schrieb:
200 qm und nur ein Bad im OG? das Gerangel mit den Kindern würde ich mir nicht antun wollen Hallo Smodon,Danke für Deinen Hinweis.
Das habe ich mit meiner Lebensgefährtin auch gesagt. Ich bin mit 2 Geschwistern aufgewachsen und hätte mir gewünscht über ein Kinderbad zu verfügen.
Mei Problem ist, dass sich meine Lebensgefährtin sich ein Stück weit an dem Grundriss festgefressen hat. Ich habe mir auch überlegt wie ich ein Kinderbad ins OG reinbekomme ohne die anderen Zimmer wesentlich zu verkleinern oder die Grundstruktur bedeutend zu verändern.
Meine Lebensgefährtin argumentiert, dass Sie ja auch im Erdgeschoss duschen könnte. Ich hätte auch lieber im EG die Dusche rausgenommen (zugunsten einer großzügigen Toilette) und im OG ein Kinderbad verbaut.
Große Kinderzimmer sind mir wichtig. Die Galerie hat meine Lebensgefährtin im Beilhartz Haus Avance 150 gesehen und sich sofort verliebt. Die Ankleide in der Größe war halt so an Platz noch da.
Im großen und ganzen war der Grundriss des Kern-Haus Maxime Vorlage für diesen Entwurf.
merlin8325.04.15 10:47
milkie schrieb:
Hallo,
das sieht sehr großzügig aus, benötigt ihr das wirklich alles? Uns war der integrierte Wintergarten, große Kinderzimmer und keine engen Räume wichtig. Außerdem wollten wir die Küche etwa abgetrennt, weil ich kein Krach aus der Küche im TV Bereich haben wollte. Das hat sich dann halt alles so ergeben.
Sozusagen zwei Wohnzimmer plus die Galerie und die riesige Ankleide? Es gab einen ersten Grundriss, der alle Räume ca. 30% kleiner berücksichtigte und ca. EUR 85.0000 billiger war (nur 150qm im EG und OB). Offen gesagt, bin ich gerne bereit die 85000 Euro für 50qm zu investieren. DIe Finanzierung für den Hausbau ist auf 25 Jahre mit 20 Jahre Zinsfestschreibung ausgelegt. Es wurde mit meiner Vollzeitstelle (Absolut sicherer Arbeitsplatz) und der Teilzeitstelle meiner Lebensgefährtin gerechnet (auch absolut sicherer Arbeitsplatz). Die Zins und Tilgungsbelastung beträgt knapp 1/3 unseres Einkommen.
Ich weiß nicht ob der Wohnbereich inkl Galerie nicht zu großzügig wäre. Wir bauen 220qm Wohnfläche. also die Fläche an sich ist es nicht die mich stört. Ich vermisse eher den Gemütlichkeitsfaktor. Ich hatte mir überlegt ggf. den TV Bereich etwas abzutrennen. Vielleicht mit einer Wand mit großzügigem Durchgang zum Kamin- Wintergartenbereich.
Genüsslich ein Buch lesen oder sich mit Besuch unterhalten ist im "Wintergarten" und auf der Galerie nicht unbedingt möglich wenn einer nen Actionfilm guckt . Ja, das wird insbesondere ein Thema werden, wenn die Kinder (1. ist 3 Monate alt und das 2. muss ich noch machen ) größer sind. Ist da was möglich ohne alles über den Haufen zu werfen?
Die Küche wäre mir auch zu weitläufig. Wir haben auch 17qm und 3,63cm in der Breite. Wir haben uns für eine längs stehende Kochinsel mit Hochschränken, also kurze Laufwege. Vielleicht noch mal die Küchenplanung überdenken. Die Küche wollten wir anders machen. Es sollte in den Westen eine kleine Sitzecke entstehen, die Wand zur Treppe etwas auskerben und Hochschränke einsetzen. Kochen und Spüle in Richtung Süden. Ich werden gleich mal ein Bild posten. Die Sitzecke Richtung Süd-Osten finden wir für die Morgensonne gut.
Die Dusche im Gäste-WC würde ich weg lassen. Gemütlich duschen funktioniert da eh nicht und wenn ihr kaum Übernachtungsgäste habt, lohnt sich das nicht. Ansonsten Waschbecken und WC tauschen. Ich glaube da muss ich nochmals mit meiner Lebensgefährtin sprechen
Im OG ist die Ankleide wirklich sehr groß und die Galerie wäre jetzt nicht meins aber ok. Nur ein Bad finde ich nicht schlimm. Das ging bis vor ein paar Jahren auch noch ohne Probleme bevor das Kinderbad Mode wurde.
Wie nah seid ihr an der Südseite dann am Nachbarhaus? Zum Nachbarhaus sind es in etwa 2,8 Meter. Im Grundriss ist die Garage des Nachbarn eingezeichnet. Die ist nochmals ca. 3,60 Meter breit. Insgesamt sind das ca. 6,5 Meter bis zu Nachbarhaus.
Vielen Dank für Deinen Beitrag milkie . Ich habe die Kommentierungen eingefügt.
Ähnliche Themen