Grundriss 160qm Einfamilienhaus - Verbesserungsideen?

4,20 Stern(e) 5 Votes
Zuletzt aktualisiert 05.10.2025
Sie befinden sich auf der Seite 3 der Diskussion zum Thema: Grundriss 160qm Einfamilienhaus - Verbesserungsideen?
>> Zum 1. Beitrag <<

South

South

Ja, man muss es möblieren können. Ich habe auch nicht behauptet, dass der Grundriss gut ist. Im Gegenteil, ich habe ihn gar nicht gewürdigt. Mir ging es allein um das Dogma Galerie = schlecht bzw. erst ab 250 qm umsetzbar. Es ist und bleibt Geschmackssache. Der eine will ein großes Schlafzimmer + Elternbad + Ankleide, der andere eine Galerie. Ich stimme dir zu, es sollte möblierbar sein. Aber ich hoffe wir müssen keine Grundsatzdiskussion führen.

@ TE:
Hier mal ein Grundriss vom einer bekannten Hamburger Architektin. Vllt hilft es ja zur Inspiration.
EDIT: Technik ist hier im Keller.

Sollte der Thread geschlossen werden, habe ich natürlich gar nichts dagegen.

Grundriss eines Apartments mit zentralem Treppenaufgang, zwei Schlafzimmern und zwei Bädern.


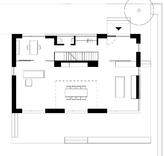
Grundriss eines Hauses: offenes Erdgeschoss mit Treppe, Essbereich, Wohnzimmer, Küche und Terrasse.
 
Zuletzt bearbeitet:
Z

Zaba12

Vieles wurde ja schon gesagt! Was ich nicht verstehe ist, warum der TE nicht mit dem Forum an dem Grundriss arbeiten möchte. Aber nun gut jeder wie er will.

Unter 3 Rahmenbedingungen würde ich so eine große Galerie für sinnvoll erachten.

1. Das Haus würde größer gebaut werden
2. Der Erker wurde verschwinden
3. Die komplette Südseite ist als Pfosten-Riegel-Fassade verglast und zwar vom Boden bis zum Dach

Punkt 3. wäre für mich der alleinige Grund warum ich so eine "mega" Galerie haben wollen würde.

Dann hätte ich zwar ein wunderschönes Kataloghaus welches mir vom Ausblick her jeden Tag ein Grinsen ins Gesicht zaubern würde aber leider nichts alltagstaugliches.

Scheinbar besitzt der TE keinen TV weil es keine Wand dafür gibt. :p
 
Zuletzt bearbeitet:
O

Obstlerbaum

Ich wünsche den Kindern schon mal viel Spaß und gute Antidepressiva. Dafür werden sie halt mit einer 50qm Galerie belohnt, man muss Prioritäten setzen. In der Erker gehört nach meinem Geschmack auch eine Hebe-Schiebetür in voller Breite.
 
South

South

Sollte es um den von mir eingestellten Grundriss gehen. Das Haus wurde für Kunden in Hamburg/Blankenese errichtet und mehrfach ausgezeichnet. Ich weiß nicht ob ein Link gegen die Forenregeln verstoßen würde, aber mit den Schlagwörtern findet man es auch in Google.

Sollte es sich tatsächlich auf den geposteten Grundriss beziehen, dann folgendes Fazit:
1. So unterschiedlich können Geschmäcker sein
2. "Verbrechen"..ich fühle mich wie im grünen Forum.
 
Zuletzt bearbeitet:
H

haydee

Auszeichnung sagt gar nichts.
Unser Nachbarhaus ist auch mehrfach ausgezeichnet

Schießscharten statt Fenster
Undichtes Dach
Mini Kammern
Dafür optisch wirklich mal was anderes

South der von dir gezeigte Grundriss ist um Welten besser als der vom TE
 
Zuletzt aktualisiert 05.10.2025
Im Forum Grundrissplanung / Grundstücksplanung gibt es 2510 Themen mit insgesamt 87166 Beiträgen


Ähnliche Themen zu Grundriss 160qm Einfamilienhaus - Verbesserungsideen?
Nr.ErgebnisBeiträge
1Grundriss ca. 170 m² Einfamilienhaus, ohne Keller mit Carport - Seite 989
2Grundriss Stadtvilla - Danke für euer Feedback - Seite 215
3Eure Meinung zum Grundriss für das EG - Seite 528
4Grundriss Einfamilienhaus. Bitte um Feedback bzw Ideen :-) - Seite 325
5Ideenfindung für Grundriss 120m2 Einfamilienhaus 12
6Meinungen zum Grundriss Bungalow 42
7Unser Grundriss... bitte um Hilfe zur Optimierung.. 33
8Grundriss und Hausplanung - bitte um eure Meinung! 13
9Grundriss 10x10 mit 2 Vollgeschossen - Seite 430
10Grundriss Einfamilienhaus Landhaus mit Garage 29
11Einfamilienhaus Grundriss 150m², Grundstücks: 420m² - Seite 371
12Grundriss für Einfamilienhaus - keine Besonderheiten? - Seite 423
13Mit Erker in die Abstandsflächen - in diesem Fall zulässig? 30
14Grundriss Einfamilienhaus, ~180m², Keller mit Satteldach - Seite 481
15Grundriss Doppelhaushälfte (7x10) - Euer Know-How ist gefragt - Seite 534
16Grundriss-Entwurf Stadtvilla mit Doppelgarage - Seite 538
17Grundriss Einfamilienhaus mit Keller - Seite 213
18Eure Meinung zu unserem Grundriss für ein Einfamilienhaus ohne Keller - Seite 322
19Grundriss Stadtvilla 160 qm, ohne Keller - Eure Meinungen dazu? 167
20Selbsterstellter Grundriss - Meinungen und Feedback erwünscht 46

Oben