H
HausbauTiNa20.04.18 22:19Hallo Zusammen,
wir freuen uns auf euer Feedback zum Grundriss.
Bebauungsplan/Einschränkungen: Kein Bebauungsplan/ Außenbereich
Größe des Grundstücks: 1.030 m²
Hang: Nein
Grundflächenzahl: Nach Nachbarbebauung
Geschossflächenzahl: Nach Nachbarbebauung
Baufenster, Baulinie und -grenze: Nach Nachbarbebauung/ ca. 10 Meter von Straße
Randbebauung
Anzahl Stellplatz: 2 Stück
Geschossigkeit: 1 geschossig
Dachform: Satteldach
Stilrichtung: Herrenhausgiebel
Ausrichtung: Süd
Maximale Höhen/Begrenzungen: Keine
weitere Vorgaben
Anforderungen der Bauherren
Stilrichtung, Dachform, Gebäudetyp: Norddeutsches Herrenhaus mit Verblender
Keller, Geschosse: 1 geschossig/ EG & DG
Anzahl der Personen, Alter: 2 Erwachsene/ 2 Kinder
Raumbedarf im EG, OG: 170 m² gesamt
Büro: Familiennutzung oder Homeoffice? Homeoffice
Schlafgäste pro Jahr: 5 Übernachtungen
offene oder geschlossene Architektur
konservativ oder moderne Bauweise: gemischt, eher konservativ
offene Küche, Kochinsel: Offen mit Insel
Anzahl Essplätze: 1
Kamin: Nein
Musik/Stereowand: Ja
Balkon, Dachterrasse: Nein
Garage, Carport: Carport
Nutzgarten, Treibhaus
weitere Wünsche/Besonderheiten/Tagesablauf, gern auch Begründungen, warum dieses oder das nicht sein soll:
Kein Kamin/ Ofen wegen Fußbodenheizung
Unterschiedliche Aufstehzeiten der Erwachsenen
Hausentwurf
Von wem stammt die Planung:
-Planer eines Bauunternehmens: GU nach unserer Anforderung
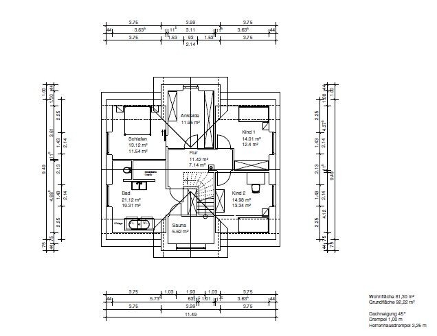
Was gefällt besonders? "Große" Diele, Elternschlafzimmer "schallgeschützt" von den Kinderzimmern
Was gefällt nicht? Warum?: Bad noch zu groß, Elternschlafzimmer vergrößern. Ankleide nur mit einer Tür gestalten und Elternschlafzimmer separater Eingang.
Preisschätzung lt Architekt/Planer:290.000
Persönliches Preislimit fürs Haus, inkl Ausstattung: Reine Hauskosten GU: 280 kEUR
favorisierte Heiztechnik: Gas mit Fußbodenheizung
Wenn Ihr verzichten müsst, auf welche Details/Ausbauten
-könnt Ihr verzichten: Velux Fenster im Bad, Sauna,
-könnt Ihr nicht verzichten: Ankleidezimmer
Warum ist der Entwurf so geworden, wie er jetzt ist? ZB
Standardentwurf vom Planer? --> Besichtigung von Musterhäusern, der modifizierte Grundriss wirkt offen und freundlich
Was macht ihn in Euren Augen besonders gut oder schlecht? Trennung von Eltern und Kinderzimmern. Großer Wohn und Essbereich. Große Diele
Was ist die wichtigste/grundlegende Frage zum Grundriss in 130 Zeichen zusammengefasst?
Sind die Kinderzimmer zu kleine? Ist das Bad zu klein wenn das Elternzimmer eine eigene Eingangstür erhält?





wir freuen uns auf euer Feedback zum Grundriss.
Bebauungsplan/Einschränkungen: Kein Bebauungsplan/ Außenbereich
Größe des Grundstücks: 1.030 m²
Hang: Nein
Grundflächenzahl: Nach Nachbarbebauung
Geschossflächenzahl: Nach Nachbarbebauung
Baufenster, Baulinie und -grenze: Nach Nachbarbebauung/ ca. 10 Meter von Straße
Randbebauung
Anzahl Stellplatz: 2 Stück
Geschossigkeit: 1 geschossig
Dachform: Satteldach
Stilrichtung: Herrenhausgiebel
Ausrichtung: Süd
Maximale Höhen/Begrenzungen: Keine
weitere Vorgaben
Anforderungen der Bauherren
Stilrichtung, Dachform, Gebäudetyp: Norddeutsches Herrenhaus mit Verblender
Keller, Geschosse: 1 geschossig/ EG & DG
Anzahl der Personen, Alter: 2 Erwachsene/ 2 Kinder
Raumbedarf im EG, OG: 170 m² gesamt
Büro: Familiennutzung oder Homeoffice? Homeoffice
Schlafgäste pro Jahr: 5 Übernachtungen
offene oder geschlossene Architektur
konservativ oder moderne Bauweise: gemischt, eher konservativ
offene Küche, Kochinsel: Offen mit Insel
Anzahl Essplätze: 1
Kamin: Nein
Musik/Stereowand: Ja
Balkon, Dachterrasse: Nein
Garage, Carport: Carport
Nutzgarten, Treibhaus
weitere Wünsche/Besonderheiten/Tagesablauf, gern auch Begründungen, warum dieses oder das nicht sein soll:
Kein Kamin/ Ofen wegen Fußbodenheizung
Unterschiedliche Aufstehzeiten der Erwachsenen
Hausentwurf
Von wem stammt die Planung:
-Planer eines Bauunternehmens: GU nach unserer Anforderung
Was gefällt besonders? "Große" Diele, Elternschlafzimmer "schallgeschützt" von den Kinderzimmern
Was gefällt nicht? Warum?: Bad noch zu groß, Elternschlafzimmer vergrößern. Ankleide nur mit einer Tür gestalten und Elternschlafzimmer separater Eingang.
Preisschätzung lt Architekt/Planer:290.000
Persönliches Preislimit fürs Haus, inkl Ausstattung: Reine Hauskosten GU: 280 kEUR
favorisierte Heiztechnik: Gas mit Fußbodenheizung
Wenn Ihr verzichten müsst, auf welche Details/Ausbauten
-könnt Ihr verzichten: Velux Fenster im Bad, Sauna,
-könnt Ihr nicht verzichten: Ankleidezimmer
Warum ist der Entwurf so geworden, wie er jetzt ist? ZB
Standardentwurf vom Planer? --> Besichtigung von Musterhäusern, der modifizierte Grundriss wirkt offen und freundlich
Was macht ihn in Euren Augen besonders gut oder schlecht? Trennung von Eltern und Kinderzimmern. Großer Wohn und Essbereich. Große Diele
Was ist die wichtigste/grundlegende Frage zum Grundriss in 130 Zeichen zusammengefasst?
Sind die Kinderzimmer zu kleine? Ist das Bad zu klein wenn das Elternzimmer eine eigene Eingangstür erhält?
Im Erdgeschoss fehlt eine Garderobe.
Keine saubere Trennung Schmutzbereich, Treppe, Toilette. Immer wieder muss man mit Hausschuhen oder Socken durch den Schmutz im Eingangsbereich.
OG ich finde die Kinderzimmer im Verhältnis zur Ankleide zu klein.
Die Ankleide bekommt die Gartenlage, die Aussicht und Kind 2 den Blick zum Nachbarn.
Wo wollt ihr die 2. Türe im Bad einbauen?
Irgendwie wirkt das OG lieblos und beengt. Ankleide bekommt die Schokoladenseite, das Bad ist zusammengestückelt Hauptsache irgendwie alles drinnen.
Keine saubere Trennung Schmutzbereich, Treppe, Toilette. Immer wieder muss man mit Hausschuhen oder Socken durch den Schmutz im Eingangsbereich.
OG ich finde die Kinderzimmer im Verhältnis zur Ankleide zu klein.
Die Ankleide bekommt die Gartenlage, die Aussicht und Kind 2 den Blick zum Nachbarn.
Wo wollt ihr die 2. Türe im Bad einbauen?
Irgendwie wirkt das OG lieblos und beengt. Ankleide bekommt die Schokoladenseite, das Bad ist zusammengestückelt Hauptsache irgendwie alles drinnen.
H
HausbauTiNa21.04.18 13:51Hallo haydee,
vielen Dank für deine Kommentare.
In rot findest du unsere Anmerkungen vor.
--> Wie könnte man das OG aus deiner Sicht auflockern?
Wir haben schon drüber nachgedacht das Ankleidezimmer aufzulösen und auf der Hausseite entsprechend beide Kinderzimmer zu positionieren. Dann hätten beide Blick in den Garten.
Wir Eltern würden dann in das Kind 2 ziehen. Allerdings hat unser Zimmer dann wieder Wandkontakt mit dem Kinderzimmer.
vielen Dank für deine Kommentare.
In rot findest du unsere Anmerkungen vor.
haydee schrieb:--> Was meinst du mit "zusammengestückelt"?
Im Erdgeschoss fehlt eine Garderobe. --> Die kommt neben die Tür des Hauswirtschaftsraum.
Keine saubere Trennung Schmutzbereich, Treppe, Toilette. Immer wieder muss man mit Hausschuhen oder Socken durch den Schmutz im Eingangsbereich. --> Interessanter Punkt, wie kann man das aus deiner Sicht umgehen.
OG ich finde die Kinderzimmer im Verhältnis zur Ankleide zu klein.
Die Ankleide bekommt die Gartenlage, die Aussicht und Kind 2 den Blick zum Nachbarn.
--> Interessanter Punkt, über den wir schon gegrübelt haben. Hast du hier konkrete Verbesserungsvorschläge? Zur Ankleide siehe nächster Punkt
Wo wollt ihr die 2. Türe im Bad einbauen? --> Im Bad soll keine zusätzliche Tür rein. Die Schiebetür zwischen Ankleide und Elternzimmer soll raus, dafür soll eine Tür vom Elternzimmer in den Flur gehen --> weniger Störfaktor für den verbleibenden Erwachsenen wenn sich jemand anzieht. Zudem hätten wir dann die Möglichkeit, die Kleiderschränke der Kinder ebenfalls in die Ankleide zu stellen.
Irgendwie wirkt das OG lieblos und beengt. Ankleide bekommt die Schokoladenseite, das Bad ist zusammengestückelt Hauptsache irgendwie alles drinnen.
--> Wie könnte man das OG aus deiner Sicht auflockern?
Wir haben schon drüber nachgedacht das Ankleidezimmer aufzulösen und auf der Hausseite entsprechend beide Kinderzimmer zu positionieren. Dann hätten beide Blick in den Garten.
Wir Eltern würden dann in das Kind 2 ziehen. Allerdings hat unser Zimmer dann wieder Wandkontakt mit dem Kinderzimmer.
Garderobe vor der Treppe.
Entweder andere Treppenform oder einen Windfang vorgesetzt. Wobei der die Fassade und Wirkung des Giebels zerstört.
Da fällt vielleicht noch jemanden was ein.
Schau dir mal das Bad an. Es hat so viele Ecken und alles gequetscht.
Die beiden Kinderzimmer zum Garten und die Ankleide auflösen. Gefällt mir.
Dann die Wände vom Bad und Kind 2 Richtung Garten verschieben. Dann passt evtl die Sauna noch ins Bad und der jetzige Saunaplatz gibt Abstellraum.
Meine Meinung nach schluckt ein voller Kleiderschrank zur Kinderzimmerwand viele Geräusche. Türen sind auch nicht Schalldicht, sondern dämpfen nur.
Entweder andere Treppenform oder einen Windfang vorgesetzt. Wobei der die Fassade und Wirkung des Giebels zerstört.
Da fällt vielleicht noch jemanden was ein.
Schau dir mal das Bad an. Es hat so viele Ecken und alles gequetscht.
Die beiden Kinderzimmer zum Garten und die Ankleide auflösen. Gefällt mir.
Dann die Wände vom Bad und Kind 2 Richtung Garten verschieben. Dann passt evtl die Sauna noch ins Bad und der jetzige Saunaplatz gibt Abstellraum.
Meine Meinung nach schluckt ein voller Kleiderschrank zur Kinderzimmerwand viele Geräusche. Türen sind auch nicht Schalldicht, sondern dämpfen nur.
Die Lage des Schornsteins bringt mich unweigerlich zum kürzesten Zimmermannswitz überhaupt: "Firstpfette auswechseln" *grins*
https://www.instagram.com/11antgmxde/
https://www.linkedin.com/company/bauen-jetzt/
https://www.instagram.com/11antgmxde/
https://www.linkedin.com/company/bauen-jetzt/
H
HausbauTiNa21.04.18 16:0311ant schrieb:
Die Lage des Schornsteins bringt mich unweigerlich zum kürzesten Zimmermannswitz überhaupt: "Firstpfette auswechseln" *grins*Ich kann dir leider nicht folgen, jedoch wird der Schornstein nicht verbaut, da wir keinen Ofen haben werden. Die Zeichnung wird entsprechend noch geändert.
Ähnliche Themen