Findet ihr den Grundriss unserer Stadtvilla so Ok?

4,30 Stern(e) 3 Votes
Zuletzt aktualisiert 24.11.2025
Sie befinden sich auf der Seite 5 der Diskussion zum Thema: Findet ihr den Grundriss unserer Stadtvilla so Ok?
>> Zum 1. Beitrag <<

Y

ypg

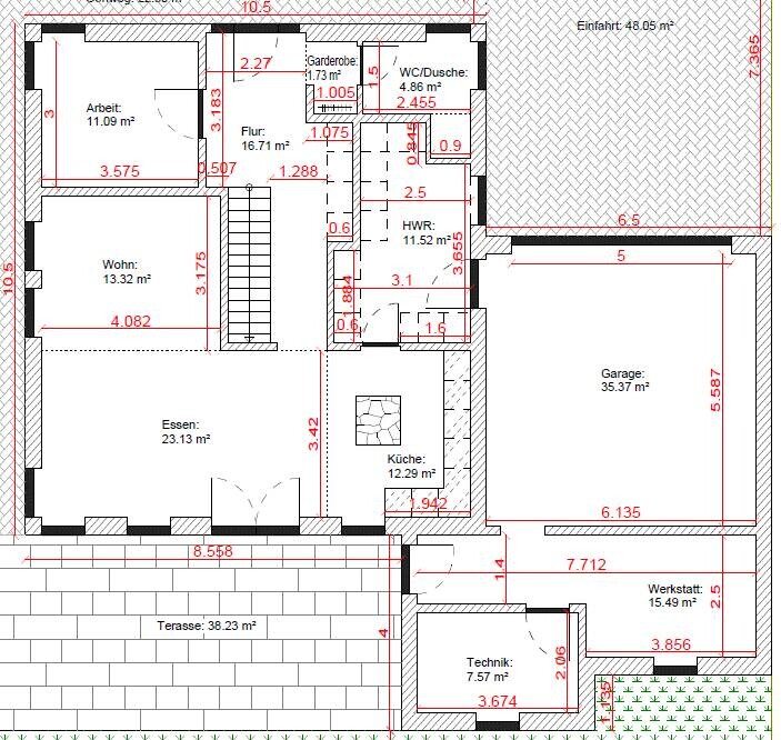
Die ausrichtung der Küche gibt es nicht her, ein Fenster zusätzlich einzuplanen, da diese ja zur Garage zeigt. Wir gehen davon aus, dass die Küche genug Tageslicht abbekommt!

[/QUOTE]

... und deshalb zB ist der Grundriss auch nicht ok!
Man kann viele Erklärungen abgeben, warum , wieso, weshalb - es ändert nichts an der Tatsache, das die Küche kein Fenster hat, Ihr auf Glühlampen angewiesen seid, dennoch aber im Gäste-WC zwei Fenster habt, die dem Pieseln und dem Duschen nicht gerade dienlich sind... Und das wegen der Optik von außen!
Dafür ist das Wohnzimmer zu klein, der Essbereich und der Flur viel zu gross.

Da Ihr von den symmetrischen Eckfenstern nicht wegkommen mögt, würde ich mal vorschlagen, die Küche und den Wohnbereich zu wechseln :)
 
F

F. K.

Soll es ein "Ankleidezimmer" mit Kleiderschrank werden oder ein begehbarer Kleiderschrank mit offenen Regalen/Kleiderstangen? Einen Kleiderschrank kannst du auch so im Schlafzimmer aufstellen. Ein begehbarer Kleiderschrank hingegen bietet viel mehr Gestaltungsmöglichkeiten (Ideen dazu kann man sich bei dem großen schwedischen Möbelhaus einholen, man kann aber auch zugeschnittene Regal-Bretter vom Baumarkt holen) und du kannst da im Grunde doppelt so viel an Kleidung und Wäsche unterbringen als in einem "klassischen" Kleiderschrank (gemessen an der Wandlänge). Und wenn es dir wichtig ist, dich mal in Ruhe umzuzuehen/anzuziehen ohne den schlafenden Gatten/Partner/Schlafzimmermitbewohner zu wecken, dann solltet ihr euch den Zutritt über den Flur echt überlegen.

Nicht alles, was schön ist, ist praktisch. nicht alles was praktisch ist, ist schön. Das erinnert mich an Schuhe, ist aber bei der Hausplanung nicht anders. :)


Unser bisheriger Plan war so, dass wir einen begehbaren Kleiderschrank errichten und dieser über das Schlafzimmer erreichbar ist. Wir haben uns aber mittlerweile damit abgefunden, dass das Badezimmer nur 1 Tür bekommt!

Aber endgültig verplant ist es auch noch nicht!

Mfg
 
T

toxicmolotof

Und immer halb durch die Küche, wenn man aus dem Auto ins Haus möchte. Dazu liegt die Tür zur Garage denkbar schlecht. Wenn man sich vorstellt, dass nach 3 Jahren das Übliche Gerümpel in der Garage steht, dazu noch ein paar Regale. Dann ist der Weg des Fahrers zur Tür durch das eigene Auto blockiert.
 
Zuletzt aktualisiert 24.11.2025
Im Forum Grundrissplanung / Grundstücksplanung gibt es 2536 Themen mit insgesamt 88005 Beiträgen


Ähnliche Themen zu Findet ihr den Grundriss unserer Stadtvilla so Ok?
Nr.ErgebnisBeiträge
1Grundriss Bungalow 150qm mit Garage - Seite 1379
2Schalter für Rollläden am Fenster oder an der Tür? 38
3Fenster im Gäste-WC/Gästezimmer trotz Garage möglich? 33
4Tür Haus/Garage: Nebeneingangstür als Brandschutztür? - Seite 327
5Hörmann T30 Tür zwischen Wohnhaus & Garage - U-Wert - Seite 211
6Haus ohne Garage und Keller? Ausbau Dachboden? Fresswarze? - Seite 585
7Grundrissfrage, Treppe, Fenster, Ausrichtung 12
8 2 Vollgeschosse, Durchgang Garage, Hauswirtschaftsraum unter Treppe 25
9Grundstück - Baufenster - Lage von Haus und Garage - Seite 644
10Grundriss Einfamilienhaus - Problemfall Küche 20
11Grundrissplanungen Einfamilienhaus und Garage - Seite 232
12Planungsbeginn neue Küche - Seite 222
13Unsere neue erste Ikea Küche - Planung und Vorbereitung - Seite 369
14Grundriss Neubau Einfamilienhaus: Fenster/Türen/Innenwände Größe/Anordnung ok? - Seite 220
15Haus, Garage / Carport auf dem Grundstück platzieren - Seite 493
16Stadtvilla 160-170 m², Problematik Anschluss Windfang mit Garage - Seite 332
17Grundrissplanung Einfamilienhaus (190 qm) mit Garage - Seite 218
18Bungalow 135qm: Grundriss + Fenster - Seite 10104
19Heizung in Küche "notwendig"? - Seite 435
20REH - Grundrissplanung - Küche zu klein - Seite 430

Oben