Findet ihr den Grundriss unserer Stadtvilla so Ok?

4,30 Stern(e) 3 Votes
Zuletzt aktualisiert 18.11.2025
Sie befinden sich auf der Seite 6 der Diskussion zum Thema: Findet ihr den Grundriss unserer Stadtvilla so Ok?
>> Zum 1. Beitrag <<

K

klblb

Guest
FKK-Gäste-WC und dunkle Küche. Hm, optimal finde ich das nicht. Könnt Ihr die Garage nach oben verschieben, damit sie Hauswirtschaftsraum und Gäste-WC verdunkeln anstatt die Küche? In der Küche hält man(n und Frau) viel länger auf und dort wären die Eckfenster toll.
 
Y

ypg

@F. K. :
man sieht an Deinem Entwurf und dieser Diskussion ganz deutlich, dass es viele Ideen von Euch zu einem arbeitsintensiven Entwurf gebracht haben, der aber auf den dritten und vierten Blick ganz arge Defizite aufweist.
Dafür ist dieses Forum da :)

Ich denke, der Wunsch nach zB. grossem Bad, Ankleidezimmer, gerade Treppe, Doppelgarage mit Zugang Haus, Symmetrie, eingewinkelte Terrasse usw. ist hier zwar entstanden, dennoch von Laien.

Ich frage mich derweil (auch ich bin Laie), ob eine Heizung in einem Anbau gut steht. Schliesslich muss man jetzt den Anbau inkl. Garage mit dämmen... sind diese Kosten es wert?

Ihr habt jetzt die Defizite gezeigt bekommen (auch ohne Lageplan) - einem guten Architekten wären diese Defizite wohl nicht passiert, ausser der Bauherr besteht auf Diesem und Jenem.

Jetzt plant Ihr krampfhaft um diesen Plan herum (es stecken ja so viele Stunden und Gedanken darin), Wände bekommen jetzt Winkel, kleine Nischen werden gezogen, obwohl ein neues Angehen wohl sinnvoller wäre.
 
F

F. K.

Hallo,

wir haben unseren Plan etwas überarbeitet.

Was würdet ihr dazu sagen?


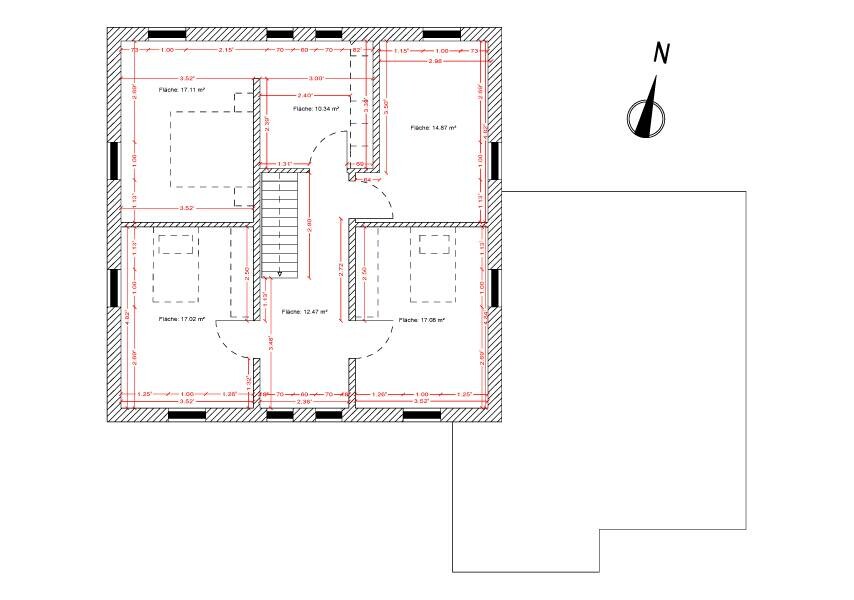
2D-Hausgrundriss mit Zimmern, Türen und Maßangaben
grundrissplanung-hausbau-2d-grundriss.jpg

Grundriss eines Hauses mit mehreren Zimmern, Treppenaufgang und Maßen


3D-Modell eines modernen Hauses mit Garage auf grünem Grundstück
 
Zuletzt bearbeitet:
F

F. K.

Oh man, sorry irgendwie haut es mobil nicht ganz hin mit dem Anhang. Doppel Bilder bitte löschen

Danke
 
Zuletzt aktualisiert 18.11.2025
Im Forum Grundrissplanung / Grundstücksplanung gibt es 2536 Themen mit insgesamt 87965 Beiträgen


Ähnliche Themen zu Findet ihr den Grundriss unserer Stadtvilla so Ok?
Nr.ErgebnisBeiträge
1Fenster im Gäste-WC/Gästezimmer trotz Garage möglich? - Seite 433
2WC-Fenster Gäste-WC neben der Eingangstür - inzwischen nogo? - Seite 744
3Planung Gäste-WC im Neubau - Wie groß muss es sein? (DIN?) - Seite 2107
4Entwurf Einfamilienhaus mit Garage/Carport - bitte um Bewertung 22
5Entwurf für Anbau/Umbau von Einfamilienhaus zu ZFS 17
6Grundriss erster Entwurf - Meinungen erwünscht 21
7REH - Grundrissplanung - Küche zu klein - Seite 430
8Grundriss-Entwurf für Einfamilienhaus 135 qm - Ideen und Ratschläge gesucht 29
9Grundriss Einfamilienhaus, 200m2, 2 Vollgeschosse, Garage, ohne Keller 39
10Geplanter Anbau! Grundrissentwurf ok? Erfahrungen? 19
11Hausbau 2.0 - erster Grundriss-Entwurf - Seite 12155
12Grundriss Einfamilienhaus, ca. 200qm ohne Keller - Einschätzung - Seite 9172
13Grundriss Bungalow 150m² - Meinungen erwünscht - Seite 430
14Gäste-WC: Decke abhängen oder Rohr verkleiden? - Seite 216
15Lichtanschluss falsche Stelle Gäste-WC 29
16Beispiel Kaltwasserhahn für Gäste-WC 12
17Lage Gäste-WC - Eingangsbereich? 28
18Gäste-WC (1,65qm) und Bad (4,88qm) Sanierung 21
19Gäste-WC Anordnung - Tipps? 19
20Rollladen im Gäste-WC ja oder nein? 35

Oben