Erste Grundrissplanung auf Karopapier: Hang, Keller + 2 Geschosse.

4,80 Stern(e) 16 Votes
Zuletzt aktualisiert 22.12.2025
Sie befinden sich auf der Seite 10 der Diskussion zum Thema: Erste Grundrissplanung auf Karopapier: Hang, Keller + 2 Geschosse.
>> Zum 1. Beitrag <<

M

majuhenema

@majuhenema hast du ein Update für uns?
Na klar, gerne! :)

Die beiden genannten GU erstellen gerade das Angebot. GU1 geht auf praktisch alles ein, fragt gezielt nach, wen etwas hakt und hat selbst Ideen, die uns nicht gekommen sind.
Die Planung mit GU2 läuft etwas schleppender und es ist aus verschiedenen Gründen etwas dahinter. Es genießt in unserer Region, zumindest bei den Bauherren, mit denen wir gesprochen haben, einen nicht preiswerten, aber qualitativ sehr guten Ruf.
Bei GU3 läuft die Sache sehr zäh. Anfang Januar wollten wir ein Erstgespräch vereinbaren. Dies wurde uns mit dem Hinweis auf den Lockdown erst Mitte Februar in Aussicht gestellt. Der Termin wurde nun erneut auf Mitte März verschoben. Auf die Rückfrage nach einem telefonischen Erstgespräch oder gar per Videokonferenz wurde nicht eingegangen. Naja, dafür ist die Homepage jetzt neu. Eigentlich wäre es bei mir aus diesen Gründen schon raus. Allerdings haben gute Freunde mit ihnen gebaut und waren sehr zufrieden.

Die beiden Fertighausanbieter sind komplett raus.

Sobald die ersten Angebote mit den konkreten Plänen eintrudeln, melde ich mich wieder.
 
M

majuhenema

Ich möchte nochmal ein Update schreiben und freue mich über eure Einschätzung. Speziell geht es um GU1 aus obigem Beitrag.

Wie geschrieben verliefen sämtliche Gespräche mit dem Chef auf Augenhöhe und sehr konstruktiv. Er kalkulierte unsere hier vorgestellte Version, die rund 197qm ohne Keller hat (mit Wandstärke 0, also allein aufgrund der "Wunschwohnfläche") und unterbreitete uns Mitte Januar ein Angebot i. H. v. 635.000 Euro + 71.000 Euro für Stützmaßnahmen. Dieses Angebot enthielt keinen genauen Grundriss.
In einem weiteren Gespräch besprachen wir Einsparmöglichkeiten. Wir strichen hierbei den Balkon im OG, verringerten den sehr großzügigen Allraum um 1m in seiner Breite und tauschten drei (seiner Aussage nach sehr teuren Hebe-Schiebe-Türen zu je circa 10 TEuro) gegen normale Balkontüren bzw. ein fixes Element. Vor Ort errechnete er einen Preis i. H. v. 597.000 Euro für 185qm ohne Keller. Die Einsparideen stammten sowohl von uns, als auch von ihm. Mit allem sind wir sehr einverstanden.
Anschließend verkleinerten wir diesen Grundriss erneut und sparten 4qm ein. Ein Mitarbeiter übersetzte unseren jetzigen "Wunschgrundriss" in einen "Bauzeichnergrundriss". Zu unserer positiven Überraschung schien sich unserer "Wunschgrundriss mit Wandstärke 0" sehr gut in einen "echten Grundriss", logischerweise um Vergrößerung um die Wandstärken, übersetzen. Diesen Entwurf, der insgesamt 177,5qm ohne Keller beträgt, gaben wir sehr gerne zur genauen Angebotserstellung frei.

Zu unserer Enttäuschung erreichte uns vergangene Woche ein neues schriftliches Angebot, dieses Mal mit Grundriss. Dessen Entwürfe haben nur noch wenig mit unserem freigegebenen Entwurf gemein und der Grundriss zwickt an mehreren Ecken. Insgesamt ist alles nochmal deutlich kleiner geworden. Die Wohnfläche beläuft sich nun auf 159qm ohne Keller. Zu unserem Unverständnis beträgt der Angebotspreis ebenfalls 597.000 Euro + Stützmaßnahmen, also dem Preis von unserer zweitgrößten, 24qm größeren, Variante.

Mich lässt das Ganze recht ratlos zurück. Zum Vergleich: Von der ersten Kalkulation mit 197qm inklusive Balkon und drei Hebe-Schiebe-Türen zu 635 TEuro zu 159qm ohne Balkon und ohne Hebeschiebetüren zu 597 TEuro herrscht, im Gegensatz zum Angebotspreis, in Sachen Wohngefühl eine deutliche Diskrepanz.

Ich frage mich nun, ob er das erste Angebot einfach viel zu offensiv geplant oder ob das letzte Angebot eventuell falsch kalkuliert ist?
 
M

majuhenema

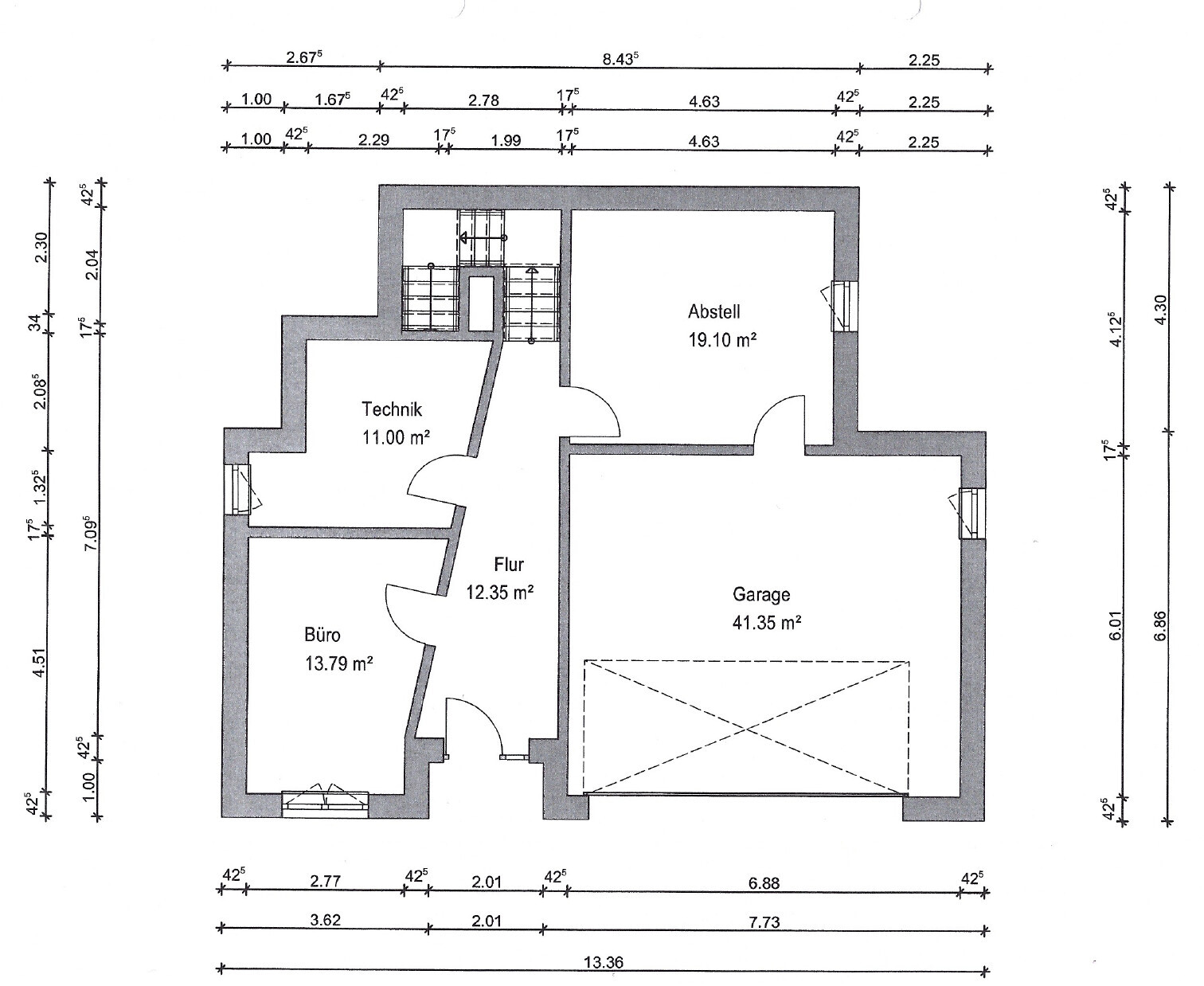
Das hier ist der Grundriss des konkreten Angebotes zu 597.000 Euro. Hier gefällt uns weder der Keller, noch der Allraum, noch die Kinderzimmer.

Grundriss: Technik 11 m²; Büro 13,79 m²; Flur 12,35 m²; Abstell 19,10 m²; Garage 41,35 m².


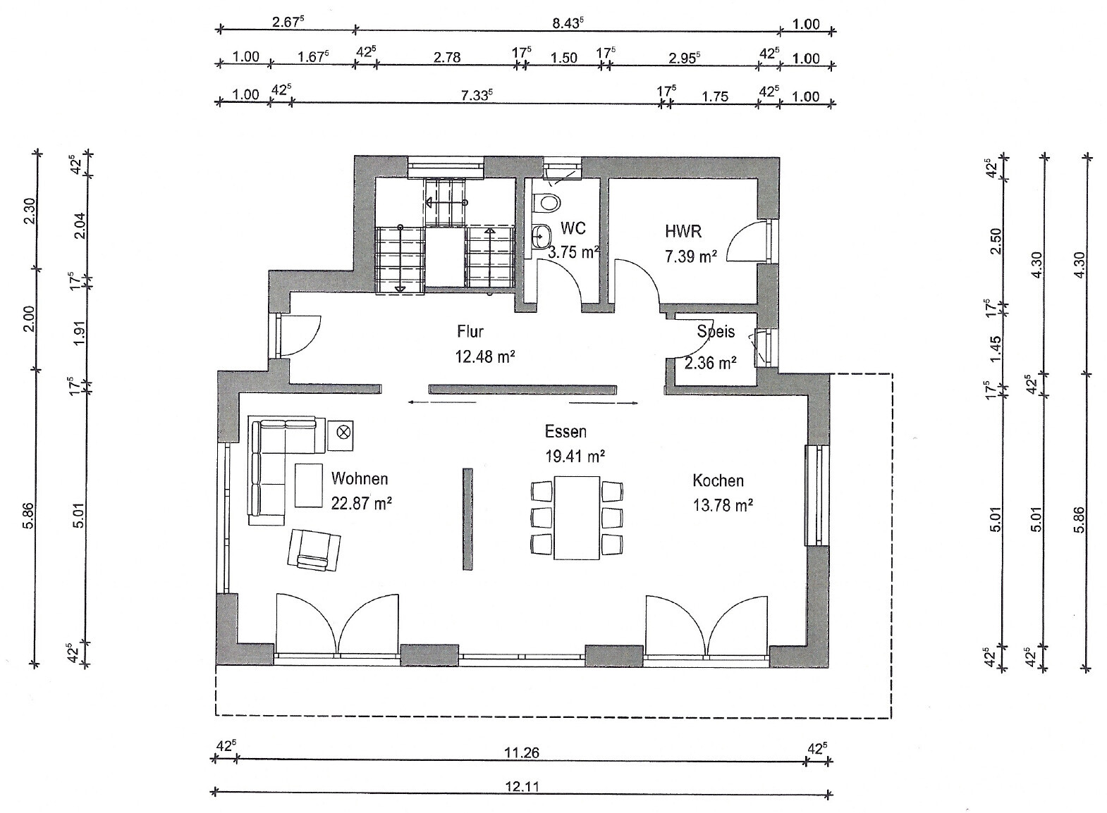
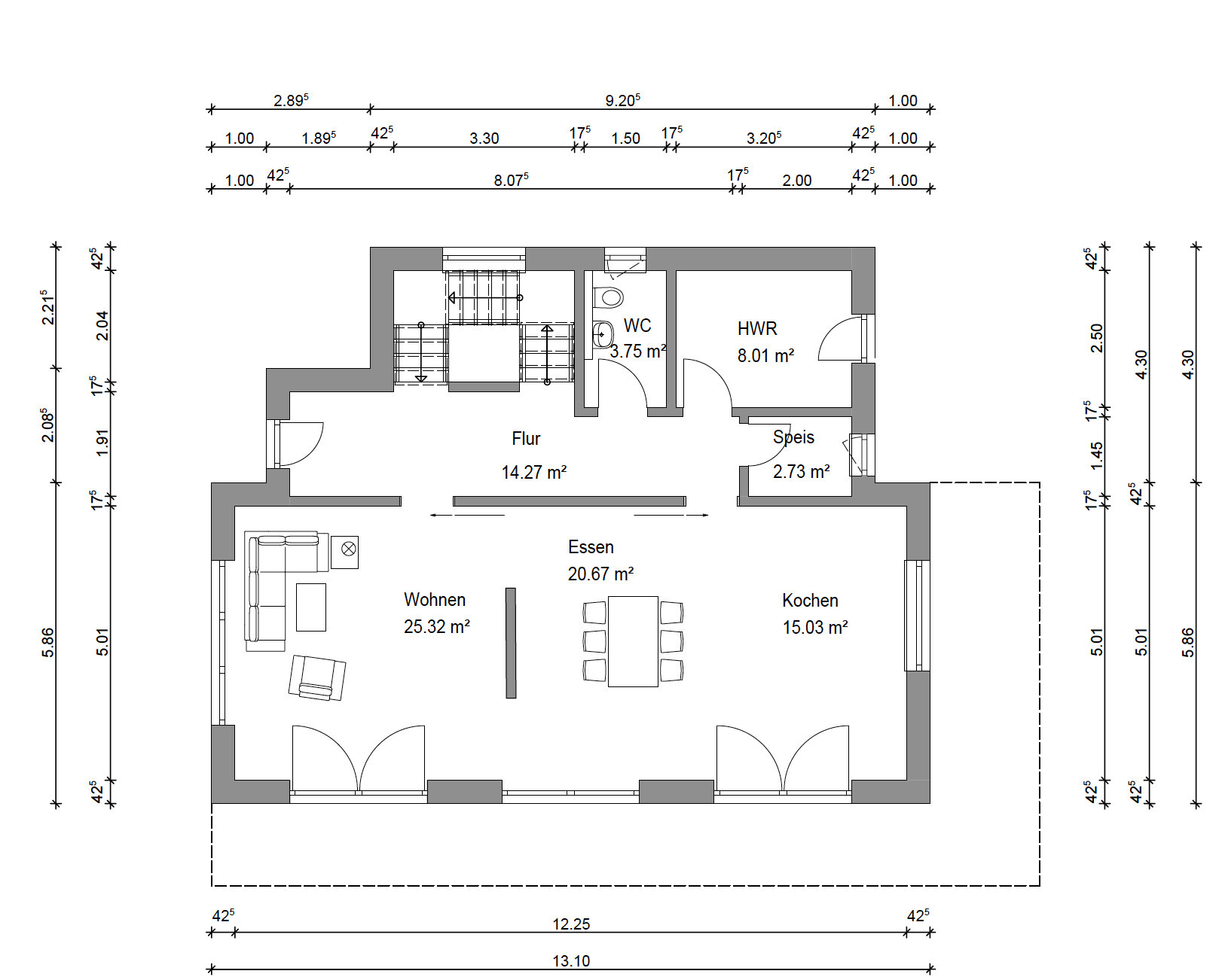
Grundriss eines Hauses; offenes Erdgeschoss mit Wohnen, Essen, Kochen, Flur, WC, HWR und Speis.


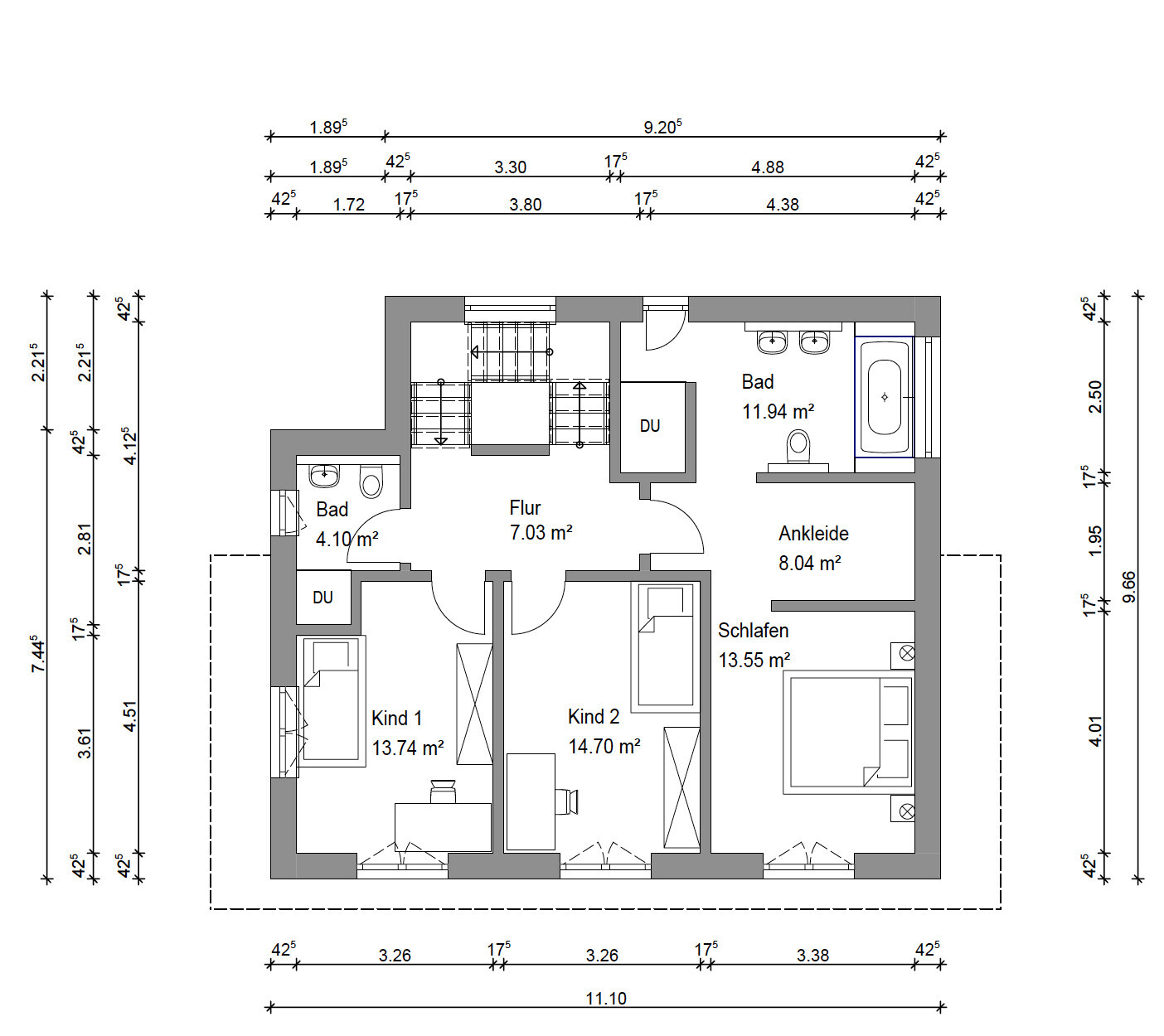
Grundriss eines Hauses: Obergeschoss mit Flur, Schlafen, zwei Kinderzimmer, Ankleide, Bad, Dusche.
 
Zuletzt aktualisiert 22.12.2025
Im Forum Grundrissplanung / Grundstücksplanung gibt es 2554 Themen mit insgesamt 88554 Beiträgen


Ähnliche Themen zu Erste Grundrissplanung auf Karopapier: Hang, Keller + 2 Geschosse.
Nr.ErgebnisBeiträge
1Entwurf / Verbesserung Einfamilienhaus 150-175m² mit Walmdach und Keller - Seite 339
2Entwurf EFH, 2 Vollgeschosse, Satteldach, kein Keller, Doppelgarage - Seite 431
3Erster Entwurf Einfamilienhaus 150m² mit Keller 38
4Grundriss-Entwurf: Einfamilienhaus mit Keller; 560qm Grundstück - Seite 365
5Grundriss-Entwurf: Einfamilienhaus; mit Keller; 800qm Grundstück - Seite 210
6Einfamilienhaus 175qm ohne Keller, zu groß? 212
7Grundrissplan Einfamilienhaus 180qm + Keller in Rhein-Main 38
8Klassisches Einfamilienhaus 200qm (plus Keller) Tipps? 32
9Grundriss Bungalow 160-170qm mit Keller - Seite 15175
10Grundriss Einfamilienhaus mit Keller und Garage 50
11Grundriss Einfamilienhaus 136m² mit Garage & Keller 17
12Grundriss, Hausanordnung EFW 150m2, Keller + Einliegerwohnung - Feedback erwünscht - Seite 667
13Grundrissentwurf für 220m² Einfamilienhaus - Seite 22488
14Grundriss erster Entwurf - Meinungen erwünscht 21
15Planung Grundriss / Erster Entwurf für erstes Feedback 32
16Neubauplanung - Einfamilienhaus 160 qm ohne Keller - Grundriss, Kosten usw.. 29
17Häuser ohne Keller: Stauraum Hobby-Keller? - Seite 449
18Grundriss Einfamilienhaus, ca. 200qm ohne Keller - Einschätzung - Seite 19172
19Entwurf Einfamilienhaus mit Garage/Carport - bitte um Bewertung - Seite 222
20Haus ohne Garage und Keller? Ausbau Dachboden? Fresswarze? - Seite 1285

Oben