Entwurf / Verbesserung Einfamilienhaus 150-175m² mit Walmdach und Keller

4,50 Stern(e) 6 Votes
Zuletzt aktualisiert 24.11.2025
Sie befinden sich auf der Seite 3 der Diskussion zum Thema: Entwurf / Verbesserung Einfamilienhaus 150-175m² mit Walmdach und Keller
>> Zum 1. Beitrag <<

P

PitFlocke

Dann aber bitte den Balkon "überarbeiten"
was meinst du damit genau?

Brr... wer will das???
Ja etwas Licht damit vielleicht das aufstehen etwas leichter fällt

Wofür soll der sein???
Der Balkon? Balkon wäre wenns mal sein muss zum rausliegen, jedoch wird das eher nicht der Fall sein wenn man eine Terrasse hat. Eher zum vielleicht im Sommer die Wäsche zu trocknen welche auch im OG gewaschen werden soll.

Ich würde mal gern einen Entwurf mit mittelliegender Treppe und völlig neuer Ostaufteilung sehen
Muss ich suchen, habe ich einen von einem anderen Planer aber gefällt mir persönlich nicht so gut.....
 
kaho674

kaho674

In Österreich heißt das Abstandsnachsicht welche du beim Nachbarn einholen musst, wenn du nicht die gesetzlichen Abstände einhalten möchtest.
Ach so. Andere Länder...
Muss ich nochmals prüfen, denn mir wäre der Platz im Süden bzw. Westen wichtig. Den Platz Richtung Norden kann ich sowieso kaum nutzen.
Darum ging es ja. Die ganze Garagengeschichte noch mehr nach Norden zu schieben um mehr Südgarten zu haben. Aber Eure Grenzgesetze sind halt anders.
 
P

PitFlocke

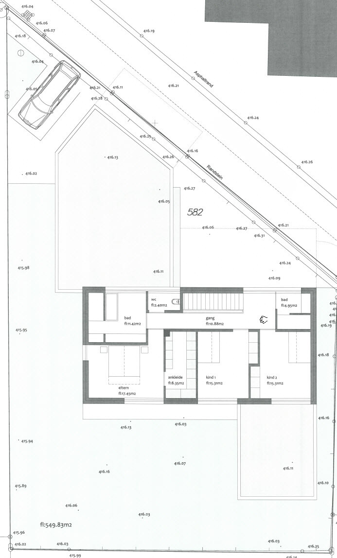
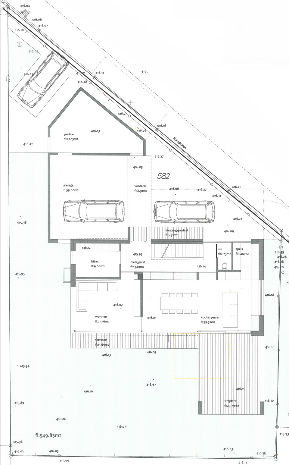
Hier noch der Erstentwurf eines anderen Planers für das Einfamilienhaus mit einer zentraleren Stiege. Aus unserer Sicht nicht schlecht, aber durch die zentrale Stiege kann eine Diele kaum platziert werden.
Die Abstände auf diesem Plan sind etwas zu schmal. Bedeutet dass das Haus hier auch noch mehr Richtung Süden platziert werden müsste!

Grundriss eines Hauses mit Garage, Wohnbereich, Küche/Essen, Büro und Terrasse.


Grundriss eines Hauses: Eltern- und Kinderzimmer, Bad, WC, Flur, Ankleide; Auto vor Haus.
 
I

Ibaaa

Hallo PitFlocke,

den 2ten Entwurf, den du eingestellt hast, finde ich erst mal persönlich besser. Sieht "runder" aus.

Den Geräteraum an der Garage würde ich weglassen, weil es einen Keller gibt.
Die Speise ist groß genug - ich würde da einfach nur den Vorrat für die Küche und den täglichen "Bedarf" (Putzzeug etc.) für Eß- und Wohnzimmer unterbringen und die Speise abschließen und ein wesentlich kleineres Fenster.

Die Waschmaschine würde ich auch in den Keller verbannen. Liegt aber auch daran, daß ich ein Fan bin die Wäsche auf zuhängen zum trocknen und den Raum hat man in einem Hauswirtschaftsraum (im EG oder OG) in der Regel nicht so richtig.

OG find ich so wie es ist klasse.

Gruß
 
Y

ypg

Hier noch der Erstentwurf eines anderen Planers für das Einfamilienhaus mit einer zentraleren Stiege. Aus unserer Sicht nicht schlecht, aber durch die zentrale Stiege kann eine Diele kaum platziert werden.
Die Abstände auf diesem Plan sind etwas zu schmal. Bedeutet dass das Haus hier auch noch mehr Richtung Süden platziert werden müsste!
Grundsätzlich finde ich den Entwurf sich viel besser. viel besser
Zwar kann man das ein oder andere noch überarbeiten, es ist aber der bessere Entwurf (wenn ich das so sagen darf...“ist ... besser“, ja, runder von der Gliederung und dem Aufbau her)
 
11ant

11ant

Zuletzt aktualisiert 24.11.2025
Im Forum Grundrissplanung / Grundstücksplanung gibt es 2536 Themen mit insgesamt 87999 Beiträgen


Ähnliche Themen zu Entwurf / Verbesserung Einfamilienhaus 150-175m² mit Walmdach und Keller
Nr.ErgebnisBeiträge
1Erster Entwurf Einfamilienhaus 150m² mit Keller 38
2Grundriss-Entwurf: Einfamilienhaus mit Keller; 560qm Grundstück - Seite 365
3Entwurf EFH, 2 Vollgeschosse, Satteldach, kein Keller, Doppelgarage - Seite 231
4Grundriss-Entwurf: Einfamilienhaus; mit Keller; 800qm Grundstück - Seite 210
5Erste Grundrissplanung auf Karopapier: Hang, Keller + 2 Geschosse. 80
6Klassisches Einfamilienhaus 200qm (plus Keller) Tipps? 32
7Grundriss Einfamilienhaus mit Keller und Garage 50
8Grundriss erster Entwurf - Meinungen erwünscht 21
9Planung Grundriss / Erster Entwurf für erstes Feedback 32
10Grundriss Einfamilienhaus, ca. 200qm ohne Keller - Einschätzung - Seite 19172
11Entwurf Einfamilienhaus mit Garage/Carport - bitte um Bewertung - Seite 222
12Eigenentwurf Grundriss Bungalow mit Keller 10
13Grundriss 180qm plus Keller - 12,40mx9,04m - Seite 321
14Einfamilienhaus mit Keller - Optimierungsvorschläge? 12
151. Entwurf Grundriss Einfamilienhaus 150 qm 50
16Erster Entwurf Grundriss Einfamilienhaus (ca. 200qm) - Bitte um Feedback 46
17Grundriss Einfamilienhaus mit Keller 13
1812x9,6m 2 Vollgeschosse, Keller, DG, 4 Kinderzimmer - Seite 4153
19Entwurf für ein Einfamilienhaus mit 160-180qm - Verbesserungsvorschläge? - Seite 7122
20Einfamilienhaus Entwurf - ca. 160-170qm / Innovatives Satteldach - Seite 671

Oben