K
Katharina_3511.12.16 13:25Hallo zusammen,
nachdem wir ein Grundstück erworben haben, beschäftigen wir uns nun intensiv mit der Entwurfsplanung unseres Hauses. Zahlreiche Beträge hier im Forum waren uns bereits eine große Hilfe bei unserem Hausprojekt. Nun würden wir gerne hier unsere Entwürfe einstellen, um Eure Meinung zu hören.
-----------------------------------------------------------------------------
Bebauungsplan/Einschränkungen
Größe des Grundstücks: ca. 550, 17m x 33 m
Dachform: Satteldach
Ausrichtung Grundstück: Süd-West-Lage
Anforderungen der Bauherren
Stilrichtung, Dachform, Gebäudetyp: modern
Keller, Geschosse: 2 Geschosse mit Keller
Anzahl der Personen: 4 (2 Erwachsene und 2 Kinder)
Arbeitszimmer: ja.
Schlafgäste pro Jahr: 6-10 / Jahr
offene oder geschlossene Architektur: offener Wohn-, Küchen-, Essbereich. Küche sollte vom Wohnbereich "räumlich etwas" abgetrennt sein.
konservativ oder moderne Bauweise: modern
offene Küche, Kochinsel: ja
Kamin: gewünscht
Balkon: Nein
Garage, Carport: Einzelgarage, die Breite des Grundstücks läßt keine Doppelgarage zu
weitere Wünsche: gerade Treppe, Sauna im Bad, direkter Zugang vom Schlafzimmer ins Bad
Hausentwurf
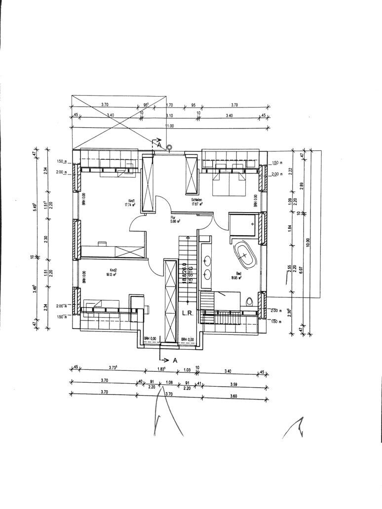
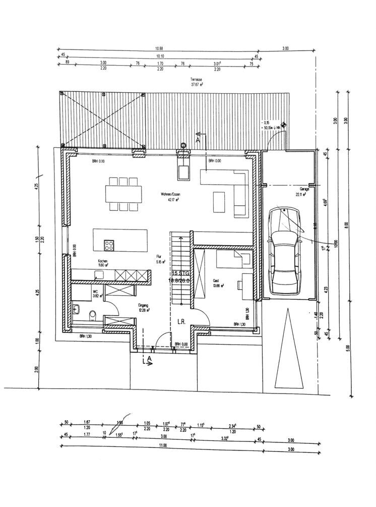
Was gefällt besonders?: die Raumaufteilung im EG entspricht mit Ausnahme des Kamins unseren Vorstellungen
Was gefällt nicht?: EG: derzeit scheint uns der Abstand vom Wohnbereich zum Kamin sehr knapp.
OG: die Kinderzimmer könnten etwas kleiner sein, dafür das Schlafzimmer und Bad etwas größer. Ursprünglich waren beide Kinderzimmer zum Garten hin geplant, dann fehlte aber der direkte Durchgang vom Schlafzimmer ins Bad.
Wenn Ihr verzichten müsst, auf welche Details/Ausbauten
-könnt Ihr verzichten: ggf. Kamin
-könnt Ihr nicht verzichten: die Anzahl der Räume entspricht unserer Vorstellung
Über Eurer Feedback und Kritik würden wir uns sehr freuen!
Viele Grüße
Katharina







nachdem wir ein Grundstück erworben haben, beschäftigen wir uns nun intensiv mit der Entwurfsplanung unseres Hauses. Zahlreiche Beträge hier im Forum waren uns bereits eine große Hilfe bei unserem Hausprojekt. Nun würden wir gerne hier unsere Entwürfe einstellen, um Eure Meinung zu hören.
-----------------------------------------------------------------------------
Bebauungsplan/Einschränkungen
Größe des Grundstücks: ca. 550, 17m x 33 m
Dachform: Satteldach
Ausrichtung Grundstück: Süd-West-Lage
Anforderungen der Bauherren
Stilrichtung, Dachform, Gebäudetyp: modern
Keller, Geschosse: 2 Geschosse mit Keller
Anzahl der Personen: 4 (2 Erwachsene und 2 Kinder)
Arbeitszimmer: ja.
Schlafgäste pro Jahr: 6-10 / Jahr
offene oder geschlossene Architektur: offener Wohn-, Küchen-, Essbereich. Küche sollte vom Wohnbereich "räumlich etwas" abgetrennt sein.
konservativ oder moderne Bauweise: modern
offene Küche, Kochinsel: ja
Kamin: gewünscht
Balkon: Nein
Garage, Carport: Einzelgarage, die Breite des Grundstücks läßt keine Doppelgarage zu
weitere Wünsche: gerade Treppe, Sauna im Bad, direkter Zugang vom Schlafzimmer ins Bad
Hausentwurf
Was gefällt besonders?: die Raumaufteilung im EG entspricht mit Ausnahme des Kamins unseren Vorstellungen
Was gefällt nicht?: EG: derzeit scheint uns der Abstand vom Wohnbereich zum Kamin sehr knapp.
OG: die Kinderzimmer könnten etwas kleiner sein, dafür das Schlafzimmer und Bad etwas größer. Ursprünglich waren beide Kinderzimmer zum Garten hin geplant, dann fehlte aber der direkte Durchgang vom Schlafzimmer ins Bad.
Wenn Ihr verzichten müsst, auf welche Details/Ausbauten
-könnt Ihr verzichten: ggf. Kamin
-könnt Ihr nicht verzichten: die Anzahl der Räume entspricht unserer Vorstellung
Über Eurer Feedback und Kritik würden wir uns sehr freuen!
Viele Grüße
Katharina
Ich find das so ganz stimmig. Wozu braucht ihr ein größeres Schlafzimmer?
Ich würde den langen Schlauch beim Kinderzimmer 2 abtrennen und daraus ein kleines Kinderbad machen. Dann die Wand zwischen den beiden Kinderzimmer etwas Richtung Kind1 schieben. Dann sind das zwei gleichwertige Kinderzimmer und ihr habt noch ein Kinderbad.
Ich würde den langen Schlauch beim Kinderzimmer 2 abtrennen und daraus ein kleines Kinderbad machen. Dann die Wand zwischen den beiden Kinderzimmer etwas Richtung Kind1 schieben. Dann sind das zwei gleichwertige Kinderzimmer und ihr habt noch ein Kinderbad.
P
Peanuts7412.12.16 10:47Den Kamin, besonders den Kaminzug, finde ich an der Stelle nicht so schön, ich hätte ihn lieber in der Hausmitte...
K
Katharina_3512.12.16 21:17Danke für Eure Anregungen! Die Trennwand im Kinderzimmer wird es so nicht geben, so dass "der Schlauch" nicht so drastisch ausfallen wird. Dort war mal das Schlafzimmer und die Zwischenwand diente als Abtrennung zur Ankleide.
Das Schlafzimmer ist von der Größe her ok, die Ankleide könnte sogar etwas kleiner. Der Abstand zwischen dem Bettende und der Wand ist jedoch etwas klein. Auf dem Bild sieht es ok aus, das Bett ist aber klein eingezeichnet. Auch die Wände sollen nun breiter werden (da Massivwand), was die Fläche weiter verkleinert.
Einen optimalen Platz für den Kamin haben wir nicht gefunden. Er könnte noch an der Wand, wo auch der Fernseher hinkommt, platziert werden. Wir haben schon beim Kaminbauer "Kombinationen" mit Kamin und Fernseher gesehen, wo beides integriert ist. Das gefällt uns aber nicht. Fernseher und Kamin wollen wir getrennt haben. Links im Esszimmer soll ein Highboard hin.
Hat jemand noch eine Idee für den Kamin?
Grüße
Katharina
Das Schlafzimmer ist von der Größe her ok, die Ankleide könnte sogar etwas kleiner. Der Abstand zwischen dem Bettende und der Wand ist jedoch etwas klein. Auf dem Bild sieht es ok aus, das Bett ist aber klein eingezeichnet. Auch die Wände sollen nun breiter werden (da Massivwand), was die Fläche weiter verkleinert.
Einen optimalen Platz für den Kamin haben wir nicht gefunden. Er könnte noch an der Wand, wo auch der Fernseher hinkommt, platziert werden. Wir haben schon beim Kaminbauer "Kombinationen" mit Kamin und Fernseher gesehen, wo beides integriert ist. Das gefällt uns aber nicht. Fernseher und Kamin wollen wir getrennt haben. Links im Esszimmer soll ein Highboard hin.
Hat jemand noch eine Idee für den Kamin?
Grüße
Katharina
Ich finde den Schornstein eigentlich ganz originell an der Seite vom Erker. Schließlich habt ihr rechts die Überdachung, und so habt ihr in der Asymmetrie etwas mehr Ausgewogenheit.
Ist die Treppe geschlossen oder offen? Schaut Ihr vom WZ in den Kellerabgang? Das finde ich nicht so schön
Grüsse
Ist die Treppe geschlossen oder offen? Schaut Ihr vom WZ in den Kellerabgang? Das finde ich nicht so schön
Grüsse
Ähnliche Themen