Einfamilienhaus Staffelgeschoss Süd-Westlage in Bonn

4,60 Stern(e) 11 Votes
Zuletzt aktualisiert 22.11.2025
Sie befinden sich auf der Seite 8 der Diskussion zum Thema: Einfamilienhaus Staffelgeschoss Süd-Westlage in Bonn
>> Zum 1. Beitrag <<

B

Benrath

Ich kann mir die Treppe zur Zeit schwer vorstellen. Auf der anderen Seite finde ich den Aufbau im eingangs Bereich so besser. Das gäste Zimmer gewinnt auch enorm



Das mit dem vordach ist noch in der Diskussion, vor allem wie groß der Überstand wird. Angeblich kann man das simulieren etc. Tendiere einfach zu weniger.



Ehrlicher weise ist das Bild von einer früheren Version. Da war das Dach noch tiefer.
 
N

Nice-Nofret

Wir haben vor dem Wohnzimmer ein Terrassendach von 3m; da stört überhaupt nichts die Sicht auch nicht auf den Himmel; hell genug ist ist immer noch und seit September scheint auch die Sonne wieder bis ins Wohnzimmer; im Dezember dann bis tief in den Raum hinein. Unsere Räume sind 270cm hoch.

Ich kann euch nur eine grosszügige Terrassenüberdachung empfehlen. Das lohnt sich, da es im Sommer Kühle bietet und ganzjährigen Wetterschutz für die Terrassenmöbel.

Der neue Plan gefällt mir gut; evt. gesaltet man das Treppenauge so gross, dass dort ein Lift eingebaut werden kann; das finde ich immer noch besser wie einen Treppenlift im Alter.
 
Y

ypg

Der Radius vom Treppenloch muss stimmen. Es gibt auch 2-Fach-gewendelte, die sind unterirdisch steil, weil das Treppenloch mini ist.
 
B

Benrath

Hallo,

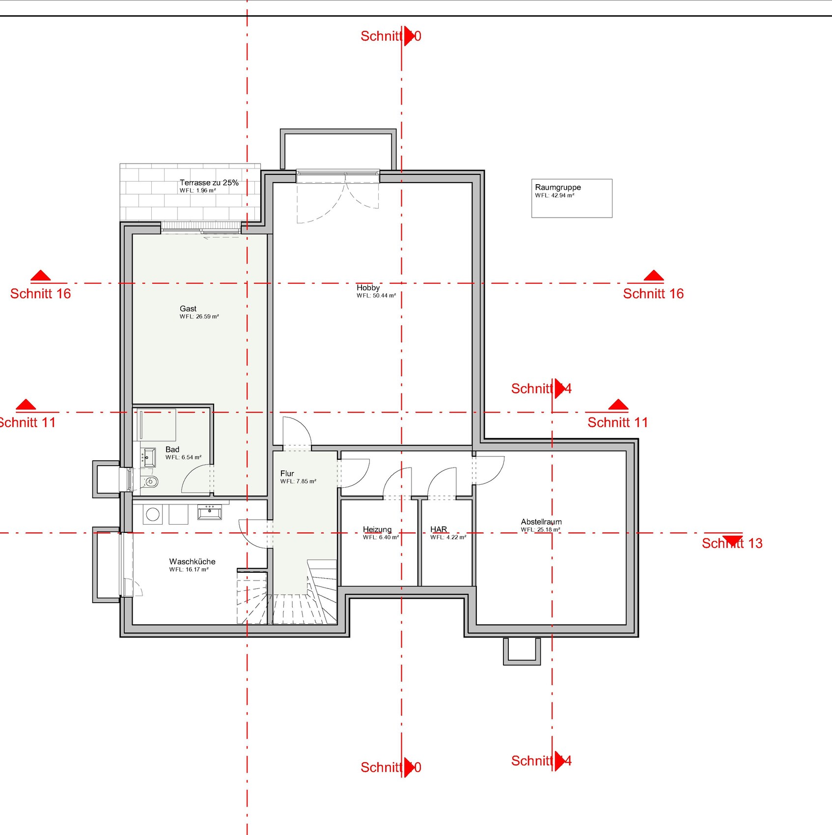
ich würde es gerne noch mal wiederbeleben und die ersten Grundrisse zeigen. Leider hat sich ergeben, dass doch noch die alte Bauordnung 2016 für unser Grundstück gilt. Daher nur 66% Fläche oben und 1 M Rückstand zum EG. Dafür ist jetzt die umlaufende Terrasse tot und eigentlich ist der Entwurf oben kompatker und griffiger. Etwas schlauchig ist der Flur, aber so haben alle schöne Bereiche..
Etwas schade ist, dass man nicht aus dem Eltern bad kommt ohne durch durch das Schlafzimmer zu gehen. Hauswirtschaftsraum oben könnte eventuell was größer sein.

Der Hauswirtschaftsraum im EG ist mehr die Schleuse und Abstellkammer fürs EG als Hauswirtschaftsraum. Die Idee die KÜche mit so einer Flügel/Schiebetür schräg ins Wohn/Ess laufen zu lassen, finde ich gut. Arbeitszimmer hat jetzt auch besseren Schnitt.

Keller planen wir erstmal mit und ich denke wir werden es auch machen, wenn das Budget es hergibt. Nacholen können wir es nicht daher.

Grundriss eines Hauses: Erdgeschoss mit Gast, Bad, Waschküche, Flur, Hobby, Heizraum und HAR.


Grundriss eines Einfamilienhauses: Wohn- und Esszimmer, Küche, Bad, Terrasse, Doppelgarage


Grundriss eines Wohnhauses mit Flur, Schlafen, Bad, Ankleide und Terrasse.


Architektur-Lageplan: Innenhof mit Terrasse, Sitzgruppe und Bäumen.
 
Y

ypg

Das hat jetzt aber kein Architekt geplant, oder?
Statisch halte ich die Ecke mit dem Anbau, wo sich dann das OG wiederwindet, schon eine recht aufwändige Leistung ;)
Und einen Garderobenschrank, 6 Meter vom Eingang entfernt... hm....
 
Zuletzt aktualisiert 22.11.2025
Im Forum Grundrissplanung / Grundstücksplanung gibt es 2535 Themen mit insgesamt 87984 Beiträgen


Ähnliche Themen zu Einfamilienhaus Staffelgeschoss Süd-Westlage in Bonn
Nr.ErgebnisBeiträge
1Grundriss für 150qm Einfamilienhaus mit Wohnzimmer nach Norden - Seite 321
2Grundriss 170m2 - Hauswirtschaftsraum zu klein? Verbesserungsvorschläge? - Seite 542
3Einrichtung Wohnzimmer evtl. Durchbruch Erweiterung 28
4Fitness-Ecke im Hauswirtschaftsraum? 27
5 2 Vollgeschosse, Durchgang Garage, Hauswirtschaftsraum unter Treppe 25
6Technik / Hauswirtschaftsraum im OG Meinungen? 27
7Zusätzlicher Hauswirtschaftsraum im OG für Waschmaschine etc. 13
8Fußbodenheizung auch im Technikraum / Hauswirtschaftsraum - Seite 319
9Reicht der Hauswirtschaftsraum auch als Abstellkammer aus? 22
10Heizungsanlage passt nicht wie geplant in den Hauswirtschaftsraum 27
11Schallschutztür im Hauswirtschaftsraum notwendig? Erfahrungen? 22
12Hauswirtschaftsraum streichen - Welche Farbe? Latexfarbe? - Seite 216
13Schrank für Hauswirtschaftsraum 21
14Leitungsführung vom Hauswirtschaftsraum zum Bad 23
15Wie Hauswirtschaftsraum im Keller sinnvoll in die thermische Hülle? 15
16Hausanschlusssäule im Garten vs. Hausanschluss direkt im Hauswirtschaftsraum 35
17Hauswirtschaftsraum mit Gipsputz streichen - Welche Farbe? 20
18CAT Kabel im Hauswirtschaftsraum - nicht gecrimpt? - Seite 545
19Zugang von der Garage in den Hauswirtschaftsraum 49
20Ikea Pax Hauswirtschaftsraum/Waschküche System? - Was habt ihr? 64

Oben