Einfamilienhaus Staffelgeschoss Süd-Westlage in Bonn

4,60 Stern(e) 11 Votes
Zuletzt aktualisiert 21.11.2025
Sie befinden sich auf der Seite 22 der Diskussion zum Thema: Einfamilienhaus Staffelgeschoss Süd-Westlage in Bonn
>> Zum 1. Beitrag <<

B

Benrath

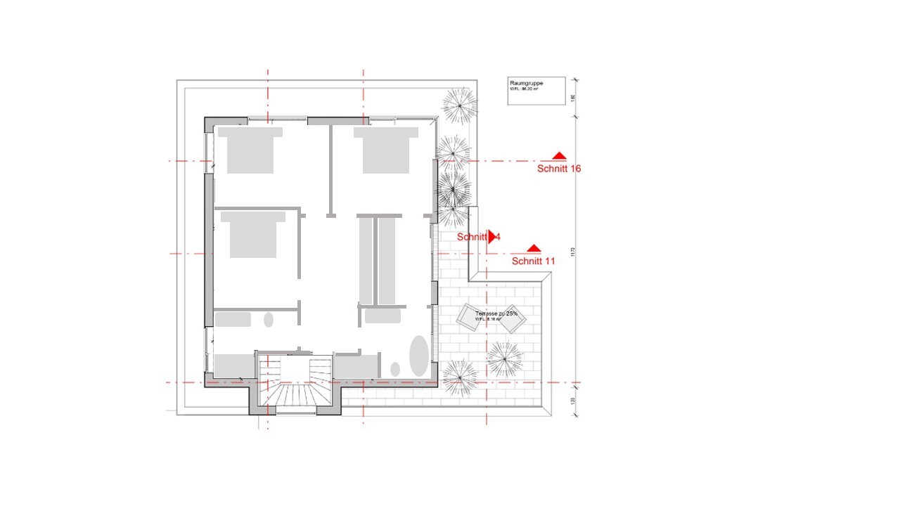
Genau so oder ähnlich hab ich @Würfel* verstanden. Der Flur wäre jetzt sehr großzügig, hat aber den Vorteil, dass Schlafzimmer und Bad direkt betretbar sind. Dafür ist dann die Ankleide nur indirekt betretbar. In der von Würfel vorgeschlagenen Variante hätte die Ankleide mehr Fläche und Platz für Schränke, dafür muss man aber Schlafzimmer und Bad immer über die Ankleide betreten. Beides Vor und nachteile ...

Ich glaub ich fand die Idee Kinderbad zwischen die Zimmer zu machen besser, weil das die Nordwand ist und dann das untere Zimmer über ein Eckfenster oder zwei Fenster mehr Licht bekommt.

Da wo du jetzt die Dusch machst würde ich noch überlegen ein Loch zu lassen, so dass der Flur über die ganze Haushöhe gehen könnte und man die Verbindung OG und EG hat. Das spricht dann wieder für die Zugang über Ankleide Variante

@Alessandro hattes du auch einen Thread für deinen Bau? Sufu machts nicht so leicht und PN kann ich noch keine schicken.
 
Zuletzt bearbeitet:
B

Baufie

@Baufie :Zeig mal deinen Grundriss, damit wir eine benchmark haben! :D
Die Flure sind aus einem Einfamilienhaus.
Deinen Nüssen Alles Gute!
Benchmark ist doch Deine Stadtvilla;)

Pläne meines Häuschens im Frühstadium der Planung gibt es im Netz. Ich werde hier nen Teufel tun meine hier in einem fremden Thread einstellen.

Tolle Kellerflure welche Du gezeigt hast. In nem Haus dieser Größe wollte ich das niemals nimmer. Und auch nicht dieses verwinkelte wie hier im Architektenentwurf. Wenn ich mir nen "Bunker" in dieser Größe und Preisklasse baue, welcher außen durch klare Strukturen auftritt würde ich Ihnen kein so verschachteltes Wirwarr haben möchten. Immerhin bekommt der Flur im OG 2 Dachflächenfenster spendiert um Licht hineinzubekommen.
 
Y

ypg

Ich hab meine Gedanken zur Treppe mal aufgezeichnet, allerdings in Euren Entwurf.
Vlt wäre es ja ein Ansatz:
Problem war tatsächlich die Größe der Räume, somit konnte man sicherlich den ein oder anderen Raum schlecht erschließen. Aber ich denke, ob ein Gästezimmer ohne Gäste nun gewünschte 21 oder 19 hat, ist dem Flügel egal - er passt rein :)
Grundriss eines Hauses: Allraum 61 qm, Gast 19 qm (Klavier), Diele, Garderobe, Küche 25 qm, WC, HWR

Grundriss eines Hauses: Eltern 40qm, HWR 12qm, Zimmer 10, Galerie, Kind 16qm, Kind 17qm.

Moderner weißer Kubus-Hauskomplex; Person steht auf der Dachfläche vor Glasfronten.

3D-Architekturmodell: offener Wohnbereich mit Treppe, Glaswänden, Piano und Person
 
Zuletzt aktualisiert 21.11.2025
Im Forum Grundrissplanung / Grundstücksplanung gibt es 2535 Themen mit insgesamt 87980 Beiträgen


Ähnliche Themen zu Einfamilienhaus Staffelgeschoss Süd-Westlage in Bonn
Nr.ErgebnisBeiträge
1Pfiffige Schlafzimmer Idee mit Ankleide gesucht 19
2Grundriss Schlafzimmer, Ankleide und Bad en Suite - Seite 336
3Grundriss Schlafzimmer mit Bad und Ankleide 62
4Erstkontakt und Vorstellung unserer Pläne 10
5Verbindung Schlafzimmer / Ankleidezimmer / Bad 16
6Grundrissplanung - Wie Schlafzimmers & Ankleide anordnen? 11
7Waschmaschine und Trockner in Ankleide? 16
8Grundriss Elternbad und Durchgang zu Schlafzimmer 13
9Teppich im Schlafzimmer trotz Fußbodenheizung? 36
10Kinderzimmer und Schlafzimmer - Welche Größe ist zu empfehlen? - Seite 256
11Idee Schlafzimmer - Bett / Schrank Anordnung 32
12Badewanne im Schlafzimmer - was haltet ihr davon? - Seite 535
13Durchbruch Bad und Ankleide ohne Türe? - Seite 212
14Parkett von Flur in Zimmer durchlegen - Seite 217
15Grundrissplanung: Flur im EG breit genug? - Seite 357
16Treppe "ragt" in Flur hinein: Problematisch? 12
17Wie findet ihr diesen Grundriss? - Seite 211
18was für Farben für das Schlafzimmer ? 44
19Ankleide/Schlafzimmer Problem - Grundrissdiskussion 25
20Schlafzimmer auf der Südseite zu warm? 18

Oben