Einfamilienhaus Nordosthang 230m2 Satteldach

5,00 Stern(e) 11 Votes
Zuletzt aktualisiert 22.11.2025
Sie befinden sich auf der Seite 4 der Diskussion zum Thema: Einfamilienhaus Nordosthang 230m2 Satteldach
>> Zum 1. Beitrag <<

H

haus2022

Danke für alle Rückmeldungen! Insbesondere auch für die Vorschläge von @ypg, wie man es konkret besser machen könnte.

Ich werde sicher auch wieder einen Architekten bemühen müssen. Der letzte hat leider knappe 80 m2 Flurfläche (ohne Stiege, Aufzug und Eingangsbereich) produziert. Daher auch mein Misstrauen.

Ich kann leider nicht auf alles Geschriebene detailliert antworten, deshalb nachfolgend eine Auswahl an Kommentaren:

die vielen mittigen Schächte gehen gar nicht. Bei Verstopften Rohren geht es unter die Bodenplatte, das halte ich für eine große technische Fehlplanung.
Es wäre ja nur ein einzelner Schacht mittig. Mit einem Abflussrohr. Das andere Abflussrohr wäre knapp an der nördlichen Außenwand, aus meiner Laiensicht unproblematisch. Verbleibt also noch eines der beiden notwendigen Abflussrohre problematisch lange unter der Platte. Leuchtet ein, dass das nicht optimal wäre hinsichtlich Verstopfung oder Abnützung. Unüblich scheint es aber nicht zu sein, wenn man die Google Bildsuche bemüht (siehe Anhang). Gibt es für solche Fälle keine brauchbares technisches Workaround?

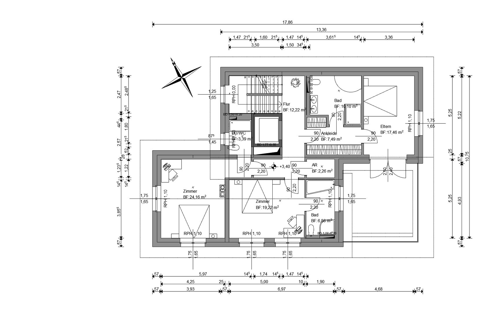
Elternbereich unlogisch aufgebaut. Will ich noch schlafen, huscht mein Mann immer durch das Schlafzimmer, um sich zu waschen, anzuziehen, noch mal Toi, dann raus. Die Vorteile einer Ankleide sind nicht gegeben.
Wenn man den Partner nicht wecken möchte, könnte man doch seine Kleidung nehmen und über den Flur ins Bad gehen?

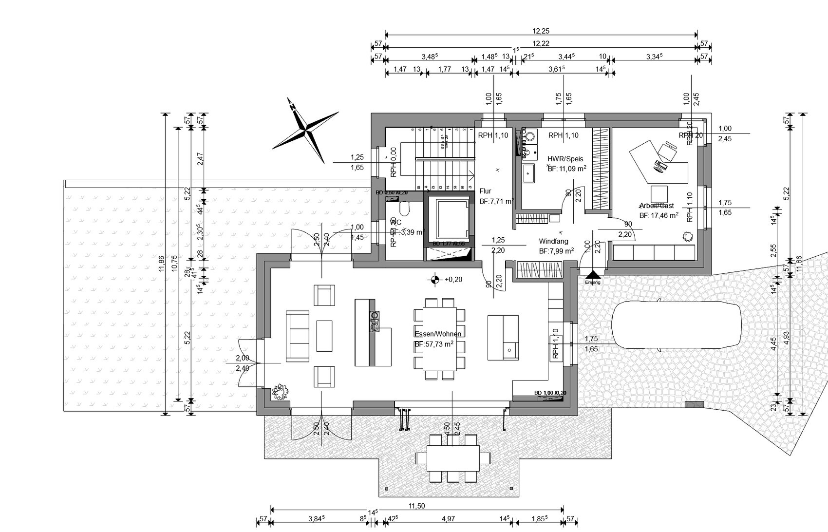
Und ich will die Terrasse von der Küche direkt begehen können und nicht doch Türen treten.
Ließe sich mit einer Schiebetür einfach lösen.

WC ohne Fenster kann ich mir höchstens in einer 1Zimmer-Wohnung in einem Mehrfamilienhaus vorstellen
Stimme objektiv gesehen vollkommen zu! Dass es mich subjektiv nicht stört liegt wahrscheinlich an 3 Punkten:
  1. Hatte ich seit 3 Jahrzehnten noch nie das Vergnügen eine Wohngelegenheit mit Fenster im WC zu besitzen
  2. Arbeite ich in einem öffentlichen Gebäude ohne Fenster am WC
  3. Wird eine Kontrollierte-Wohnraumlüftung eingebaut

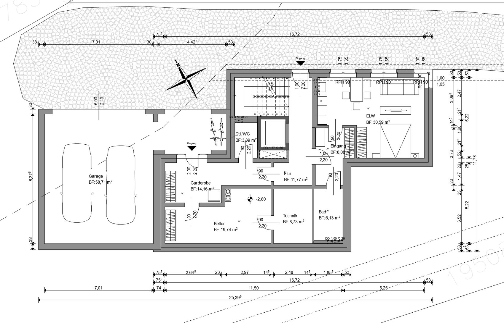
Eine Einliegerwohnung finde ich nur sinnvoll, wenn man z.B. die Eltern mit ins Haus holt oder eine Nanny braucht für seine 5 Kinder, die da wohnen soll, vielleicht ein Pfleger bei Behinderung - solche Fälle.
Dafür wäre die Einliegerwohnung auch gedacht. Au-pair, Pflege, Gäste, etc. Die Vermietung ist nicht geplant. Dafür wäre sie denke ich zu klein.

über eine spätere Teilung des Hauses in ein Zweifamilienhaus nachdenken und hoffen, dass eines der Kinder z.B. im OG einzieht. Dazu plant man schon jetzt ein mögichst separates Treppenhaus, welches später mit einer Wand abgetrennt werden könnte.
Die Abtrennbarkeit des Stiegenhauses wäre doch möglich? Daher auch separate Eingänge im UG und EG.

die ungewöhnlichen Wandstärken
Außenwand ist 25 cm Ziegel, 24 cm Mineralwolle + Hinterlüftung und Fassadenplatten (falls das gemeint ist) bzw. Beton + XPS im Perimeterbereich.

der Einlieger läuft z.B. über die Wiese
Außenbereich ist nicht durchgeplant. Der Bereich würde natürlich nicht aus Wiese bestehen.

Ausgehobenes Baugrundstück mit Fundament, Bewehrung und grünen Rohrleitungen während der Installation
 
Zuletzt aktualisiert 22.11.2025
Im Forum Grundrissplanung / Grundstücksplanung gibt es 2535 Themen mit insgesamt 87982 Beiträgen


Ähnliche Themen zu Einfamilienhaus Nordosthang 230m2 Satteldach
Nr.ErgebnisBeiträge
1Nachträglich Fenster einbauen? 25
2Kostenschätzung des Architekten - Seite 215
3Kostenplanung Einfamilienhaus inkl. Grundstück, Nebenkosten, Architekten - Seite 332
4Fenster, Vorbaurollladen, Außenputz 10
5Einfamilienhaus, Eingeschossigkeit, Kniestock, Fenster OG - Seite 230
6Grundriss Neubau Einfamilienhaus: Fenster/Türen/Innenwände Größe/Anordnung ok? 20
7Neubau einer ca. 8x11 Doppelhaushälfte, Einschätzung Grundriss und Fenster - Seite 235
8Architekten / Bauingenieur Leistung, Ausführungsplan, Umfang - Seite 226
9OG Stadtville optimieren. Fenster Bodentief - Seite 13104
10Wunschliste für den Architekten 32
11Grundriss Einfamilienhaus 150qm - Fenster- und Badplanung - Seite 318
12Architekten-Leistungsphase 1-4 - Welche Unterlagen müssen sein? - Seite 533
13Planung durch GU oder freien Architekten? - Seite 222
14Panoramafenster - Sind die Preise der Fenster günstig? - Seite 352
15Müssen Heizkörper im Neubau immer unter die Fenster? - Seite 741
16Fenster Anordnung - Seite 210
17Außenwand Town & Country Häuser 11
18Wir brauchen einen Architekten - oder soll ich das selbst machen? - Seite 214
19Erfahrungen mit Architekten 15
20Schlüsselfertig oder mit Architekten bauen? 19

Oben