Einfamilienhaus Nordosthang 230m2 Satteldach

5,00 Stern(e) 11 Votes
Zuletzt aktualisiert 10.01.2026
Sie befinden sich auf der Seite 14 der Diskussion zum Thema: Einfamilienhaus Nordosthang 230m2 Satteldach
>> Zum 1. Beitrag <<

J

Jucruzlo

Kann zum Grundriss jetzt nicht so viel Beitragen weil ich mich da einfach zu wenig auskenne - aber Ich find die Außenansicht sehr schön
 
C

Construbo

Den Lageplan hab ich angefügt.

Betreffend Raumhöhe, denke ich, ist halt Geschmackssache. Ich find es schön so. Das Gleiche gilt für die Dachneigung.
Keller kriegt keine Fenster, außer es wird von der Behörde angeordnet.

Laut Bodengutachten rechnen wir nicht mit größeren Felsen.

Warum aktuell nicht mit Architekt: Die Entwürfe waren entweder nicht genehmigungsfähig, oder hätten zu einem Abbruchbescheid führen können. Außerdem hatte ich keine Freude mit den ausgedehnten Verkehrsflächen.
Die Darstellung der Grundrisse sowie der Innen- und Außenansichten gefallen mir sehr gut; weiß zufällig jemand, mit welchem Programm diese erstellt wurden?
 
H

hausbau2021

Vielleicht interessiert ja den ein oder anderen, was tatsächlich aus dem Entwurf geworden ist. Zum letzten Grundriss hier im Forum haben sich noch ein paar Dinge geändert. Wir sind mittlerweile eingezogen. Fertig ist noch nicht alles.


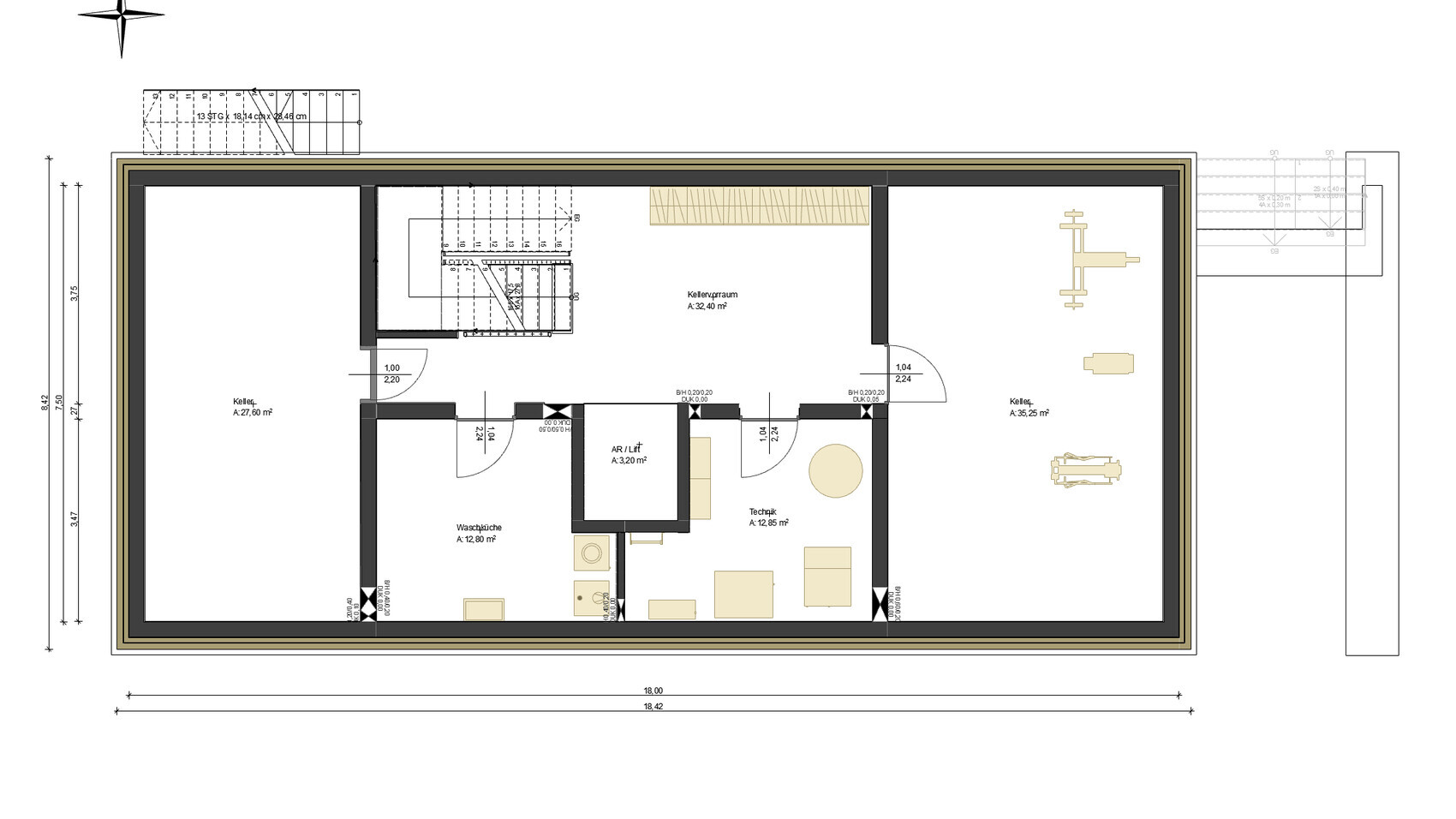
Grundriss Kellergeschoss mit Waschküche, Technik, AR/Lift und zwei Kellerräumen.

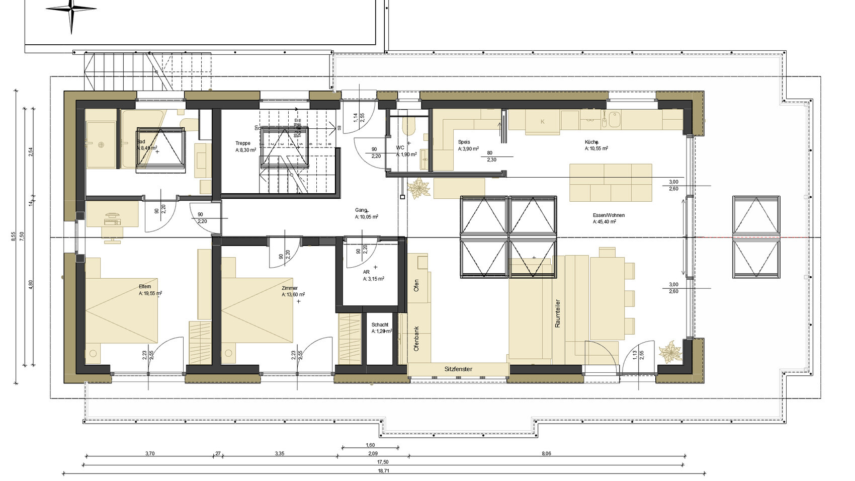
Grundriss eines Wohnhauses mit mehreren Zimmern, Bad, Küche, Treppe, Fluren und Balkon

Grundriss eines Wohnhauses: Schlafzimmer, Elternzimmer, Kinderzimmer, Küche, Essbereich, Bad.

Architekturmodell eines zweistöckigen Hauses mit Giebel, großer Terrasse und Geländer auf Hanglage.


Danke an alle, die geholfen haben, den Grundriss zu verbessern! Am Ende des Tages sind wir sehr zufrieden.


Modernes Haus mit großer Holzveranda, verschneitem Hang, Wald im Hintergrund, blauer Himmel.

Heller Innenraum mit Holz-Dachbalken, großen Dachfenstern und Kreuz über der Fensterfront.
 
Zuletzt aktualisiert 10.01.2026
Im Forum Grundrissplanung / Grundstücksplanung gibt es 2565 Themen mit insgesamt 88792 Beiträgen


Ähnliche Themen zu Einfamilienhaus Nordosthang 230m2 Satteldach
Nr.ErgebnisBeiträge
1Grundriss - Haus mit Einliegerwohnung 23
2Wie findet ihr diesen Grundriss? - Seite 211
3Grundriss: Bitte um Meinungen Erdgeschosstwurf - Seite 214
4Bitte um ehrliche Meinung zu unserem Grundriss!! 29
5Grobe Kostenrechnung anhand Grundriss 13
6Grundriss die IV! :-) 18
7Meinungen zum Grundriss EG 10
8Grundriss über 200qm - Was haltet die Experten davon? 13
9Einfamilienhaus, geschätzte Kosten und Anregungen Grundriss - Seite 649
10Grundriss Stadtvilla - Danke für euer Feedback - Seite 215
11Grundriss Vorschläge, Beispiele ... 15
12Eure Meinung zum Grundriss für das EG 28
13Meinung zum Grundriss eines geplanten Bauhauses 23
14Was sagt ihr zu unserem Grundriss? 15
15Meinungen zu Grundriss "Haus am Hang" erbeten 31
16Grundriss Einfamilienhaus. Eure Anregungen sind gefragt. - Seite 317
17Grundriss, Wohnbereich zu eng, Ideen / Vorschläge 17
18Hilfe beim Grundriss des Hauses, Verbesserungsvorschläge? 28
19Grundriss, Ideen zur räumlichen Trennung innerhalb der Küche - Seite 223
20Stadtvilla -> Eure Meinung zum Grundriss, Vorschläge - Seite 321

Oben