Einfamilienhaus Nordosthang 230m2 Satteldach

5,00 Stern(e) 11 Votes
Zuletzt aktualisiert 22.11.2025
Sie befinden sich auf der Seite 7 der Diskussion zum Thema: Einfamilienhaus Nordosthang 230m2 Satteldach
>> Zum 1. Beitrag <<

H

hausbau2021

Bin der Threadersteller (der ursprüngliche Account funktioniert nicht mehr und lässt sich nicht zurücksetzen).

Wir haben jetzt eine neuen Idee/Vorentwurf vom Planer durchgespielt. Fläche 219 qm. Voraussetzungen sind grundsätzlich die selben wie im Eingangspost. Wohnen ist nach oben gewandert. Kinderzimmer nach unten. Keller komplett unter der Erde.

Würde mich über Meinungen, Anregungen und Kritik freuen!

Lageplan eines Hauses mit Erdgeschoss-Grundriss, Treppe, Garage, Zufahrt und Umfeld.


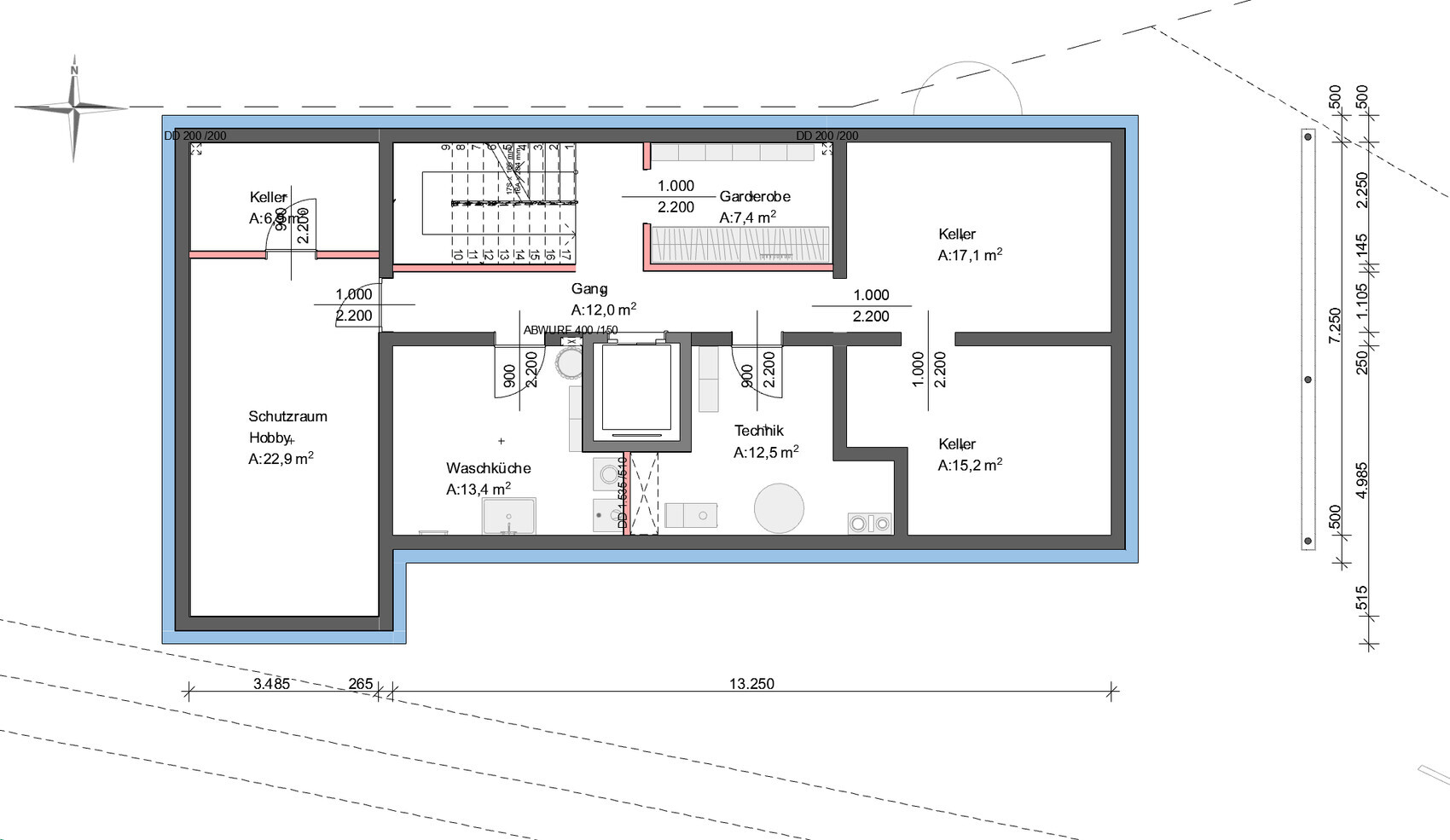
Grundriss Kellergeschoss: Hobbyraum, Waschküche, Technik, mehrere Kellerräume, Gang, Garderobe.


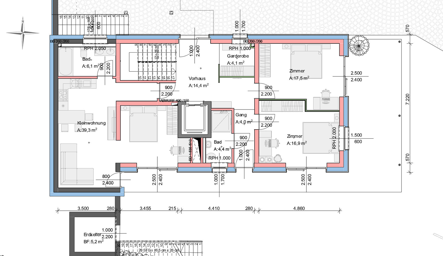
Grundriss eines Wohnhauses mit zwei Wohnungen: Flure, Bad, Zimmer, Garderobe, Treppenhaus, Maße.


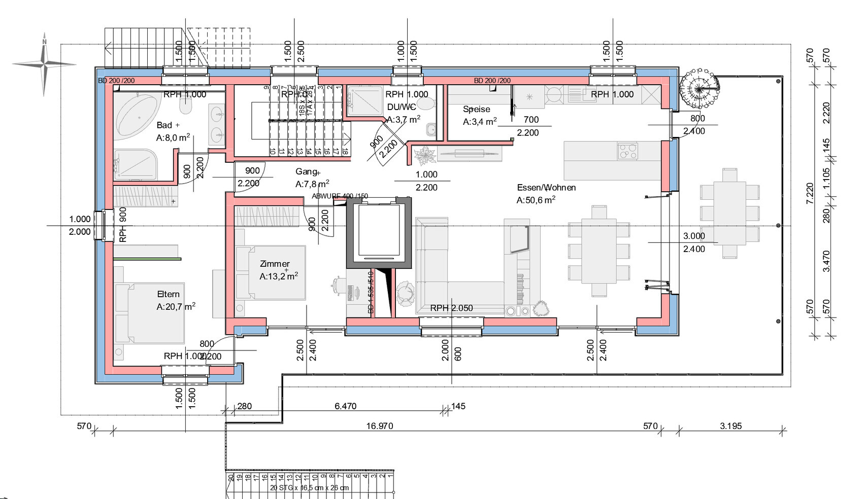
Grundriss eines Hauses: Räume wie Bad, Küche, Essen/Wohnen, Flur, Schlafzimmer, Kinderzimmer.


Zweistöckiges Haus mit schwarzem Dach, Carport, blauem Auto, Zaun und Spielplatz.


Außenansicht eines zweistöckigen Hauses auf Hang mit Terrasse, Treppen, Zaun und Carport.


Mehrstöckiges Haus auf Hang mit schwarzem Dach, Glasgeländer, Terrasse und Spielgerät.


Modernes zweistöckiges Haus mit schwarzem Satteldach, Veranda und Carport mit zwei Autos.


Dunkles Holzhaus mit schneebedecktem Dach in verschneiter Winterlandschaft, Zäune und Büsche.


Modernes zweistöckiges Haus mit Holzfassade, Balkon, Treppe, Menschen draußen, Spielplatz davor.
 
Zuletzt aktualisiert 22.11.2025
Im Forum Grundrissplanung / Grundstücksplanung gibt es 2535 Themen mit insgesamt 87984 Beiträgen
Oben