Einfamilienhaus Nordosthang 230m2 Satteldach

5,00 Stern(e) 11 Votes
Zuletzt aktualisiert 22.11.2025
Sie befinden sich auf der Seite 10 der Diskussion zum Thema: Einfamilienhaus Nordosthang 230m2 Satteldach
>> Zum 1. Beitrag <<

Y

ypg

Sorry, das siehst Du genau falsch.
In praktisch jedem Grundriss findet man Dinge, die man selbst vielleicht anders lösen würde, die oft auch einfach Geschmackssache sind.
In erster Linie geht es um Funktionalität. Das kann hier im Forum sehr gut diskutiert werden, da Funktionalität von oft festen Faktoten abhängig ist und Fehler recht schnell erkannt werden können.
Also, könntest Du Dir grundsätzlich vorstellen so zu Wohnen? Also oben?
Das gilt auch für alle anderen: Wäre so eine Wohnsituation für Euch prinzipiell denkbar?
Und das ist definitiv nicht wichtig , ob ich oder wer auch immer sich hier wiederfindet.
Wenn Du es beziehen willst, solltest Du Dich wiederfinden.
Letztendlich sollte Funktionalität und sich eine adrette Räumlichkeit widerspiegeln.
......
Ich hab mir jetzt aber alles noch mal angeschaut und würde im Süden/Westen dann doch meine Wohnräume inklusive Zugänglichkeit zum Grundstück favorisieren,
Ich hab jetzt zwar noch nichts gezeichnet oder geplant, aber nach meiner Meinung sollte es nicht schwer sein, den gängigen Gedanken Großzügigen Wohnraum in Kombi mit Kinderzimmer und Schlafzimmer und Au-pair und etc schick und gängig anzuordnen.
Man mag meinen, dass du irgendwelche unterschwelligen Prioritäten hast und diese die Entwürfe führen, die sich hier ansonsten keinem erschließen.
 
H

hausbau2021

Ich zitiere aus 2013:
Wir haben und gerade noch mal den überarbeiteten Plan angeschaut, und er funktioniert für uns.
Nach uns die Sintflut
Yvonne
Unserer funktioniert auch für uns.

Der Deal funktioniert nur, wenn sich das Tageslicht auf diese Perspektive einläßt
Das Tageslicht fällt unabhängig von der Perspektive in diesen Raum. Zeitpunkt und Wetter sind die ausschlaggebenden Faktoren.

Man mag meinen, dass du irgendwelche unterschwelligen Prioritäten hast
Ja, hätte gerne einen Liftschacht.
 
11ant

11ant

Das Tageslicht fällt unabhängig von der Perspektive in diesen Raum. Zeitpunkt und Wetter sind die ausschlaggebenden Faktoren.
Die Realität - wobei ich hier nicht das österreichische Wort für Immobilie meine - ist der ausschlaggebende Faktor dafür, daß man zwar in einem 3D-Programm tricksen kann, aber nicht bei Sonnenstrahlen.

Man mag meinen, dass du irgendwelche unterschwelligen Prioritäten hast und diese die Entwürfe führen, die sich hier ansonsten keinem erschließen.
Ja, hätte gerne einen Liftschacht.
Zwischen Berlin und Potsdam lohnt sich kein Transrapid.
 
Y

ypg

Unserer funktioniert auch für uns.
Funktionalität sollte für alle bzw grundsätzlich gelten. Das sollte im folgenden auch gut beschrieben sein:
In erster Linie geht es um Funktionalität. Das kann hier im Forum sehr gut diskutiert werden, da Funktionalität von oft festen Faktoten abhängig ist und Fehler recht schnell erkannt werden können.
Ja, hätte gerne einen Liftschacht.
Ja schön. Aber Prioritäten sollten ja wohl als erstes in Bedürfnis der Familie, im Tagesablauf im Allgemeinen, Aufenthalt, wohlfühlende Lebensräume und dann erst techn. Möglichkeiten zur Optimierung von diesen Abläufen abhängen.
Wenn Du Deinen Lift als Prio setzt und Dein Haus herum setzt, werden es die wenigstens hier verstehen.
 
H

hausbau2021

Danke allen Beteiligten für die Inputs!

Will den Entwurf eigentlich nicht gleich ad acta legen. Zumindest noch nicht.
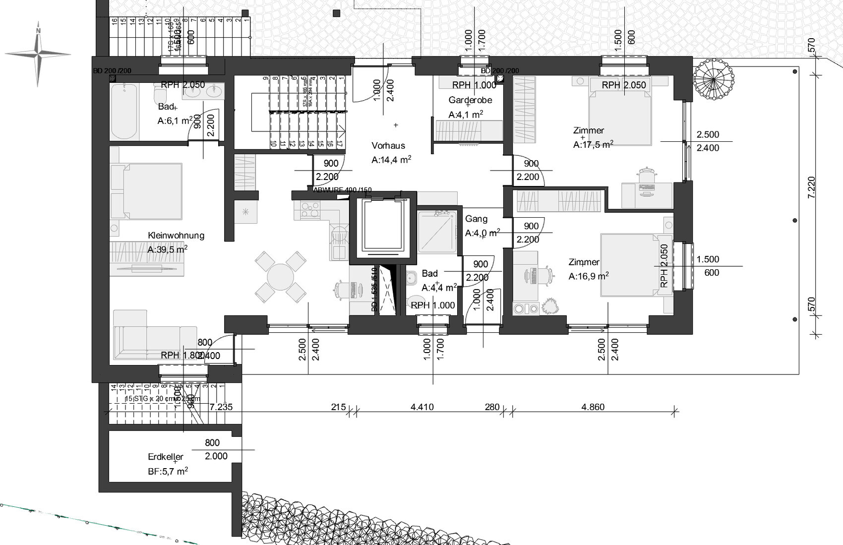
Habe also versucht, den Hauptkritikpunkt (zu wenig Licht in der Kleinwohnung) etwas zu entschärfen. Durch Versetzen des Treppenaufgangs ist jetzt ein zusätzliches Fenster im Süden möglich. Auch ein Lichthof im Westen wäre denkbar, hab ich aber vorerst nicht eingezeichnet.

Ich hab mir jetzt aber alles noch mal angeschaut und würde im Süden/Westen dann doch meine Wohnräume inklusive Zugänglichkeit zum Grundstück favorisieren
Mir ist bewusst, dass so eine Süd-West-Ausrichtung grundsätzlich vorteilhaft wäre. Die Nachbarhäuser weichen aber großteils von dieser Ausrichtung ab und sind bevorzugt nach Norden bzw. Nordosten ausgerichtet. Denke, nicht ohne Grund.

Die Realität - wobei ich hier nicht das österreichische Wort für Immobilie meine - ist der ausschlaggebende Faktor dafür, daß man zwar in einem 3D-Programm tricksen kann, aber nicht bei Sonnenstrahlen.
Die aktuellen Renderings sind ohne Trickserei.

Zwischen Berlin und Potsdam lohnt sich kein Transrapid.
Der Vergleich ehrt meinen Liftschacht. Nur hätte der wahrscheinlich eine rosigere Zukunft als der Transrapid.

Grundriss eines Apartments: Kleinwohnung mit zwei Zimmern, Bad, Küche, Garderobe und Flur.


Heller Wohnraum mit rundem Holztisch, Stühlen, schwarzer Eckcouch und Bilderwand; Blick nach außen.


Außenansicht eines weißen Hauses mit Terrasse, Stufen, Balkon und großen Glasfenstern.
 
Zuletzt aktualisiert 22.11.2025
Im Forum Grundrissplanung / Grundstücksplanung gibt es 2535 Themen mit insgesamt 87989 Beiträgen
Oben