Einfamilienhaus Nordosthang 230m2 Satteldach

5,00 Stern(e) 11 Votes
Zuletzt aktualisiert 22.11.2025
Sie befinden sich auf der Seite 8 der Diskussion zum Thema: Einfamilienhaus Nordosthang 230m2 Satteldach
>> Zum 1. Beitrag <<

H

hausbau2021

Insgesamt hast Du allerlei umdisponiert, ohne es zu erläutern.
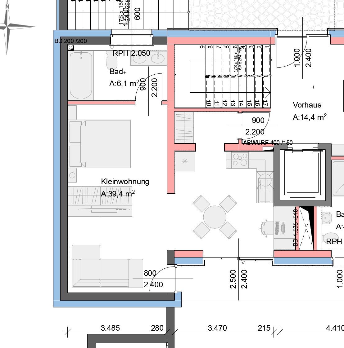
Die Idee wäre, den Eingang nordseitig mittig im EG zu machen. Im Norden das Carport. Im EG zusätzlich 2 Kinderzimmer im Osten mit kleinem Bad. Im Westen eine Kleinwohnung, die entweder für größere Kinder, Au pair, Besuch etc. gedacht ist, nicht zur Vermietung.
Im OG Wohnen im Osten mit vorgelagerter Terrasse, weil die Aussicht da am besten ist. Im Westen Elternschlafzimmer mit Bad. Im Süden in der Mitte ein Raum (z.B. Kinderzimmer, solange Kinder klein sind; Arbeitszimmer; Gästezimmer).
Den Rest ab unter die Erde.

Wie kommt Licht in die Kleinwohnung?
Licht kommt über eine Hebeschiebetür mit 2,5 x 2,4 m und eine Balkontür. Könnte natürlich mehr sein. Grundstück ist aber so wie es ist. Höher bauen geht nicht, da nicht genehmigungsfähig. Wenn man Bett und Küche tauscht, sollte es besser passen?

Grundriss einer Kleinwohnung: Wohnzimmer mit Esstisch, Küche, Schlafbereich, Bad, Vorhaus, Treppe

Offenes Wohnzimmer mit Küche links, runder Holztisch, Stühle, Schreibtisch am Fenster, Sofa rechts.
 
H

haydee

Irgendwie paßt die Höhe Hang nicht zum 1. Haus. Warum ist der neue Grundriss so tief?
Alt UG mit teilweise Tageslicht
Neu UG kein Tageslicht
Alt EG überall Tageslicht
Neu EG hangseitig kein Tageslicht.

Neuer Grundriss
Kleine Wohnung wird ein dunkles Loch.
Warum von der Wohnebene und Gartenzugang getrennt?
 
H

hausbau2021

können wir mal real Fotos sehen (Umgebung)?
Kann Dir leider nur Google Earth bieten. Sicht nach Nordost. In die andere Richtung ist Hang und Wald.

Panoramablick auf ein Dorf in hügeliger Landschaft mit Häusern, Wälder und Felder.


Irgendwie paßt die Höhe Hang nicht zum 1. Haus. Warum ist der neue Grundriss so tief?
Stimmt. Haus steht weiter im Westen und gedreht. Also weiter im Hang drinnen. Bei den vorigen Entwürfen war die Böschung zum nördlichen Nachbarn abgegraben. Daher war der Keller teilweise frei. Haus stand weiter vorne (Osten). Aktuell keine Geländeänderung am Nachbargrund, dafür Steinschlichtung im Süden.
Einmal MIT und einmal OHNE Gelände-Punktwolke.

3D-Modell eines Hauses auf Pfosten mit Holzterrasse in hügeliger Landschaft, Gehweg zum Haus

Modernes Hanghaus mit Terrasse, Geländer, langem Zufahrtsweg und Spielgerät davor.

Hier das Urgelände in weiss.

Modernes Einfamilienhaus auf Hang mit großer Terrasse, Carport mit zwei Autos und Gartenumgebung.


Kleine Wohnung wird ein dunkles Loch.
Für Sonnenhungrige ist es wahrscheinlich nichts. Die gesetzlichen Anforderungen sind aber locker erfüllt.
 
T

tumaa

Kann Dir leider nur Google Earth bieten. Sicht nach Nordost. In die andere Richtung ist Hang und Wald.
Anhang anzeigen 43544


Stimmt. Haus steht weiter im Westen und gedreht. Also weiter im Hang drinnen. Bei den vorigen Entwürfen war die Böschung zum nördlichen Nachbarn abgegraben. Daher war der Keller teilweise frei. Haus stand weiter vorne (Osten). Aktuell keine Geländeänderung am Nachbargrund, dafür Steinschlichtung im Süden.
Einmal MIT und einmal OHNE Gelände-Punktwolke.
Anhang anzeigen 43545 Anhang anzeigen 43546
Hier das Urgelände in weiss.
Anhang anzeigen 43547


Für Sonnenhungrige ist es wahrscheinlich nichts. Die gesetzlichen Anforderungen sind aber locker erfüllt.
hat was cooles ....Oberbayern ?
 
Zuletzt aktualisiert 22.11.2025
Im Forum Grundrissplanung / Grundstücksplanung gibt es 2535 Themen mit insgesamt 87984 Beiträgen


Ähnliche Themen zu Einfamilienhaus Nordosthang 230m2 Satteldach
Nr.ErgebnisBeiträge
1Grundriss Einfamilienhaus ohne Keller, 3 Kinderzimmer und Büro 18
2Grundriss Einfamilienhaus 155m², ohne Keller, 3 Kinderzimmer, 1 Büro 38
3Grundriss Einfamilienhaus 190m2 mit Keller Feedback? 41
4Grundriss-Entwurf für Haus am Hang in zweiter Reihe 20
5Grundriss Einfamilienhaus ~165m² plus Keller - Seite 6165
6Besonderer Grundriss oder langweilig mit Keller? - Seite 220
7Grundriss Einfamilienhaus in Hanglage mit Keller - Seite 351
8Grundriss, Hausanordnung EFW 150m2, Keller + Einliegerwohnung - Feedback erwünscht - Seite 967
9Grundriss Einfamilienhaus Hanglage mit Keller 19
10Grundriss für Einfamilienhaus 210 m² + Keller - Eure Meinungen 16
11Grundriss Stadtvilla 180m², Keller, 3 Kinder - Eure Meinungen dazu? - Seite 851
12Grundriss 165 m² mit Keller eure Meinung - Seite 352
13Grundriss Einfamilienhaus ca. 200qm mit Keller - Hinterbebauung 20
14Wann ist ein Hang ein Hang? Keller vs. Bodenplatte 19
15Doppelhaushälfte am Hang mit Keller Grundriss suche. 17
16Erste Grundrissplanung auf Karopapier: Hang, Keller + 2 Geschosse. 80
17Einfamilienhaus Süd-Hang Grundriss - Bitte um Feedback 37
18Grundriss-Optimierung Neubau, Einfamilienhaus 2 Vollgeschosse ohne Keller am Hang - Seite 333
19Grundriss: Bauen leichten Hang - nicht genug für Keller wegen Aushub? 22
20Haus am Hang Grundriss-Feinschliff - Seite 492

Oben