
kaho674
Wie gesagt, der Grundriss ist nicht schlecht, nur öffnet er sich ja zum Nachbarn an den Zaun, anstatt zum Garten. Das halte ich für einen Fehler, vor allem, wenn es da noch 50m nach hinten geht, wo die Kiddis spielen. Anstatt denen zuzusehen, knietscht Ihr am Zaun am Rand rum. Ist natürlich eine Frage der Prioritäten.
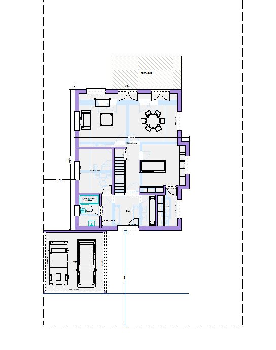
Hier mal ein Vorschlag, wie man das Haus zum Garten öffnen könnte und außerdem ordentlich einparkt:
Dachflächenfenster bitte denken.
Hier mal ein Vorschlag, wie man das Haus zum Garten öffnen könnte und außerdem ordentlich einparkt:
Dachflächenfenster bitte denken.