Einfamilienhaus mit 3 Kinderzimmern

4,00 Stern(e) 17 Votes
Zuletzt aktualisiert 22.12.2025
Sie befinden sich auf der Seite 7 der Diskussion zum Thema: Einfamilienhaus mit 3 Kinderzimmern
>> Zum 1. Beitrag <<

H

Hamburger2020

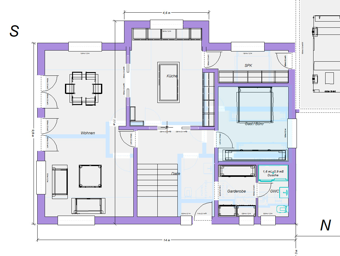
Ich werfe hier noch mal einen hin mit geschlossener Küche.

Anhang anzeigen 40875

Anhang anzeigen 40876
Anhang anzeigen 40878

Wie man sieht, hab ich keinen Balkon an die Kinderzimmer gemacht. Ich möchte den mal anzweifeln.
Bei einem Kniestock von 1,25m ist der nach meiner Milchmädchenrechnung nicht nötig.
Allerdings bin ich da kein Experte - ich rechne alles brutto inkl. Wände - sollte ja keine Rolle spielen, oder?
Hier mein Rechenbeispiel (Werte teilweise gerundet):

Grundfläche (brutto inkl. Außenwände) = 142,7m² im EG
Soll OG nicht über 2,30m = 142,7 * 2/3 = 95m²

2,30m bei 40° Dachneigung liegt etwa 1,25m von der Innenwand + 40cm Außenwand = 1,65m von der Wand.
Demnach sind unter 2,30m:

Seite ohne Giebel: 14m*1,65m = 23,1m²
Seite mit Giebel: 4,70m*1,65m = 7,755m² x 2 = 15,5m² dazu 2x 1,65m*2,85m = 9,4m² gesamt 24,9m².
Fläche unter 2,30m: 24,9 + 23,1 = 48m²

142,7m² Grundfläche EG - 48m² = 94,7m²< 95m² Soll.

Hab ich da nen Denkfehler?
Hier gilt das Baurecht in Schleswig Holstein. Dort gilt zum einen 75% der Grundfläche des EGs (was gut ist), aber für die Höhe wird ab Fußboden bis über den Fußboden des darüberliegenden Stockwerks bzw. oberhalb der Dachhaut gemessen. Dadurch hat man die 2,3m Höhe sehr schnell erreicht, selbst wenn die lichte Raumhöhe davon noch weit entfernt ist.

Vielen Dank für den neuen Entwurf! Gefällt mir von der Raumaufteilung besser als die andere Version. Etwas schade ist, dass der Vorratsraum da die großen Fenster hat und mein Büro (Es wird mein Hauptbüro werden) die doofe Nordseite.
 
kaho674

kaho674

Hier gilt das Baurecht in Schleswig Holstein. Dort gilt zum einen 75% der Grundfläche des EGs (was gut ist), aber für die Höhe wird ab Fußboden bis über den Fußboden des darüberliegenden Stockwerks bzw. oberhalb der Dachhaut gemessen. Dadurch hat man die 2,3m Höhe sehr schnell erreicht, selbst wenn die lichte Raumhöhe davon noch weit entfernt ist.
Mmh, das klingt schwierig. Muss man dazu den Dachaufbau bzw. die Dach-Stärke des Herstellers kennen? Hast Du das mit Deinem Anbieter mal durchgerechnet?
Das Haus steht nicht mehr. Ein Problem ist mir aber eingefallen. Ganz drehen wird man das Haus nicht können, da das Haus ansonsten maximal 13m breit sein dürfte, damit auf jeder Seite 3m Abstand eingehalten wird. Hinzu kommt, das man dann vermutlich (sehr teure) Spundwände für den Bau des Kellers benötigt
Den Grundriss müsste man natürlich auf die 13m anpassen und dafür etwas mehr Tiefe zugeben.
Spundwände? Ist da irgendwo ne Senke?

Ich finde Dein Grundstück übrigens einwandfrei - also kein Grund, tiefzustapeln.
 
H

Hamburger2020

Mmh, das klingt schwierig. Muss man dazu den Dachaufbau bzw. die Dach-Stärke des Herstellers kennen? Hast Du das mit Deinem Anbieter mal durchgerechnet?
Die Dachneigung sind 40°. Die Idee mit der Loggia kam von mir. Ursprünglich hatten wir eigentlich ein 13m breites Haus geplant. Dadurch ergab sich aber ein Kniestock von 0,75m. Durch die zusätzliche Loggia können wir jetzt auf 1,25m. Das hat der Architekt vom Bauunternehmen errechnet.

Den Grundriss müsste man natürlich auf die 13m anpassen und dafür etwas mehr Tiefe zugeben.
Wobei man in der Tiefe ja auch auf 11m beschränkt wäre (mit Erker sind wir aktuell schon bei 10,80), wenn man das Baufenster dreht. Außer das Bauamt ist diesbezüglich total flexibel.

Spundwände? Ist da irgendwo ne Senke?
Nein, aber uns wurde immer gesagt, dass man für den Kellerbau bei zu wenig Platz an der Seite Spundwände bzw. Berliner Verbau benötigt. Der Keller muss ja schräg (45°?) ausgegraben werden. Da ist an der Seite dann nicht ausreichend Bewegungsfläche mehr.
 
kaho674

kaho674

Die Dachneigung sind 40°. Die Idee mit der Loggia kam von mir. Ursprünglich hatten wir eigentlich ein 13m breites Haus geplant. Dadurch ergab sich aber ein Kniestock von 0,75m. Durch die zusätzliche Loggia können wir jetzt auf 1,25m. Das hat der Architekt vom Bauunternehmen errechnet.
Ja, das hatte ich gelesen. Ich wollte halt gern mal die Rechnung sehen. Also die nackten Zahlen.
Wobei man in der Tiefe ja auch auf 11m beschränkt wäre (mit Erker sind wir aktuell schon bei 10,80), wenn man das Baufenster dreht. Außer das Bauamt ist diesbezüglich total flexibel.
Nö, warum denn? Ich sehe das eher so: Dein Baufenster ist derzeit 11m breit und 14m tief. Der Grund für die Beschränkung der Breite ist durch den Abriss des Nachbarhauses weggefallen. Also ist das Baufenster jetzt 13breit und 14 tief. Ich denke, dass das Bauamt da mitgeht, wenn man nett fragt.

Nein, aber uns wurde immer gesagt, dass man für den Kellerbau bei zu wenig Platz an der Seite Spundwände bzw. Berliner Verbau benötigt. Der Keller muss ja schräg (45°?) ausgegraben werden. Da ist an der Seite dann nicht ausreichend Bewegungsfläche mehr.
Da kenn ich mich leider nicht aus, klingt aber merkwürdig. Du hast ja noch 3m an jeder Seite zum tanzen und bewegen. Wenn ich da die Reihenhausbauer sehe, die mit Keller bauen und direkt ans Nachbarhaus anbauen...

Etwas schade ist, dass der Vorratsraum da die großen Fenster hat und mein Büro (Es wird mein Hauptbüro werden) die doofe Nordseite.
Tja, das sind ja nur Vorschläge, wie Yvonne schon sagte. Ich hatte bei dieser Variante die Speisekammer erst ganz weggelassen und dafür Büro und Speis zu einem großen Raum zusammengezogen. Dafür hatte ich die Küche noch etwas größer gelassen, so dass dort genügend Stauraum wäre. Die restlichen Vorräte wie Tiefkühltruhe und Dosenfutter sollten dann mit in den Keller. Dann hätte das Büro sogar von 2 Seiten Licht und wäre ein herrlich heller Raum im EG. Aber bei Deiner Liste "Worauf könnt Ihr verzichten" tauchte Speis nicht auf.

Wenn Du mit dem Bauamt noch mal redest und tatsächlich die 13mx 14m Baufeld verhandelst, könnte man bestimmt auch auf Stadtvilla mit Anbau gehen.
 
11ant

11ant

Ich sehe das eher so: Dein Baufenster ist derzeit 11m breit und 14m tief. Der Grund für die Beschränkung der Breite ist durch den Abriss des Nachbarhauses weggefallen.
Welches Nachbarhaus wurde denn abgerissen ? - an Abständen würde aber ein Abriss als solcher auch nichts ändern, es sei denn, in dessen Zuge würde auch eine Abstandsflächenübernahme gelöscht.
 
Zuletzt aktualisiert 22.12.2025
Im Forum Grundrissplanung / Grundstücksplanung gibt es 2554 Themen mit insgesamt 88554 Beiträgen


Ähnliche Themen zu Einfamilienhaus mit 3 Kinderzimmern
Nr.ErgebnisBeiträge
1Keller ja oder nein bei großem Baufenster? - Seite 212
2Feedback zu unserer Grundrissidee, kleines Baufenster - Seite 9127
3Bauland um Gartenland erweitern - Auswirkungen auf Baufenster - Seite 320
4Fragen zur Planung eines Einfamilienhaus in Hamburg - Mehrkosten durch Keller 11
5Bauen ohne Baufenster NRW 13
6Baufenster auf der Flurkarte - Genehmigung 39
7Flächennutzungsplan verbindlich? Evtl Baufenster auf Waldgebiet?! 31
8Bebauungsplan, Baulinie, Baugrenze, Baufenster 14
9Grundrissoptimierung Einfamilienhaus mit Keller auf kleinem Grundstück - Seite 5178
10Einfamilienhaus bauen mit/ohne Keller bei kleinem Grundstück - Seite 765
11Einfamilienhaus Hanglang mit Keller für 2 Personen inkl. Home Office und Hobbyräume 80
12Grundriss Stadtvilla ohne Keller 185qm - Tipps 35
13Keller oder Bodenplatte? - Kostenschätzung 24
14Grundriss Stadtvilla 180m², Keller, 3 Kinder - Eure Meinungen dazu? - Seite 851
15Detailplanung Grundriss Einfamilienhaus mit Keller und Einliegerwohnung 28
16Grundriss Bungalow 160-170qm mit Keller - Seite 2175
17Neubau 200qm + Keller mit Mansarddach 18
18Vereinigung zweier Grundstücke - Baufenster neu legen? 20
19Bebauung Grundstück - Keller ja oder nein? - Seite 275
20Grundriss Einfamilienhaus 190m2 mit Keller Feedback? 41

Oben