Einfamilienhaus mit 3 Kinderzimmern

4,00 Stern(e) 17 Votes
Zuletzt aktualisiert 05.10.2025
Sie befinden sich auf der Seite 6 der Diskussion zum Thema: Einfamilienhaus mit 3 Kinderzimmern
>> Zum 1. Beitrag <<

H

Hamburger2020

Ich find das irgendwie skurril, dass es für da hinten nen Bebauungsplan gibt, wo rechts 5m Abstand gefordert wird bzw. das Baufeld auf 11m Breite begrenzt ist. Das ist echt schade, da man so das Haus nicht einfach drehen kann. Wird das irgendwo begründet? Scheint mir so willkürlich...
Das "Problem" ist, dass der Bebauungsplan aus 1983 ist. Damals wurde das Baufenster um ein existierenden Haus herum gezogen. Seitdem hat sich daran nichts mehr geändert
 
H

Hamburger2020

Wir haben auch eine geschlossene Küche mit Tür und die Tür bringt was Gerüche und Geräusche angeht definitiv etwas. Ich kann Abens noch backen und mixen ohne dass man im Wohnzimmer sonderlich viel davon hört. Wir hatten in unserer alten Wohnung eine offene Küche und trotz gutem Abzug hat es nach dem braten teilweise wie in einer Imbissbude gerochen.
Ja, genauso ist es bei uns aktuell auch. Im Flur hinter der Wohnzimmertür ist es dann deutlich angenehmer.
 
kaho674

kaho674

Das "Problem" ist, dass der Bebauungsplan aus 1983 ist. Damals wurde das Baufenster um ein existierenden Haus herum gezogen. Seitdem hat sich daran nichts mehr geändert
Steht das Haus noch? Wenn nicht, kann man vielleicht mit dem Amt reden und die Kiste einfach drehen. Das fände ich die beste Lösung. Hier und da noch bissl an den Maßen rumzubbeln und dann passt das super.
 
kaho674

kaho674

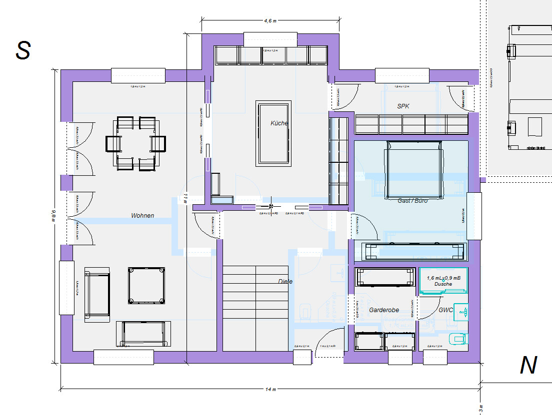
Ich werfe hier noch mal einen hin mit geschlossener Küche.


Detaillierter Grundriss eines Hauses mit Küche, Wohnzimmer, Garage und Carport



Grundriss eines Hauses: Küche in der Mitte, links Wohnen, rechts Gast/Büro, Treppe.


Grundriss eines Hauses mit Küche (K), Bad, Dusche, Bettzimmer, Abstellraum und Treppen.


Wie man sieht, hab ich keinen Balkon an die Kinderzimmer gemacht. Ich möchte den mal anzweifeln.
Bei einem Kniestock von 1,25m ist der nach meiner Milchmädchenrechnung nicht nötig.
Allerdings bin ich da kein Experte - ich rechne alles brutto inkl. Wände - sollte ja keine Rolle spielen, oder?
Hier mein Rechenbeispiel (Werte teilweise gerundet):

Grundfläche (brutto inkl. Außenwände) = 142,7m² im EG
Soll OG nicht über 2,30m = 142,7 * 2/3 = 95m²

2,30m bei 40° Dachneigung liegt etwa 1,25m von der Innenwand + 40cm Außenwand = 1,65m von der Wand.
Demnach sind unter 2,30m:

Seite ohne Giebel: 14m*1,65m = 23,1m²
Seite mit Giebel: 4,70m*1,65m = 7,755m² x 2 = 15,5m² dazu 2x 1,65m*2,85m = 9,4m² gesamt 24,9m².
Fläche unter 2,30m: 24,9 + 23,1 = 48m²

142,7m² Grundfläche EG - 48m² = 94,7m²< 95m² Soll.

Hab ich da nen Denkfehler?
 
H

hampshire

Wieder einmal ein klasse Entwurf - ob Du da einen heimlichen Berufswunsch hast?
Wieder einmal klasse Autos - diesmal mit selten gewordenem Längsmotor.
 
H

Hamburger2020

Steht das Haus noch? Wenn nicht, kann man vielleicht mit dem Amt reden und die Kiste einfach drehen. Das fände ich die beste Lösung. Hier und da noch bissl an den Maßen rumzubbeln und dann passt das super.
Das Haus steht nicht mehr. Ein Problem ist mir aber eingefallen. Ganz drehen wird man das Haus nicht können, da das Haus ansonsten maximal 13m breit sein dürfte, damit auf jeder Seite 3m Abstand eingehalten wird. Hinzu kommt, das man dann vermutlich (sehr teure) Spundwände für den Bau des Kellers benötigt

Ist leider alles nicht einfach, aber hier muss man als Grundstück das nehmen was da ist und noch einigermaßen bezahlbar.
 
Zuletzt aktualisiert 05.10.2025
Im Forum Grundrissplanung / Grundstücksplanung gibt es 2510 Themen mit insgesamt 87167 Beiträgen


Ähnliche Themen zu Einfamilienhaus mit 3 Kinderzimmern
Nr.ErgebnisBeiträge
1Singlehaus - Haus mit 40m² Grundfläche 10
22 Wohneinheiten auf 185qm Grundfläche ?! 21
3Möglichkeiten 2/3 Grundfläche im OG nicht zu überschreiten - Seite 214
4Holzhaus 1,5 Geschosse mit 8x5m Grundfläche - Was darfs kosten? - Seite 220
5Minimale Grundfläche - Hauswirtschaftsraum und AZ im EG - Ohne Keller 19
6Grundrissplanung 4-Giebel Haus Herrengiebel Doppelgarage - Seite 212
7Fertigholzhaus Giebel Wetterschutzfarbe 21

Oben