Einfamilienhaus mit 3 Kinderzimmern

4,00 Stern(e) 17 Votes
Zuletzt aktualisiert 21.11.2025
Sie befinden sich auf der Seite 10 der Diskussion zum Thema: Einfamilienhaus mit 3 Kinderzimmern
>> Zum 1. Beitrag <<

H

Hamburger2020

Moin Moin,

wir haben jetzt einen (deutlich) überarbeiteten Grundriss erhalten. Das Gebäude ist jetzt als "eingeschössige" Hamburger Kaffeemühle konzipiert.

Somit haben wir unseren Wunsch mit vollen Räumen im ganzen Haus erfüllt sowie eine Ausrichtung des Allraums zum Garten.

Die Küche bleibt weiterhin geschlossen (hier bitte keine erneute Diskussion) Der Architekt hat es aus unserer Sicht aber sehr gut gelöst (z.B. auch durch das Sichtfenster zum Wohnzimmer, wobei wir noch nicht 100% sicher sind, ob wir das möchten).

Das Baufenster wurde jetzt auch auf den mm ausgenutzt und mit allen Tricks gearbeitet (der mini Erker Vorne als untergeordnetes Bauteil).

An sich sind wir sehr zufrieden mit dem Grundriss, es fehlt nur etwas Stellfläche im Allraum (der Kamin wird nicht gebaut, wir brauchen keinen) sowie im Keller hätten wir gerne 6 Räume. Das OG finden wir so optimal.

Wir würden uns aber dennoch freuen, wenn ihr vielleicht noch Dinge seht, die ggf. optimiert werden könnten. Auch über Tipps zur Aufteilung des Allraums freuen wir uns sehr.

Vielen Dank!
PS: Ob wir die Garage bauen ist auch noch unsicher, ist eine Kostenfrage. Was schätzt ihr würde eine derartige Garage ca. kosten?

Zweigeschossiges Backsteinhaus mit grauem Walmdach und Garage, Außenansicht


Südseite eines roten Ziegelhauses mit grauem Dach und Garage links.


Zweistöckiges rotes Backsteinhaus mit grauem Dach, vorderer Treppenaufgang und Garten.


Zweistöckiges rotes Backsteinhaus mit Garage, Blick von der Nachbarschaft.


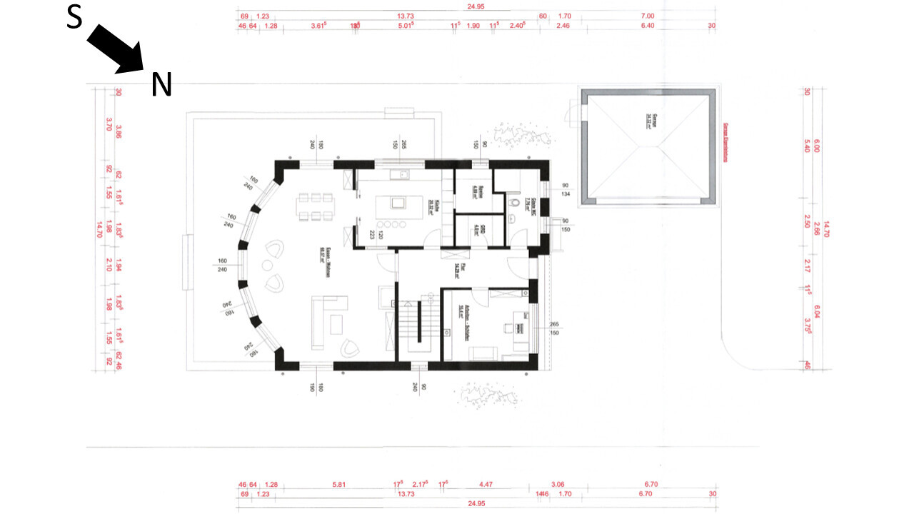
Grundriss eines Hauses von oben: Wohnzimmer, Küche, Schlafzimmer, Bad und Flur.


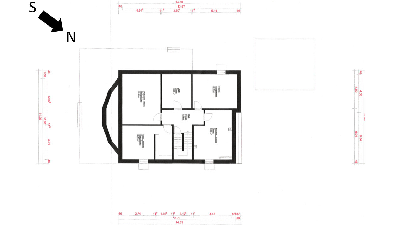
Grundriss eines Hauses mit zentralem Treppenhaus, mehreren Räumen und linker Balkon-Veranda; Norden.


Grundriss eines Hauses: zentrales Treppenhaus, mehrere Räume, dicke Außenwände, Nordpfeil.
 
kaho674

kaho674

Das Schlafzimmer sieht sehr schmal und eng aus. Ich persönlich mag es auch nicht, Schränke Rücken an Rücken als Raumteiler aufzustellen. Schade ist auch, dass nur 2 Kinder auf den Balkon können. Aber sonst find ich den Plan ziemlich gut.

Die Außengestaltung ist Geschmackssache. Ich muss gestehen, dass ich diesen halbrunden Majestäts-Balkon reichlich albern finde. Die Kaffeemühle setzt dem Clown dann noch die Zuckertüte auf den Kopf. Aber das muss Euch nicht kratzen.
 
Y

ypg

Wow, da sind wir einer Meinung.
Ich finde das EG recht gut gelungen. Der Erker ist gar nicht meins. Ich mag auch die vielen Einzelfenster da nicht und stelle mir vor, dass der Raum nicht behaglich sein wird. Ich denke, mit einem typischen Kaffehauserker hätte das Haus mehr Charme. Das übergroße halbrunde ist irgendwie angeberisch. Ich mag auch die Gartenansicht überhaupt nicht. Sieht aus, als wenn das nette Haus eine zu große Fresse hat.
Im OG ist das Schlafzimmer mit 3 Metern zu schmal. Da würde ich noch mal etwas vermitteln.

Die Frage, wie teuer eine Garage kommt, ist jetzt nicht wirklich ernst gemeint, oder? Liest sich nämlich, als ob ihr Euch die nicht mehr leisten könnt. Wenn das wirklich so ist, dann würde ich tatsächlich auf den Runderker verzichten und den ne Nummer kleiner nehmen und dann passt auch noch die Garage. Einen Carport sehe ich nicht zum Haus passen.
 
kaho674

kaho674

Wenn das wirklich so ist, dann würde ich tatsächlich auf den Runderker verzichten und den ne Nummer kleiner nehmen und dann passt auch noch die Garage. Einen Carport sehe ich nicht zum Haus passen.
Das wird vermutlich nicht gehen, da sonst die Eingeschossigkeit flöten geht.
 
Zuletzt aktualisiert 21.11.2025
Im Forum Grundrissplanung / Grundstücksplanung gibt es 2535 Themen mit insgesamt 87978 Beiträgen


Ähnliche Themen zu Einfamilienhaus mit 3 Kinderzimmern
Nr.ErgebnisBeiträge
1Bungalow mit 140qm und Garage im Grundriss 13
2Grundriss Einfamilienhaus (ca. 170 qm) mit Garage - Hanglage 35
3Grundriss 2-geschossige Stadtvilla - Änderungsvorschläge/Ideen 12
4Grundriss HAUS FÜR ZWEI" auf etwa 150qm stellt sich vor 171
5Einfamilienhaus mit 135 qm Wohnfläche plus KG mit integrierter Garage/Büro 19
6Einfamilienhaus mit Keller Massivbau Grundriss-Bewertung 16
7Grundriss mit Rücksprung - ja oder nein?! - Seite 777
8Kritik an Einfamilienhaus-Grundriss erwünscht (~175m2/0,9m Kniestock/Keller) 16
9Grundriss mit Garage auf Grundstück realisierbar? - Seite 329
10Balkon auf Garage auf Grenze 11
11Grundriss 140 m2 Einfamilienhaus mit Garage - Hausausrichtung ok? - Seite 218
12Einfamilienhaus-Grundriss 170 qm für 4 Personen mit Garage 20
13Grundriss Bungalow 150qm mit Garage 79
14Grundriss Einfamilienhaus mit Keller und Garage - Seite 250
15Grundriss Einfamilienhaus, 200m2, 2 Vollgeschosse, Garage, ohne Keller 39
16Grundriss Einfamilienhaus mit 240m² mit Einliegerwohnung 75m² und Garage 39
17Grundriss Einfamilienhaus ca. 135 m³, Grundriss. Garage, 1,5 Geschossig, 4 Personen 11
18Grundriss Einfamilienhaus barrierefrei fürs Alter mit Eltern-Schlafzimmer im EG - Seite 744
19Grundriss Schlafzimmer, Ankleide und Bad en Suite 36
20Meinungen zu Grundriss "Haus am Hang" erbeten - Seite 231

Oben