ᐅ Einfamilienhaus im ersten Entwurf - eure Meinungen sind gefragt
Erstellt am: 09.10.17 19:49
B
Bauherrin2018B
Bauherrin201809.10.17 19:49Hallo Hausbau-Forum Mitglieder,
Wir freuen uns auf eure Meinungen und Anmerkungen und starten einfach mal mit dem Fragenkatalog:
Bebauungsplan/Einschränkungen
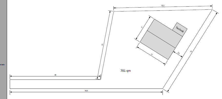
Größe des Grundstücks: 781qm abzüglich 90 qm für Anfahrt (Grundstück ist vorhanden)
Hang: Nein, maximal ganz leichtes Gefälle Richtung Osten
Es gibt keinen Bebauungsplan oder sonstige Einschränkungen
Anforderungen der Bauherren
Stilrichtung, Dachform, Gebäudetyp: Satteldach 45°
Keller, Geschosse: ohne Keller, Geschosse 1,5
Anzahl der Personen, Alter: 2 Personen (beide 28 Jahre)
Raumbedarf im EG, OG: siehe Skizzen
Büro: Familiennutzung oder Homeoffice? Öfters Homeoffice
Schlafgäste pro Jahr: minimal
offene oder geschlossene Architektur: Offene Architektur
konservativ oder moderne Bauweise: modern
offene Küche, Kochinsel: Offene Küche, aber keine Kochinsel
Anzahl Essplätze: 6-8 Personen
Kamin: Nach Möglichkeit ja
Balkon, Dachterrasse: Terrasse angrenzend an Ess- und Wohnzimmer mit Option auf Wintergarten in ein paar Jahren
Garage, Carport: Nicht unbedingt von Anfang an, reicht im Laufe der Zeit
Hausentwurf
Von wem stammt die Planung: Do-it-Yourself + Inspiration verschiedener Musterhäuser
Was gefällt besonders? Warum? Offene Küche, Glasfront Richtung Garten/Terrasse
Was gefällt nicht? Warum?
Preisschätzung lt Architekt/Planer: bisher keine Angebote eingeholt/vllt. kann schon jemand grob schätzen mit wie viel wir rechnen müssen
Persönliches Preislimit fürs Haus, inkl Ausstattung: derzeit in Klärung
favorisierte Heiztechnik: Was ist heutzutage zu empfehlen?
Wenn Ihr verzichten müsst, auf welche Details/Ausbauten
-könnt Ihr verzichten: Zimmergrößen allgemein, Fläche des Hauses
-könnt Ihr nicht verzichten: offene Küche
Was ist die wichtigste/grundlegende Frage zum Grundriss in 130 Zeichen zusammengefasst?
Wir erhoffen uns hier ein paar Anregungen und Verbesserungen zur Einteilung, Ausrichtung und Größe des Hauses, die wir vielleicht im Eifer des Gefechts übersehen haben.
Wir bedanken uns jetzt schon für eure Kommentare und eure Zeit 🙂





Wir freuen uns auf eure Meinungen und Anmerkungen und starten einfach mal mit dem Fragenkatalog:
Bebauungsplan/Einschränkungen
Größe des Grundstücks: 781qm abzüglich 90 qm für Anfahrt (Grundstück ist vorhanden)
Hang: Nein, maximal ganz leichtes Gefälle Richtung Osten
Es gibt keinen Bebauungsplan oder sonstige Einschränkungen
Anforderungen der Bauherren
Stilrichtung, Dachform, Gebäudetyp: Satteldach 45°
Keller, Geschosse: ohne Keller, Geschosse 1,5
Anzahl der Personen, Alter: 2 Personen (beide 28 Jahre)
Raumbedarf im EG, OG: siehe Skizzen
Büro: Familiennutzung oder Homeoffice? Öfters Homeoffice
Schlafgäste pro Jahr: minimal
offene oder geschlossene Architektur: Offene Architektur
konservativ oder moderne Bauweise: modern
offene Küche, Kochinsel: Offene Küche, aber keine Kochinsel
Anzahl Essplätze: 6-8 Personen
Kamin: Nach Möglichkeit ja
Balkon, Dachterrasse: Terrasse angrenzend an Ess- und Wohnzimmer mit Option auf Wintergarten in ein paar Jahren
Garage, Carport: Nicht unbedingt von Anfang an, reicht im Laufe der Zeit
Hausentwurf
Von wem stammt die Planung: Do-it-Yourself + Inspiration verschiedener Musterhäuser
Was gefällt besonders? Warum? Offene Küche, Glasfront Richtung Garten/Terrasse
Was gefällt nicht? Warum?
Preisschätzung lt Architekt/Planer: bisher keine Angebote eingeholt/vllt. kann schon jemand grob schätzen mit wie viel wir rechnen müssen
Persönliches Preislimit fürs Haus, inkl Ausstattung: derzeit in Klärung
favorisierte Heiztechnik: Was ist heutzutage zu empfehlen?
Wenn Ihr verzichten müsst, auf welche Details/Ausbauten
-könnt Ihr verzichten: Zimmergrößen allgemein, Fläche des Hauses
-könnt Ihr nicht verzichten: offene Küche
Was ist die wichtigste/grundlegende Frage zum Grundriss in 130 Zeichen zusammengefasst?
Wir erhoffen uns hier ein paar Anregungen und Verbesserungen zur Einteilung, Ausrichtung und Größe des Hauses, die wir vielleicht im Eifer des Gefechts übersehen haben.
Wir bedanken uns jetzt schon für eure Kommentare und eure Zeit 🙂
außen. Passt. Terrasse inne Sonne, Technik in der Finsternis. Unten, Flur schützt gut die Privatsfäre. Man steht nicht gleich drinnen. Aber Garderobenplatz eng. Alles hat seinen Preis.
Oben, warum soviel Zimmer? Willste ne Frühstückspension betreiben? Nimm da eins weg und gönn Dir ein größeres Bad. Evtl. auch Schlafzimmer größer. Karsten
Oben, warum soviel Zimmer? Willste ne Frühstückspension betreiben? Nimm da eins weg und gönn Dir ein größeres Bad. Evtl. auch Schlafzimmer größer. Karsten
B
Bauherrin201809.10.17 20:42Hallo Karsten. Danke für das Feedback - die Zimmer sind aus unserer Sicht schon nötig, da wir ohne Keller bauen wollen.
Klasse Präsentation: alles da, Grundstück, Zeichnung, nicht in Pdf, sondern jpgs. Danke [emoji2]
Von wo wird denn das Grundstück erschlossen?
Ich frage, weil der Technikraum ziemlich weit von dem Anfahrtsstiel entfernt ist und Leitungen nicht überbaut werden dürfen.
Ansonsten schön klar, passe mich @Nordlys an (außer seine Badkomponente, den 12qm sind großzügig) aber:
Mir gefällt der Flur überhaupt nicht. Zu lang, zu schmal, Zugang zur Küche viel zu weit entfernt. Da steht sich die Küche unpraktischer Weise selbst im Wege. Ich würde das Haus wohl länger und schmaler machen.
Die Qm scheinen zum Rechnen geschönt: die Treppe verbraucht hier gar keinen Platz, ansonsten werden wohl auch die Treppenmaße gerade mal ausreichend sein.
Von wo wird denn das Grundstück erschlossen?
Ich frage, weil der Technikraum ziemlich weit von dem Anfahrtsstiel entfernt ist und Leitungen nicht überbaut werden dürfen.
Ansonsten schön klar, passe mich @Nordlys an (außer seine Badkomponente, den 12qm sind großzügig) aber:
Mir gefällt der Flur überhaupt nicht. Zu lang, zu schmal, Zugang zur Küche viel zu weit entfernt. Da steht sich die Küche unpraktischer Weise selbst im Wege. Ich würde das Haus wohl länger und schmaler machen.
Die Qm scheinen zum Rechnen geschönt: die Treppe verbraucht hier gar keinen Platz, ansonsten werden wohl auch die Treppenmaße gerade mal ausreichend sein.
Dann zieh die Treppe noch bis auf den Spitzboden, leg den mit Brettern aus, mach oben ein kleines Fenster rein in den Giebel, und fertig ist der Keller und Wäschetrockenboden. Zimmer wären mir zum Gerümpel stapeln zu teuer. Es sei denn, ihr habt so Hobbys wie elektrische Eisenbahn oder so. Karsten
Deute ich das recht, daß das Grundstück noch geteilt werden soll und im vorderen Teil nur eine Einfahrtsbreite nach hinten durchführt ?
Die Außenwände sehen dünn aus, versteht sich die Zeichnung noch als Prinzipskizze ?
Im OG habe ich den Eindruck, die Darstellung zieht gedanklich die Außenwände des EG hoch. D.h. an den Traufseiten sehe ich da nichts zurückweichen und frage mich, ob das mit der Kopfhöhe im Treppenhaus überall paßt. Das käme wohl ein bißchen auf den Kniestock an.
Das Bad im OG scheint mir ein Zwerchhaus zu sein. Insgesamt scheinen mir Dachschrägen auch in den Flächenangaben nicht berücksichtigt zu sein.
https://www.instagram.com/11antgmxde/
https://www.linkedin.com/company/bauen-jetzt/
Die Außenwände sehen dünn aus, versteht sich die Zeichnung noch als Prinzipskizze ?
Im OG habe ich den Eindruck, die Darstellung zieht gedanklich die Außenwände des EG hoch. D.h. an den Traufseiten sehe ich da nichts zurückweichen und frage mich, ob das mit der Kopfhöhe im Treppenhaus überall paßt. Das käme wohl ein bißchen auf den Kniestock an.
Das Bad im OG scheint mir ein Zwerchhaus zu sein. Insgesamt scheinen mir Dachschrägen auch in den Flächenangaben nicht berücksichtigt zu sein.
https://www.instagram.com/11antgmxde/
https://www.linkedin.com/company/bauen-jetzt/
Ähnliche Themen