Hallo zusammen,
gerne würde ich eure Meinungen zu unserer derzeitigen Planung hören. Das Grundstück ist ca. 460 qm groß, aber trapezförmig. Daher rutschen wir mit dem Haus an die Südgrenze des Grundstücks und packen die Garage oben drüber. Das Grundstück ist bereits gekauft und bezahlt. Es gibt keinen Bebauungsplan, daher sind die folgenden Werte als Richtwerte zu verstehen.
Bebauungsplan/Einschränkungen
Größe des Baugrundstücks: ca. 460 qm
Grässe des Gartengrundstücks: ca. 600 qm
Hang: Nein
Grundflächenzahl: 0,4
Baufenster, Baulinie und -grenze: Hessische Regelung, drei Meter Abstand
Randbebauung: Nur Garage
Anzahl Stellplatz: Zwei
Geschossigkeit: Zwei
Dachform: Walmdach
Stilrichtung: Modern
Ausrichtung: ?
Anforderungen der Bauherren
Haus ohne Keller, aber mit großem Dachboden
Zwei Erwachsene, ein Kind
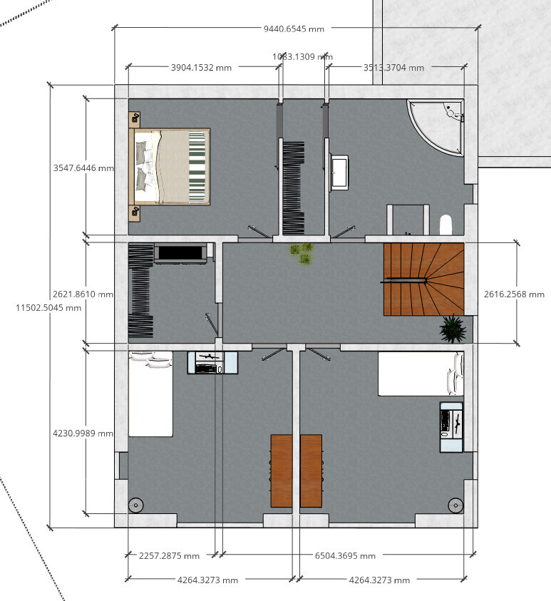
Der derzeitige Plan ist mit ca. 190 qm sehr groß. Wir sind am überlegen an der Südseite etwas wegzunehmen um am Ende auf ca. 170-180qm zu kommen.
Büro: Familiennutzung und Homeoffice
Offene Küche, Frau möchte eine Theke
Kaminofen (gewünscht aber derzeit noch nicht geplant)
Was uns wichtig war:
- Flur nicht zu beengt
- Leicht zu putzen (also wenig Verzweigungen und möglichst quadratische Räume)
- Eine offene Treppe (auch wenn es energetisch nicht die beste Lösung ist)
- Büro im EG soll im Alter als Schlafzimmer dienen können
- Viel Sicht zum Garten in Südseite
Hausentwurf
Von wem stammt die Planung: Do-it-Yourself
Preisschätzung lt Architekt/Planer: 310000 (ohne Garage, ohne Fenster, ohne Rollladen, ohne Rollladenkasten, ohne Bodenbelag)
Persönliches Preislimit fürs Haus, inkl Ausstattung: 350000 + Baunebenkosten
favorisierte Heiztechnik: Luft-Wasser Wärmepumpe + Kaminofen
Wenn Ihr verzichten müsst, auf welche Details/Ausbauten könnt Ihr
verzichten/nicht verzichten: Eigentlich egal, solange es plausibel ist
Warum ist der Entwurf so geworden, wie er jetzt ist?
Der Grundentwurf stammt von der Danwood-Website (Haus Park 181W), allerdings ist dort die Treppe in der Mitte von Wohnzimmer und Küche. Da wir eine offene Treppe möchten aber durch die Treppe in der Mitte des Raumes sehr viel Platz verloren geht, haben wir die Treppe umgesetzt und entsprechend das OG umgeplant. Vorher hatten wir uns Pläne und Zeichnungen für ein Bungalow überlegt, aber dann wegen Geschossflächenzahl und Grundstücksform wieder verworfen.
Was ist die wichtigste/grundlegende Frage zum Grundriss in 130 Zeichen zusammengefasst?
- Generelle Meinungen gewünscht
- Sehr ihr Verbesserungspotenzial bei der Raumaufteilung?
- Was haltet ihr von der offenen Bauweise (Flur, Treppe, Wohn-Küche)?
- Was haltet ihr von den Fenstern zur Südseite? Ich habe bedenken dass es bei so vielen Fenstern im Sommer extrem warm im Haus wird.
Danke vorab für eure Meinungen !








gerne würde ich eure Meinungen zu unserer derzeitigen Planung hören. Das Grundstück ist ca. 460 qm groß, aber trapezförmig. Daher rutschen wir mit dem Haus an die Südgrenze des Grundstücks und packen die Garage oben drüber. Das Grundstück ist bereits gekauft und bezahlt. Es gibt keinen Bebauungsplan, daher sind die folgenden Werte als Richtwerte zu verstehen.
Bebauungsplan/Einschränkungen
Größe des Baugrundstücks: ca. 460 qm
Grässe des Gartengrundstücks: ca. 600 qm
Hang: Nein
Grundflächenzahl: 0,4
Baufenster, Baulinie und -grenze: Hessische Regelung, drei Meter Abstand
Randbebauung: Nur Garage
Anzahl Stellplatz: Zwei
Geschossigkeit: Zwei
Dachform: Walmdach
Stilrichtung: Modern
Ausrichtung: ?
Anforderungen der Bauherren
Haus ohne Keller, aber mit großem Dachboden
Zwei Erwachsene, ein Kind
Der derzeitige Plan ist mit ca. 190 qm sehr groß. Wir sind am überlegen an der Südseite etwas wegzunehmen um am Ende auf ca. 170-180qm zu kommen.
Büro: Familiennutzung und Homeoffice
Offene Küche, Frau möchte eine Theke
Kaminofen (gewünscht aber derzeit noch nicht geplant)
Was uns wichtig war:
- Flur nicht zu beengt
- Leicht zu putzen (also wenig Verzweigungen und möglichst quadratische Räume)
- Eine offene Treppe (auch wenn es energetisch nicht die beste Lösung ist)
- Büro im EG soll im Alter als Schlafzimmer dienen können
- Viel Sicht zum Garten in Südseite
Hausentwurf
Von wem stammt die Planung: Do-it-Yourself
Preisschätzung lt Architekt/Planer: 310000 (ohne Garage, ohne Fenster, ohne Rollladen, ohne Rollladenkasten, ohne Bodenbelag)
Persönliches Preislimit fürs Haus, inkl Ausstattung: 350000 + Baunebenkosten
favorisierte Heiztechnik: Luft-Wasser Wärmepumpe + Kaminofen
Wenn Ihr verzichten müsst, auf welche Details/Ausbauten könnt Ihr
verzichten/nicht verzichten: Eigentlich egal, solange es plausibel ist
Warum ist der Entwurf so geworden, wie er jetzt ist?
Der Grundentwurf stammt von der Danwood-Website (Haus Park 181W), allerdings ist dort die Treppe in der Mitte von Wohnzimmer und Küche. Da wir eine offene Treppe möchten aber durch die Treppe in der Mitte des Raumes sehr viel Platz verloren geht, haben wir die Treppe umgesetzt und entsprechend das OG umgeplant. Vorher hatten wir uns Pläne und Zeichnungen für ein Bungalow überlegt, aber dann wegen Geschossflächenzahl und Grundstücksform wieder verworfen.
Was ist die wichtigste/grundlegende Frage zum Grundriss in 130 Zeichen zusammengefasst?
- Generelle Meinungen gewünscht
- Sehr ihr Verbesserungspotenzial bei der Raumaufteilung?
- Was haltet ihr von der offenen Bauweise (Flur, Treppe, Wohn-Küche)?
- Was haltet ihr von den Fenstern zur Südseite? Ich habe bedenken dass es bei so vielen Fenstern im Sommer extrem warm im Haus wird.
Danke vorab für eure Meinungen !
Ben-man schrieb:
Darf die Garage eigentlich so gebaut werdenNein. In Hessen dürfen privilegierte Gebäude entweder auf der Grenze oder mit mindestens 1m Abstand dazu gebaut werden.Ben-man schrieb:
Eine offene Treppe (auch wenn es energetisch nicht die beste Lösung ist)Wie ist das gemeint? Habt ihr Sorge, dass es zieht? In modernen Häusern gibt es keine Temperaturschwankungen, es ist überall gleich warm Escroda schrieb:
Nein. In Hessen dürfen privilegierte Gebäude entweder auf der Grenze oder mit mindestens 1m Abstand dazu gebaut werden.War klar Dürfte die Garage denn so gebaut werden, wie in diesem Beitrag angehängten Bild? Sieht jetzt nicht so schön aus, ist nur für mich zum besseren Verständniss.Niloa schrieb:
Wie ist das gemeint? Habt ihr Sorge, dass es zieht? In modernen Häusern gibt es keine Temperaturschwankungen, es ist überall gleich warm Nein das nicht, aber im Endeffekt wird ja dann auch das Obergeschoss geheizt wenn sich dort niemand aufhält.Ähnliche Themen