ᐅ Einfamilienhaus an Hanglage, ca. 220 m², 2,5 Geschossig, Satteldach - Ideen?
Erstellt am: 15.07.18 18:46
M
Markus_21M
Markus_2117.07.18 15:55Ich habe Euch noch paar Hausansichten und die Grundrisse neu hochgeladen. Hoffe da ist mehr zu erkennen.
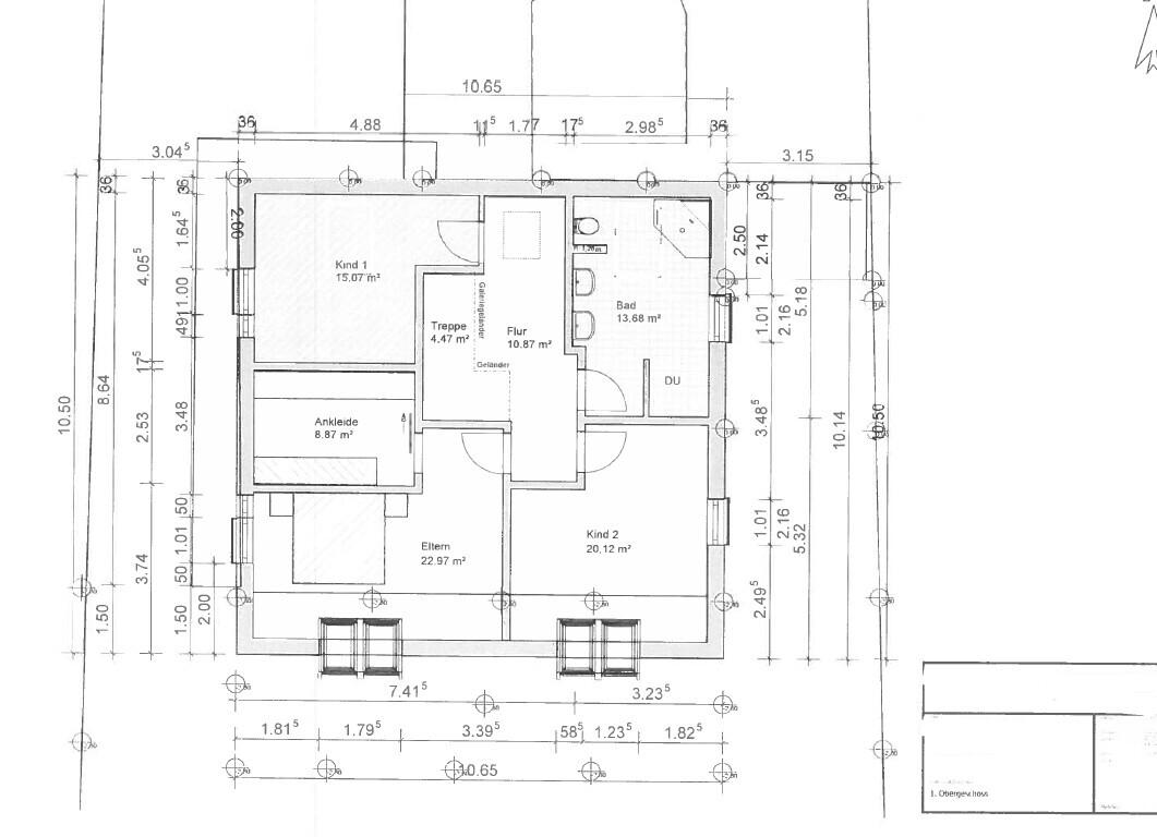
Zum Thema Grundrisse: Im Grunde möchten wir die Räume zumindest schon auf der Etage lassen, wo Sie aktuell sind. Also Schlafen OG, Wohnen EG. Wenn jemand eine clevere Idee hat aus 2,5 nur 2 Etagen zu machen, sind wir da offen. Der minimale Platzbedarf liegt bei ca. 170 m². Die jetzigen 220 sind schon wirklich an der oberen Grenze und den drei Etagen geschuldet.
Hausansichten: Gerade die Ansicht beim Hauseingang wirkt sehr "lieblos" und langweilig. Wenn hier jemand eine Idee hat, wie man das besser gestalten kann, wären wir sehr dankbar.
Generell sind wir ja noch nicht am Ende mit der Planung und auch für neue Ideen offen (auch wenn das komplett von dem abweicht, was wir da aktuell haben)




Zum Thema Grundrisse: Im Grunde möchten wir die Räume zumindest schon auf der Etage lassen, wo Sie aktuell sind. Also Schlafen OG, Wohnen EG. Wenn jemand eine clevere Idee hat aus 2,5 nur 2 Etagen zu machen, sind wir da offen. Der minimale Platzbedarf liegt bei ca. 170 m². Die jetzigen 220 sind schon wirklich an der oberen Grenze und den drei Etagen geschuldet.
Hausansichten: Gerade die Ansicht beim Hauseingang wirkt sehr "lieblos" und langweilig. Wenn hier jemand eine Idee hat, wie man das besser gestalten kann, wären wir sehr dankbar.
Generell sind wir ja noch nicht am Ende mit der Planung und auch für neue Ideen offen (auch wenn das komplett von dem abweicht, was wir da aktuell haben)
Markus_21 schrieb:
Generell sind wir ja noch nicht am Ende mit der Planung und auch für neue Ideen offen (auch wenn das komplett von dem abweicht, was wir da aktuell haben)Ja, das halte ich für höchst angebracht. Dieses Haus würde nur im Bau neu aussehen. Sobald der Putz darauf wäre, hätte man den Eindruck von einem sehr gepflegten 80er Jahre Objekt - dafür muß man nicht neu bauen, die gibt es genügend am Markt.Schau´ mal hier: https://www.hausbau-forum.de/threads/erstentwurf-vom-bauzeichner-für-unser-Einfamilienhaus.26764/page-4 - da stecken in #21 noch drei weitere Lesetipps von mir drin, die zu ähnlich gelagerten Threads (Hang mit ähnlichen Größen) führen.
Schmöker´ die mal alle vier durch - die sind zum Teil mit ähnlichen Vorgaben gestartet (also auch mit 08/15 Schubladenentwurf aufgebockt für Hanglage).
Ein schönes Abschreckbeispiel habe ich auch noch, das Haus von Familie SupaCriz: https://www.hausbau-forum.de/threads/erster-Entwurf-Grundriss-efh-ca-200qm-bitte-um-Feedback.18830
https://www.instagram.com/11antgmxde/
https://www.linkedin.com/company/bauen-jetzt/
Markus_21 schrieb:
Kniestock ist übrigens 1,50, weil die Frage noch vorher aufkam, ob wir vor dem Bett im Schlafzimmer noch stehen können.Wenn die Linie unterhalb des eingezeichneten Bettes die 2 m-Linie ist, was ich bei der gezeigten Dachneigung und Kniestockhöhe von 150 cm vermute, dann ist untenrum ums Bett herumgehen für Zwerge geeignet .
Die 2 m Linie in den Nordräumen ist gar nicht skizziert .. ich sehe da z. B. das WC und die Eingangstür für Kind 1 ... wie soll das funktionieren?
M
Markus_2123.07.18 20:13kbt09 schrieb:
Wenn die Linie unterhalb des eingezeichneten Bettes die 2 m-Linie ist, was ich bei der gezeigten Dachneigung und Kniestockhöhe von 150 cm vermute, dann ist untenrum ums Bett herumgehen für Zwerge geeignet .
Die 2 m Linie in den Nordräumen ist gar nicht skizziert .. ich sehe da z. B. das WC und die Eingangstür für Kind 1 ... wie soll das funktionieren?wir hatten die Kniestockhöhe nachträglich noch mal erhöht, so dass das mit der Tür in jedem Fall geht. Um das Bett herum, muss ich ja nicht selbst. Meine Freundin ist < 1,60 m
Markus_21 schrieb:
wir hatten die Kniestockhöhe nachträglich noch mal erhöht, so dass das mit der Tür in jedem Fall geht. Um das Bett herum, muss ich ja nicht selbst. Meine Freundin ist < 1,60 m wäre aber ein Grund, warum man nicht mehr ins Bett findet.
Ich habe jetzt diesen Thread nicht so verfolgt, sehe aber, dass der Hobbyraum die beste Lage bekommt. Muss ich jetzt nicht verstehen.
Außerdem frage ich mich, wozu die Bemaßung sein soll... die man ja erst in der Ausführungsplanung so genau braucht. Nun denn: die Tiefe des Balkons ist leider nur zu raten?
Im OG: da gibt es kein normales Zimmer. Jedes Zimmer (außer das Bad, wenn man mal im Bad von den 1-2qm im Eingang grosszügig absehen sollte) hat im Eingang eine Fläche, die nicht nutzbar ist. Das kann man mal mit einem Büro machen oder Gästezimmer, aber als Grundsätzlichkeit sollte man mal überlegen, ob man nicht bei der Treppenlage einen Riesen Fehler macht, der so ein Rumgestückel von Räumen zulässt.
Auch das gefangene Wohnzimmer ist mir irgendwie zu weit rum. Wenn da Kinder spielen sollen, sieht Madame oder Monsieur am Herd die Kinder nicht.
Wie breit ist denn das Wohnzimmer?? Ein Fachmann hat da jetzt keine Linie gezogen, oder?
Wenn ich 3 Meter vermute, dann ist der ganze Raum 3 Meter breit über die ganze Länge, die sich dann als U um die Treppe bzw Flur windet. Das ist alles viel zu schmal. Die Küche dürfte ja weniger als 3 Meter haben... dann eine Küchentür, wo man an ein Möbel stösst. Das wird leider ein Schlauch, wo man nicht ans Ende schauen kann... das wird kein schöner Raum.
Ähnliche Themen