Einfamilienhaus 130-140 m² Grundriss Planung

4,00 Stern(e) 38 Votes
Zuletzt aktualisiert 23.12.2025
Sie befinden sich auf der Seite 9 der Diskussion zum Thema: Einfamilienhaus 130-140 m² Grundriss Planung
>> Zum 1. Beitrag <<

Golfi90

Golfi90

Kommende Woche kommt der Estrich und alles andere ist bemustert. Die Zahl bleibt. BIS JETZT. Theoretisch passt es aber.
 
H

hegi___

Also ich habe in meiner Region mit einigen Architekten gesprochen und die hielten es alle für machbar auch wenn das Budget am unteren Ende liegt. Was soll ich sagen ? Wir werden es sehen...
 
E

Evolith

Machbar ist es. Wir haben unser Haus (aber einen Bungalow!) für einen ähnlichen Kurs gebaut. ABER die Baunebenkosten kamen oben darauf! Wir haben für alles 430k gezahlt. Davon 130k das Grundstück, 25k der Bodenaustausch, 12k Garage mit Carport, 230k das Haus. Der Rest waren Nebenkosten. Bei uns ist nichts schief gegangen und wir musste so nicht groß darauf zahlen.
Insofern kann es möglich sein, wenn er bei der Inneneinrichtung viel selbst macht und günstig beziehen kann. Dass es kein spaßiges Unterfangen wird und absolut keine Extrawünsche drin sind, sollte ihm klar sein ... hoffe ich. Die Garage würde ich auch erst mal weg lassen, halt nur vom Stellplatz her planen.
 
kaho674

kaho674

Budget habe ich extra nicht ausgefüllt weil dann alle wieder herumschreien das geht ja sowieso nicht.
Es liegt bei 255teur inkl Baunebenkosten.
Das wird ja spannend. Wenn Du das schaffst, plakatier das doch mal hier am Ende.
Ich habe einen besseren Grundriss gefunden. Voraussetzung die Treppe geht mit 2x2 Meter
Der (#26) passt zum Budget - funktioniert beides nicht. Möbliere mal Dein Büro mit echten Möbeln. Dazu Garderobe in den Flur (üblich bei 4 Personen sind 200x60) und bitte auch den HAR.

Vielleicht schaust Du mal hier:

Einmal spiegeln und 90° drehen, so dass die Terrasse im Nordwesten liegt, Küche im Südwesten - dann passt das.
 
Y

ypg

Warum hast du das Haus so positioniert und ausgerichtet?
Das frag ich mich auch die ganze Zeit, und ich versteh‘s nicht. Ich versteh die Denke nicht.
Also ich habe in meiner Region mit einigen Architekten gesprochen und die hielten es alle für machbar auch wenn das Budget am unteren Ende liegt. Was soll ich sagen ? Wir werden es sehen...
Ich kann mir ehrlich gesagt nicht vorstellen, dass mal so „einige“ Architekten beherzt sich das Objekt vorgenommen und kalkuliert haben.
so viele hier haben ein Problem, zu einem Architekt überhaupt vorzudringen. Und dann hat der sicherlich anderes zu tun, als kostenlos seine Arbeitszeit zu verschwenden. Irgendwo ist da ein Knoten, ein sich selbst zu belügender Knoten, welche Folgen ich absolut in Frage stelle.
Und wenn da irgendwo Architekten sich diesen Entwurf angeschaut haben, dann haben sie gleich wieder weggeschaut und dich mit einem Ok wieder weggeschickt. Tut mir leid der Worte, aber ich hab es ja schon gesagt, dass der Entwurf nicht fähig ist.
Sorry, aber auch ich habe in NDS nur einen günstigen qm-Preis von 1600 gehabt... aber das war vor 5 Jahren und excl. Baunebenkosten und Garten.
 
H

hegi___

Bitte keine Diskussionen um das Budget. Einige Freunde von mir haben in den letzten Jahren ( Ja ich weiß...) bei uns für weniger Geld mit weniger Eigenleistungen gebaut. Notfalls schieße ich noch 20-30 TEUR dazu oder verkaufe dritt und viert Wägen... What ever.

Ich habe den Grundriss jetzt gespiegelt und das Haus mittig platziert. Zur Straße könnten wir uns dann mittels Wand oder Gewächsen abschotten und die Kids haben jetzt Sonne. Einige Möbel habe ich ebenfalls eingezeichnet. Unter die Treppe kommt noch ein Abstellraum.

Grundriss eines Wohnhauses mit Schlafzimmer, Ankleide, Bad sowie Kind 1 und Kind 2 (Maße).


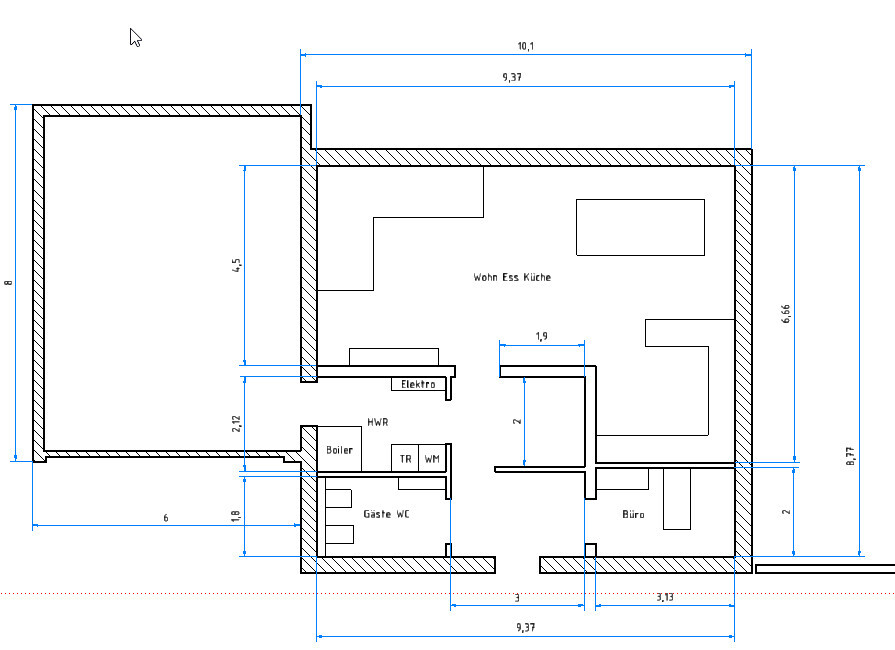
Grundriss eines Hauses mit offener Wohn-Ess-Küche, Büro, Gäste-WC und Technikraum.


Architekturzeichnungen eines Hauses: Frontansicht, Isometrie-Ansichten und Grundriss mit Straße.
 
Zuletzt aktualisiert 23.12.2025
Im Forum Grundrissplanung / Grundstücksplanung gibt es 2554 Themen mit insgesamt 88557 Beiträgen


Ähnliche Themen zu Einfamilienhaus 130-140 m² Grundriss Planung
Nr.ErgebnisBeiträge
1Entwurf Einfamilienhaus mit Garage/Carport - bitte um Bewertung 22
2Planung Grundriss / Erster Entwurf für erstes Feedback 32
3Ideen zu Entwurf für Einfamilienhaus mit Keller - Seite 547
4Vorschläge vom Architekten enttäuschend - Wie weiter? - Seite 432
5Entwurf Einfamilienhaus mit ca. 168m² Feedback 37
6Einfamilienhaus Süd-Hang Grundriss ca. 160m²- mit Keller und Garage 34
73. Grundriss-Entwurf Neubau Einfamilienhaus 220qm 2 Vollgeschosse Dachterrasse - Seite 561
8Grundriss Einfamilienhaus 240 m² mit teilüberbauter Garage - Seite 296
9Grundriss-Entwurf: Einfamilienhaus mit Keller; 560qm Grundstück - Seite 765
10Entwurf EFH, 2 Vollgeschosse, Satteldach, kein Keller, Doppelgarage - Seite 431
11Grundriss-Entwurf: Einfamilienhaus; mit Keller; 800qm Grundstück - Seite 210
12zu wenig Baunebenkosten oder ist die Kostenaufstellung okay? 16
13Vorplanung mit dem Architekten - eigener Grundriss sinnvoll? - Seite 318
14Kostenschätzung des Architekten 15
15Kostenschätzung Einfamilienhaus mit Garage 11
16Bungalow mit 140qm und Garage im Grundriss - Seite 213
17Baukosten bei Bau mit Architekten. Was sagt eure Erfahrung? - Seite 218
18Architekten finden - aber wie? - Seite 326
19Grundriss Einfamilienhaus mit Garage, eigenplanung 17
20Grundstück - Baufenster - Lage von Haus und Garage - Seite 644

Oben