ᐅ Feedback zu Grundriss Einfamilienhaus erwünscht
Erstellt am: 07.04.14 10:48
Hallo,
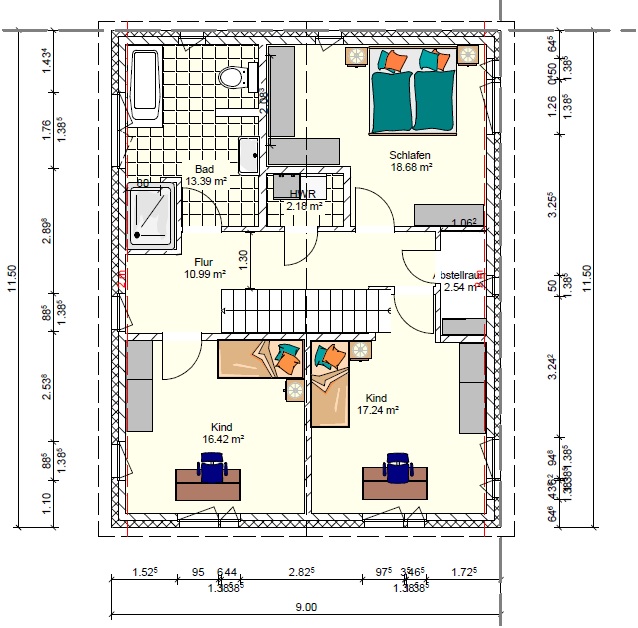
wir, 4 Personen (Alter: 36, 32, 10, 6) planen ein Einfamilienhaus mit ca. 150qm Wohnfläche und bitten um Meinungen/ Hilfe zu unserem Grundriss von Euch. Das Haus soll 9m x 11,5m groß werden, das Grundstück ist nur 17,5m breit (darum nur 9m breit), dafür aber 28m lang.
Zur Zeit wohnen wir in einem gemietetem Reihenhaus mit offenem Grundriss (Küche, Essen, Wohnen sind ein großer Raum) und Treppe abgehend vom Wohnzimmer. Das nervt! Man überlegt sich dreimal, ob man Abends nach dem Essen den Geschirrspüler anschaltet oder nicht, die offene Treppe ist auch ein Graus - die Kinder können nicht schlafen wenn Besuch da ist usw. Wir hätten das alles gern getrennt.
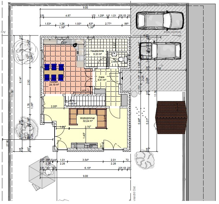
Unser geplante Grundriss hat nun eine Küche mit Esstisch, das Wohnzimmer ist ein eigenständiges Zimmer. Wir haben uns bewusst für die 2 Eingänge ins Wohnzimmer entschieden, auch um später bei Bedarf einfach mittig trennen zu können, wir benötigen auch kein "Gäste- /Abstellzimmer".
Die Terrasse kommt direkt vor das Wohnzimmer (Süd/West), ist nur nicht eingezeichnet.
Die Treppe wird eine Betontreppe (wir haben im Moment Holz - das Geknartze und Geknarre geht gar nicht), darunter eine kleine Speisekammer.
OG: Kniestock / Drempel (wie auch immer das heißt) ist auf 2m erhöht, Dach ist ein Satteldach. Es gibt einen kleinen Hauswirtschaftsraum für Waschmaschine und Trockner, außerdem ein weiterer kleiner Hauswirtschaftsraum als Kellerersatz, da wir nicht glauben, das das alles in den HAR passt. Die Dusche wird evtl. noch nach oben gerückt, um den Flur zu begradigen.
Die Fenster im OG sind noch nicht ganz final, da fehlen noch die Ideen.
Danke schon mal für Eure Anregungen und Meinungen...immer her damit.

wir, 4 Personen (Alter: 36, 32, 10, 6) planen ein Einfamilienhaus mit ca. 150qm Wohnfläche und bitten um Meinungen/ Hilfe zu unserem Grundriss von Euch. Das Haus soll 9m x 11,5m groß werden, das Grundstück ist nur 17,5m breit (darum nur 9m breit), dafür aber 28m lang.
Zur Zeit wohnen wir in einem gemietetem Reihenhaus mit offenem Grundriss (Küche, Essen, Wohnen sind ein großer Raum) und Treppe abgehend vom Wohnzimmer. Das nervt! Man überlegt sich dreimal, ob man Abends nach dem Essen den Geschirrspüler anschaltet oder nicht, die offene Treppe ist auch ein Graus - die Kinder können nicht schlafen wenn Besuch da ist usw. Wir hätten das alles gern getrennt.
Unser geplante Grundriss hat nun eine Küche mit Esstisch, das Wohnzimmer ist ein eigenständiges Zimmer. Wir haben uns bewusst für die 2 Eingänge ins Wohnzimmer entschieden, auch um später bei Bedarf einfach mittig trennen zu können, wir benötigen auch kein "Gäste- /Abstellzimmer".
Die Terrasse kommt direkt vor das Wohnzimmer (Süd/West), ist nur nicht eingezeichnet.
Die Treppe wird eine Betontreppe (wir haben im Moment Holz - das Geknartze und Geknarre geht gar nicht), darunter eine kleine Speisekammer.
OG: Kniestock / Drempel (wie auch immer das heißt) ist auf 2m erhöht, Dach ist ein Satteldach. Es gibt einen kleinen Hauswirtschaftsraum für Waschmaschine und Trockner, außerdem ein weiterer kleiner Hauswirtschaftsraum als Kellerersatz, da wir nicht glauben, das das alles in den HAR passt. Die Dusche wird evtl. noch nach oben gerückt, um den Flur zu begradigen.
Die Fenster im OG sind noch nicht ganz final, da fehlen noch die Ideen.
Danke schon mal für Eure Anregungen und Meinungen...immer her damit.
Ich finde folgende Bereiche verschenken irgendwie unnötig Platz:
- Übergang Küche Diele (würde den Eingang weiter Richtung Küche ziehen)
- Übergang Küche Wohnzimmer (Hier sind viele Fenster und die Treppe aber mehr auch nicht, kaum Stellfläche vorhanden)
Gefühlt sind da viele Ecken eingebaut, die aber irgendwie nichts bringen.
- Übergang Küche Diele (würde den Eingang weiter Richtung Küche ziehen)
- Übergang Küche Wohnzimmer (Hier sind viele Fenster und die Treppe aber mehr auch nicht, kaum Stellfläche vorhanden)
Gefühlt sind da viele Ecken eingebaut, die aber irgendwie nichts bringen.
Mir wäre das auch alles irgendwie zu "eckig".
• Das Wohnzimmer wäre mir persönlich zu groß um gemütlich zu sein.
• Die in den Flur ragende Duschecke finde ich nicht gut und ist ja auch gar nicht zwingend erforderlich.
• Der Hauswirtschaftsraum im OG ist zwar gut, aber eng um noch Wäsche für 4 Personen zu sammeln und sortieren.
• Die Tür von Kind rechts sollte Richtung Zimmer geschoben werden, der schlauchige Zugang neben der Treppe gefällt mir nicht.
Schaut euch mal das Schöner Wohnen Haus an. Das ist im Grundriss ähnlich aber viel schlichter. Vielleicht sind da ja ein paar Anregungen dabei.
milkie 🙂
• Das Wohnzimmer wäre mir persönlich zu groß um gemütlich zu sein.
• Die in den Flur ragende Duschecke finde ich nicht gut und ist ja auch gar nicht zwingend erforderlich.
• Der Hauswirtschaftsraum im OG ist zwar gut, aber eng um noch Wäsche für 4 Personen zu sammeln und sortieren.
• Die Tür von Kind rechts sollte Richtung Zimmer geschoben werden, der schlauchige Zugang neben der Treppe gefällt mir nicht.
Schaut euch mal das Schöner Wohnen Haus an. Das ist im Grundriss ähnlich aber viel schlichter. Vielleicht sind da ja ein paar Anregungen dabei.
milkie 🙂
Vielen Dank für das Feedback,
Das Schöner Wohnen Haus kannte ich noch gar nicht - sind einige Anregungen dabei, insgesamt ist es mir aber zu "offen", ich möchte im Wohnzimmer auch mal die Tür zumachen können...
"- Übergang Küche Diele (würde den Eingang weiter Richtung Küche ziehen)"
Überlege ich mal - aber mehr Platz in der Küche ist doch besser als mehr Platz in der Diele, oder?
"- Übergang Küche Wohnzimmer (Hier sind viele Fenster und die Treppe aber mehr auch nicht, kaum Stellfläche vorhanden)"
Das finde ich auch, aber wir wissen nicht, was man da machen kann...?
Vielleicht sollte man den Hauswirtschaftsraum im OG noch ein wenig vergrößern, hm, aber wie? - Andererseits: im Moment haben wir einen HAR mit 1,48 qm (ernsthaft) dort stehen Waschmaschine und Trockner übereinander und die Wäsche daneben. Beim Waschen machen wir kurz die Tür auf und sortieren so die Wäsche...
"Die Tür von Kind rechts sollte Richtung Zimmer geschoben werden, der schlauchige Zugang neben der Treppe gefällt mir nicht. "
Mal drüber nachdenken...
Das Schöner Wohnen Haus kannte ich noch gar nicht - sind einige Anregungen dabei, insgesamt ist es mir aber zu "offen", ich möchte im Wohnzimmer auch mal die Tür zumachen können...
"- Übergang Küche Diele (würde den Eingang weiter Richtung Küche ziehen)"
Überlege ich mal - aber mehr Platz in der Küche ist doch besser als mehr Platz in der Diele, oder?
"- Übergang Küche Wohnzimmer (Hier sind viele Fenster und die Treppe aber mehr auch nicht, kaum Stellfläche vorhanden)"
Das finde ich auch, aber wir wissen nicht, was man da machen kann...?
Vielleicht sollte man den Hauswirtschaftsraum im OG noch ein wenig vergrößern, hm, aber wie? - Andererseits: im Moment haben wir einen HAR mit 1,48 qm (ernsthaft) dort stehen Waschmaschine und Trockner übereinander und die Wäsche daneben. Beim Waschen machen wir kurz die Tür auf und sortieren so die Wäsche...
"Die Tür von Kind rechts sollte Richtung Zimmer geschoben werden, der schlauchige Zugang neben der Treppe gefällt mir nicht. "
Mal drüber nachdenken...
Die beiden Ecken in der Fassade würde ich rausnehmen, finde ich suboptimal und kostet nur Geld.
Bitte gut überlegen, ob Du Waschmaschine und Trockner hinter der Wand zum Schlafzimmer haben willst. Eine Waschmaschine oder einen Trockner hört man ohnehin im halben Haus, aber direkt am Schlafzimmer wäre mir das zu störend.
Mir fehlt eine zweite Dusche. Wir haben auch nur eine im Haus und ich habe schon Bedenken, wenn die Kinder älter werden. vielleicht zumindest einmal theoretisch einplanen. Aber bitte kein Gäste-Dusch-Klo.
Gebt der Diele mehr Platz, die ist Hauptverkehrsbereich bei Euch. Insgesamt gebt Ihr den Zimmern zu viel Platz und spart m.E. an Stauraum, Hauswirtschaftsraum und Technik.
Bitte gut überlegen, ob Du Waschmaschine und Trockner hinter der Wand zum Schlafzimmer haben willst. Eine Waschmaschine oder einen Trockner hört man ohnehin im halben Haus, aber direkt am Schlafzimmer wäre mir das zu störend.
Mir fehlt eine zweite Dusche. Wir haben auch nur eine im Haus und ich habe schon Bedenken, wenn die Kinder älter werden. vielleicht zumindest einmal theoretisch einplanen. Aber bitte kein Gäste-Dusch-Klo.
Gebt der Diele mehr Platz, die ist Hauptverkehrsbereich bei Euch. Insgesamt gebt Ihr den Zimmern zu viel Platz und spart m.E. an Stauraum, Hauswirtschaftsraum und Technik.
Ähnliche Themen