Eigener Grundrissentwurf Stadtvilla 180qm mit Doppelgarage Feedback

4,60 Stern(e) 7 Votes
Zuletzt aktualisiert 05.10.2025
Sie befinden sich auf der Seite 11 der Diskussion zum Thema: Eigener Grundrissentwurf Stadtvilla 180qm mit Doppelgarage Feedback
>> Zum 1. Beitrag <<

11ant

11ant

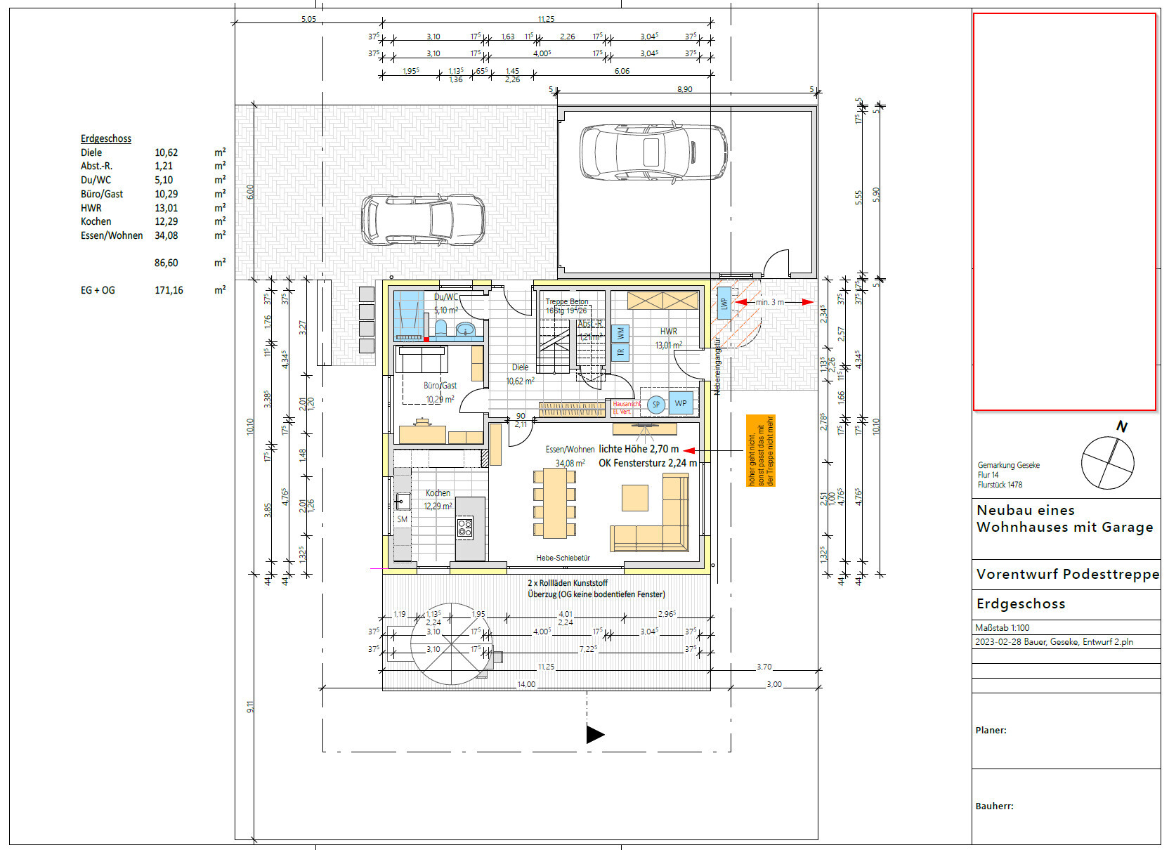
Nebeneingangstür im Hauswirtschaftsraum wird umgesetzt - danke dafür.
Das freut mich immer, wenn Vorschläge für Vorteile gegen wenig Mehrpreis wahrgenommen werden. Ähnlich ist es übrigens auch hier:
Mit der Faltschiebe werde ich nicht so richtig warm. Da sind zig Gelenke dran und gleiten muss das Konstrukt ja auch noch. Vom Preis her vermutlich kaum ein Unterschied zur Hebeschiebetür? Großer Vorteil natürlich, dass sich die Faltschiebetür fast komplett öffnen lässt. Das sieht schon richtig gut aus, keine Frage. Aber wie oft macht man das?
Im räumlichen Vorstellungsvermögen mag die Faltschiebetür das komplexere Produkt sein, technisch sind sie annähernd gleichwertig. Faltschiebe kann ich mir notfalls auch in PVC vorstellen, Hebeschiebe klassifiziere ich stets als Streßelement und empfehle erbarmungslos Aluminium. Hebeschiebe wollen Alle haben, weil sich das in den 70ern nur reiche Leute gönnten, das ist ein Modeding. In der Praxis kommt es auf den Alltagsdurchgang in rund einem Meter lichter Breite an, der aufgeschlagen bequemer hergestellt ist als mit dem Gezerre an einem Trumm. Oft sehe ich die Faltschiebe sogar mit nach außen öffnendem Schlagflügel vor.
 
D

dimba234

Lässt sich hier vielleicht die Podesttreppe noch 50cm nach rechts verschieben?
Das Verschieben der Treppe ist eine gute Idee, aber ich habe das Gefühl, das zerschießt uns den ganzen Grundriss - insbesondere oben haut es nicht mehr so richtig hin (Platz für Badewanne, Kinderzimmer Tür...).

Eine Überlegung wäre, die Treppe unten im Eingangsbereich offen zu lassen. So hätte man zumindest darunter Platz für Schuhe. Aber ich befürchte das sieht nicht aus. Ansonsten ist der Flur breit genug. Dann steht da eben eine Garderobe an der Wand zwischen Gäste-Wc und Büro. Nicht perfekt, aber genauso schaut es aktuell bei ins in der Wohnung aus.

Die 2 Stufen über der Tür ist das ernst gemeint. Sieht mMn sch...e aus.
Diese kleine Schräge stört uns nicht, siehe Schnittdarstellung.

In der Praxis kommt es auf den Alltagsdurchgang in rund einem Meter lichter Breite an, der aufgeschlagen bequemer hergestellt ist als mit dem Gezerre an einem Trumm. Oft sehe ich die Faltschiebe sogar mit nach außen öffnendem Schlagflügel vor.
Ich frage nach der Faltschiebe an und höre mir auch die Meinung der Architektin dazu an. Vielleicht werde ich doch noch überzeugt.

Ersteinmal ist der Grundriss mit Hebeschiebetür ist angepasst. Jetzt bietet es sich auch an, sofa und Fernseher / Lowboard zu tauschen. So lässt es sich gemütlich vom Sofa aus in den Garten blicken.
Querschnitt eines zweigeschossigen Einfamilienhauses mit Garage links, Treppe, Wohn- und Schlafbereich.

Grundriss eines Wohnhauses mit Garage, Küche, Essen/Wohnen, Büro/Gast
 
Zuletzt aktualisiert 05.10.2025
Im Forum Grundrissplanung / Grundstücksplanung gibt es 2510 Themen mit insgesamt 87154 Beiträgen


Ähnliche Themen zu Eigener Grundrissentwurf Stadtvilla 180qm mit Doppelgarage Feedback
Nr.ErgebnisBeiträge
1Unser Grundriss-Entwurf für ein günstiges Haus - Seite 45348
2Grundriss/Grundrissideen Einfamilienhaus 180m², 3 Kinderzimmer - Seite 446
3Frage zu Grundriss, insbesondere Treppe 13
4Treppe Grundriss Planung, Auftritt und Unterzug - Seite 221
5Treppe im Flur, Grundriss steht eigentlich schon :o( 20
6Grundriss Herrenhaus mit Satteldach 170 m² Wohnfläche - Seite 245
7Grundriss Einfamilienhaus Stadtvilla ca. 240m² ohne Keller - Seite 10132
8Grundriss Haus, Verbesserungen / Vorschläge 1,5 geschossig - Seite 322
9Grundriss für 200qm Stadtvilla - Wünsche umsetzbar? - Seite 1598
10Grundriss Stadtvilla 155qm - eure Meinung ist gefragt - Seite 247
11Wie findet ihr unseren Grundriss??? 21
12Türen in unserem EG nötig? Grundriss angehängt - Seite 436
13Grundriss ca. 170 m² Einfamilienhaus, ohne Keller mit Carport - Seite 889
14Stadtvilla Grundriss 185m² - Bitte um Feedback! 155
15Grundriss Stadtvilla 160 qm, ohne Keller - Eure Meinungen dazu? - Seite 6167
16Grundriss Stadtvilla 11.00x11.00m - Seite 219
17Grundrissfrage, Garage, Treppe 33
18Gestaltung Grundriss. Was sind eure Meinungen / Vorschläge? 15
19Meinungen zum Grundriss EG 10
20Grundriss Einfamilienhaus, 2 Vollgeschosse ca. 180qm, 600qm Grundstück - Seite 856

Oben