
Tolentino
Hatte ich überlegt, aber bin bislang an Ideenlosigkeit gescheitert. Die Trennung von Wohnzimmer und Küche lässt in meinen Augen alles noch kleiner und enger erscheinen. Ich würde eine Wohnküche bevorzugen, aber werde mal mit der Idee spielen.Wie sieht es aus Eingang Giebelseitig
Kleineres Wohnzimmer Richtung Straße und Essküche Richtung Terrasse.
Na, so ist es ja jetzt, aber mit dem blöden Schnitt vom Schlafzimmer. Oder was würdest du da ändern?OG Bad 3 kleinere Zimmer die als Arbeitszimmer oder Kinderzimmer genutzt werden können
Du meinst innerhalb des Hauswirtschaftsraum? oder ganz woanders?Evtl WA/Trockner hinter einer Türe wie es in den USA öfter zu finden ist.
Das wird eine herbe Enttäuschung für den Großen bedeuten, er wollte immer ins Dach...DG Eltern mit eigenem Bad und Abstellraum
Du meinst bestimmt die Tiefe der Diele oder könnte man auch noch an die Breite ran? Das wäre ja möglich, aber wird die Diele dann nicht zu schmal?Mehr wird der Platz auch nicht. Nur im Moment ist Toter Raum im Bereich Essen/Kochen und „relativ“ große Diele
Den Leerraum in der Wohnküche habe ich auch schon bemängelt, aber andererseits öffnet das ja den Raum noch eher. Man könnte höchstens die Wand weiter ziehen und die Öffnung weiter nach unten. Muss ich mal probieren.
Das hatte ich auch ursprünglich überlegt. Andererseits gibt es genügend Beispiele von Kindern, die mit Mitte/Ende 20 immer noch nicht ausgezogen sind. Und dann?Ich würde nicht mit 3 Kinderzimmer + Arbeitszimmer planen. Es geht jetzt auch ohne und zwischen dem Großen und dem 3. wenn es das gibt liegen mehr als 10 Jahre. Wie lange leben 3 Kinder in dem Haus
Getrenntes AZ ist aus diversen Gründen (die ich hier nicht erläutern werde) ein Muss. Notfalls noch 1 m² kleiner.
[
Keine Ahnung, müsste ich fragen, wahrscheinlich nicht kostenneutral.Kann ein Windfang vorgesetzt werden?
Hanse Haus hat bei einem Musterhaus in Oberleichtersbach einen Windfang vorgesetzt. Der hat richtig Stauraum gebracht.
Danke schon mal für die Anregungen!
Nein, deine Empfehlung nehme ich dankend zur Kenntnis. Ich seh nur gerade keine leistbare Alternative vom Himmel fallen.Habt Ihr schon unterschrieben? Wenn nicht, ich würd's nicht tun. Das Haus ist zu klein für 5 Personen.
Ich hatte ja erwähnt, dass wir in Berlin wohnen. Das ist noch nicht so schlimm wie München, aber auf dem besten Wege dahin...
- 38-45°, steht noch nicht final fest.Wie ist die Dachneigung?
Kniestock im DG ist 0?
Kennst Du die exakte Geschosshöhe? (nicht Raumhöhe!)
- Ich hatte rechnerisch 25 cm genommen. Genau weiß ich es nicht.
- Nein, Raumhöhe soll 2,5m im Max sein.
Ja, alles was du genannt hast, muss wohl rein.Zähl mal genau auf, was an Technik alles ins Haus muss. Wo soll die sein? Wasserboiler bei 5 Personen - wo steht der? Heizung, Stromkasten, Wasseranschluss - Du willst da jetzt nicht wirklich auch noch die Waschmaschine rein quetschen? Wo steht denn die dreckige Wäsche? Das ist absurd.
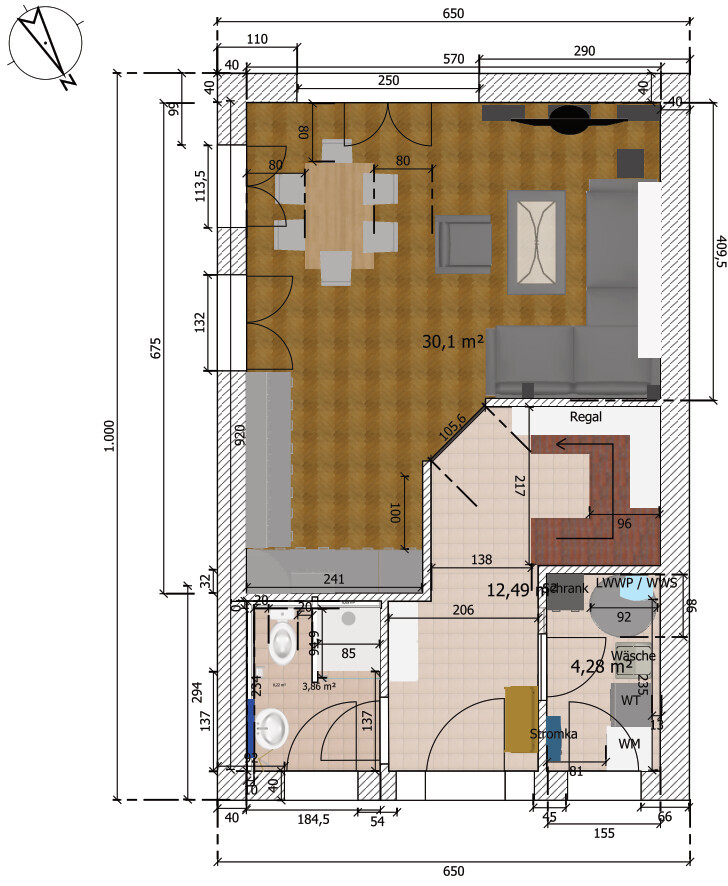
Ich kann auf Deinen Bilder nichts erkennen. Weiß auf weiß - mach die doch mal farbig.
Ich habe jetzt mal alles reingepackt und farblich abgesetzt. Es passt alles rein. Wenn es natürlich irgendwelche Sicherheitsabstände gibt, die gesetzlich vorgeschrieben sind, muss man schauen.
Wie groß ist ein Wasseranschluss?
Ach so, der BT-Typ hat gemeint Hauswirtschaftsraum und Gäste-Duschbad zu tauschen könnte noch was bringen. Wie seht ihr das? Ich glaube ja nicht wirklich, da das ja noch kleiner ist...
Danke und Gruß
Tolentino