Doppelhaushälfte Möglichkeitsabschätzung Ideen Hinweise

4,10 Stern(e) 18 Votes
Zuletzt aktualisiert 19.12.2025
Sie befinden sich auf der Seite 2 der Diskussion zum Thema: Doppelhaushälfte Möglichkeitsabschätzung Ideen Hinweise
>> Zum 1. Beitrag <<

kaho674

kaho674

Ist die Treppe frei planbar?
Sind das Gauben unter der Schräge im DG?
Eventuell Gastherme mit Durchlauferhitzer möglich?

5 Leute auf dieser Fläche - ich würde es nicht tun. Wo steht die Waschmaschine?
 
Tolentino

Tolentino

Bei 80 cm heißt es immer noch das nur sehr schlanke sich durchquetschen können.
Das sind dann immer noch 2,5 m bei 5, irgendwas m Innenmaß

Probiere es mit Karopapier und Lineal. Du musst nicht Tisch mit 8 Stühlen malen da reicht auch ein Rechteck von 3x2,5 m usw.

Keller geht wirklich nicht? Bei 5 Personen und dieser kleinen Grundfläche wäre es kein Luxus. Eure Haustechnik und Hauswirtschaft ist so groß wie bei uns nur die Wäsche. Und das ist der Raum wo ich sage etwas mehr wäre gut
Wie gesagt, ich benutze Sweethome3D, da kann ich alle Maße cm-genau eingeben, es sei denn, du sagst, das Programm lügt.
Ich kann sogar virtuell durch den Bereich latschen und sehe, dass es sehr eng ist, aber geht.

Keller ist nicht drin. Finanziell nicht und vom Bauträger auch nicht geplant.
Wenn jetzt beide Doppelhaushälfte Käufer sich darauf einigen würden evtl, aber wie gesagt, das geht finanziell bei uns nicht.

Ist die Treppe frei planbar?
Sind das Gauben unter der Schräge im DG?
Eventuell Gastherme mit Durchlauferhitzer möglich?

5 Leute auf dieser Fläche - ich würde es nicht tun. Wo steht die Waschmaschine?
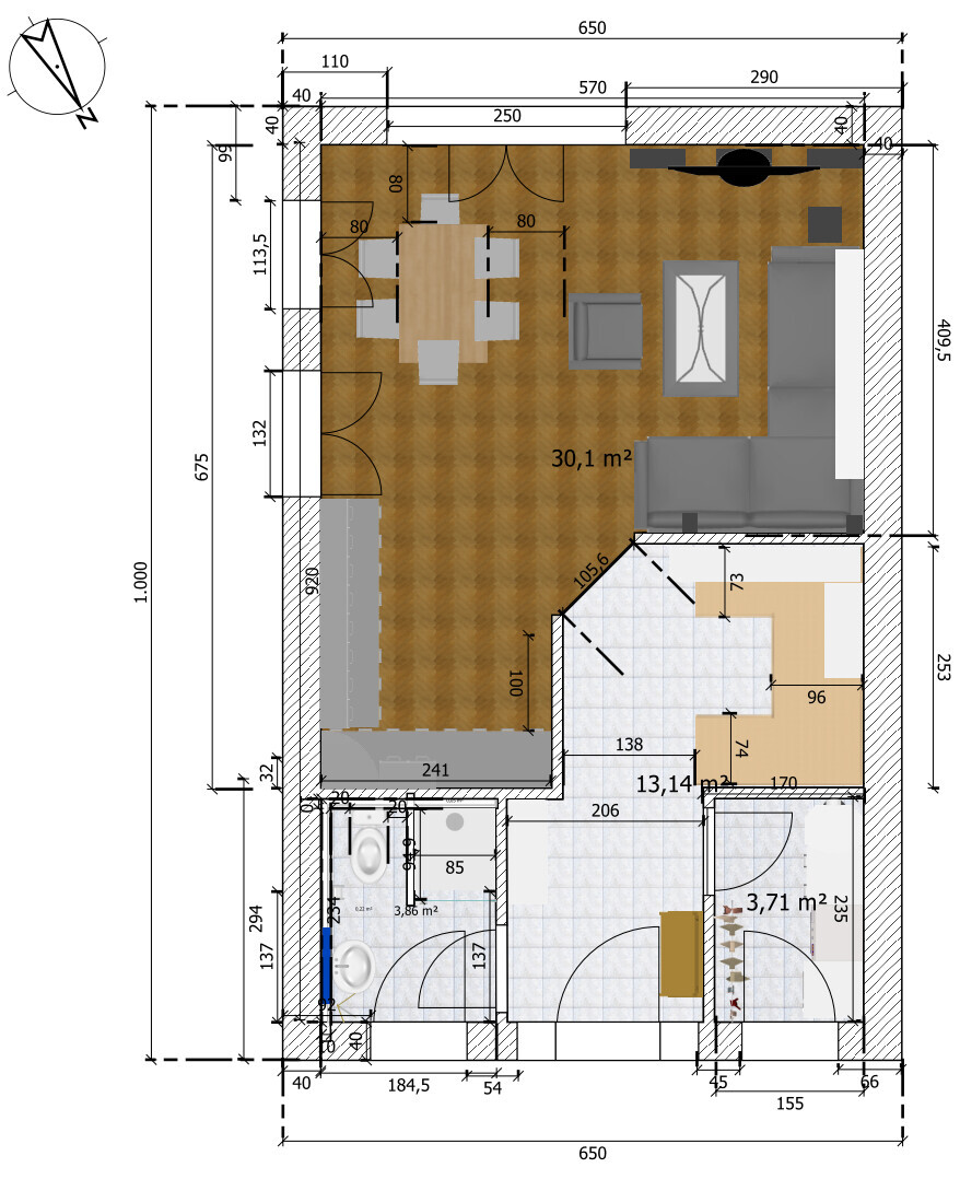
Treppe sollte frei planbar sein. Also eigentlich sogar alles was innerhalb der Außenmauern ist.
Hatte auch kurz überlegt, es mit einem giebelseitigen Eingang zu probieren, kam da aber sehr schnell nicht weiter, weil das Haus innen nur 5,7m Breite hat.
Nein, es sind Dachfenster, kann ich nur im Sweethome3D nicht anders einzeichnen.
Gastherme wäre möglich, aber dann muss ja wg. Energieeinsparverordnung eine Solarthermie mit Wassertank rein und wo soll der dann hin? Ist das dann trotzdem platzsparender?

Ich habe jetzt mal die Gehmaße und im Hauswirtschaftsraum Waschmaschine und Trockner eingezeichnet.

Grundriss eines Wohn- und Essbereichs mit Küche, Sofa, Esstisch, Bad und Maßen.
 
Tolentino

Tolentino

Wollt ihr wirklich jedes Mal ins Bett krabbeln?
Nein, deswegen schrieb ich ja, dass mir das nicht am derzeitigen Entwurf gefällt. Bin für jede Anregung dankbar, wir wir das anders machen können, ohne dass die Schlafzimmer zu klein werden oder ein Zimmer ganz wegfällt.

Ach so, zur Not würde ich das aber akzeptieren, das Bett wäre ja über zwei Meter insofern hätten wir da genug Platz zum Krabbeln.

Viel Glück

Tolentino
 
Y

ypg

Deine Sorge ist berechtigt.
Ich kann sogar virtuell durch den Bereich latschen und sehe, dass es sehr eng ist, aber geht.
Virtuell und digital geht vieles, was real zwar nicht unmöglich, aber dennoch einfach nur vermeidbar sein sollte.
Schmales Schlafzimmer, sehr kleiner Hauswirtschaftsraum (muss lt. BU min. 5 m² haben), ein Zimmer mit vielen Ecken im DG
Preisschätzung lt Architekt/Planer:
Du sagst es ja selbst: Deine Idee ist nicht umsetzbar, wenn der TK-Raum mind. 5 qm haben muss.
Was gefällt besonders? Warum?
6 Zimmer untergebracht, Extra Duschbad untergebracht, ein bisschen Stauraum hingekriegt
Duschbad dort, wo man es nicht braucht, Ehebett fast nicht „begehbar“, Schlafzimmer-Schnitt blöd, recht beengter Allraum, kein Stauraum, zu kleiner TK-Raum, Wäschewaschen wo?, ....
Größe des Grundstücks; 327 m²
Hang: nein
Grundflächenzahl: 0,2
Geschossflächenzahl: 0,3
Die Daten irritieren mich etwas, vor allem die Geschossflächenzahl, das sollte aber nicht Dein Problem sein.
Ist: 2 Erwachsene, ein Kind (8), zweit weitere Kinder geplant
Ich kann mir vorstellen, dass das DH für 2-3 Menschen ausreichend ist, aber ich sehe dort nicht mehr Familienmitglieder.
Dass jeder sein Zimmer hat, um seine persönlichen Bedürfnisse zu schützen und auszuleben, wäre gewährleistet, also Rückzugsort wäre da, ist aber nicht alles. Schon der Allraum mag mit 5 Personen überfüllt sein, bei Küchenlärm und einem trotzigen Kind dabei oder laufendem TV, also bei einem normalen Alltag und Tagesgeschäft würde jeder wohl lieber Reissaus nehmen, wenn er könnte.
Wenn dann irgendwann das Duschbad mit genutzt werden muss als Ausweichmöglichkeit, kann es auf beengter oder schmaler Treppe dann auch unsicher werden.

Deshalb würde ich an Eurer Stelle von dem Haus Abstand nehmen oder aber einen entspannteren Grundriss (für weniger Personen) planen und später, wenn mal mehrNachwuchs kommt, weiter schauen nach größeren Eigenheimen. Das Haus kann eine gute Starter-Immobilie sein, wenn man gleich für einen guten Entwurf und zeitgemäße Ausstattung sorgt.
 
Y

ypg

Was muss denn an Technik in den Hauswirtschaftsraum? Habt Ihr Fernwärme oder so?
Zu den Abstellräumen im DG: wenn überhaupt, dann den Drempel abkoffern, aber keine Stehfläche den Zimmern wegnehmen.
 
Zuletzt aktualisiert 19.12.2025
Im Forum Grundrissplanung / Grundstücksplanung gibt es 2552 Themen mit insgesamt 88524 Beiträgen


Ähnliche Themen zu Doppelhaushälfte Möglichkeitsabschätzung Ideen Hinweise
Nr.ErgebnisBeiträge
1Idee Schlafzimmer - Bett / Schrank Anordnung 32
2 2 Vollgeschosse, Durchgang Garage, Hauswirtschaftsraum unter Treppe - Seite 225
3Ankleide/Schlafzimmer Problem - Grundrissdiskussion 25
4Entwurf - alle Richtungen bei Neubau vom Einfamilienhaus 91
5Extra-Bad vom Schlafzimmer oder doch Abstellraum? - Seite 429
6Haus-Entwurf Einfamilienhaus - Zukünftig als Zweifamilienhaus trennbar - Seite 572
7Erster Entwurf Grundriss Einfamilienhaus (ca. 200qm) - Bitte um Feedback - Seite 646
8Einfamilienhaus - Meinungen zu unserem Entwurf - Seite 11159
9Grundriss Einfamilienhaus ohne Keller/Schlafzimmer und Bad im EG - Seite 427
10Neubau Einfamilienhaus ca.220qm, 2. Entwurf Stadtvilla - Seite 259
11Grundriss-Entwurf für Haus am Hang in zweiter Reihe - Seite 320
12Einfamilienhaus-Grundriss Entwurf - Seite 223
13Grundriss-Entwurf Stadtvilla Feedback - Seite 213
14Meinungen zu unserem Grundriss Entwurf erwünscht - Seite 670
15Grundrissplanung / Entwurf Einfamilienhaus Flachdach mit Doppelgarage 87
16Grundriss Schlafzimmer, Ankleide und Bad en Suite 36
17Hauswirtschaftsraum im OG - Probleme mit Lärm? - Seite 327
18Grundriss erster Entwurf - Meinungen erwünscht - Seite 221
19Entwurf des Planers für unser Einfamilienhaus 48
20Grundriss-Entwurf Stadtvilla mit Doppelgarage - Seite 238

Oben