Doppelhaushälfte Möglichkeitsabschätzung Ideen Hinweise

4,10 Stern(e) 18 Votes
Zuletzt aktualisiert 10.01.2026
Sie befinden sich auf der Seite 9 der Diskussion zum Thema: Doppelhaushälfte Möglichkeitsabschätzung Ideen Hinweise
>> Zum 1. Beitrag <<

Y

ypg

Y

ypg

Gastherme mit Durchlauferhitzer hatten wir in unserem alten Reihenhaus. Weniger Platzbedarf geht glaub ich nicht. Wenn es auf jeden Zentimeter ankommt, ist das nicht die schlechteste Lösung. Das Ding würde sogar jetzt schon in die Abseite im Dach passen, die ich Dir in der Alternative geplant hatte.
Und wie ist das mit der Energieeinsparverordnung? Musst Du mit Solar, dann musst Du auch speichern. Unser Gerät nimmt an Tiefe so ca. 80 cm... ist 2 Meter hoch... dicht dran an die Wand darf sie auch nicht. Da muss noch Werkzeug und der Arm eines Handwerkers zwischenpassen!
 
kaho674

kaho674

Die Wandstärken an der V
Und wie ist das mit der Energieeinsparverordnung?
Ist die Gasheizung nicht mehr Energieeinsparverordnung-konform? Ich dachte, das wär nur bei Ölheizung. Sorry, da hab ich dann wohl zu viel versprochen. Unser altes Reihenhaus hatte mit der heutigen Energieeinsparverordnung natürlich nichts zu tun.

Aber die Heizung war echt klein. Vielleicht 40 tief, 60 hoch - dazu allerdings noch die ganzen Rohre unten drunter. Ab sie war bei uns in exakt so einer Abseite, wie es auch bei dem TE dann etwa wäre.
 
Y

ypg

Du brauchst regenerative Energien, und da ist natürlich das günstigste und einfachste die solaranlage.
Ggf geht Photovoltaik, aber nicht bei dem Preislimit. Da ist eben kaum etwas anderes machbar.
 
kbt09

kbt09

Ich hatte auch gleich an Goalkeeper gedacht und stelle hier noch mal meinen Entwurf von damals vor.
Bei dir lese ich Innenmaß von 570 cm .. das könnte doch breiter sein - oder? Ich denke 590-600 cm.
Die Goalkeeper-Planung habe ich mit Innemaß 640 cm gemacht und seitlichem Eingang.
Technik ins Dach, Arbeitszimmer auch und ein Gäste/Kinder/Spielzimmer, das dann auch mal fürs 3. Kind herhalten kann. Wobei die fehlenden Breiten-cm ganz schön nervend sind.

Ein zweites Vollbad mag wünschenswert sein, hatte ich aber zugunsten von ausführlichem Flur-Stauraum, auch für Kinderwagen, nicht in Erwägung gezogen.

Kannst ja mal wg. Ideen schauen.

Und dann ist immer noch die Frage offen, wie hoch kann der Kniestock im DG werden?

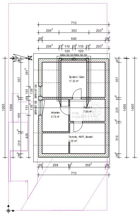
Grundriss eines Hauses mit Räumen: Spielen/Gast 17,23 m², Arbeiten 8,78 m², Technik/HWR 7,98 m².


Lageplan eines Hauses von oben: Garten, Terrasse, Einfahrt mit zwei Autos, Wohnzimmer und Küche


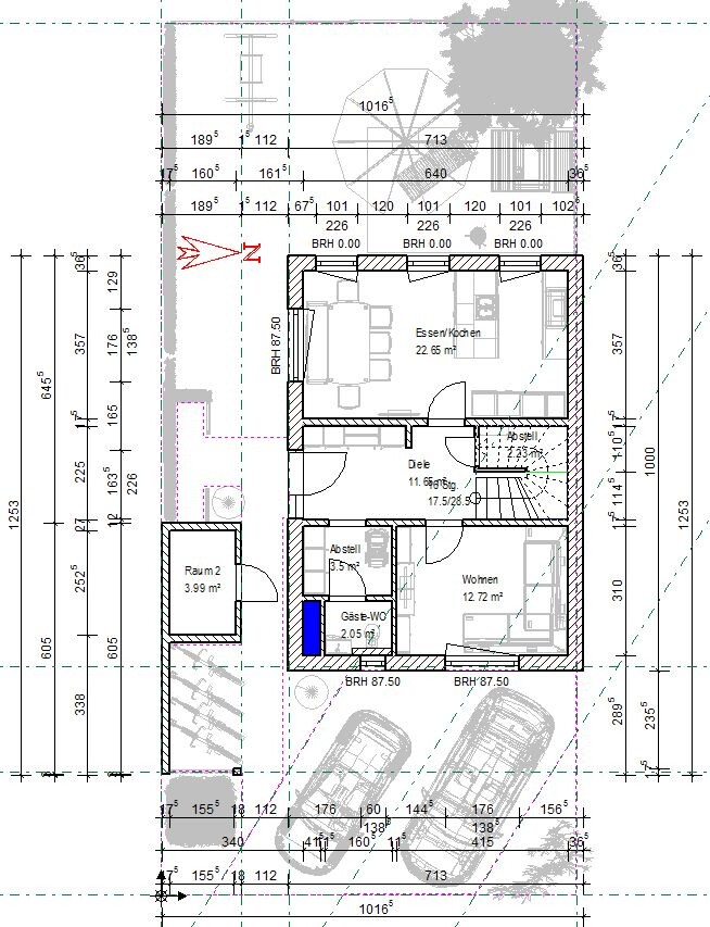
Grundriss eines Hauses: Küche/Essbereich, Wohnen, Diele, Gäste-WC, Abstellraum, Außenbereich


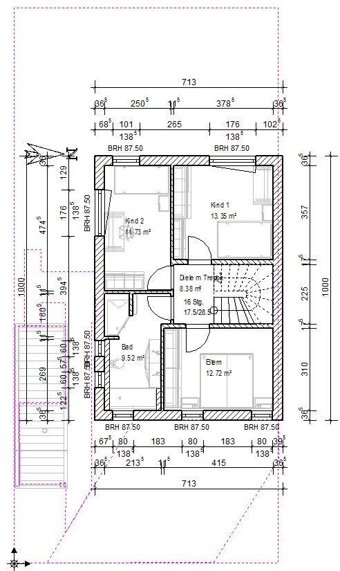
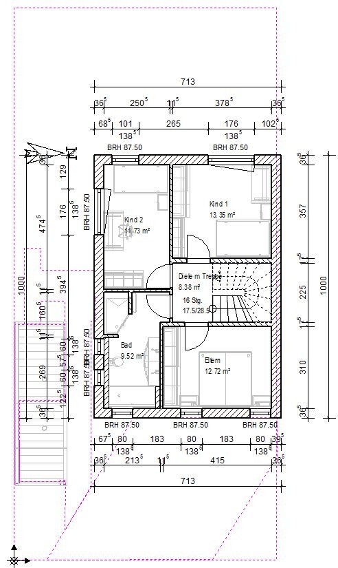
Grundriss einer Etage: Bad, Diele, Treppe, Schlafzimmer und Kinderzimmer.


Zwei Autos stehen vor einem hellen Haus mit dunklem Satteldach; Garten und Zaun vorhanden.


Weißes Mehrfamilienhaus mit Satteldach, Garten, Zaun und Spielplatz im Vordergrund.
 
Tolentino

Tolentino

Haha

Und wärst Du Gärtner, würdest Du jedem ein Gartenhäuschen zuweisen und eine Schaufel fürs große Geschäft? So funktioniert das nicht.
Nein, aber dann hätte ich wahrscheinlich das räumliche Vorstellungsvermögen

Wohnraum ist ja wohl das, was man am besten im Raum erlebt. Du kannst mM nicht Nutzräume auf den Kopf aufrechnen.
Genau und daher schlage ich die Brücke von dem was ich kenne Mittels Zahlen die kenne.

Ist jetzt müßig darüber zu diskutieren. Ich kenne eure Meinung. Für mich ist es noch nicht ganz raus und ich will das beste draus machen.
 
Zuletzt aktualisiert 10.01.2026
Im Forum Grundrissplanung / Grundstücksplanung gibt es 2565 Themen mit insgesamt 88793 Beiträgen


Ähnliche Themen zu Doppelhaushälfte Möglichkeitsabschätzung Ideen Hinweise
Nr.ErgebnisBeiträge
1Energieeinsparverordnung 2009 auch ohne Solar? 16
2Muss man zwingend nach Energieeinsparverordnung (2009) bauen? 12
3Wärmedämmung Energieeinsparverordnung, KFW 70 / 55 / 40 - Eure Erfahrungen - Seite 531
4KFW 70 oder nach Energieeinsparverordnung 2014 bauen 42
5Porenbeton Außenwand vs. Energieeinsparverordnung 13
6 Energieeinsparverordnung-Nachweis vs. Energieeinsparverordnung-Nachweis + KfW-70-NAchweis 13
7Neue Energieeinsparverordnung ab 2016 -> was bauen? 30
8Energieeinsparverordnung 2014 - Gastherme ohne Solar? 38
9Energieeinsparverordnung 2016 / KFW55 / Gas+Solar in 2016 28
10Einfamilienhaus Energieeinsparverordnung 2016 Bauträger empfiehlt Mehrdämmung - sinnvoll? 39
11Informationen wie Energieeinsparverordnung 2016 erreicht werden kann? 14
12Einhaltung der Energieeinsparverordnung 2016 mit folgender Heizung 14
13Bau und Leistungsbeschreibung - Vertrag noch Energieeinsparverordnung 2014 15
14Kfw-Kredit in 2017 bei einem Energieeinsparverordnung 2016 Haus 17
15Neubau nach Energieeinsparverordnung 2016 nicht mehr ohne Be/-Entlüftungsanlage? 40
16Unterschied zwischen Energieeinsparverordnung 2014 und Energieeinsparverordnung 2016 12
17Hausbau aus Beton vs Energieeinsparverordnung 2016 31
18Town & Country Außenwand bei Energieeinsparverordnung 2016 Haus ausreichend? 33
19Wie kann man die Energieeinsparverordnung umgehen und den Behördenwahnsinn vermeiden? 162
20Energieeinsparverordnung, KFW55 , KFW40 oder KFW40 Plus 19

Oben