ᐅ Bungalow Grundrissplanung - Ideen?
Erstellt am: 28.04.17 20:56
Hallo in die Runde,
nachdem ich schon eine Weile hier mitlese, möchte ich nun auch mal um Rat bitten.
Wir planen den Bau eines Bungalow. Momentan drehen wir uns beim Grundriss im Kreis.
Ich beantworte erst mal den Fragebogen
Bebauungsplan.....nicht vorhanden /Einschränkungen
Größe des Grundstücks.....1000qm
Hang.....nein
Grundflächenzahl.....0,4
Geschossflächenzahl
Baufenster, Baulinie und -grenze
Randbebauung
Anzahl Stellplatz
Geschossigkeit
Dachform
Stilrichtung
Ausrichtung
Maximale Höhen/Begrenzungen
weitere Vorgaben
Anforderungen der Bauherren
Stilrichtung, Dachform, Gebäudetyp.....Bungalow mit Walm- oder Satteldach
Keller, Geschosse
Anzahl der Personen, Alter....2 Erwachsene und zwei Kinder (8+14)
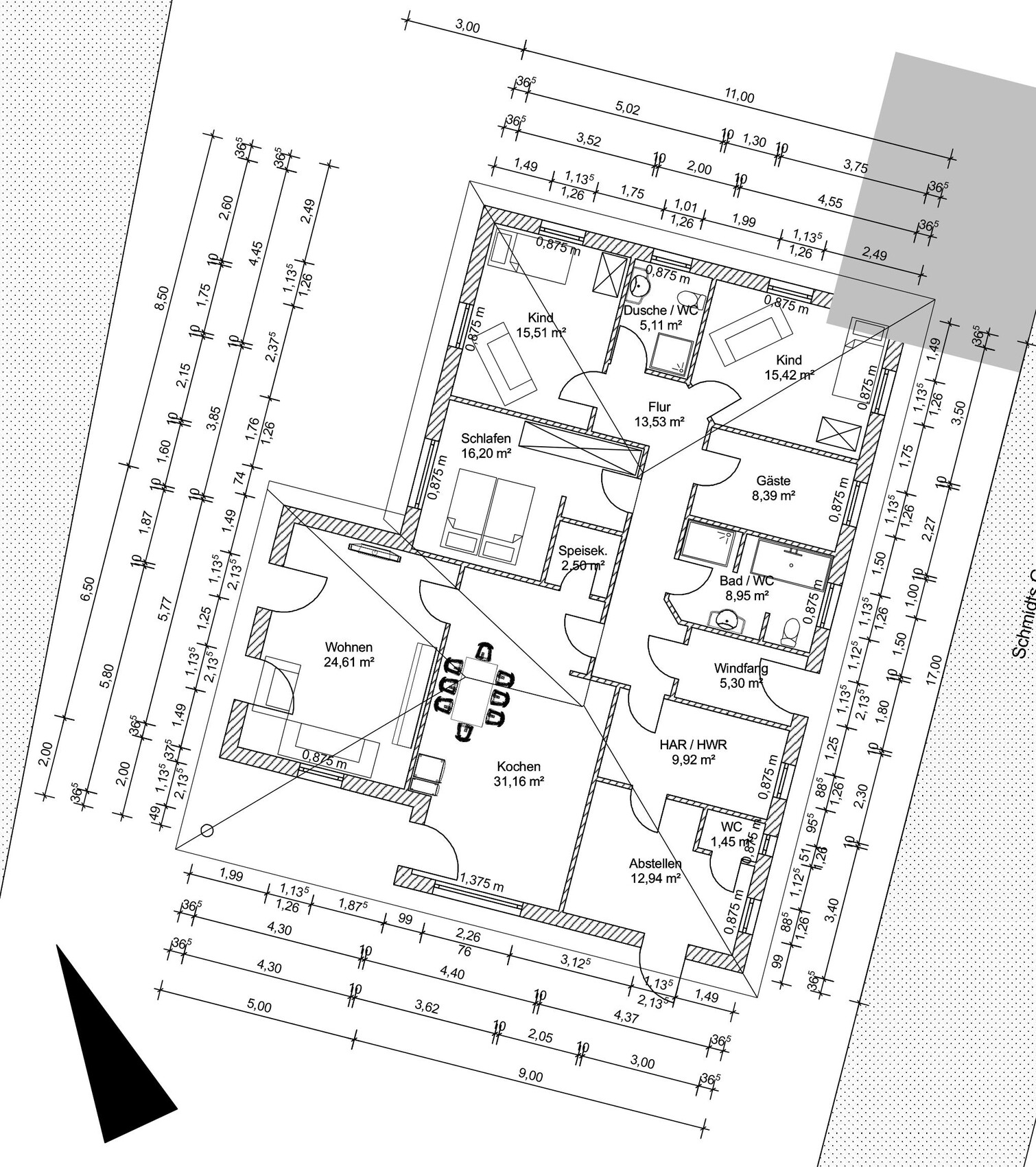
Raumbedarf im EG, OG.....siehe Grundriss
Büro: Familiennutzung oder Homeoffice?.....wird ein Allzweckraum, Gäste + Hobby + Büro
Schlafgäste pro Jahr
offene oder geschlossene Architektur.....abgeschlossene Küche mit Essbereich
konservativ oder moderne Bauweise
offene Küche, Kochinsel.....Kochinsel
Anzahl Essplätze.....6-10
Kamin.....nein
Musik/Stereowand
Balkon, Dachterrasse
Garage, Carport.....Doppelgarage
Nutzgarten, Treibhaus
weitere Wünsche/Besonderheiten/Tagesablauf, gern auch Begründungen, warum dieses oder das nicht sein soll.....Abstellraum als Kellerersatzraum
Hausentwurf
Von wem stammt die Planung:
-Planer eines Bauunternehmens
-Architekt
-Do-it-Yourself....selbst ausgetüftelt
Was gefällt besonders? Warum?.....Westterrasse mit Zugang von der Küche, Kinderzimmer mit Duschbad eine Einheit
Was gefällt nicht? Warum?.....Küche wird wohl zu dunkel, Garderobe im Windfang schlecht realisierbar, Speisekammer ohne Fenster
Preisschätzung lt Architekt/Planer:.....Bauunternehmen ca. 1300€/qm zzgl. Maler- und Bodenarbeiten und Außenanlagen
Persönliches Preislimit fürs Haus, inkl Ausstattung:
favorisierte Heiztechnik:.....Luft-Wasser-Wärmepumpe
Wenn Ihr verzichten müsst, auf welche Details/Ausbauten
-könnt Ihr verzichten:
-könnt Ihr nicht verzichten:
Warum ist der Entwurf so geworden, wie er jetzt ist? ZB
Standardentwurf vom Planer?
Entsprechende/Welche Wünsche wurden vom Architekten umgesetzt?
Ein Gemisch aus vielen Beispielen aus div. Magazinen...
Was macht ihn in Euren Augen besonders gut oder schlecht?
Zum Grundstück noch ein paar Eckdaten: die Südgrenze (Strasse) ist ca. 20m, da muss die Zufahrt zum Grundstück sein. Mittig ist das Grundstück ca. 21m und Nordgrenze ca. 23m breit, Vermessung war letzte Woche. Umgeben ist das Grundstück südlich und östlich mit einer Mauer, die anderen beiden Grenzen werden noch errichtet. In der Mauer auf der Ostseite ist eine Öffnung zur Gasse, weswegen wir uns da auch den kurzen Zutritt zum Grundstück bzw. Haus einrichten möchten.
Der Grundriss ist durch die Anzahl der Zimmer, die alle sein müssen, quasi entstanden. Allerdings habe ich bedenken, dass durch die Überdachung der Terrasse und des schmalen Fensters die Küche zu dunkel wird.
Ansonsten hätte ich gerne noch Verbesserungen im Eingangsbereich und Bad, mir schwebt eine T-Lösung eher im Kopf als diese Anordnung.
Anordnung der Kinderzimmer mit den Duschbad ist quasi gesetzt, Distanz Eltern und Terrasse .
Jemand Ideen was man ändern könnte? Ich drehe mich im Kreis. Schon einen ganzen Block Skizzen gemacht und doch komme ich immer wieder auf diese Anordnung. Es gibt keinen Bebauungsplan. Wir haben eine Bauvoranfrage gestellt, war bis jetzt Gartenland, Genehmigung erteilt nach §34.
Vielen Dank fürs Lesen, ist ja doch recht lang geworden
Yvonne
nachdem ich schon eine Weile hier mitlese, möchte ich nun auch mal um Rat bitten.
Wir planen den Bau eines Bungalow. Momentan drehen wir uns beim Grundriss im Kreis.
Ich beantworte erst mal den Fragebogen
Bebauungsplan.....nicht vorhanden /Einschränkungen
Größe des Grundstücks.....1000qm
Hang.....nein
Grundflächenzahl.....0,4
Geschossflächenzahl
Baufenster, Baulinie und -grenze
Randbebauung
Anzahl Stellplatz
Geschossigkeit
Dachform
Stilrichtung
Ausrichtung
Maximale Höhen/Begrenzungen
weitere Vorgaben
Anforderungen der Bauherren
Stilrichtung, Dachform, Gebäudetyp.....Bungalow mit Walm- oder Satteldach
Keller, Geschosse
Anzahl der Personen, Alter....2 Erwachsene und zwei Kinder (8+14)
Raumbedarf im EG, OG.....siehe Grundriss
Büro: Familiennutzung oder Homeoffice?.....wird ein Allzweckraum, Gäste + Hobby + Büro
Schlafgäste pro Jahr
offene oder geschlossene Architektur.....abgeschlossene Küche mit Essbereich
konservativ oder moderne Bauweise
offene Küche, Kochinsel.....Kochinsel
Anzahl Essplätze.....6-10
Kamin.....nein
Musik/Stereowand
Balkon, Dachterrasse
Garage, Carport.....Doppelgarage
Nutzgarten, Treibhaus
weitere Wünsche/Besonderheiten/Tagesablauf, gern auch Begründungen, warum dieses oder das nicht sein soll.....Abstellraum als Kellerersatzraum
Hausentwurf
Von wem stammt die Planung:
-Planer eines Bauunternehmens
-Architekt
-Do-it-Yourself....selbst ausgetüftelt
Was gefällt besonders? Warum?.....Westterrasse mit Zugang von der Küche, Kinderzimmer mit Duschbad eine Einheit
Was gefällt nicht? Warum?.....Küche wird wohl zu dunkel, Garderobe im Windfang schlecht realisierbar, Speisekammer ohne Fenster
Preisschätzung lt Architekt/Planer:.....Bauunternehmen ca. 1300€/qm zzgl. Maler- und Bodenarbeiten und Außenanlagen
Persönliches Preislimit fürs Haus, inkl Ausstattung:
favorisierte Heiztechnik:.....Luft-Wasser-Wärmepumpe
Wenn Ihr verzichten müsst, auf welche Details/Ausbauten
-könnt Ihr verzichten:
-könnt Ihr nicht verzichten:
Warum ist der Entwurf so geworden, wie er jetzt ist? ZB
Standardentwurf vom Planer?
Entsprechende/Welche Wünsche wurden vom Architekten umgesetzt?
Ein Gemisch aus vielen Beispielen aus div. Magazinen...
Was macht ihn in Euren Augen besonders gut oder schlecht?
Zum Grundstück noch ein paar Eckdaten: die Südgrenze (Strasse) ist ca. 20m, da muss die Zufahrt zum Grundstück sein. Mittig ist das Grundstück ca. 21m und Nordgrenze ca. 23m breit, Vermessung war letzte Woche. Umgeben ist das Grundstück südlich und östlich mit einer Mauer, die anderen beiden Grenzen werden noch errichtet. In der Mauer auf der Ostseite ist eine Öffnung zur Gasse, weswegen wir uns da auch den kurzen Zutritt zum Grundstück bzw. Haus einrichten möchten.
Der Grundriss ist durch die Anzahl der Zimmer, die alle sein müssen, quasi entstanden. Allerdings habe ich bedenken, dass durch die Überdachung der Terrasse und des schmalen Fensters die Küche zu dunkel wird.
Ansonsten hätte ich gerne noch Verbesserungen im Eingangsbereich und Bad, mir schwebt eine T-Lösung eher im Kopf als diese Anordnung.
Anordnung der Kinderzimmer mit den Duschbad ist quasi gesetzt, Distanz Eltern und Terrasse .
Jemand Ideen was man ändern könnte? Ich drehe mich im Kreis. Schon einen ganzen Block Skizzen gemacht und doch komme ich immer wieder auf diese Anordnung. Es gibt keinen Bebauungsplan. Wir haben eine Bauvoranfrage gestellt, war bis jetzt Gartenland, Genehmigung erteilt nach §34.
Vielen Dank fürs Lesen, ist ja doch recht lang geworden
Yvonne
R
RobsonMKK28.04.17 21:13Bitte JPGs und keine PDFs
R
RobsonMKK28.04.17 21:34Wie soll die Küche aussehen?
Warum Miniatur-Speis und Abstellraum?
Warum Miniatur-Speis und Abstellraum?
Denk mal anders. Stell Dir vor, das Haus hätte eine 35 Grad Dachneigung statt Deiner 30, die Dein Programm vorgibt. Dann kann man auf dem Boden oben gut laufen. Nun legst Du Küche und Abstell zusammen, machst dafür in der Mitte Platz für ne L Treppe zum Boden. Der wird Dein Keller. Die nun anders gelegte Küche hat jetzt zwei Fenster und ist heller, wo das kleine WC ist, kommt der Speisekammerraum hin, ungeheizt.
Was mir noch auffällt, das Bad mit der Wanne finde ich zu eng. Da ist null Platz für einen Schrank mit Handtüchern und so. Es gibt doch eine andere Dusche, warum da noch eine. Ein Duschbad, ein Wannenbad. Oder eben irgendwie größer.
Unter der L Treppe ist Platz für Jacken und so.
Kochen, Essen und WZ zu trennen finde ich richtig. Diese grossen Bahnhofshallen, die jetzt so in sind mit Kochzone, Esszone und TV Zone gefallen mir nicht. Karsten
Was mir noch auffällt, das Bad mit der Wanne finde ich zu eng. Da ist null Platz für einen Schrank mit Handtüchern und so. Es gibt doch eine andere Dusche, warum da noch eine. Ein Duschbad, ein Wannenbad. Oder eben irgendwie größer.
Unter der L Treppe ist Platz für Jacken und so.
Kochen, Essen und WZ zu trennen finde ich richtig. Diese grossen Bahnhofshallen, die jetzt so in sind mit Kochzone, Esszone und TV Zone gefallen mir nicht. Karsten
vielen Dank für die ersten Denkanstöße
leider muss der Abstellraum im EG bleiben, mein Mann ist selbstständig und muss immer mal Material zwischenlagern bzw. für den Endkunden was herrichten
Im Bad muss definitiv auch noch was geändert werden, zwei Duschen brauchen wir allerdings mit unseren Kindern
Ja, die Trennung Küche und Wohnzimmer ist uns sehr, sehr wichtig und bleibt
leider muss der Abstellraum im EG bleiben, mein Mann ist selbstständig und muss immer mal Material zwischenlagern bzw. für den Endkunden was herrichten
Im Bad muss definitiv auch noch was geändert werden, zwei Duschen brauchen wir allerdings mit unseren Kindern
Ja, die Trennung Küche und Wohnzimmer ist uns sehr, sehr wichtig und bleibt
Ähnliche Themen