Bungalow Grundrissplanung - Ideen?

4,80 Stern(e) 4 Votes
Zuletzt aktualisiert 26.11.2025
Sie befinden sich auf der Seite 5 der Diskussion zum Thema: Bungalow Grundrissplanung - Ideen?
>> Zum 1. Beitrag <<

Y

yvonnebo

Ich würde auch den Ess/Koch als Mittelpunkt planen, wo dann das WZ hinkommt, ergibt sich. Es muss ja nicht am Esszimmer dranhängen.
Kerstins Vorschläge sind immer wieder gut... ich habe zwar auch gestern noch skizziert, aber leider abbrechen müssen.
Ein Tipp noch: schau Dir mal die Bungalows von Danwood ab und hol Dir dort Anregungen - zB das Brave 176 hat zwei Zonierungen für Kinder und Eltern. Einen Abstellraum kann man immer irgendwie noch anbringen

Gruß, Yvonne
Ich gehe gleich mal schauen, Zonierungen hören sich sehr gut an.
 
kbt09

kbt09

Aber, dies ist die korrekt Lage?

so dass die Geschwister-Scholl-Straße eher Südwest wäre als Süd .. oder?

Die Mauer, die schon vorhanden ist, ist quasi ein V, Spitze und am Grundriss. Führt die dazu, dass ihr die Garage soweit in den Westen geplant habt? Könnt ihr die beliebig durchlöchern, abreissen oder was auch immer? Wie hoch ist sie?

Welche Abstände zu Geschwister-Scholl-Straße und Schmidts Gasse müsst ihr mit der Garage einhalten?
 
Y

yvonnebo

Aber, dies ist die korrekt Lage?

so dass die Geschwister-Scholl-Straße eher Südwest wäre als Süd .. oder?
genau, die Karte ist genordet

Die Mauer, die schon vorhanden ist, ist quasi ein V, Spitze und am Grundriss. Führt die dazu, dass ihr die Garage soweit in den Westen geplant habt? Könnt ihr die beliebig durchlöchern, abreissen oder was auch immer? Wie hoch ist sie??
Richtig, die Mauer ist an den zwei Seiten. Wir dürften sie komplett abreissen. Mein Mann möchte sie aber behalten , Natursteinsockel mit Ziegel auf 2m Höhe errichtet. Ich hätte es gerne offener und finde sie auch optisch nicht passend zu meinem Wunsch, weißes Haus mit anthrazit , aber das können wir uns ja noch überlegen ob Bungalow als Toskana Stil .

Welche Abstände zu Geschwister-Scholl-Straße und Schmidts Gasse müsst ihr mit der Garage einhalten?
Es müssen keine Abstände eingehalten werden. Fast jedes Grundstück dort hat Grenzbebauung, dürfen wir auch lt. Gemeinde.
 
Y

yvonnebo

ich hole den Beitrag mal aus der Versenkung

Der Bauantrag läuft.

Am Grundriss hat sich nicht viel verändert, ua.
weil Kochen/Essen als absoluter Mittelpunkt dann doch zu unruhig erschien, wenn Kinder Besuch bekommen
weil der Bereich Kinder/Gäste später getrennt werden soll
weil Schlafen und Bad getrennt sein soll

Dafür konnten wir uns aber bei der Gemeinde durchsetzen und die Zufahrt mit Garage kommt jetzt auf die Gassen Seite. Das WC im Abstellraum ist immer noch bloß schematisch zu sehen, Anschlüsse werden vorgesehen mehr nicht.
Nun sind wir an der Küchenplanung und werden wohl den Vorrat Raum streichen. Er sollte eh nicht für Vorräte dienen, sondern für Gelben Sack und Staubsauger, dafür werden sich andere Ecken finden. Hier ist jetzt die Frage, Küchenwand einfach durchziehen oder als Nische in der Küche lassen?


Lageplan eines Baugrundstücks mit Grenzen, umliegenden Bäumen und Straßennamen Schmidt-Gasse

Grundriss Erdgeschoss: Küche, Wohnen, Schlaf- und Gästezimmer, zwei Kinderzimmer, Bad.

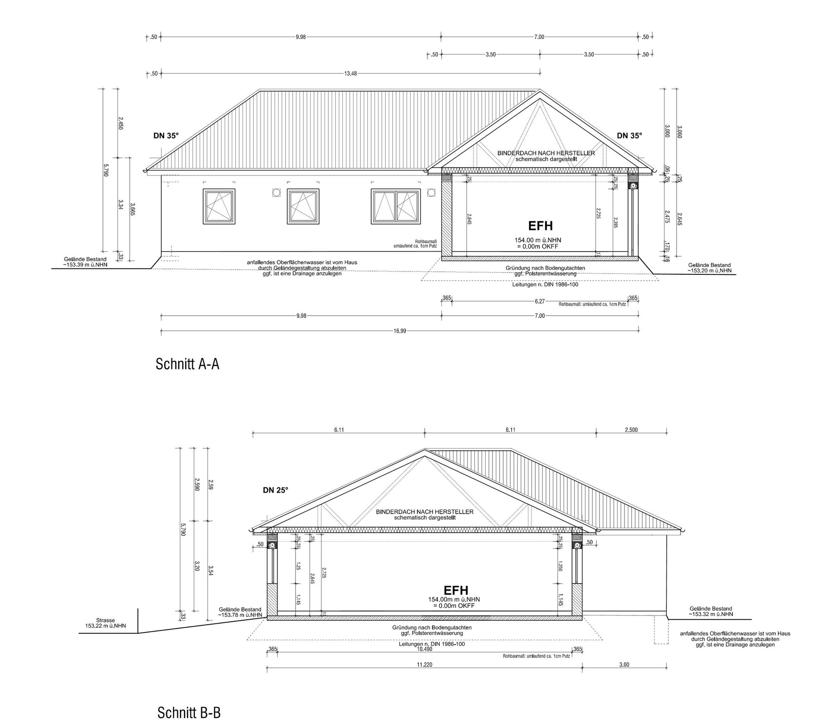
Architekturzeichnung eines EFH: Seitenansicht mit Dach und Schnitte A-A sowie B-B.

Ansicht NO und SW eines Einfamilienhauses mit Satteldach, Fensterfronten, Türen, Maßen.

Architekturzeichnung: Ansichten S0 und NW eines eingeschossigen Hauses mit Satteldach
 
11ant

11ant

ich hole den Beitrag mal aus der Versenkung
Ich erinnere mich dunkel ...

Der Bauantrag läuft.
Dazu erst mal alles Gute - das heißt aber auch, viel meckern nützt jetzt nicht mehr ...

Nun sind wir an der Küchenplanung und werden wohl den Vorrat Raum streichen. Er sollte eh nicht für Vorräte dienen, sondern für Gelben Sack und Staubsauger, dafür werden sich andere Ecken finden. Hier ist jetzt die Frage, Küchenwand einfach durchziehen oder als Nische in der Küche lassen?
Dieses Leergut-Altglas-etcetera-Abstellräumchen ist ein Verbündeter der Wohnlichkeit, den ich dort lassen würde. Auch gliedert der Wandverlauf dort gut. Ändern würde ich eher gegenüber, hinter der Wohnzimmertür, diese merkwürdige Ecke wo der Wandverlauf kurz vor der Einmündung noch mal keck von schräg auf rechtwinklig umschlenkert. Da würde ich die schräge Flucht durchziehen.

Ich bin gerade offen gesagt zu faul zurückzublättern: hatte ich schon meine Irritation darüber ausgedrückt, die Zwischenwände sämtlich in offenbar Leichtbau zu erstellen ?

In dem Punkt bin ich auch nicht sicher, ob das so schon wirklich antragsreif ist. Ich könnte mir auch vorstellen, daß eine klassische Statik mit tragenden Wänden da günstiger würde als das alles den Dachbindern abzuverlangen, auch unter dem Gesichtspunkt der Aussteifung.

Im übrigen ist Leichtbau weil mitnichten trivialer auch die falsche Hoffnung, wenn es günstiger werden soll. Selbst für Heimwerker-Eigenleistung eignet sich Porenbeton mindestens ebensogut.

Architektonisch habe ich zuweilen das Gefühl, das Schachtel-Image früherer Fertighäuser erlebe gerade bei einigen Massivbauern eine unerwartete Renaissance.
 
Y

yvonnebo

Da würde ich die schräge Flucht durchziehen.
Die Ecke machen wir auch später in der Flucht selbst zu, da kommt ein "spezieller Einbau" von meinen Mann hin.

In dem Punkt bin ich auch nicht sicher, ob das so schon wirklich antragsreif ist. Ich könnte mir auch vorstellen, daß eine klassische Statik mit tragenden Wänden da günstiger würde als das alles den Dachbindern abzuverlangen, auch unter dem Gesichtspunkt der Aussteifung.

Im übrigen ist Leichtbau weil mitnichten trivialer auch die falsche Hoffnung, wenn es günstiger werden soll. Selbst für Heimwerker-Eigenleistung eignet sich Porenbeton mindestens ebensogut.
Der GU macht die Innenwände mit Porenbeton bzw. Gipsdielenwand. Da die Statik noch nicht fertig ist, entscheidet sich noch welche Wand wie wird. Aber keine Leichtbauwände aus Gipskartonplatten.
 
Zuletzt aktualisiert 26.11.2025
Im Forum Grundrissplanung / Grundstücksplanung gibt es 2536 Themen mit insgesamt 88017 Beiträgen


Ähnliche Themen zu Bungalow Grundrissplanung - Ideen?
Nr.ErgebnisBeiträge
1Garage direkt an Einfamilienhaus. Fundament ausreichend? 20
2Erstes Angebot, 157m2 mit Keller, KFW 70, Garage 14
3Einfamilienhaus Schlüsselfertig und Garage in Eigenleistung - Seite 218
4Garage aus Kalksandstein oder Ytong - Seite 332
5Nachbar baut Garage tiefer als Bebauungsplan vorgibt 10
6Mauer hochziehen mit Türdurchbruch 12
7Garage selber bauen - Material- und Preisliste ok? - Seite 538
8Mauer aus Schalungssteinen verputzen oder streichen? - Seite 213
9Sichtschutz auf abgesackter, schiefer Mauer montieren 12
10Länge / Gefälle Einfahrt Garage / Carport 10
11Mauer auf Grundstücksgrenze - Seite 845
12Nebeneingangstür Garage / Haus, Hauswirtschaftsraum Garagenverordnung Niedersachsen - Seite 314
13Braucht man LAN Kabel in der Garage? - Seite 8107
14Streifenfundament bei kleiner Mauer überhaupt notwendig? - Seite 323
15Kostenunterschied KSK+WDVS zu Porenbeton 11
16Grundriss L-Form - Was ist eure Meinung? - Seite 10113
17Hausfinanzierung - Haus, Garage und Bodenplatte ca. 290.000 EUR 11
18Technikraum in Garage einbauen? Ist dies möglich? - Seite 335
19Beheizung Garage. Was ist die beste / günstigste Lösung? 10
20Wo stellen wir Haus und Garage hin? 10

Oben