Bungalow Grundrissplanung - Ideen?

4,80 Stern(e) 4 Votes
Zuletzt aktualisiert 04.10.2025
Sie befinden sich auf der Seite 3 der Diskussion zum Thema: Bungalow Grundrissplanung - Ideen?
>> Zum 1. Beitrag <<

Y

yvonnebo

@yvonnebo Ich mach mal den Vorschlag: noch mal grundsätzlich neu zu planen.
Eventuell den Erker nach oben schieben, damit sich ein Südwest-Hof ergibt und die Zimmer von dem Licht profitieren.
Durch Planung eines Kinderbades könnte man auf einer Seite die Kinderzimmer, auf der anderen Seite Elterntrakt planen. Abstellraum in die Nähe von Gästezimmer mit Toilette, die ggf. als Verbindung, damit beide Bereich aus dieser Nutzen ziehen.
Besser strukturierte Wohnküche mit großer Südfront.
Elterntrakt könnte man dann auch gut "hinter" das Wohnzimmer setzen.

Gruß, Yvonne
Danke für die Idee.
Daran werde ich mich morgen mal versuchen. Ich denke mit einer schrägen Wand bzw. verschachteln der Räume sollte das auch alles etwas weniger nach aneinanderreihen aussehen.
 
Y

yvonnebo

Ich rede in meinen Beitrag nicht von einer 4ten Toilette!

Nein, ich bin sogar von den Grundmaßen beim L - einen Vorsprung tut im Norden nicht unbedingt Not.
Zur Erklärung: ich rede von einem ganz anderen Grundriss.
Sowas wie

verbessert in keinster Weise die Mängel an diesem Grundriss.

Letztendlich ist es aber zwecklos, sich über diesen WC-Raum Gedanken zu machen, wenn TE nicht erklärt, warum dieses oder jenes so muss.
Gewerbe, Handel... alles schön und gut. Aber warum dieser Raum? Warum diesen Abstellraum im Süden? Warum die Kinderzimmern im Norden?
Die Kinder hätten gerne ihren eigenen Bereich ganz weit weg von uns, wegen Besuchern bei uns bzw. ihnen . Dann müssen sie eben zur Nordwest/Ost Seite.

Der Abstellraum wird nicht der klassische Abstellraum (Deko, Wintersachen ect.) wie man sich das vorstellt. Sondern eben, hatte ich glaube irgendwo schon geschrieben, ein Kellerersatzraum für den Herrn des Hauses . Momentan bewohnen wir ein Reihenhaus zur Miete und er wandert im Sommer mehrmals täglich zwischen Keller und Garten (natürlich durchs Wohnzimmer ), deswegen nah am Garten/Hof mit Außentür.
 
11ant

11ant

Ich denke mit einer schrägen Wand bzw. verschachteln der Räume sollte das auch alles etwas weniger nach aneinanderreihen aussehen.
Schräge Wände nur für Effekte würde ich mir verkneifen, das muß auch nicht zwingend auflockern.

Die Kinder hätten gerne ihren eigenen Bereich ganz weit weg von uns, wegen Besuchern bei uns bzw. ihnen
Da böte sich m.E. an, den Eingang so zu legen, daß es zu den Eltern und zu den Kindern in verschiedene Richtungen abzweigt.

Momentan bewohnen wir ein Reihenhaus zur Miete
Das ist ja eine große Umstellung zum Bungalow. Auf mehreren Etagen könnt Ihr ja jetzt gut feststellen, welche Räume mehr und welche weniger gut "vertragen", daß große Wege zwischen ihnen sind.

Mir wäre ein "richtiger" Winkelbungalow auch lieber, aber dafür scheint mir das Grundstück zu schmal.
Steht nicht das ganze Flurstück zur Verfügung, sondern nur der weiße Teil wird zur Bebauung abgemarkt ?
 
kbt09

kbt09

Ich habe mal ein bisschen in meinen bisherigen "Skizzen" zu anderen Sachen gewühlt. Das alles jetzt mal nur als Anregungen, da keine Lösung wohl so 100%ig passt.
----------------
Beispiel aus einem langen Grundstück mit südlicher Einfahrt. Haus grundsätzlich Bungalow, für die Kinder allerdings eine Schlafgalerie durch ein Pultdach, Arbeiten auch in der Galerie mit Pultdach über zentralem Ess/Kochraum und Stauraum mit Pultdach über Garage. Einiges ist besser als PDF erkennbar.
Grundrisse EG und Zwischenebenen:

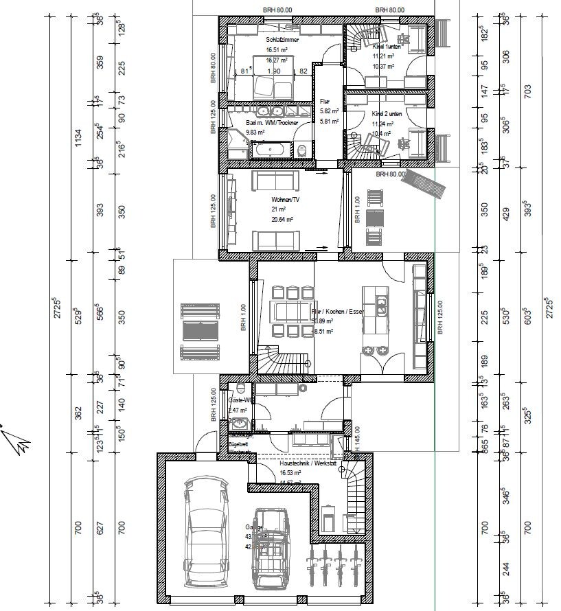
Grundriss eines zweigeschossigen Hauses mit Wohnzimmer, Küche, Schlafzimmern, Bad und Garage.

Grundriss eines mehrstöckigen Gebäudes mit Zimmern, Treppen, Maßlinien und Nordpfeil.

Grundriss EG noch mal mit Schnittansichten in den Pultdachbereichen .. sowie Ansichten als PDF anhängend.
 

Anhänge

kbt09

kbt09

Dann mal Versuche, die sich am Prinzip Schwedenbungalow orientieren, also auch Essen/Kochen im Mittelpunkt.
---------
ca. 150 qm und ca. 168 qm

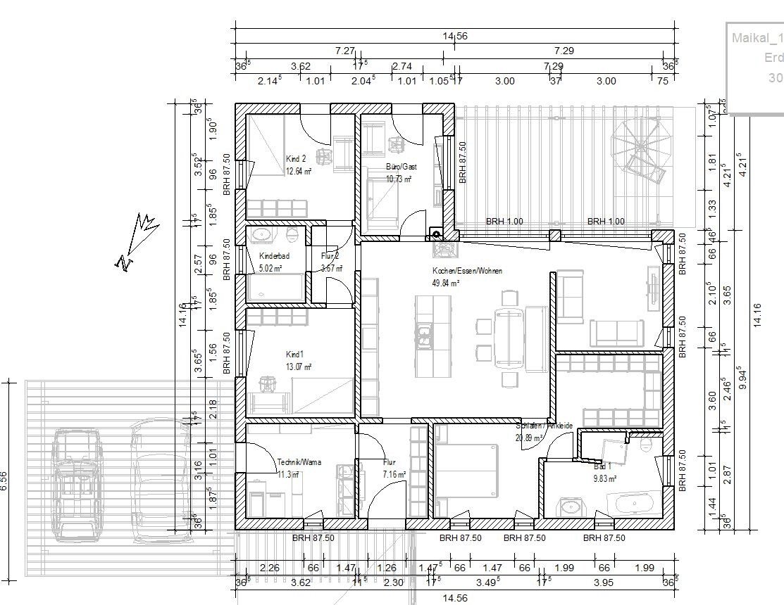
Grundriss eines Einfamilienhauses: Küche/Essen/Wohnen, Bad, Kind1, Kind2, Büro, Flur, Garage.

Grundriss eines Einfamilienhauses mit Küche, Essen/Wohnen, Schlafzimmer, Bad und Kinderzimmer.


Die kann man ja mal drehen und spiegeln ... vielleicht passen Ansätze.
 
kbt09

kbt09

Und dann noch 2 Beispiele ...
Flurvermeidung ... also Nutzung von Durchgangsbereichen, die in Zimmern wie Wohnen/Essen ja eh sein müssen als gleichzeitiges Weitergehen in andere Bereiche (ist ja auch Prinzip der Schwedenbungalows).

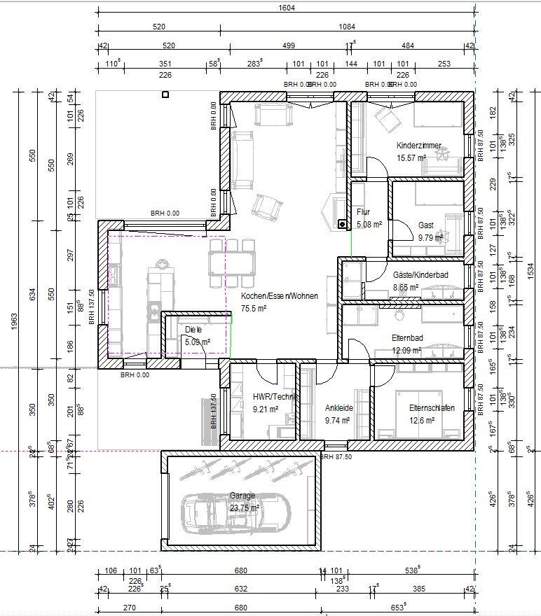
Grundriss: Küche/Wohnen, Flur, Diele, Gäste-/Kinderzimmer, Elternschlafen, Gäste-/Kinderbad, Garage


Und dann wiederum Gestaltung der Flurbereich so, dass evtl auch passende Schranknischen als Abstellfläche entstehen und somit Doppelnutzung der Flurfläche

Grundriss eines Hauses mit Küche, Essen, Wohnen, Schlafen, Bad, Flur und Technik.


Wie gesagt, nur als Anregungen zu verstehen.

Ich selber würde wohl versuchen, wirklich rund um Kochen/Essen zu gestalten
 
Zuletzt aktualisiert 04.10.2025
Im Forum Grundrissplanung / Grundstücksplanung gibt es 2509 Themen mit insgesamt 87151 Beiträgen


Ähnliche Themen zu Bungalow Grundrissplanung - Ideen?
Nr.ErgebnisBeiträge
1Grundriss Bungalow 5 Zimmer / Garten im Norden? - Seite 533
2Grundriss Bungalow auf schon genutztem Grundstück - Seite 9108
3Bungalow möglich? Was spricht gegen ein Bungalow? - Seite 324
4Bungalow mit Satteldach, Randbebauung, 8×17 Meter - Seite 16143
5Bungalow 148m² Grundstücksplanung / Grundrissplanung - Seite 25280
6Grundriss-Planung: Bungalow ~130m² - Seite 758
7Kleiner Bungalow mit 100qm Bauen - Vorstellung realistisch? - Seite 338
8L-Bungalow mit 120qm - Aufteilung etc.? - Seite 274
9130 m² Bungalow für 2 Personen - Seite 538
10Bungalow an Brandwand 32
11Aus Gewerbeobjekt wird ein Bungalow 62
12Bungalow möglich bei Gefälle von rund 20%? - Seite 212
13Ehrliche Meinung zum Bungalow-Grundriss - ca. 175qm 46
14Grundriss Bungalow Planen, ca. 120 m² - Seite 6106
15Grundriss Neubau rechteckiges Bungalow mit 130m² Wohnfläche - Seite 372
16Grundriss Bungalow 172 m2 in Brandenburg südlich von Berlin - Seite 11120
17Grundriss Planung passt? - Vom Bungalow zum 2-geschossigen Einfamilienhaus - Seite 428
18Grundriss Kleiner Bungalow - Optimierungspotential? - Seite 3106
19Kombination aus Pultdach und Flachdach 14
20Pultdach oder Satteldach? Wir müssen uns entscheiden 16

Oben