Bitte um Feedback zu Grundrissen Einfamilienhaus mit Einliegerwohnung

4,70 Stern(e) 3 Votes
O

Ozzy20

Hallo zusammen,

wir sind grade mit der Planung unseres Hauses fast fertig. Der Bauantrag soll in kürze erstellt werden. Das Haus wurde mit unsere Architektin zusammen geplant. Wir haben mehrere Varianten zusammen erstellt.

Nach längeren Überlegungen haben wir uns nun auch für die Einliegerwohnung entschieden . Im Vorfeld war dort eine Doppelgarage geplant. Dementsprechend fehlt uns natürlich jetzt auch die Menge an Stauraum. Dies ist denke ich ein Nachteil.
Die Einliegerwohnung ist in erster linie für unsere Eltern gedacht oder evtl. auch für ein älteres Paar oder ähnliches.
Die Garage ist nun für ein späteren Zeitpunkt geplant.

Wäre wirklich super wenn Ihr zu den einzelnen Grundrissen KG/EG/DG euer Feedback geben würdet.
Würde uns echt interessieren wie Ihr das Ganze betrachtet .
Welche Sachen gut oder auch schlecht sind.

Danke im voraus...

Detaillierter 2D-Grundriss eines Wohnhauses mit Flur, Zimmern, Küche und Keller.


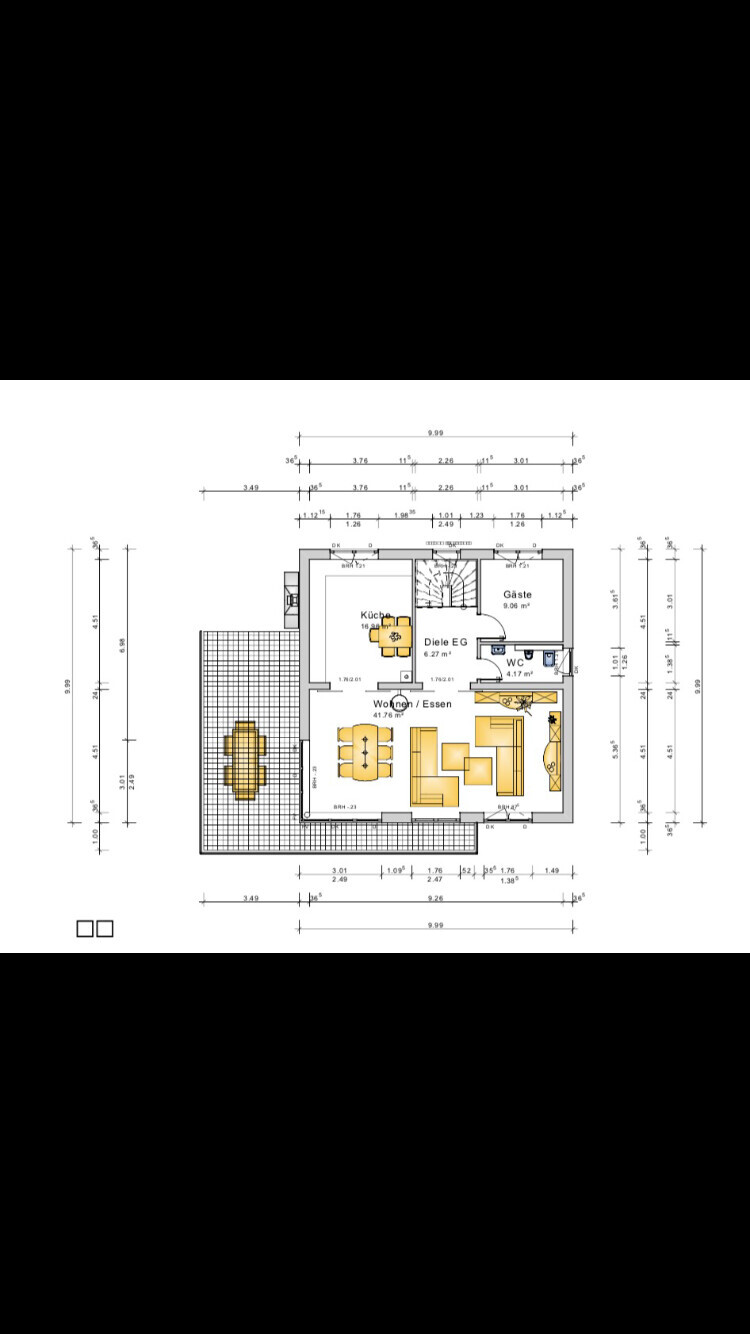
Grundriss eines Einfamilienhauses mit Terrasse, Küche, Wohnzimmer und Essbereich mit Maßen.


Zweidimensionaler Hausgrundriss mit Schlafzimmern, Bad und Diele


Frontansicht eines modernen zweigeschossigen Hauses mit Balkon, Terrasse und Auto


Moderne Haushanglage mit Terrasse, Balkon, Treppenstufen und grünem Garten.
 
Zuletzt bearbeitet:
Y

ypg

Bitte füll den angepinnten Beitrag -> Fragebogen aus und stell entsprechend auch den Lageplan ein. Vielen Dank.


Grüsse
 
Nofret

Nofret

mhh, find ich irgendwie ja immer eigenartig.. - warum sollen die Eltern eigentlich gerne und freiwillig in so einer kleinen Kellerwohnung leben wollen, wie das Hausmeisterehepaar und darüber residieren die Nachkommen?
 
O

Ozzy20

mhh, find ich irgendwie ja immer eigenartig.. - warum sollen die Eltern eigentlich gerne und freiwillig in so einer kleinen Kellerwohnung leben wollen, wie das Hausmeisterehepaar und darüber residieren die Nachkommen?
Ich finde es eher eigenartig für die Eltern kein Platz im Eigenheim zu haben und sie ins Pflegeheim zu schicken oder allein in einer 90m2 Wohnung zu lassen ,die am besten noch 100km entfernt liegt !
Es ist also eher für die spätere Zeit geplant ,das die Eltern mit einziehen ! Und vorab kann man sie vermieten an ältere Herrschaften oder alleinlebende die es gerne klein mögen !
 
O

Ozzy20

Bebauungsplan/Einschränkungen
Größe des Grundstücks
620qm

Hang
ja

Geschossigkeit
KG/EG/DG

Dachform
Flachdach mit Neigung 20 Grad

Stilrichtung
Stadtvilla

Keller
ja


Anforderungen der Bauherren

Anzahl der Personen, Alter
2 Er 2 kleine Kinder

Raumbedarf im EG, OG
jeweils ca. 75m2

Büro: Familiennutzung oder Homeoffice?
nein

offene oder geschlossene Architektur
offen

konservativ oder moderne Bauweise
modern

offene Küche, Kochinsel
nein

Kamin
ja

Balkon, Dachterrasse
ja
Garage, Carport
nein



Hausentwurf
Von wem stammt die Planung:
Architekt

-Do-it-Yourself
Was gefällt besonders? Warum?
Terrasse mit Ausblick

Was gefällt nicht? Warum?
weniger Staurraum

favorisierte Heiztechnik:
Luftwasserwärmepumpe
 
Zuletzt aktualisiert 11.12.2025
Im Forum Grundrissplanung / Grundstücksplanung gibt es 2550 Themen mit insgesamt 88439 Beiträgen


Ähnliche Themen zu Bitte um Feedback zu Grundrissen Einfamilienhaus mit Einliegerwohnung
Nr.ErgebnisBeiträge
1Grundriss für Einfamilienhaus mit 200m² mit Einliegerwohnung 75 +Keller 140m² +Garage 56m² 59
2Grundriss Einfamilienhaus mit 240m² mit Einliegerwohnung 75m² und Garage 39
3Einfamilienhaus mit 75 qm Einliegerwohnung - Seite 247
4Grundriss Einfamilienhaus Stadtvilla mit Einliegerwohnung - Was meint ihr? 17
5Neubau Stadtvilla mit Einliegerwohnung und Doppelgarage - Seite 272
6Feedback Vorentwurf Hang KG/KG/EG/DG mit Einliegerwohnung 18
7Einliegerwohnung für Eltern: 210 m² Einfamilienhaus und 80 m² Einliegerwohnung 129
8Grundriss Einfamilienhaus mit Einliegerwohnung 77
9Einfamilienhaus + Einliegerwohnung im Hang mit flexibler Nutzung 30
10Verbesserungsvorschläge Einfamilienhaus 137 qm GF mit Einliegerwohnung 68
11Einfamilienhaus Freistehend am Hang mit Einliegerwohnung 25
12Einfamilienhaus mit Einliegerwohnung für aktuell 2 Erwachsene, Kinder geplant - Seite 224
13Grundrissplanung EFH mit 4 Kinderzimmer und Einliegerwohnung 17
14Detailplanung Grundriss Einfamilienhaus mit Keller und Einliegerwohnung 28
15Holzdecke und Teilisolierung für Keller mit Garage 15
16Grundriss-Entwurf Einfamilienhaus in Hanglage, Einliegerwohnung, Doppelgarage - Seite 471
17Einfamilienhaus mit ebenerdiger Einliegerwohnung auf Hang - Seite 28297
18Grundrissentwurf Einfamilienhaus Stadtvilla mit Einliegerwohnung KFW40+ 49
19Einfamilienhaus Stadtvilla ca. 180qm + Einliegerwohnung 70qm - offene Bauweise - Seite 323
20Grundriss Einfamilienhaus mit Einliegerwohnung am Südhang oberhalb der Straße 14

Oben