Beratung: Neues Badezimmer, 5,9qm mit Badewanne

4,90 Stern(e) 7 Votes
Zuletzt aktualisiert 20.11.2025
Sie befinden sich auf der Seite 4 der Diskussion zum Thema: Beratung: Neues Badezimmer, 5,9qm mit Badewanne
>> Zum 1. Beitrag <<

A

ArniBanarni

Die Badewanne in die Nische zu stellen hat für uns folgende Nachteile:

1) Man kommt hinten nicht einfach ran. (Reinigen + Kinder aufpassen)
2) An das Fenster kommt man nicht mehr ran. (Es wird links geöffnet)

Hatte auch schon mit dem Gedanken gespielt.... man könnte dann einen einklappbaren Spritzschutz verbauen und die Nische auch als Alternative Dusche nutzen.
Leider haben wir die Idee auf der beiden oben genannten Punkte verworfen.

Meint ihr der Durchgang von 50cm in meiner Grafik oben wäre ausreichend? Bevorzugen gerade die Lösung.

Ein doppelwaschbecken ist nicht erforderlich, da es im Prinzip nur das "Gäste"bad ist.
Geplant ist oben ein Doppelwaschbecken wo sich dann auch die Kinder gleichzeitig austoben können.

Unsere neue Idee:
Eckbadewanne oben rechts und WC auf der rechten Seite, direkt beim Eingang.
Ich werde das mal eben durchrechnen.
 
A

ArniBanarni

Na klar, die Toilette kann auch in die Nische.
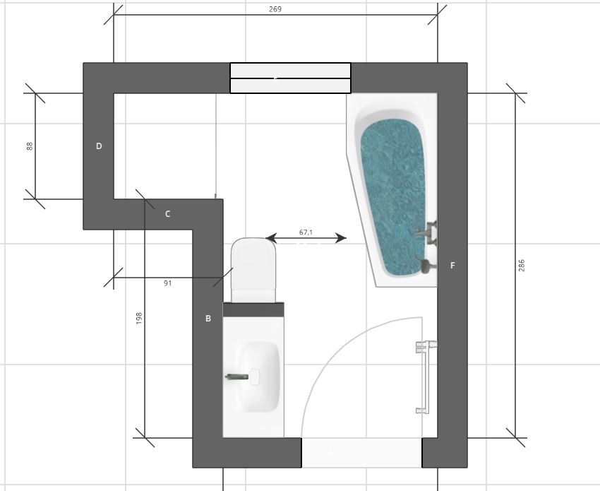
Ich habe jetzt mal alle unsere möglichen Lösungen skizziert. Im Prinzip von unten nach oben hochgezählt piorisiert.
Meine Kommentare je Lösung:

1. Wanne wirkt wie ein Sarkopharg
2. Durchgang recht eng
3. Am meisten Tageslicht und Platz. Dusche fehlt aber. Geplante Alternative: Oben rechts an Wanne wird Spritzschutz angebracht.
4. Wird nicht priorisiert, da die Wanne hinten schwer zu erreichen ist. --> Man kommt an Kinder nicht ran, Reinigung gestaltet sich schwierig und ans Fenster kommt man nicht ran
5. Man läuft direkt aufs Klo und Tür knallt dagegen
6. Man läuft direkt aufs Klo und Durchgang weiterhin eng. Ausserdem guckt man direkt auf die Wand.
7. Dusche mit 70x70cm wird im Planer nicht angezeigt. Wir haben an der Wand 69cm Platz, könnten aber diesen einen cm bestimmt noch rausholen.
8. Der Durchgang ist wie zu eng.

Die Durchgänge sind leider nur recht grob gemessen, da das Planungstool leider nicht die Funktion hergibt von konkreten Punkt A zu B zu rechnen.

Badezimmer-Grundriss: Badewanne rechts, Toilette in Mitte, Waschbecken links, Tür öffnet hinein.


Grundriss eines Badezimmers: Badewanne rechts, Toilette links, Waschbecken unten links, Tür.


Grundriss eines Badezimmers: Badewanne rechts, Waschbecken unten links, Toilette links, Türöffnung.


Grundriss eines Badezimmers: Badewanne links, Waschbecken unten links, Toilette rechts, Tür rechts.


Top-Ansicht eines Badezimmer-Grundrisses mit Waschbecken, Toilette und Badewanne.


Grundriss eines kleinen Badezimmers: Badewanne rechts, Toilette und Waschbecken links.


Grundriss eines Badezimmers mit Toilette links, Waschbecken in Mitte und Badewanne rechts.


Grundriss eines Badezimmers mit Badewanne, Waschbecken, Toilette, Tür und Maßlinien.
 
Zuletzt aktualisiert 20.11.2025
Im Forum Sanitär / Bad / WC gibt es 1375 Themen mit insgesamt 14406 Beiträgen


Ähnliche Themen zu Beratung: Neues Badezimmer, 5,9qm mit Badewanne
Nr.ErgebnisBeiträge
1Renovierung-Tipps für sehr kleines Bad mit Dusche statt Badewanne - Seite 536
2Bad Planung - Ideen für 10qm Master Bad 13
38,02m Positionierung Waschbecken / Toilette - Seite 269
4Grundriss Bad mit Dusche 11
5Bodengleiche Dusche mit Fenster in der Nähe 13
6Dusche direkt am Fenster - kompatibel oder inkompatibel? - Seite 422
7Walk-In Dusche, Spritzwasser, brauche ich eine Tür? 35
8Nachträglicher Einbau Wanne oder Dusche? 27
9Schalter für Rollläden am Fenster oder an der Tür? 38
10 2 Vollgeschosse, Durchgang Garage, Hauswirtschaftsraum unter Treppe 25
11Badplanung - Dusche und Badewanne tauschen? 24
12Badaufteilung eines 4,5qm EG-Bad mit Dusche 14
13Badplanung bei einem kleinen Bad mit Walkinn Dusche 22
14größere Dusche im Grundriss unterbringen - Welche Größe wählen? - Seite 638
15Grundrissplanung: Badezimmer Dusche 47
16OG Stadtville optimieren. Fenster Bodentief - Seite 7104
17Badplanung 14m², Neubau, quadratisch, zwei Fenster - Seite 370
18Bad-Grundriss 8,7qm, mit Dusche und Badewanne 16
19 Küchenplanung mit tiefen Fenster - Seite 643
20Walk-in Dusche, bitte um Ratschläge 27

Oben