8,02m Positionierung Waschbecken / Toilette

4,00 Stern(e) 4 Votes
Zuletzt aktualisiert 08.10.2025
Sie befinden sich auf der Seite 2 der Diskussion zum Thema: 8,02m Positionierung Waschbecken / Toilette
>> Zum 1. Beitrag <<

B

Badneuling26

Hallo, ich bin für jeden Tipp, Meinung dankbar
Wir sind zu zweit und irgendwann zu dritt
An der Position der Tür können wir aber jetzt nichts mehr ändern.
Ypg ich freue mich auf deinen Vorschlag
 
Y

ypg

Sind die 2 Meter Rohbaumaß?
Wie breit ist die Tür?
Und wo ist der Abfluss?
Hat man Euch diese Variante zugesagt?


Grüsse
 
B

Badneuling26

Guten Morgen Die 2 Meter sind Rohbaumaß, wir haben aber bereits nachgemessen und es passt. Die Tür ist 88 cm breit.

Das Abflussrohr befindet sich ganz rechts neben dem Fenster. Für die dusche nehmen wir aber das Abflussrohr aus dem Flur (gegenüber dem Raum) da wir ansonsten nicht genug Gefälle hinbekommen haben.
Diese Variante ist uns bereits zugesagt worden. Nun geht es nur um die Platzierung des Waschbeckens und der Toilette
 
Y

ypg

Wie ich schon geschrieben habe, wird der Durchgang zwischen Duschecke und Waschtisch (oder Toilette), die vor einer Vorwand hängen, ein Nadelöhr.
Ich habe schon des Öfteren 2,20 breite Bäder gesehen, aber schon verputzt und gefliest...
Man kann bei Euch ja nur spitz mit ca. 1,95 rechnen
17cm geflieste Vorwand, 48 Waschtisch, 90 die Dusche... macht zusammen 1,55... verbleiben 40 cm für den Durchgang.
Das hat auch nichts damit zu tun, ob die Tür links oder rechts kommt.
Bei Deinen Perspektiven kann man die Enge nicht erkennen.
Ihr würde die Tür zumindest nach außen aufschlagen lassen...


Grüsse
 
B

Badneuling26

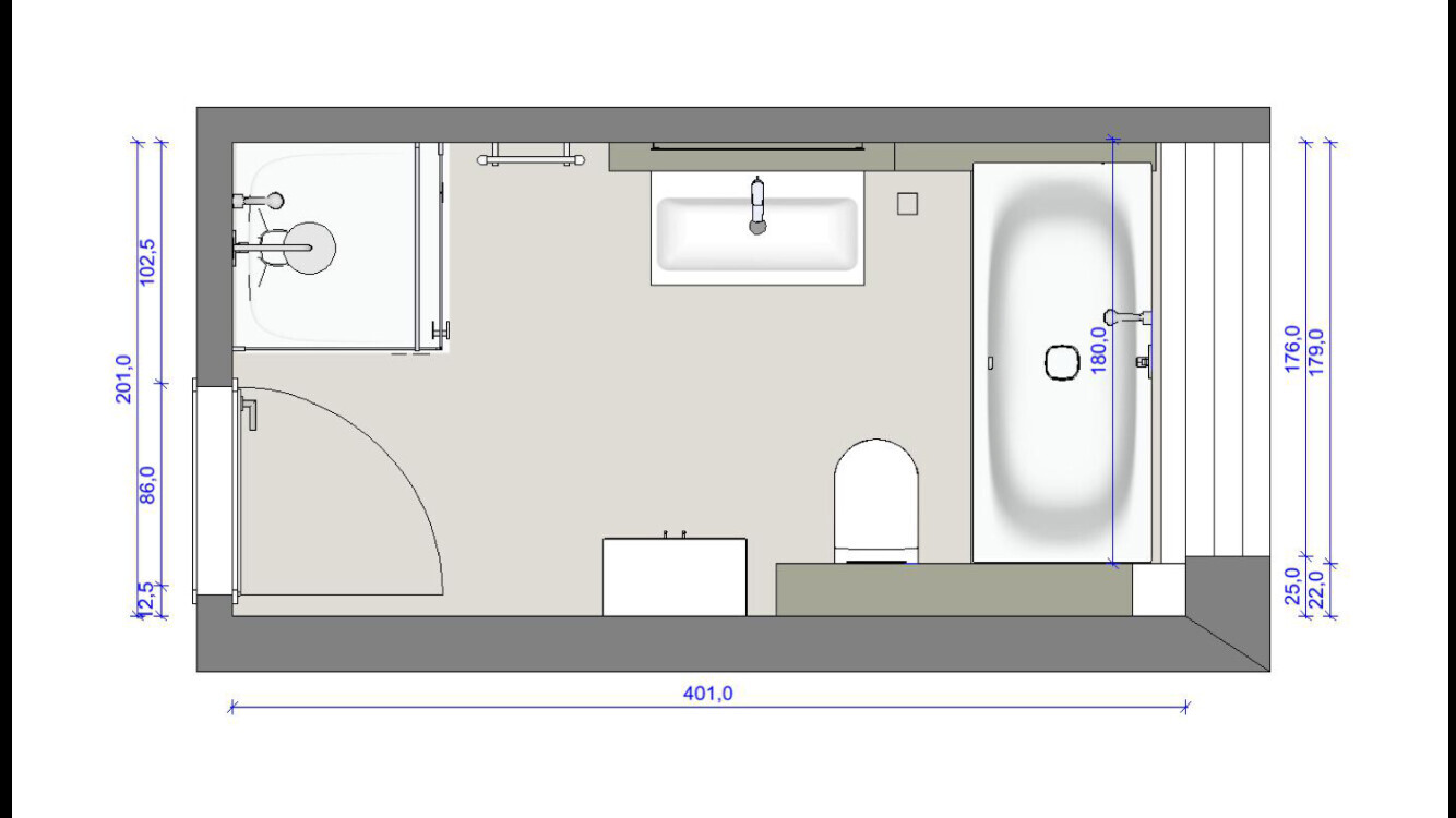
Danke @ypg
Auf Grund deines Ratschlags haben wir jetzt diese Variante, was meinst du?
Zwischen Waschtisch und wc waren 65 cm Abstand

Badezimmer-Grundriss: Dusche links, Waschbecken in der Mitte, Toilette unten rechts, Badewanne rechts.


Oberansicht eines Badezimmers: Dusche links, Waschbecken mittig, Toilette, Badewanne rechts.
 
Zuletzt aktualisiert 08.10.2025
Im Forum Sanitär / Bad / WC gibt es 1365 Themen mit insgesamt 14346 Beiträgen


Ähnliche Themen zu 8,02m Positionierung Waschbecken / Toilette
Nr.ErgebnisBeiträge
1Walk-In Dusche, Spritzwasser, brauche ich eine Tür? 35
2 2 Vollgeschosse, Durchgang Garage, Hauswirtschaftsraum unter Treppe 25
3Badplanung bei einem kleinen Bad mit Walkinn Dusche 22
4größere Dusche im Grundriss unterbringen - Welche Größe wählen? - Seite 638
5Nachträglicher Einbau Wanne oder Dusche? - Seite 327
6Bad-Grundriss 8,7qm, mit Dusche und Badewanne 16
7Renovierung-Tipps für sehr kleines Bad mit Dusche statt Badewanne - Seite 536
8Badplanung Entscheidungshilfe 18
9Anschlagrichtung und Position Tür im Bad OG 14
10Offene Dusche - Wie tief? 28
11Hauptbadezimmer (10qm) mit offener Dusche, Ideen? - Seite 1384
12Grundriss Bad mit Dusche 11
13Dusche auf Podest und Schubfach 13
14Grundrissplanung: Badezimmer Dusche 47
15Größe begehbare Dusche - Seite 430
16Walk-in Dusche, welche Breite für den Zugang - Seite 643
17Dusche 2 Seiten offen - Seite 526
18Bodentiefe offene Dusche, welche Größe? - Seite 316
19Kleine Walk-in-Dusche möglich? - Seite 211
20Positionierung von WC und Waschtisch im Kinderbad 22

Oben