Beratung: Neues Badezimmer, 5,9qm mit Badewanne

4,90 Stern(e) 7 Votes
Zuletzt aktualisiert 18.11.2025
Sie befinden sich auf der Seite 3 der Diskussion zum Thema: Beratung: Neues Badezimmer, 5,9qm mit Badewanne
>> Zum 1. Beitrag <<

Y

ypg

Die Lösung, in die Schräge zu gehen, ist sehr gut.
Wir hatten damals ein ERH und auch das winzige Bad (2,20 x 2,50) renoviert. Statt Dusche und Wanne haben wir eine Ei-förmige Wanne genommen (auch wegen Fenster ggü der Tür) und als Pendant schräg ggü einen Waschtisch auf geschwungener Platte, der die Form der Wanne weitergeführt hat, damit man Platz zum Durchgehen hatte.
Ich füge Dir mal ein Bild bei, worauf auch unsere damalige Wanne ist. Schenkelmass war oberhalb 90, und sie wurde dann auf 100cm ausladend.
Das Tolle: es wird mega großzügig und ist für mich der optimale Geheimtipp für zu kleine Bäder.
1. Gebot: Entscheide Dich entweder zur einer gerade Variante oder einer geschwungenen. Also gilt dann das Design für alle Elemente.
2. Gebot: achte darauf, dass dort, wo man steht, der Liegebereich nicht ergonomisch abgeschrägt ist in der Wanne, weil man dann nicht stehen kann.
3. Gebot: bedenke Podeste zum Ablegen und Vorwände mit ein. Eine Wanne kann direkt an der Wand stehen, muss aber nicht.

Wir haben übrigens im jetzigen neuen Haus auch nur unten die Dusche und oben nur eine Wanne, und es macht kaum Unterschied, wo man duscht.
Allerdings verstehe ich bei Euch jetzt nicht den Wechsel: Kinder können doch noch am besten mit einer Wanne etwas anfangen, ob nun zum Baden oder Duschen. Warum verwöhnt Ihr die Kinder, nicht gehen zu müssen?

Option fürs Wannenbad: Toilette vorziehen unters Fenster und Platz für die Komfortdusche machen.

Kaldewei: Galerie mit neun weißen Badewannenmodellen vor schwarzem Hintergrund.
 
A

ArniBanarni

Moin zusammen,

Mensch ich bin überrascht wie schnell und wie viele Antworten ich bekommen.
Danke !

Die erste Idee einfach die Dusche beizubehalten und zusätzlich eine Badewanne mit einzubauen ist gar nicht verkehrt.
Ich habe das jetzt einmal so geplant.

Zugegeben wird das wohl leider nur mit einer klassischen Wanne passen, die max 70cm Breit ist.


Da wir 2 kleine Kinder haben und ein weiteres planen ist eine Badewanne im Haus unausweichlich.
Auch wenn wir so gut wie nie selber baden, bin ich der Meinung, dass eine Badewanne im Haus vorhanden sein sollte.

Zum Badezimmer oben reiche ich noch einen Plan nach. Die Raumabmessungen sind sehr ähnlich. Hier arbeiten wir dann mit einer 140cm offenen Dusche.
Wenn ich duschen gehe mache ich mich in der Regel auch direkt fertig für die Arbeit (auch wenn z.Zt. nur Homeoffice ;-) ).
Das heißt: Haare föhnen, Zähne putzen, usw. gehört alles dazu. Ich will aber ungern im Bad EG, was ja auch von Besuchern genutzt wird, alle meine Utensilien stehen haben.

Auch glaube ich, dass eine Badewanne den Verkauf der Immobilie erleichtern kann/wird.


Bin mal gespannt auf euer Feedback.
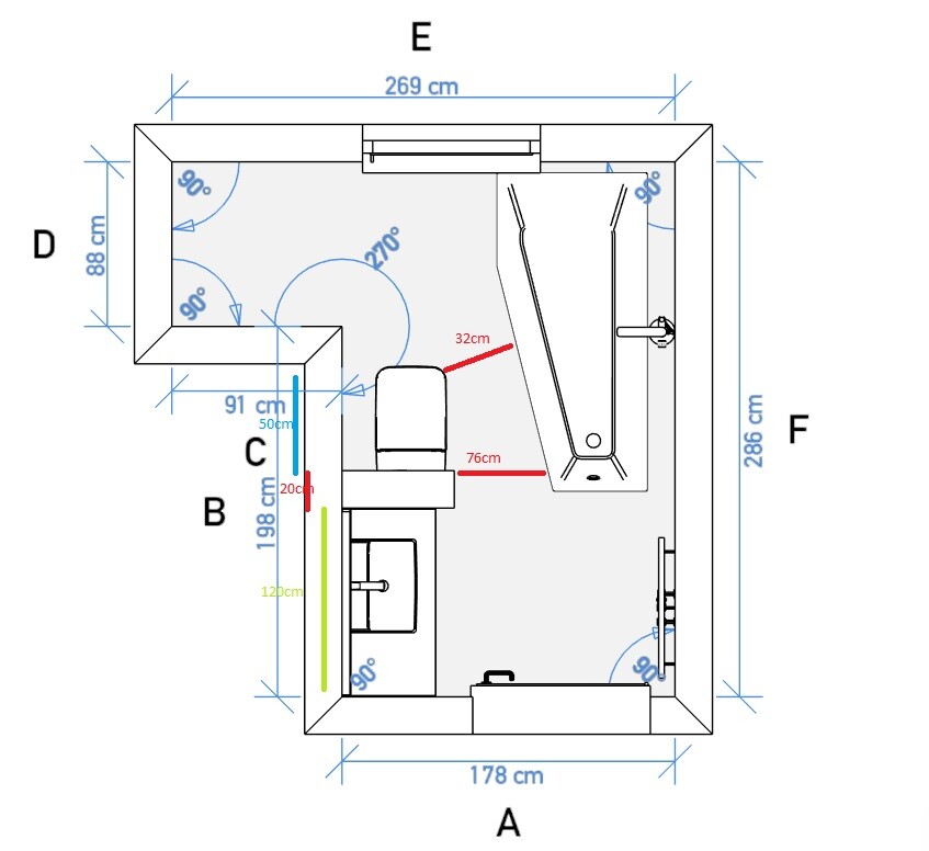
Was meint ihr zu 50cm Durchgang?
Seht ihr noch andere Wege?
Die Toilette unter das Fenster setzen wird nicht klappen. Wir haben da ein klassisches Fenster welches recht tief beginnt.

Ich habe mal ein Foto unseres aktuellen Badezimmers angehängt.

Grundriss eines Badezimmers mit Badewanne, Toilette, Waschbecken, Dusche und Holzfußboden.


Badezimmer-Layout von oben mit Waschbecken, Toilette, Badewanne und Holzboden.


Grundriss eines Badezimmers mit Dusche/Badewanne, Waschbecken, WC und Maßen in Zentimeter.


Top-Down-Grundriss eines Badezimmers: Badewanne rechts, Waschbecken links unten, Maßangaben in cm.


Badezimmer mit Waschbecken links, Toilette rechts, dunkle Fliesen, Fenster mittig.
 
Schimi1791

Schimi1791

...
Auch glaube ich, dass eine Badewanne den Verkauf der Immobilie erleichtern kann/wird.
...
Der Immobilienmarkt ist sehr angespannt. Auf jede vernünftige - und auch immer öfter unvernünftige - Immobilie kommen mehrere Interessenten und die Finanzierung einer solchen Investition wird immer schwieriger. Selbst bei uns auf dem Lande musste ich das feststellen. Wenn dann eine Immobilie wegen einer fehlenden Badewanne abgelehnt würde, stelle ich die Situation auf dem Immobilienmarkt infrage, wobei es natürlich auf den Interessenten (Zielgruppe) ankommt.
(und das hat nichts damit zu tun, dass wir uns von der Badewanne getrennt haben! :) )
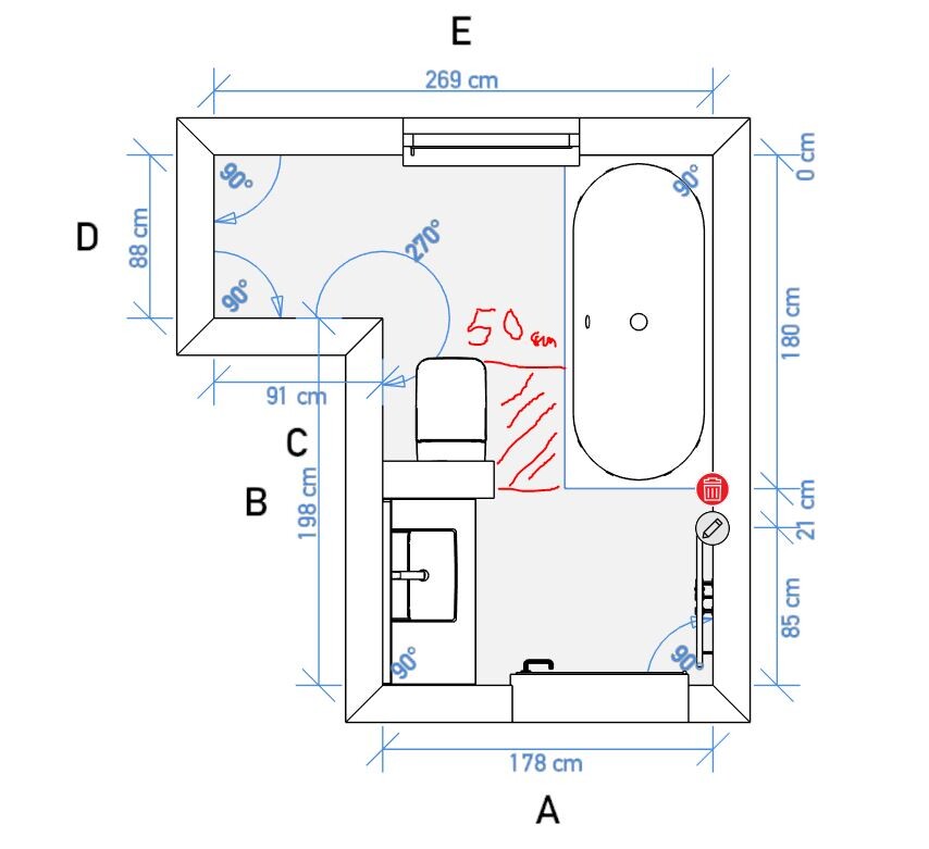
Wenn dann die Badewanne unter das Fenster dann hat das WC auch mehr Platz
Warum nicht das WC auf die Rechte Seite und die Wanne komplett in die Nische? Dann wäre ggfs. für ein Doppelwaschbecken Platz.
 
Zuletzt bearbeitet:
Schimi1791

Schimi1791

Der Einstieg wäre aber wahrscheinlich bei einem Doppelwaschbecken (es gibt sie aber auch in 120 cm Breite) recht knapp bemessen :(

So etwa:


Grundriss eines Badezimmers: Badewanne rechts, Waschbecken links; Maße in cm.


Ansonsten würde ich beim ursprünglichen Entwurf einen (Einbau)Schrank in die Nische platzieren.
 
Zuletzt aktualisiert 18.11.2025
Im Forum Sanitär / Bad / WC gibt es 1374 Themen mit insgesamt 14401 Beiträgen


Ähnliche Themen zu Beratung: Neues Badezimmer, 5,9qm mit Badewanne
Nr.ErgebnisBeiträge
1Badewanne vor Fenster - Brüstungshöhe? 14
2Badewanne vor Fenster, Brüstung zu niedrig, GU stellt sich quer 48
3Renovierung-Tipps für sehr kleines Bad mit Dusche statt Badewanne - Seite 336
4Bad-Grundriss 8,7qm, mit Dusche und Badewanne 16
5Badewanne vs Dusche 11
6Grundriss Einfamilienhaus geplant, Fenster gefallen uns 43
7Duschen Pufferspeicher 15
88,02m Positionierung Waschbecken / Toilette 69
9Bodentiefe Fenster - Warum bodentiefe Fenster? Vor- Nachteile? - Seite 8112
10OG Stadtville optimieren. Fenster Bodentief - Seite 7104
11Badplanung 14m², Neubau, quadratisch, zwei Fenster 70
12Badplanung: 11qm Badewanne ins Eck oder doch an den Fenstern? 10
13Ovale Design-Badewanne aufgrund Schmutz dahinter leicht mobil machen? - Seite 971
14Darf man bei einer Lüftungsanlage die Fenster nicht mehr öffnen? 15
15Dusche direkt am Fenster - kompatibel oder inkompatibel? 22
16Sehr Nasse Fenster über Nacht. - Seite 420
17Neubau Fenster Brüstungshöhe für Gäste-WC 30
18Grundriss Bad so möglich - Abstand Toilette zum Fallrohr 12
19Badgestaltung 24
20Ebenerdiger Pool anstatt Badewanne? 19

Oben