2 Bungalows auf 3000qm - Mehrgenerationenprojekt

4,90 Stern(e) 16 Votes
Zuletzt aktualisiert 21.11.2025
Sie befinden sich auf der Seite 2 der Diskussion zum Thema: 2 Bungalows auf 3000qm - Mehrgenerationenprojekt
>> Zum 1. Beitrag <<

H

haydee

Und wie viel musst du unter deinem Bungalow auffüllen? Ich kann die Zahlen nicht lesen.

Der Grundriss ist Hochglanz-Magazin-Style. Das geht praktischer und besser. Nur nach @ypg‘s Einwurf wird das wohl nicht gewünscht
 
O

Obermuh

Was soll das jetzt und hier bringen?

Der Thread bzw die Frage mit dem Grundriss etc ist doch in einem anderen Forum schon längst ausdiskutiert worden... die Tipps und "Mängel" des Grundrisses sind in keinster Weise umgesetzt. Es ist noch der Ursprungsgrundriss..

Allerdings schreibst Du, dass dies und das anders umgesetzt wird.... -> dann doch bitte hier einen aktuellen Entwurf einstellen und nicht noch mal die gleiche Diskussion durchführen.
Dieses Forum wurde mir im anderen Empfohlen, daher bin ich damit jetzt hier. Es machte den Eindruck als wäre es sinnvoll hier noch mal zu posten und mehrere Augen und Ideen können sicher nicht Schaden.

Und ja, da gab es schon guten Input den es gilt umzusetzen. Noch habe ich aber keine neueren Pläne die ich teilen könnte. Sobald alle Beteiligten aus dem Urlaub zurück sind, haben wir den Termin mit dem Architekten und schauen dann was er daraus gemacht hat. Gegebenenfalls kann ich dann, mit den hier zusätzlich gesammelten Punkten, noch mal verfeinern lassen. Sobald ich was habe, reiche ich es natürlich nach.

@haydee Es muss relativ viel aufgefüllt werden damit wir nicht total im Loch sitzen. Im Prinzip liegt das Haus nur an einer Ecke auf dem aktuellen Gelände auf. Ich habe mal die Ansichten mit angehängt, dort ist das natürliche Gelände eingezeichnet und die Zahlen sind besser lesbar.


Architekturzeichnung: Hausansichten Nord, Süd, West und Ost mit Fenstern, Türen und Gelände-Linien.


Ich habe auch schon Möbel eingezeichnet bzw. digital möbliert (in Home Design 3D). Mein iPad habe ich leider nicht dabei, sonst könnte ich da mal ein paar Screenshots teilen. Kochen/Essen/Wohnen habe ich ganz vernünftig hinbekommen, mehr Platz wäre aber tatsächlich nicht schädlich.

Wenn die Küche aber weiter hinter wandert, wird dadurch der Weg auf die Terrasse ziemlich lang.
 
Zuletzt bearbeitet:
O

Obermuh

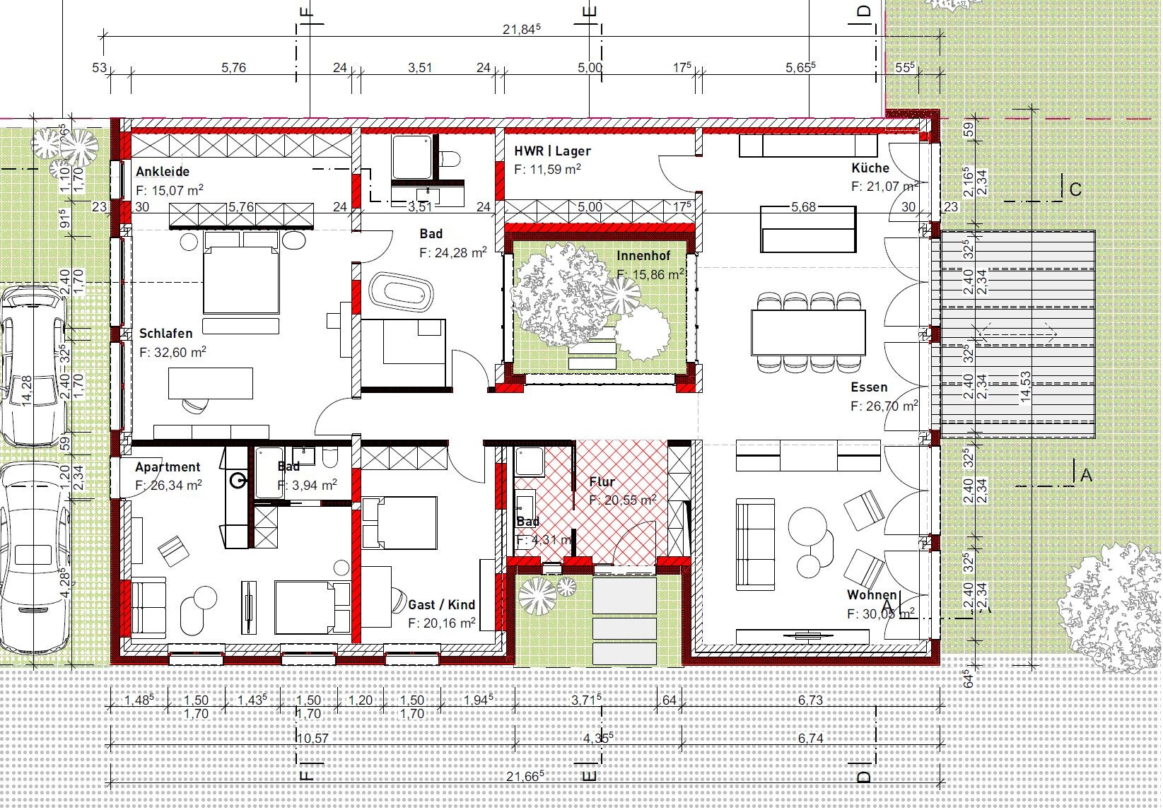
Ich war mal so frei auf die Schnelle den aktuellen Stand aus dem Kopf aufzuzeichnen und grob ein paar Möbel einzufügen. Das ganze ist natürlich nicht maßstabsgerecht, gibt aber eventuell einen besseren Einblick darüber was ich im Kopf habe. Architekt wird sicher auch noch Änderungen haben. Wie gesagt, sobald ich richtige Pläne habe reiche ich diese nach.


Architekten-Grundriss eines Hauses mit mehreren Zimmern, Küche, Bad, Terrasse und Parkplätzen.


Die 3 Türen + Fenster machen den Platz in der Ankleide schwierig zu nutzen aber ich bilde mir ein so Ähnlich könnte es klappen (Schreinerarbeit wird hier ein muss).

@nils_bs Danke! Die Ankleide hinter dem Schlafzimmer ist natürlich eine andere Variante, das schau ich mir noch mal genauer an. An sich war der Gedanke Bad und Ankleide so zu planen dass man sich fertig machen kann ohne den anderen zu stören. Ich muss des Öfteren mal sehr früh aufstehen und könnte so meine Frau schlafen lassen.
 
Zuletzt bearbeitet:
H

haydee

Euer Budget ist großzügig jedoch nicht üppig bei dem Projekt sogar ehr knapp
Großes Haus, extra Höhe Räume glaube nicht das man mit 2.000 Euro pro qm hinkommt
Erdarbeiten
Zuwegung
Garage

Ich schreibe einfach was ich mir denke
- ich mag diese großen Kästen nicht. Hat etwas von Gemeindesaal
- ich habe meine Zweifel ob das Atrium soviel Licht bringt
Sieht in den Prospekt gut aus
- Kinderzimmer zu klein im Verhältnis zum Rest
- Kinderzimmer sehr weit weg
Ihr lauft euch die Hacken ab
- Küche gehört zur Terrasse nicht das Wohnzimmer
- der Bereich könnte mehr Platz vertragen
- sehr viel Flurfläche
- Haustechnik neben Kinderzimmer suboptimal
- Haustechnik paßt nicht zu dem Hochglanz-Magazin-Style

Habt ihr schon mal über eine Teilunterkellerung nachgedacht?
- Büro nach unten (sind Kinder da ist der Arbeitsraum ruhiger gelegen)
- Bad nach unten
- Später kann das 1 Kind als Apartment nutzen
- Haustechnik nach unten
- ordentlicher Abstellraum

Oben entfällt dann Büro, Kinderbad, Haustechnik, Treppe kommt dazu

Ankleide kleiner und besser möbliert gestalten. Da kann locker 1 m Breite raus

Kinderzimmer rücken näher an den Elternteil
Können später Büro werden

Würde weg vom Quadrat
 
Zuletzt aktualisiert 21.11.2025
Im Forum Grundrissplanung / Grundstücksplanung gibt es 2535 Themen mit insgesamt 87980 Beiträgen


Ähnliche Themen zu 2 Bungalows auf 3000qm - Mehrgenerationenprojekt
Nr.ErgebnisBeiträge
1Erstkontakt und Vorstellung unserer Pläne 10
2Grundriss Einfamilienhaus mit Doppelgarage und Terrasse - Seite 219
3Grundrissplanung Hanghaus mit 5 Kinderzimmer - Seite 26370
4Grundriss Bungalow 150qm geschlossene Küche, überdachte Terrasse 40
5Neubau Grundflächenzahl ausnutzen, Terrasse überbauen - Seite 321
6Einfamilienhaus ~190qm, drei Kinderzimmer, ohne Keller - Feedback wäre mega 19
7Grundrissplanung 4-Giebel Haus Herrengiebel Doppelgarage - Seite 212
8Wohnen/Essen/Küche: Wie wohnt ihr oder werdet ihr wohnen? - Seite 552
9Kinderzimmer und Schlafzimmer - Welche Größe ist zu empfehlen? - Seite 256
10Grundrissplanung Einfamilienhaus (Stadtvilla) ca.140m² (3 Kinderzimmer) - Seite 742
11Grundrissplanung ca. 200qm (3 Kinderzimmer + Schlafen) - Seite 529
12Entwurf Einfamilienhaus mit 3 Kinderzimmer, Keller und Grenzbebauung 32
13Überdachte Terrasse als Wohnfläche anrechnen lassen? - Seite 651
14Grundriss-Aufteilung OG - Elternbereich / 2 Kinderzimmer mit Bad 26
15Grundriss, Ideen zur räumlichen Trennung innerhalb der Küche 23
16Echtholz in Neubau Essen, Wohnen, Küche und Flur 10
1712x9,6m 2 Vollgeschosse, Keller, DG, 4 Kinderzimmer - Seite 14153
18Einfamilienhaus mit 156 m² Grundfläche (2 Kinderzimmer + Homeoffice) 21
19Bestandshaus umbauen - Mehr Platz für Küche und Bad - Ideen? 20
20Neubau Einfamilienhaus 160-170qm, 3 Kinderzimmer 39

Oben