2 Bungalows auf 3000qm - Mehrgenerationenprojekt

4,90 Stern(e) 16 Votes
Zuletzt aktualisiert 07.01.2026
Sie befinden sich auf der Seite 7 der Diskussion zum Thema: 2 Bungalows auf 3000qm - Mehrgenerationenprojekt
>> Zum 1. Beitrag <<

O

Obermuh

Um hier noch mal ein Update zu geben:

das Haus ist, bis auf Kleinigkeiten wie Fußleisten und einzelnen Armaturen, fertig und die Außenanlagen sind in Arbeit. Abnahme ist für Ende Dezember geplant (auch wegen der MwSt. ;) ).

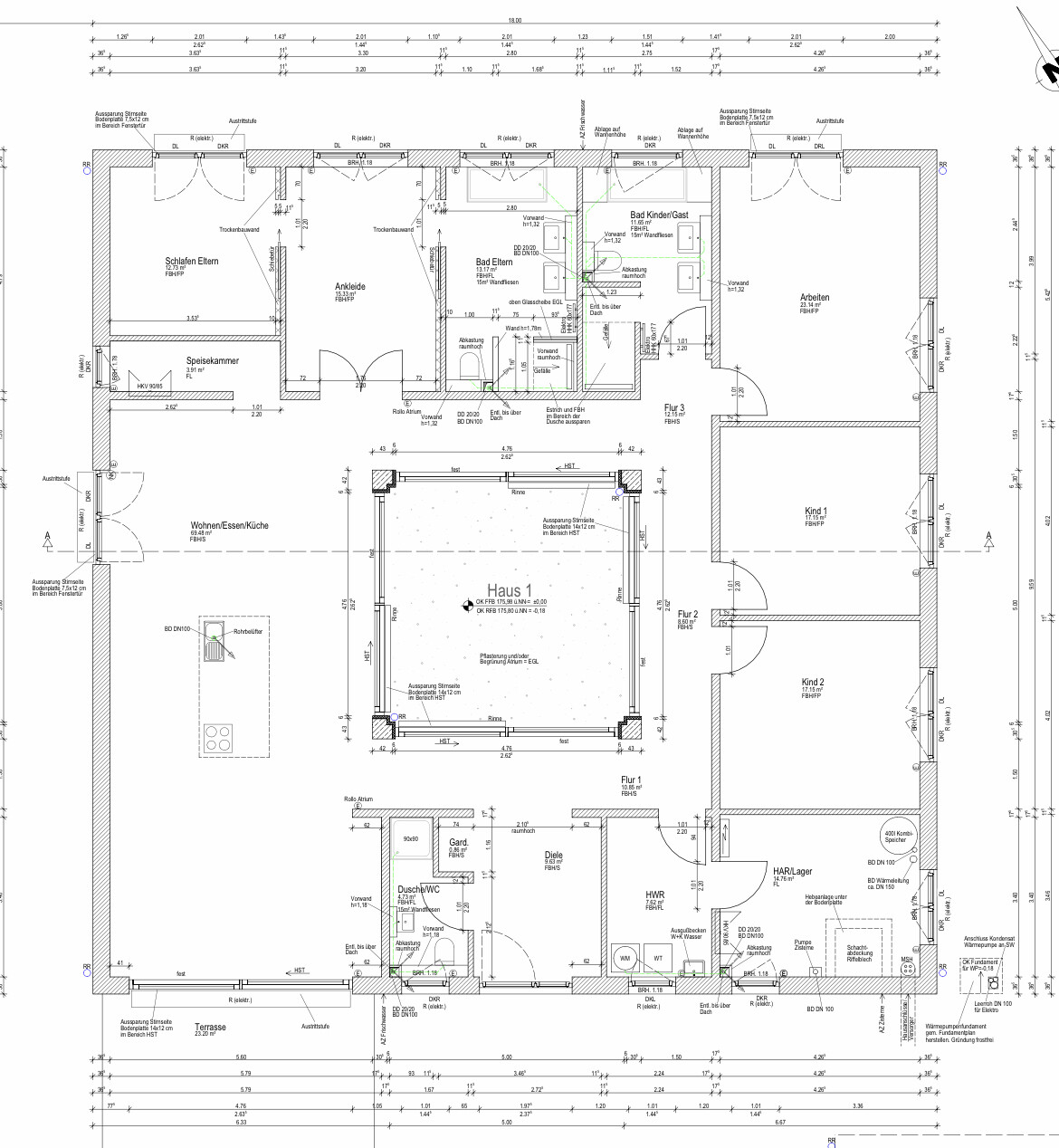
Der Grundriss ist beim Atriumhaus geblieben und hat nur ein paar Detailveränderungen bekommen. Abweichend zum Plan haben wir im Rohbau WC/Dusche im Elternbad auch noch mal verändert.


Grundriss eines Hauses mit mehreren Zimmern (Küche/Bad/Flure) und Wänden als Planlayout

Ein paar Impressionen:


Neubau-Einzelgebäude mit Flachdach, weiße Fassade, Fenster/Tür, Baugrube, Kran im Hintergrund.

Baustelle mit langem, weißem Gebäudeteil, Baukran im Hintergrund, unbefestigte Erde.

Heller, unfertiger Innenraum mit offener Glühbirne, Baufolie auf dem Boden und Glasfront zum Hof.

Großer heller unfertiger Wohnraum mit Glas-Schiebetüren, Tageslicht; Hund im Zentrum

Leerer Neubau-Raum mit weißen Wänden, Fensterfront, offenem Durchgang und hängender Leuchte.


Heller leerer Wohnraum mit Fensterfront und Terrassentür; Bauholz liegt auf dem Boden.

Neues Badezimmer mit schwarzen Fliesen, Waschtisch, Toilette hinter Trennwand, offenes Kabellicht

Modernes Badezimmer mit schwarzer Fliesenwand, großem Fenster, Wandwaschbecken und Toilette.

Modernes Badezimmer im Bau mit schwarzen Fliesen, Badewanne am Fenster und Waschbecken.
 
W

Würfel*

Gefällt mir sehr gut! Ist mal was gänzlich anderes. Bin gespannt wie das fertig aussieht, wenn die Küche drin ist und der Innenhof gestaltet ist. Würde mich über ein Update freuen, wenn es soweit ist. Viel Freude im neuen Haus!
 
H

haydee

Integrierte Skatebahn. Nicht nur die 11 m wie bei uns von Tür zu Tür.
Danke für die Bilder. Einiges was mich am Anfang gestört hat, stört mich immer noch.
Trotzdem ist es mal ein ganz anderes Projekt. Sieht alles Stimmig aus
Bin mal gespannt wie sich das Atrium verhält. Stauwärme, Licht etc
 
H

haydee

und ob ihr die Terrasse überhaupt noch benutzt.

(hatte ich vorhin vergessen)
Wenn das Atrium optimal mit Wärme und Licht ist, hat das noch Privatsphäre. Eigentlich nur Vorteile
 
O

Obermuh

Ich denke auch dass wir mehr im Atrium sitzen werden. Im Sommer nicht so heiß und im Herbst länger warm. Heute wurde auch die Beschattung montiert, im Prinzip ein Wintergarten-Rollladen mit Perforierung um geschlossen noch Licht rein zu lassen.


Innenhof eines modernen Gebäudes mit Glasfronten und Lamellendach, Boden voller Geröll.
 
Zuletzt aktualisiert 07.01.2026
Im Forum Grundrissplanung / Grundstücksplanung gibt es 2565 Themen mit insgesamt 88770 Beiträgen


Ähnliche Themen zu 2 Bungalows auf 3000qm - Mehrgenerationenprojekt
Nr.ErgebnisBeiträge
1Anschlagrichtung und Position Tür im Bad OG 14
2Tür Haus/Garage: Nebeneingangstür als Brandschutztür? - Seite 327
3Abdichtung Terrassenaustritt / -Tür bei zweischaligem Mauerwerk 10
4Besta-Regal mit Tür und Schublade Inreda/IKEA, brauche Hilfe 11
5Schalter für Rollläden am Fenster oder an der Tür? 38
6Ausbesserung der Tür machte es noch "schlimmer" - Seite 225
7Tür Schiebeeinrichtung falschherum - Seite 221
8Hörmann T30 Tür zwischen Wohnhaus & Garage - U-Wert - Seite 211
9Tür nach innen oder außen aufgehend? Was ist normal? - Seite 432
10Pflastern bis an die Tür - wie Abschluss? 15
11Suche Gartenhaus 3x3 Meter mit hoher Tür 15
12Kann eine Hebeschiebetür so dicht sein wie eine normale Tür? - Seite 319
13Duschwanne 140+ cm lang: Tür dadurch einsparen? 24
14Einrichtung Ankleidezimmer Tür zum Badezimmer - Seite 234
15Badplanung - Dusche ohne Tür - Seite 210
16Ikea Faktum Eckhängeschrank - Tür / Scharniere - Seite 210
17Walk-In Dusche, Spritzwasser, brauche ich eine Tür? 35

Oben