Wie geht es weiter? Überbauung hintere Baugrenze

4,50 Stern(e) 4 Votes
Zuletzt aktualisiert 24.11.2025
Sie befinden sich auf der Seite 3 der Diskussion zum Thema: Wie geht es weiter? Überbauung hintere Baugrenze
>> Zum 1. Beitrag <<

Masipulami

Masipulami

Was spricht denn dagegen zumindest die Garage schon mal ganz ins Baufenster zu schieben?

Ich würde die Garage aber auch auf die andere Seite des Hauses setzen.
 
M

Mr. Robot

Wenn ich die Garage komplett ins Baufenster schiebe, dann hab ich kein Fenster im Hauswirtschaftsraum
Ich kenn den Nachbarn mit dem Grundstück Nr. 26! Kann mir nicht vorstellen, dass es da Probleme gibt aber wir werden diese Woche sehen was rauskommt.

Klar kann ich die Garage dem Nachbarn unten auf die Grenze setzen aber dadurch würde ich Licht fürs spätere Wohn-/Esszimmer, welches über den hinteren unteren Teil des Hauses verläuft, verlieren.
 
Zuletzt bearbeitet:
Masipulami

Masipulami

Ich denke es wäre hilfreich wenn du auch mal den Grundriss einstellst. Sonst kann man hier schlecht Ratschläge geben.
 
MarcWen

MarcWen

Aktuell möchte ich nur herauszufinden was maximal möglich ist, mit und ohne Zustimmung der Nachbarn. Es ist quasi noch alles offen!
Irgendwie kann ich mich mit der Denke nicht anfreunden. Warum muss man immer das Maximum rausholen? Ein gesunder Kompromiss ist doch immer ein Geben und Nehmen. Geht man aufs Maximum, dann meist zu Lasten anderer.
 
D

DG

@Mr. Robot,

die Abweichung vom Bebauungsplan ist bei Dir nicht besonders groß, dennoch sollst Du offensichtlich den Weg über eine Nachbarzustimmung gehen. Die Länder handhaben das unterschiedlich, teilweise ist die Praxis auch abhängig vom jeweiligen Bauamt.

In NRW könntest Du die Abweichung durch eine sog. Verzichtsbaulast erreichen - idR ohne Nachbarzustimmung. Das funktioniert prinzipiell so, dass Du die zusätzlich benötigte Fläche im Westen des Baufensters durch einen Verzicht auf einen gleich großen Bereich innerhalb des Baufensters sicherst, also nur eine individuelle Verschiebung Deines Baufensters bewirkt, ohne dass man den ganzen Bebauungsplan neu aufstellen/ändern muss. Die Größe Deines nutzbaren Baufensters bleibt dann gleich, Du hast ergo keinen Gewinn an Baufläche.

Da es in BW grundsätzlich eine synonyme Handhabung bei Baulasteintragungen gibt (manche Länder haben das Konstrukt "Baulast" gar nicht), wäre der Weg ohne Nachbarzustimmung meiner Meinung nach also auch in BW möglich.

Details mit Deinem Architekten/Vermesser und Bauamt klären, Du wirst dann etwaig auch keinen Bauantrag im vereinfachten Verfahren stellen können.

Aber wie gesagt, das sind nur ein paar Quadratmeter, um die das Baufenster angepasst werden müsste und auf Grund des Grundstückszuschnitts kann man das meines Erachtens auch begründen.

MfG
Dirk Grafe
 
M

Mr. Robot

Ich denke es wäre hilfreich wenn du auch mal den Grundriss einstellst. Sonst kann man hier schlecht Ratschläge geben.
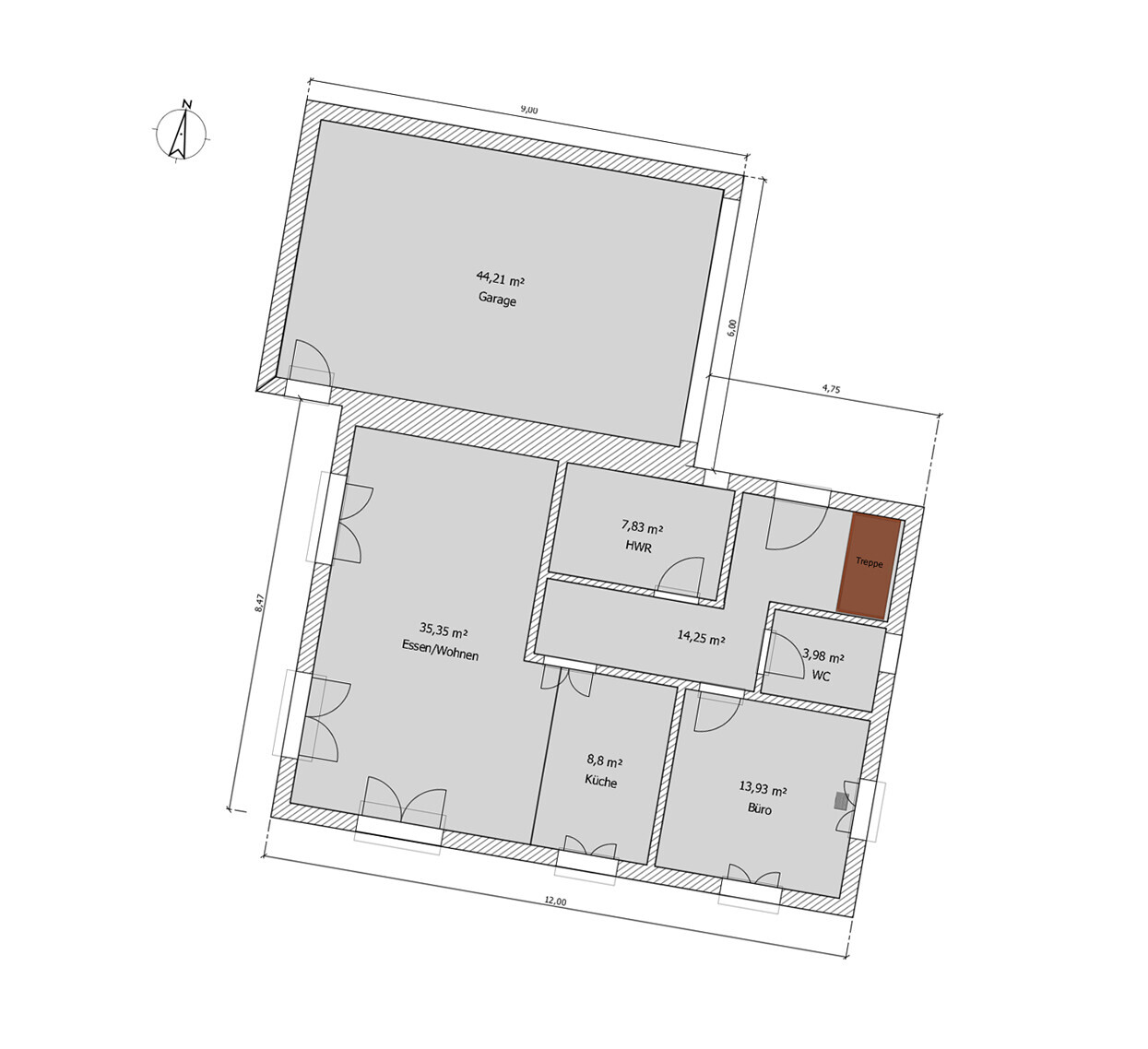
Hier mal das EG, was aber nur mal so grob unseren Wünschen entspricht. Das untere linke Eck ist hier noch nicht fertig, zwecks den Fenstern und mehr Licht.

Grundriss eines Hauses mit Garage, Essen/Wohnen, Küche, Büro, HWR, WC und Treppe.


Irgendwie kann ich mich mit der Denke nicht anfreunden. Warum muss man immer das Maximum rausholen? Ein gesunder Kompromiss ist doch immer ein Geben und Nehmen. Geht man aufs Maximum, dann meist zu Lasten anderer.
Es geht doch nur darum, um zu erfahren, ob unsere aktuelle Idee evtl. so umsetzbar wäre. Maximal rausholen war hier wohl die falsche Wortwahl

@Dirk Grafe: Ich danke dir! Endlich eine Antwort mit der ich was anfangen kann.
 
Zuletzt aktualisiert 24.11.2025
Im Forum Bauland / Baurecht / Baugenehmigung / Verträge gibt es 3159 Themen mit insgesamt 42908 Beiträgen


Ähnliche Themen zu Wie geht es weiter? Überbauung hintere Baugrenze
Nr.ErgebnisBeiträge
1Nachbar baut Garage tiefer als Bebauungsplan vorgibt - Seite 210
2Bebauungsplan: Garage auf Grenze außerhalb Baufenster 53
3Position Garage auf Grundstück, Vorgabe im Bebauungsplan 22
4Grundstück - Baufenster - Lage von Haus und Garage - Seite 244
5Bau Garage auf Grenze geht lt. Architekt nicht. 11
6Garage: Was heist "angebaut"? Dass das Mauerwerk verbunden ist? 15
7Knifflige Grundstücksplanung: Garage + Eingang nach SW oder NO? - Seite 321
8bevorstehender Grundstückskauf - Fragen zum Bebauungsplan - Seite 220
9Interpretation Bebauungsplan von 1957 <-> Möglichkeiten für Neubau - Seite 236
10Grenzbebauung bei offener Bauweise - Nachbarzustimmung nötig? - Seite 314
11Grundriss Einfamilienhaus mit 240m² mit Einliegerwohnung 75m² und Garage 39
12Garage, Carport mit Fahrradschuppen - Grundstücksplanung 22
13Baufenster auf der Flurkarte - Genehmigung - Seite 539
14Vereinigung zweier Grundstücke - Baufenster neu legen? 20
15Wo stellen wir Haus und Garage hin? - Seite 210
16Garage: Gestaltungsmöglichkeit des Daches, Erscheinungsbild - Seite 214
17Lage von Haus & Garage im Baufenster planen *Vorplanung* 129
18Fehlplanung Bayern - Gefälle zu Haus und Garage hin - statt weg - Seite 423
19Garage genehmigt, aber Carport gebaut 23
20Keller ja oder nein bei großem Baufenster? - Seite 212

Oben