ᐅ Stadtvilla dezent modern 218qm
Erstellt am: 25.08.20 21:45
Hallo,
nun wohnen wir schon lange im eigenen Einfamilienhaus und wollen jetzt neu bauen. Ich hätte nicht gedacht, dass es doch so schwierig ist, einen passenden Grundriss zu entwerfen. Jede Änderung geht zu Lasten einer anderen Prämisse. Nun stecken wir in einer Sackgasse, in der uns keine weiteren Verbesserungen einfallen. Ich hoffe, dass Eure frischen Blicke und offenen Kritiken uns hier weiterhelfen.
Daher Danke im Voraus für alle Anmerkungen
Bebauungsplan/Einschränkungen
Größe des Grundstücks 1.220qm
Hang nein
Grundflächenzahl
Geschossflächenzahl
Baufenster, Baulinie und -grenze - keine
Randbebauung - Doppelgarage 7m (optional dreifach-Garage)
Anzahl Stellplatz - 3
Geschossigkeit - 2
Dachform - Walmdach 25°, 80cm Überstand
Stilrichtung - klassisch
Ausrichtung - Eingang = nordost
Maximale Höhen/Begrenzungen - keine
weitere Vorgaben - keine
Anforderungen der Bauherren
Stilrichtung, Dachform, Gebäudetyp Stadtvilla, dezent modern, Walmdach flach, KfW55
Keller, Geschosse - 2 Geschosse, ohne Keller
Anzahl der Personen, Alter 4 Personen - 2x 40Jahre, 1x 11Jahre, 1x 7 Jahre
Raumbedarf im EG, OG - siehe Entwurf
Büro: Familiennutzung oder Homeoffice? - ja, 2 Tage die Woche
Schlafgäste pro Jahr - 5-6 mal pro Jahr
offene oder geschlossene Architektur - EG offen, OG geschlossen
konservativ oder moderne Bauweise - Mittelding
offene Küche, Kochinsel - ja/ja
Anzahl Essplätze - 6-8
Kamin - nein
Musik/Stereowand - nein
Balkon, Dachterrasse - nein, aber überdachte Terrasse EG
Garage, Carport - Garage alleinstehend
Nutzgarten, Treibhaus nein
weitere Wünsche/Besonderheiten/Tagesablauf, gern auch Begründungen, warum dieses oder das nicht sein soll
offener Wohn-Ess-Bereich, viel Licht, keine Schlauchräume, stimmige Proportionen und Symmetrien, gemütlich
glatter Dachstein
Hausentwurf
-Do-it-Yourself Planung
Was gefällt besonders? Warum?
- Aufteilung OG, Treppenhaus
Was gefällt nicht? Warum?
- Kinderzimmer unterschiedlich groß
- Arbeitszimmer könnte größer sein
- Ausrichtung nicht ganz optimal
- EG fehlt noch etwas Pfiff
Preisschätzung lt Architekt/Planer: 480.000€ ohne Garage
Persönliches Preislimit fürs Haus, inkl Ausstattung: 500.000€
favorisierte Heiztechnik: Sole-Wärmepumpe
Wenn Ihr verzichten müsst, auf welche Details/Ausbauten
-könnt Ihr verzichten: eigentlich nichts, die meisten Dinge sind bereits rationalisiert (Luftraum, Kamin und weitere Spielereien)
-könnt Ihr nicht verzichten:
Warum ist der Entwurf so geworden, wie er jetzt ist? ZB
Ein Gemisch aus vielen Beispielen aus div. Magazinen...
Was ist die wichtigste/grundlegende Frage zum Grundriss in 130 Zeichen zusammengefasst?
Wie kann das EG besser gestaltet werden, sind grobe Denkfehler enthalten?
Auf dem Luftbild ist es das untere Haus rechts.
Der schraffierte Bereich soll ganz grob die gepflasterte Fläche darstellen
Zufahrt vorbei an zwei Winkelbungalows in grau


nun wohnen wir schon lange im eigenen Einfamilienhaus und wollen jetzt neu bauen. Ich hätte nicht gedacht, dass es doch so schwierig ist, einen passenden Grundriss zu entwerfen. Jede Änderung geht zu Lasten einer anderen Prämisse. Nun stecken wir in einer Sackgasse, in der uns keine weiteren Verbesserungen einfallen. Ich hoffe, dass Eure frischen Blicke und offenen Kritiken uns hier weiterhelfen.
Daher Danke im Voraus für alle Anmerkungen
Bebauungsplan/Einschränkungen
Größe des Grundstücks 1.220qm
Hang nein
Grundflächenzahl
Geschossflächenzahl
Baufenster, Baulinie und -grenze - keine
Randbebauung - Doppelgarage 7m (optional dreifach-Garage)
Anzahl Stellplatz - 3
Geschossigkeit - 2
Dachform - Walmdach 25°, 80cm Überstand
Stilrichtung - klassisch
Ausrichtung - Eingang = nordost
Maximale Höhen/Begrenzungen - keine
weitere Vorgaben - keine
Anforderungen der Bauherren
Stilrichtung, Dachform, Gebäudetyp Stadtvilla, dezent modern, Walmdach flach, KfW55
Keller, Geschosse - 2 Geschosse, ohne Keller
Anzahl der Personen, Alter 4 Personen - 2x 40Jahre, 1x 11Jahre, 1x 7 Jahre
Raumbedarf im EG, OG - siehe Entwurf
Büro: Familiennutzung oder Homeoffice? - ja, 2 Tage die Woche
Schlafgäste pro Jahr - 5-6 mal pro Jahr
offene oder geschlossene Architektur - EG offen, OG geschlossen
konservativ oder moderne Bauweise - Mittelding
offene Küche, Kochinsel - ja/ja
Anzahl Essplätze - 6-8
Kamin - nein
Musik/Stereowand - nein
Balkon, Dachterrasse - nein, aber überdachte Terrasse EG
Garage, Carport - Garage alleinstehend
Nutzgarten, Treibhaus nein
weitere Wünsche/Besonderheiten/Tagesablauf, gern auch Begründungen, warum dieses oder das nicht sein soll
offener Wohn-Ess-Bereich, viel Licht, keine Schlauchräume, stimmige Proportionen und Symmetrien, gemütlich
glatter Dachstein
Hausentwurf
-Do-it-Yourself Planung
Was gefällt besonders? Warum?
- Aufteilung OG, Treppenhaus
Was gefällt nicht? Warum?
- Kinderzimmer unterschiedlich groß
- Arbeitszimmer könnte größer sein
- Ausrichtung nicht ganz optimal
- EG fehlt noch etwas Pfiff
Preisschätzung lt Architekt/Planer: 480.000€ ohne Garage
Persönliches Preislimit fürs Haus, inkl Ausstattung: 500.000€
favorisierte Heiztechnik: Sole-Wärmepumpe
Wenn Ihr verzichten müsst, auf welche Details/Ausbauten
-könnt Ihr verzichten: eigentlich nichts, die meisten Dinge sind bereits rationalisiert (Luftraum, Kamin und weitere Spielereien)
-könnt Ihr nicht verzichten:
Warum ist der Entwurf so geworden, wie er jetzt ist? ZB
Ein Gemisch aus vielen Beispielen aus div. Magazinen...
Was ist die wichtigste/grundlegende Frage zum Grundriss in 130 Zeichen zusammengefasst?
Wie kann das EG besser gestaltet werden, sind grobe Denkfehler enthalten?
Auf dem Luftbild ist es das untere Haus rechts.
Der schraffierte Bereich soll ganz grob die gepflasterte Fläche darstellen
Zufahrt vorbei an zwei Winkelbungalows in grau
Marco180 schrieb:
nun wohnen wir schon lange im eigenen Einfamilienhaus und wollen jetzt neu bauen. Ich hätte nicht gedacht, dass es doch so schwierig ist, einen passenden Grundriss zu entwerfen.Wieso ist es das denn - ist das aktuell bewohnte Einfamilienhaus nicht freistehend ?Marco180 schrieb:
Jede Änderung geht zu Lasten einer anderen Prämisse.Ich habe die Rangliste der Prämissen noch nicht herausgelesen (?)https://www.instagram.com/11antgmxde/
https://www.linkedin.com/company/bauen-jetzt/
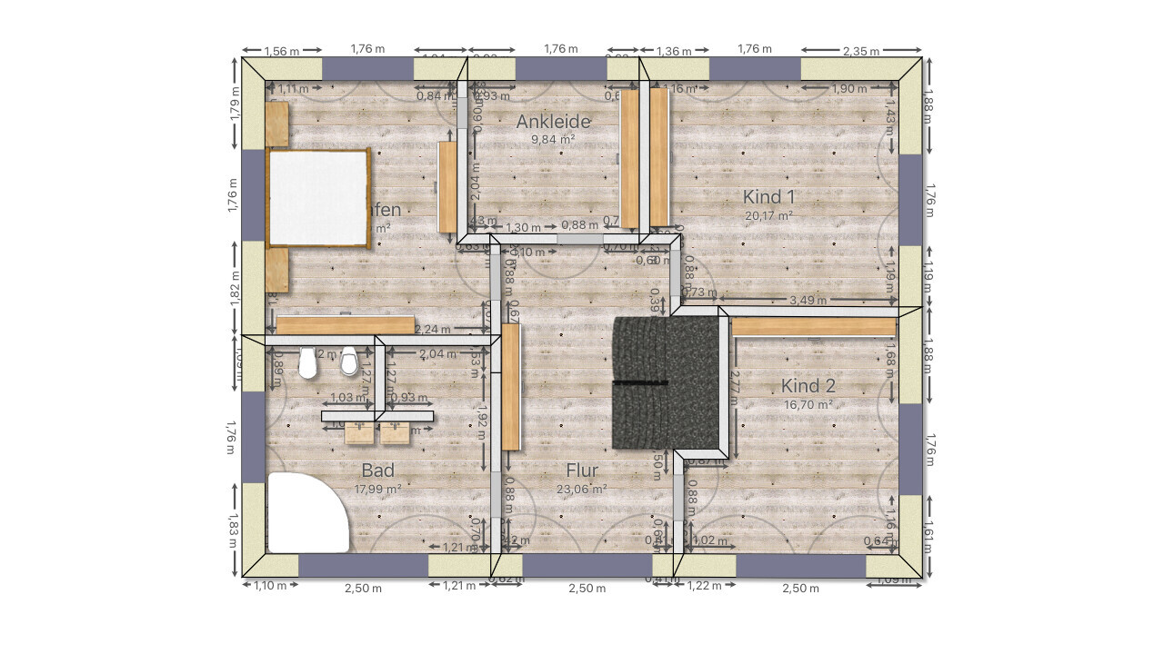
Alter Verwalter! 43 m² Flur muss man sich erst mal leisten können. Ich finde den Grundriss irgendwie unausgewogen und zwar groß aber irgendwie auch etwas grobschlächtig. Hat das der Architekt auch schon gesehen? Oder wie kommst Du auf die Preisschätzung (die immerhin nicht ganz so unrealistisch sein dürfte - nur dass Dein persönliches Preislimit etwas erklärungsbedürftig ist, da es unter normalen Bedingung nicht hinhauen wird).
S
Strahleman26.08.20 07:15Ich denke, 218 qm kann man effektiver verteilen, der letztendlich "nutzbare" Bereich ist nur 175qm, da einiges schon allein für den Flur draufgeht. Prinzipiell habt ihr ja doch eigentlich viele Freiheiten bei einem Haus mit zwei Vollgeschossen.
Hier mal meine Punkte, die mir auf den ersten Blick aufgefallen sind.
EG:
- Flur zu groß bei zu kleiner nutzbarer Fläche
- Garderobe wird in Realität wohl den Weg ins Arbeitszimmer mit Hindernissen wie Schuhen pflastern
- die zweiflüglige Wohnzimmertür wird im Raum einen Störer bilden, sobald sie offen steht. Evtl. ever eine etwas größere Schiebetür, die in der Wand verschwindet?
- Man kommt nur nach einem Hindernislauf zwischen Mobiliar in den Garten.
OG:
- Im Bad wird einiges an Platz verschwendet. Ich würde über eine bessere Anordnung ohne T-Wand nachdenken
- Bei der Wohnfläche würde mir ein kleiner Abstellraum für Staubsauger, Putzsachen etc. fehlen
- Ich würde die Anordnung der Fenster überdenken. V.a. in den Kinderzimmern geht aktuell einiges an Stellplatz an den Wänden verloren (z.B. auch für einen Arbeitstisch)
Ich würde schauen, ob man evtl. auch die Treppe in der Form nehmen sollte. Bei der Größe des Hauses würde ich fast auf eine gerade Treppe gehen.
Hier mal meine Punkte, die mir auf den ersten Blick aufgefallen sind.
EG:
- Flur zu groß bei zu kleiner nutzbarer Fläche
- Garderobe wird in Realität wohl den Weg ins Arbeitszimmer mit Hindernissen wie Schuhen pflastern
- die zweiflüglige Wohnzimmertür wird im Raum einen Störer bilden, sobald sie offen steht. Evtl. ever eine etwas größere Schiebetür, die in der Wand verschwindet?
- Man kommt nur nach einem Hindernislauf zwischen Mobiliar in den Garten.
OG:
- Im Bad wird einiges an Platz verschwendet. Ich würde über eine bessere Anordnung ohne T-Wand nachdenken
- Bei der Wohnfläche würde mir ein kleiner Abstellraum für Staubsauger, Putzsachen etc. fehlen
- Ich würde die Anordnung der Fenster überdenken. V.a. in den Kinderzimmern geht aktuell einiges an Stellplatz an den Wänden verloren (z.B. auch für einen Arbeitstisch)
Ich würde schauen, ob man evtl. auch die Treppe in der Form nehmen sollte. Bei der Größe des Hauses würde ich fast auf eine gerade Treppe gehen.
Ähnliche Themen