ᐅ Einfamilienhaus 4 Pers. - Erster Entwurf - Ba.Wü.
Erstellt am: 14.05.20 12:37
Hallo liebe Forumsmitglieder,
auch wir würden gerne unseren Entwurf euch zur Vorlage zeigen.
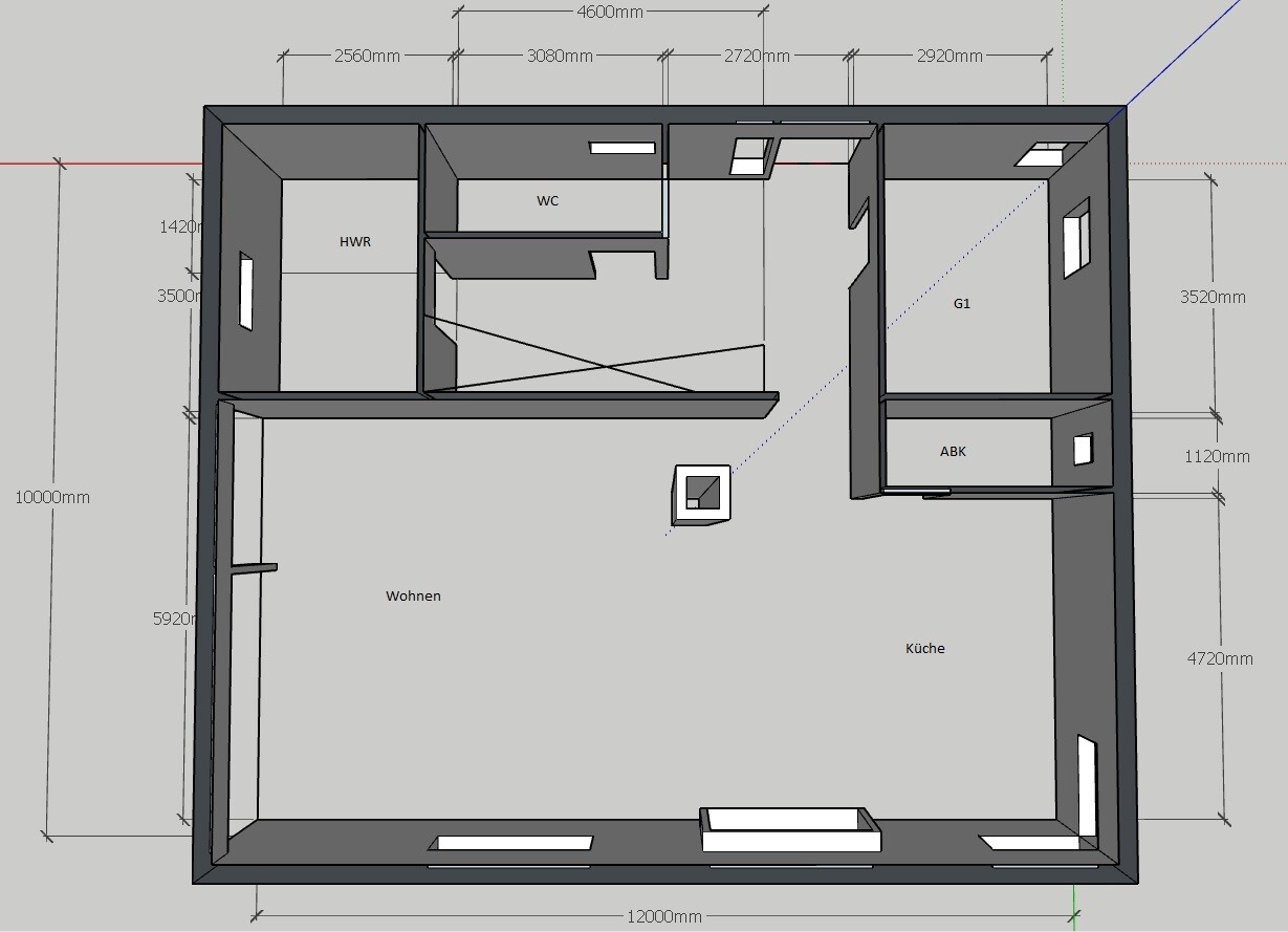
Es handelt sich um das Grundstück Nr. 84 nach Plan. (Wird noch auf 504m² vergrößert)
Standort ist Ba-Wü
Aber zunächst einmal die notwendigen Eckdaten:
Bebauungsplan/Einschränkungen
Größe des Grundstücks: 504m² - 17,7mx28,5m
Hang: Nein
Grundflächenzahl: 0,4
Geschossflächenzahl:
Baufenster, Baulinie und -grenze: siehe Plan
Randbebauung: gem. BaWü (2m?!)
Anzahl Stellplatz: 2
Geschossigkeit: Max. 2
Dachform: Fast alles möglich
Stilrichtung: Modern/Klassisch
Ausrichtung: Ost/West
Maximale Höhen/Begrenzungen: TH: 6,2m; GBH: 8,6m
weitere Vorgaben
Anforderungen der Bauherren
Stilrichtung, Dachform, Gebäudetyp: Klassisch Modern
Keller, Geschosse: Keller nicht gewünscht; Geschosse 1,5 (Kniestock 1,80m)
Anzahl der Personen, Alter: Bislang 2 (36/27) geplant 4
Raumbedarf im EG, OG:
Büro: Familiennutzung
Schlafgäste pro Jahr: Max 1-2
offene Architektur
moderne Bauweise
offene Küche und Kochinsel
Anzahl Essplätze: 6-8
Kamin: Gerne
Musik/Stereowand
Balkon; Dachterrasse: Nicht nötig
Garage, Carport: Größe Garage (4 Motorräder und Werkstatt)
Nutzgarten, Treibhaus: Nicht notwendig
Hausentwurf
Von wem stammt die Planung:
-Do-it-Yourself
Was gefällt besonders? Warum?
Offener Wohn/Essbereich
Südausrichtung des Schlafzimmers und Ostausrichtung des Bades
Preisschätzung lt Architekt/Planer: Ausbauhaus bislang 330.000k€ (Ohne Garage) Bauweise CLT
Persönliches Preislimit fürs Haus, inkl Ausstattung: 420.000k€
favorisierte Heiztechnik: bislang unentschlossen
Wenn Ihr verzichten müsst, auf welche Details/Ausbauten
-könnt Ihr verzichten: Smarthome, 3 Bäder, Keller, Sauna, Balkone Gauben etc.
-könnt Ihr nicht verzichten: Ausblick Ri. Süden / Südosten
Warum ist der Entwurf so geworden, wie er jetzt ist?
Nach unzähligen Entwürfen haben wir uns jetzt stark in dieses Grobkonzept verliebt.
Ein Gemisch aus vielen Beispielen aus div. Magazinen...
Was macht ihn in Euren Augen besonders gut oder schlecht?
Grundstück liefert tolle Sicht nach Süden.
Bislang ist die Unbekannte Komponente die Bebauung der Nachbarn. Hier würden wir gerne so planen, dass uns "egal" sein kann wie die Bauen ohne uns groß einschränken zu müssen.
Was ist die wichtigste/grundlegende Frage zum Grundriss in 130 Zeichen zusammengefasst?
Wir würden natürlich gerne grundlegende Anregungen zum Grundriss bekommen.
Zu klein, zu groß, unsinnig geplant...
Wir haben schon versucht einfache Strukturen herzustellen. Wir brauchen keinen besonderen Schnickschnack.
Hauptaufenthaltsraum wird Wohnbereich.
Denkt ihr die Kinderzimmergrößen reichen? Wie siehts dort mit Licht aus, die Fenster haben wir mal einfach zu eingezeichnet. Müssen/Sollten hier noch Dachfenster integriert werden?
Bevor wir alle möbel bereits einzeichnen würden wir im Vorfeld gerne wissen ob die Grundplanung so passen könnte.
Haben das Häusle (noch mit gedrehtem First) mal aufs Grundstück gestellt.
Wir freuen uns schon jetzt auf eine angeregte Diskussion und sind natürlich für alles und jeden offen
LG
Matthias
PS: Seh gerade das ich das Fenster im Ankleidezimmer noch vergessen habe; Wird natürlich nachgereicht





auch wir würden gerne unseren Entwurf euch zur Vorlage zeigen.
Es handelt sich um das Grundstück Nr. 84 nach Plan. (Wird noch auf 504m² vergrößert)
Standort ist Ba-Wü
Aber zunächst einmal die notwendigen Eckdaten:
Bebauungsplan/Einschränkungen
Größe des Grundstücks: 504m² - 17,7mx28,5m
Hang: Nein
Grundflächenzahl: 0,4
Geschossflächenzahl:
Baufenster, Baulinie und -grenze: siehe Plan
Randbebauung: gem. BaWü (2m?!)
Anzahl Stellplatz: 2
Geschossigkeit: Max. 2
Dachform: Fast alles möglich
Stilrichtung: Modern/Klassisch
Ausrichtung: Ost/West
Maximale Höhen/Begrenzungen: TH: 6,2m; GBH: 8,6m
weitere Vorgaben
Anforderungen der Bauherren
Stilrichtung, Dachform, Gebäudetyp: Klassisch Modern
Keller, Geschosse: Keller nicht gewünscht; Geschosse 1,5 (Kniestock 1,80m)
Anzahl der Personen, Alter: Bislang 2 (36/27) geplant 4
Raumbedarf im EG, OG:
Büro: Familiennutzung
Schlafgäste pro Jahr: Max 1-2
offene Architektur
moderne Bauweise
offene Küche und Kochinsel
Anzahl Essplätze: 6-8
Kamin: Gerne
Musik/Stereowand
Balkon; Dachterrasse: Nicht nötig
Garage, Carport: Größe Garage (4 Motorräder und Werkstatt)
Nutzgarten, Treibhaus: Nicht notwendig
Hausentwurf
Von wem stammt die Planung:
-Do-it-Yourself
Was gefällt besonders? Warum?
Offener Wohn/Essbereich
Südausrichtung des Schlafzimmers und Ostausrichtung des Bades
Preisschätzung lt Architekt/Planer: Ausbauhaus bislang 330.000k€ (Ohne Garage) Bauweise CLT
Persönliches Preislimit fürs Haus, inkl Ausstattung: 420.000k€
favorisierte Heiztechnik: bislang unentschlossen
Wenn Ihr verzichten müsst, auf welche Details/Ausbauten
-könnt Ihr verzichten: Smarthome, 3 Bäder, Keller, Sauna, Balkone Gauben etc.
-könnt Ihr nicht verzichten: Ausblick Ri. Süden / Südosten
Warum ist der Entwurf so geworden, wie er jetzt ist?
Nach unzähligen Entwürfen haben wir uns jetzt stark in dieses Grobkonzept verliebt.
Ein Gemisch aus vielen Beispielen aus div. Magazinen...
Was macht ihn in Euren Augen besonders gut oder schlecht?
Grundstück liefert tolle Sicht nach Süden.
Bislang ist die Unbekannte Komponente die Bebauung der Nachbarn. Hier würden wir gerne so planen, dass uns "egal" sein kann wie die Bauen ohne uns groß einschränken zu müssen.
Was ist die wichtigste/grundlegende Frage zum Grundriss in 130 Zeichen zusammengefasst?
Wir würden natürlich gerne grundlegende Anregungen zum Grundriss bekommen.
Zu klein, zu groß, unsinnig geplant...
Wir haben schon versucht einfache Strukturen herzustellen. Wir brauchen keinen besonderen Schnickschnack.
Hauptaufenthaltsraum wird Wohnbereich.
Denkt ihr die Kinderzimmergrößen reichen? Wie siehts dort mit Licht aus, die Fenster haben wir mal einfach zu eingezeichnet. Müssen/Sollten hier noch Dachfenster integriert werden?
Bevor wir alle möbel bereits einzeichnen würden wir im Vorfeld gerne wissen ob die Grundplanung so passen könnte.
Haben das Häusle (noch mit gedrehtem First) mal aufs Grundstück gestellt.
Wir freuen uns schon jetzt auf eine angeregte Diskussion und sind natürlich für alles und jeden offen
LG
Matthias
PS: Seh gerade das ich das Fenster im Ankleidezimmer noch vergessen habe; Wird natürlich nachgereicht
S
saralina8714.05.20 13:02Prinzipiell finde ich die Grundidee gut, ich würde aber immer versuchen mal eure (Wunsch-)Möbel mit einzeichnen.
Der beste Grundriss bringt euch nichts, wenn der Fernseher nachher keinen logischen Stellplatz hat oder die Traumküche so nicht funktioniert.
Was mir auf Anhieb nicht gefallen würde: Ich sehe keine Garderobe, bzw. keinen Platz zum reinkommen, Schuhe ausziehen und Mütze ablegen.
Der beste Grundriss bringt euch nichts, wenn der Fernseher nachher keinen logischen Stellplatz hat oder die Traumküche so nicht funktioniert.
Was mir auf Anhieb nicht gefallen würde: Ich sehe keine Garderobe, bzw. keinen Platz zum reinkommen, Schuhe ausziehen und Mütze ablegen.
saralina87 schrieb:
Prinzipiell finde ich die Grundidee gut, ich würde aber immer versuchen mal eure (Wunsch-)Möbel mit einzeichnen.
Der beste Grundriss bringt euch nichts, wenn der Fernseher nachher keinen logischen Stellplatz hat oder die Traumküche so nicht funktioniert.
Was mir auf Anhieb nicht gefallen würde: Ich sehe keine Garderobe, bzw. keinen Platz zum reinkommen, Schuhe ausziehen und Mütze ablegen.Hallo Saralina, danke für den Tipp, ich werde mir das notieren und mal versuchen einzupflegen.Möbel versuche ich im zweiten Teil einzustellen sobald grobe Planungsprobleme ausgemerzt sind.
danke dir
D
Drasleona14.05.20 13:37Ich würde auch mal Möbel einzeichnen... Beispiele:
- Der Wohnbereich ist schön offen. Aber bekommt ihr ein Sofa so gestellt, dass in optimaler Entfernung ein Fernseher steht?
- Das Elternschlafzimmer ist an sich ausreichend. knapp 3m ist aber nicht wahnsinnig tief. Wenn ihr noch eine Kommode wollt o.ä. wird es schwierig.
- Das Bad kann je nach Wünschen problematisch werden. Wollt ihr eine Badewanne? Einen Whirlpool? Eine 1,8 x 1,2m Dusche? Einen Doppelwaschtisch?
Man sieht eure Wünsche am besten anhand eingezeichneter Möbel. Alles abfragen wird schwierig, finde ich...
- Der Wohnbereich ist schön offen. Aber bekommt ihr ein Sofa so gestellt, dass in optimaler Entfernung ein Fernseher steht?
- Das Elternschlafzimmer ist an sich ausreichend. knapp 3m ist aber nicht wahnsinnig tief. Wenn ihr noch eine Kommode wollt o.ä. wird es schwierig.
- Das Bad kann je nach Wünschen problematisch werden. Wollt ihr eine Badewanne? Einen Whirlpool? Eine 1,8 x 1,2m Dusche? Einen Doppelwaschtisch?
Man sieht eure Wünsche am besten anhand eingezeichneter Möbel. Alles abfragen wird schwierig, finde ich...
Hallo Drasleona,
okay ich werde mal unsere Möbel die wir übernehmen würden 1:1 einzeichnen...
Bestimmt hast du Recht und ich erkenne so schon viele Punkte sofort.
@saralina87
ich habe im Flur die Eingangstür mal mittig gestellt und die Tür zum Gästebereich nach unten geschoben, jetzt habe ich links und rechts 1,5x0,8m Fläche geschaffen...

okay ich werde mal unsere Möbel die wir übernehmen würden 1:1 einzeichnen...
Bestimmt hast du Recht und ich erkenne so schon viele Punkte sofort.
@saralina87
ich habe im Flur die Eingangstür mal mittig gestellt und die Tür zum Gästebereich nach unten geschoben, jetzt habe ich links und rechts 1,5x0,8m Fläche geschaffen...
S
saralina8714.05.20 13:55Malunga schrieb:
@saralina87
ich habe im Flur die Eingangstür mal mittig gestellt und die Tür zum Gästebereich nach unten geschoben, jetzt habe ich links und rechts 1,5x0,8m Fläche geschaffen...Das mit den Möbeln wird dir noch einige Aha-Erlebnisse bringen, war bei uns nicht anders
Die Garderobe ist so schon besser, aber du nimmst dadurch natürlich auch das gesamte Tageslicht raus.
Ob der Platz reichen würde für euch und zwei Kinder, die alle Schuhe und Jacken und Schals und Mützen haben musst du sagen!
Ähnliche Themen