ᐅ Unser Grundriss-Entwurf, eure Meinungen
Erstellt am: 18.05.14 13:31
Hallo in die Community,
auf Grund dessen, dass wir in absehbarer Zeit bauen wollen (Grundstück vorhanden), haben wir uns hier in der Community angemeldet um Ideen, Ratschläge und Hinweise rund um den Hausbau zu bekommen und wenn es dann soweit ist auch unsere eigenen Erfahrungen einzubringen.
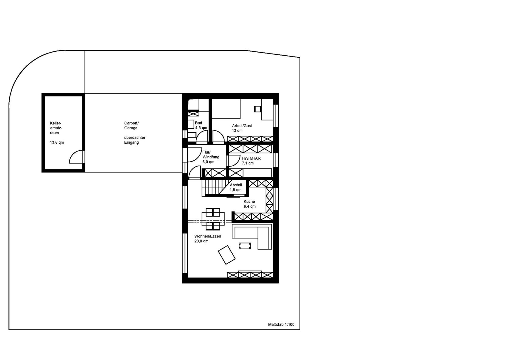
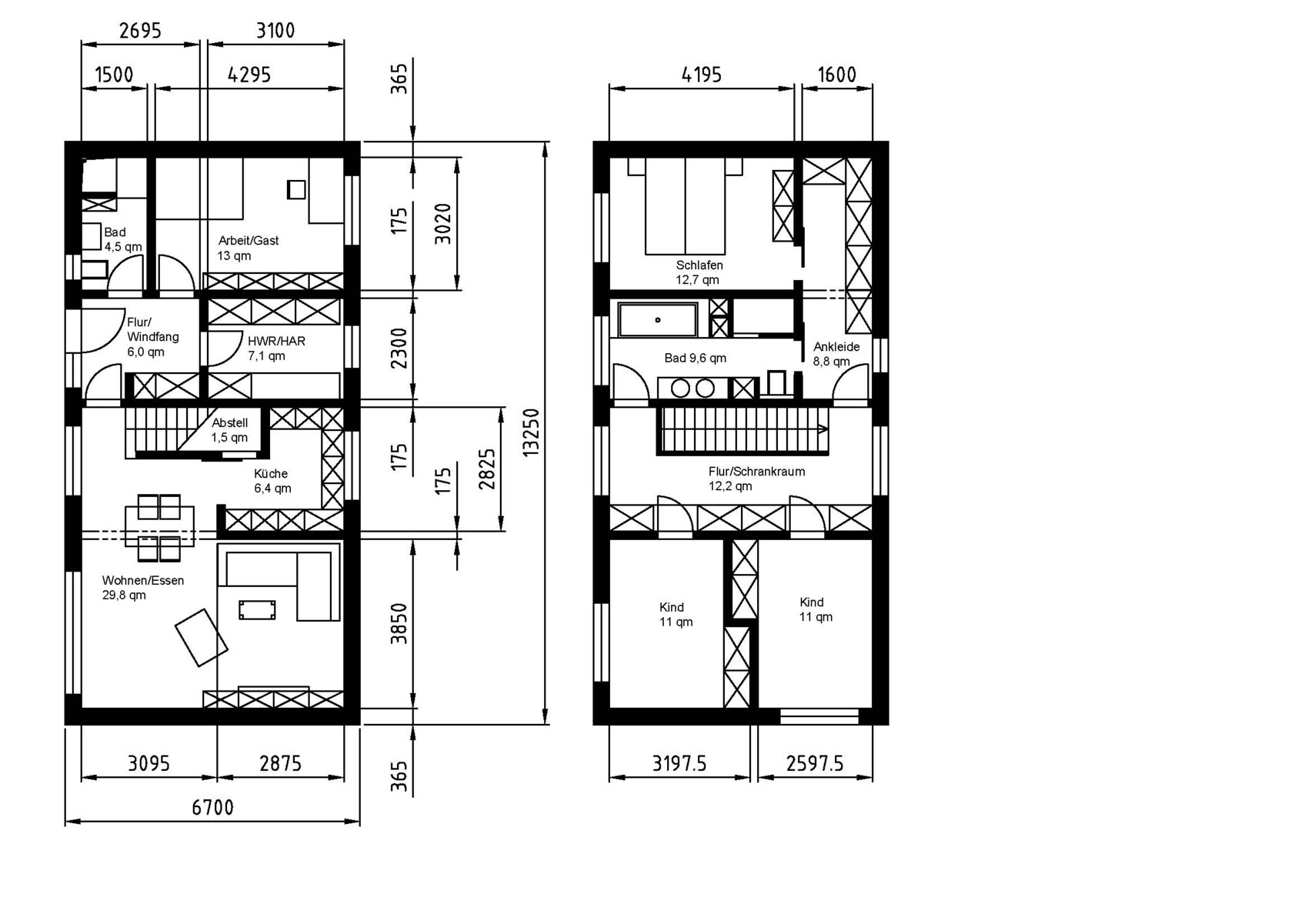
Gegenwärtig sind wir damit beschäftigt den passenden Grundriss zu entwickeln. Wir haben ein annähernd quadratisches Grundstück mit 390 qm. An der Nordseite grenzt die Zufahrtsstraße, im Osten ist ein städtischer Parkplatz, auf der Südseite ist ein vorhandenes Einfamilienhaus. Westlich grenzt eine private Straße, welche das Einfamilienhaus an der Südseite erschließt, ansonsten ist in die Westrichtung ein kleines, ähnlich großes Grundstück wie unseres, was unbebaut ist und bleibt. Entsprechend war unser Gedanke ein schmales Haus an die Ostseite des Grundstückes zu bauen, welches sich in Westrichtung (genau genommen West-Süd-West-Richtung) öffnet.
Das Haus soll ein 2-geschossiger Flachbau werden.
Anbei unser 1. Entwurf, wie wir es uns vorstellen können. Wir freuen uns über eure Meinungen und konstruktive Kritik. Vielen Dank schon mal dafür im Voraus.

auf Grund dessen, dass wir in absehbarer Zeit bauen wollen (Grundstück vorhanden), haben wir uns hier in der Community angemeldet um Ideen, Ratschläge und Hinweise rund um den Hausbau zu bekommen und wenn es dann soweit ist auch unsere eigenen Erfahrungen einzubringen.
Gegenwärtig sind wir damit beschäftigt den passenden Grundriss zu entwickeln. Wir haben ein annähernd quadratisches Grundstück mit 390 qm. An der Nordseite grenzt die Zufahrtsstraße, im Osten ist ein städtischer Parkplatz, auf der Südseite ist ein vorhandenes Einfamilienhaus. Westlich grenzt eine private Straße, welche das Einfamilienhaus an der Südseite erschließt, ansonsten ist in die Westrichtung ein kleines, ähnlich großes Grundstück wie unseres, was unbebaut ist und bleibt. Entsprechend war unser Gedanke ein schmales Haus an die Ostseite des Grundstückes zu bauen, welches sich in Westrichtung (genau genommen West-Süd-West-Richtung) öffnet.
Das Haus soll ein 2-geschossiger Flachbau werden.
Anbei unser 1. Entwurf, wie wir es uns vorstellen können. Wir freuen uns über eure Meinungen und konstruktive Kritik. Vielen Dank schon mal dafür im Voraus.
C
Clairiana18.05.14 18:37Hallo nach Sachsen,
eine Fachfrau bin ich nicht :-) aber ich wollte zu Eurem Grundriss sagen, dass ich ihn klein, aber fein finde 🙂 Vor allem sind auch Staubereiche eingeplant, was ich sehr gut finde, die beiden Kinderzimmer sind gleich groß, es ist für die Privatsphäre auch ein bißchen Weg zwischen Schlafzimmer und Kinderzimmern, sehr schön. Von welcher Richtung wird denn die Garage angefahren: Von Nord? Dann wäre ja alles prima und ihr hättet auch eine schöne Terrasse. Ich würde ggf. noch über einen Zugang zwischen Hauswirtschaftsraum und Küche nachdenken, wobei dann der Stauraum an der Stelle wegfällt. Ist eine Abwägungsfrage. Es kann aber auch sein dass man sich später ärgert wenn man immer um die Ecke muß um evtll. Vorräte aus dem Hauswirtschaftsraum Raum zu holen. Insgesamt finde ich den Entwurf also prima und auch schon sehr professionell entworfen.
Liebe Grüße!
eine Fachfrau bin ich nicht :-) aber ich wollte zu Eurem Grundriss sagen, dass ich ihn klein, aber fein finde 🙂 Vor allem sind auch Staubereiche eingeplant, was ich sehr gut finde, die beiden Kinderzimmer sind gleich groß, es ist für die Privatsphäre auch ein bißchen Weg zwischen Schlafzimmer und Kinderzimmern, sehr schön. Von welcher Richtung wird denn die Garage angefahren: Von Nord? Dann wäre ja alles prima und ihr hättet auch eine schöne Terrasse. Ich würde ggf. noch über einen Zugang zwischen Hauswirtschaftsraum und Küche nachdenken, wobei dann der Stauraum an der Stelle wegfällt. Ist eine Abwägungsfrage. Es kann aber auch sein dass man sich später ärgert wenn man immer um die Ecke muß um evtll. Vorräte aus dem Hauswirtschaftsraum Raum zu holen. Insgesamt finde ich den Entwurf also prima und auch schon sehr professionell entworfen.
Liebe Grüße!
Hallo,
ich finde den Entwurf im großen und ganzen auch sehr nett. Habe aber 2-3 Punkte gefunden
• Hauswirtschaftsraum für Haustechnik & Wäsche? Dann könnte es eng werden.
• WC im EG kollidiert mit Tür. Das muss anders gelöst werden.
• Kein Fenster im Wohnzimmer? nicht wenigstens ein Lichtband o.ä.? Stelle ich mir ungemütlich vor auch wenn man im Essbereich raus schauen kann... Mir fehlt hier irgendwie ein Südfenster.
• Ankleide/schränke sind recht dunkel. Evtl. noch ein Fenster an die Nordseite?
Viel Glück milkie
milkie
ich finde den Entwurf im großen und ganzen auch sehr nett. Habe aber 2-3 Punkte gefunden
• Hauswirtschaftsraum für Haustechnik & Wäsche? Dann könnte es eng werden.
• WC im EG kollidiert mit Tür. Das muss anders gelöst werden.
• Kein Fenster im Wohnzimmer? nicht wenigstens ein Lichtband o.ä.? Stelle ich mir ungemütlich vor auch wenn man im Essbereich raus schauen kann... Mir fehlt hier irgendwie ein Südfenster.
• Ankleide/schränke sind recht dunkel. Evtl. noch ein Fenster an die Nordseite?
Viel Glück milkie
milkie
Hallo Milkie,
Danke für deine Hinweise.
- der Hauswirtschaftsraum soll für beides sein. Die Wand zum Gästezimmer war ursprünglich nördlicher, so dass das Bad und Gästezimmer kleiner und damit Flur und Hauswirtschaftsraum größer waren. Wir hatten das dann verschoben, damit die Wände im EG und OG genau übereinander stehen und somit die Statik einfacher wird. Wenn beim berechnen der Statik herauskommt, dass wir das versetzen können, werden wir das sicher zu Gunsten eines größeren Hauswirtschaftsraum machen.
- die Kollision im Bad ist noch nicht so schlimm, könnte man waschbecken mit wc tauschen. Außerdem ist das wo nicht ganz maßstäblich 🙂
- Fenster im Süden gehen im EG leider nicht, weil da in 3 m abstand die Garage des Nachbars steht. Wäre nicht wirklich eine tolle Aussicht. Die Fenster Richtung Westen werden dafür 2m hoch und 4 m breit, wo doch recht viel licht in den Raum kommen sollte
- Fenster nach Norden in der ankleide ist eine gute Idee.
Viele Grüße
Thomas
Danke für deine Hinweise.
- der Hauswirtschaftsraum soll für beides sein. Die Wand zum Gästezimmer war ursprünglich nördlicher, so dass das Bad und Gästezimmer kleiner und damit Flur und Hauswirtschaftsraum größer waren. Wir hatten das dann verschoben, damit die Wände im EG und OG genau übereinander stehen und somit die Statik einfacher wird. Wenn beim berechnen der Statik herauskommt, dass wir das versetzen können, werden wir das sicher zu Gunsten eines größeren Hauswirtschaftsraum machen.
- die Kollision im Bad ist noch nicht so schlimm, könnte man waschbecken mit wc tauschen. Außerdem ist das wo nicht ganz maßstäblich 🙂
- Fenster im Süden gehen im EG leider nicht, weil da in 3 m abstand die Garage des Nachbars steht. Wäre nicht wirklich eine tolle Aussicht. Die Fenster Richtung Westen werden dafür 2m hoch und 4 m breit, wo doch recht viel licht in den Raum kommen sollte
- Fenster nach Norden in der ankleide ist eine gute Idee.
Viele Grüße
Thomas
Ähnliche Themen